1. AnbieterArrow Icon
  2. Regnauer HausbauArrow Icon
  3. Vitalhaus Hochburg
Slide 1
Slide 2
Slide 3
Slide 4
Slide 5
Slide 6
no description
Regnauer HausbauVitalhaus Hochburg
homeStadtvillen
livingArea170 m²
energyStandardKFWG-Q
Preis anfragen
Katalog bestellen

Vitalhaus Hochburg

Weniger ist mehr: Mit einer betont schlichten Fassade, die zugunsten einer klaren Aufteilung auf Spielereien verzichtet, beeindruckt das Einfamilienhaus „Hochburg“. Keine Erker, keine Vorsprünge, keine Balkone: Stattdessen öffnet sich das individuell geplante Holzfertighaus mit großen Glasflächen in die Landschaft.

Der Chiemgauer Vital-Holzhaushersteller Regnauer mit Sitz in Seebruck entwickelte gemeinsam mit den Bauherren einen fast quadratischen Neubau mit 162 Quadratmetern Wohnfläche. Von außen besticht das auf einer Massivholz-Riegel-Konstruktion basierende Gebäude mit einer strengen Symmetrie der zweistöckigen Fassade. Das 18 Grad flache Binderdach unterstreicht diese Schlichtheit.

Klare Verhältnisse auch im Innern: Alle Räume sind geradlinig angelegt und großzügig geschnitten – vom Kinderzimmer im Obergeschoss bis zum Familienbad. Im Erdgeschoss bildet ein offener Wohnbereich ohne Abtrennung für Esszimmer und Küche den Lebensmittelpunkt der dreiköpfigen Familie. Das 52 Quadratmeter große Zentrum des Hauses, das die ganze Südfront des Gebäudes einnimmt, öffnet sich mit drei großen Türen zur Holzterrasse. Wohnraum und Natur verschmelzen geradezu ineinander. Gut durchdacht auch das separate TV-Zimmer, das eine Rückzugsmöglichkeit bietet.

Das Einfamilienhaus bietet aufgrund der offenen Gestaltung mit Ankleidebereich und Gästezimmer im Obergeschoss viel Freiraum für die Bedürfnisse einer Familie. Der Baustoff Holz garantiert zudem eine gesunde Raumluft. Die hochwertige Holzfaserdämmung gewährleistet Höchstleistungen beim Energiesparen. Regnauer, Spezialist für gesundes Wohnen, hat damit ein vitales Haus geschaffen, das Körper und Seele gut tut.

Weitere Infos auf regnauer.de.

Ausführung gemäß aktueller Regnauer Bauleistungs- und Ausstattungsbeschreibung. Weitere Informationen auf www.regnauer.de. Abbildungen können Sonderausstattung zeigen. Wir legen großen Wert darauf, Ihr Vitalhaus ganz nach Ihren persönlichen Wünschen zu gestalten. Gemäß Ihren Wünschen und Ihrer Grundstückssituation ergibt sich dann ein exakter Festpreis für Ihr Traumhaus. Daher beziehen sich die Preise auf eine Vitalausstattung ohne spezifische Sonderausstattung.

Voraussetzung   zur   Erlangung   der   Bundesförderung   für   Effiziente   Gebäude   ist   die Einhaltung   der  diesbezüglichen Förderrichtlinien. So wird hierfür unter anderem  die Ausführung einer förderfähigen Haustechnik sowie die entsprechende Ausführung der bauherrenseitigen Leistungen (z.B. Keller und -ausbau) vorausgesetzt. Die Förderrichtlinien sind  auch  Änderungen unterworfen, sodass die Förderfähigkeit jeweils im Einzelfall geprüft und objektspezifisch durch das Förderinstitut bestätigt werden muss. Auch können einzelne Programme ausgesetzt oder verändert werden. Die Regnauer Hausbau GmbH & Co KG kann keine Finanzierungs- oder Förderberatung durchführen.

Hausdaten

Hausart Icon
HausartEinfamilienhaus
Bauweise Icon
BauweiseHolz-Tafelbau
Anzahl Räume Icon
Anzahl Räume4
Baustil Icon
BaustilStadtvillen
Fassade Icon
FassadePutz
Außenmaße Icon
Außenmaße11.66 m x 9.01 m
Wohnfläche Icon
Wohnfläche170 m²
Dachform Icon
DachformWalm-/Zeltdach
Etagen Icon
Etagen2
Energiestandard Icon
EnergiestandardKFWG-Q
Immobilientyp Icon
ImmobilientypKundenhaus
Dachneigung Icon
Dachneigung18°
Kniestock Icon
Kniestock2.48 m
Mittlerer U-Wert Icon
Mittlerer U-Wert0.14 W/m²K
Hauseigenschaften Icon
HauseigenschaftenGästezimmer, Terasse
Hausdämmstoff Icon
HausdämmstoffHolzfaser- und Zellulosedämmstoffe
Heizungsart Icon
HeizungsartWärmepumpe (Luft, Wasser, oder beides)
Pfeil nach unten linksWir schaffen Platz für Ihre Träume

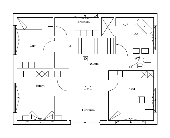
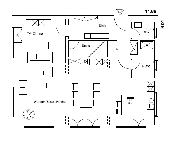
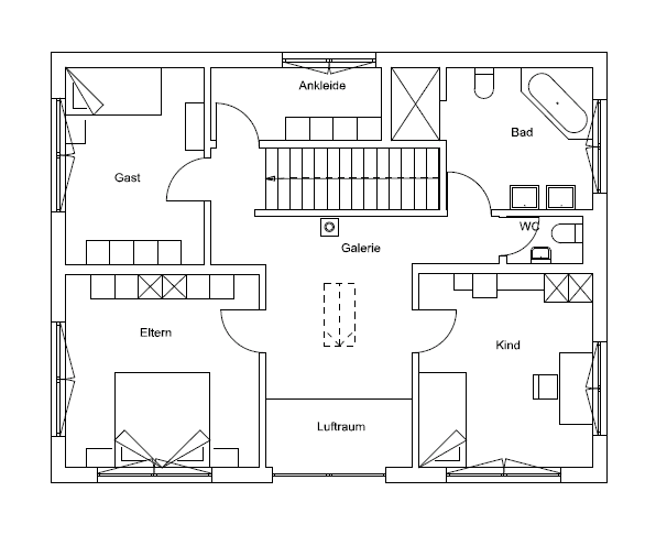
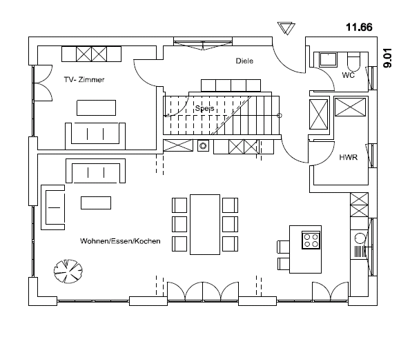
Grundriss

no description
Vitalhaus Hochburg Grundriss (EG)Wohnfläche EG: 85 m²
no description
Vitalhaus Hochburg Grundriss (OG)Wohnfläche OG: 85 m²

Unser Team vor Ort

Regnauer HausbauFachberater*in bei Regnauer Hausbau
Default Avatar
Wir beraten Sie gerne!Arrow Icon

Kataloge

Regnauer: Hauskatalog
Regnauer Hausbau

Regnauer: Hauskatalog


House and TreeParksHouse and PinMusterhausHouse on HandAnbieter