1. AnbieterArrow Icon
  2. Regnauer HausbauArrow Icon
  3. Vitalhaus Bernstadt
Slide 1
Slide 2
Slide 3
Slide 4
Slide 5
Slide 6
Slide 7
Slide 8
no description
Regnauer HausbauVitalhaus Bernstadt
homeKlassische Familienhäuser
livingArea151 m²
energyStandardKFWG-Q
Preis anfragen
Katalog bestellen

Vitalhaus Bernstadt

Geht nicht gibt es nicht: Dieses Motto stand Pate beim Neubau eines Holzhauses für eine junge Familie in Bernstadt.

Die fünf Minuten Fußweg schafft Damian schon ganz alleine. Und er ist stolz darauf. Jeden Morgen läuft der Achtjährige die wenigen Meter bis zur Grundschule ganz ohne Begleitung. Mama Natalia und Papa Dennis fahren derweil mit dem Auto zur Arbeit in die nächste Großstadt. Ulm liegt lediglich 12 km und Langenau 7 km entfernt vom 2.500 Einwohner kleinen Dörfchen Bernstadt, in dem Familie Schwarz im vergangenen Jahr ihr eigenes Regnauer Holzhaus bezogen hat. Diese ländliche Idylle, gepaart mit der Nähe zur Stadt – und zur fünf Fahrminuten entfernten Autobahn – war es auch, die das Paar bewogen hatte, sich hier niederzulassen.

Gekonnt: Architekt verwandelt scheinbares Manko in einen Gewinn
Ein Glücksgriff. Wie auch das Zuhause, das die jungen Eltern gewählt haben, um für sich und ihren Sohn ein energieeffizientes, ökologisches Heim mit angenehmen Wohnklima zu schaffen. Weil das Bauvorhaben zügig und möglichst stressfrei vonstatten gehen sollte, „haben wir uns für die Auswahl des für uns passenden Gebäudes und Baupartners viel Zeit genommen“, erinnert sich Bauherrin Natalia Schwarz. Lange Streifzüge durch die Musterhäuser in den Bauherrnzentren und fundierte Recherchen im Internet überzeugten sie schließlich vom Material Holz und führten zum Chiemgauer Anbieter Regnauer Hausbau. Die angebotenen Insight-Veranstaltungen mit ihren Einblicken in die Produktionsvorgänge des Unternehmens und die Philosophie der naturgesunden, energieeffizienten Vitalbauweise in Kombination mit der Möglichkeit, komplett individuell zu planen, gaben schließlich den Ausschlag für das Traditionsunternehmen.

„Und dass hat sich tatsächlich als optimale Entscheidung erwiesen“, freut sich Familie Schwarz im Nachhinein. „Unser Regnauer Architekt hat es nämlich geschafft, die größte Herausforderung des Bebauungsplans in Bernstadt in das größte Plus zu verwandeln.“ Die strikten Bestimmungen der Gemeinde hatten die Traufhöhe im Bebauungsgebiet auf maximal 4 Meter oberhalb der Geländeoberkante begrenzt. Damit wären für den Kniestock im Dachgeschoss des Anwesens höchstens 60 Zentimeter Höhe übrig geblieben – viel zu wenig, um dieses Geschoss als Wohnraum zu nutzen. Und ein Manko, das den Bauherren sehr viel Sorgen bereitet hatte. Der Planer löste das unlösbar scheinende Problem, indem er das Dach einfach weit nach vorne zog und damit die festgelegte Traufhöhe außer Haus verlagerte. Auf diese Weise entstand ein Kniestock mit 1,60 Meter Höhe und zudem ein überdachter Außenbereich, unter dem die Familie vor Wind und Wetter bestens geschützt ist.

Heizen? Auch an sehr kalten Tagen kaum nötig
Satteldach, eine weiß verputzte Außenhaut mit ökologischer Holzfaserdämmung, großflächige Fenster und eben jener weit ausladende Dachüberstand geben dem Anwesen so viel Überzeugungskraft, „dass Besucher und Fremde uns regelmäßig darauf ansprechen“, lacht die Besitzerin. Sie selbst genießt darüber hinaus die energetisch effiziente Bauweise ihres als KfW-Haus mit Luft-Wasser-Wärmepumpe und Fußbodenheizung geplanten Anwesens. Heizen? Das sei auch an sehr kalten Tagen kaum nötig, lächelt sie. Im ersten Winter hatte das Ehepaar Holz erworben für den von Regnauer als Geschenk im Kaufpaket mitgelieferten Plewa-Kaminofen im Wohnraum. Gedacht, um es in einer Saison zu verheizen. Nun, nach dem zweiten Winter, sei immer noch ein großer Teil des Brennstoffs vorhanden. Dank der Lüftungsanlage mit integrierter Wärmerückgewinnung und der gut gedämmten Außenhaut brauche das Haus einfach kaum Energie. Die erste Heizkostenabrechnung sei daher eine wirklich positive Überraschung gewesen, zieht die Hausherrin Bilanz. „Zumal sich die atmungsaktiven Holzwände selbst an kalten Tagen immer warm anfühlen. Ganz anders als in den gemauerten und betonierten Häusern, in denen wir früher gelebt haben.“ Das mache sich auch im Sommer bezahlt. „Da ist es bei uns immer angenehm kühl, während die Nachbarn schwitzen.“

Absprachen auf den Punkt eingehalten
Ein großer Wohnraum mit Küche und dem bis unters Dach offenen Essbereich, eine direkt von der Küche aus zugängliche Speisekammer, ein kleines Büro und ein Gäste-WC: Im Erdgeschoss des komplett mit Fußbodenheizung ausgestatteten Gebäudes ist genug Platz für Familie und Besucher. Im Obergeschoss befinden sich das Elternschlafzimmer mit Ankleide und großem Badezimmer inklusive Wäscheabwurfschacht, darüber hinaus ein Kinder- und ein Gästezimmer und nicht zuletzt eine kleine Galerie oberhalb des Essbereichs. Die großen Fensterfronten lassen nicht nur viel Licht in die Räume einfallen, sie ermöglichen auch die Sicht auf den Garten und nicht zuletzt das Zentrum von Bernstadt mit dem hohen Kirchturm als Blickfang. Im Untergeschoss ließ sich die Familie noch einen kleinen Hobbyraum einrichten, der irgendwann einmal die Sauna aufnehmen soll.

Die individuelle Küchenplanung respektive deren Eingliederung in das Hauskonzept erwiesen sich gleichfalls als völlig unkompliziert. „Die Planungs- und Bauzeit war einfach stressfrei, es lief wie am Schnürchen“, konstatiert die junge Mutter. „Wir haben einen Zeit- und Kostenplan in die Hand gedrückt bekommen. Wir wussten, das Haus ist in zwei Tagen aufgebaut, und wir wussten, wann wir einziehen konnten. Und wenn es eine Herausforderung gab, wurde diese sofort genannt – inklusive der Lösung. Nicht zuletzt wurden alle Absprachen auch genau so eingehalten. Und es gab keine Nachrechnungen. Wir haben uns auf einen Betrag geeinigt und der stand in der Schlussrechnung auch drin. Das war top professionell.
So würden wir sofort wieder bauen.“

Weitere Infos auf regnauer.de.

Ausführung gemäß aktueller Regnauer Bauleistungs- und Ausstattungsbeschreibung. Weitere Informationen auf www.regnauer.de. Abbildungen können Sonderausstattung zeigen. Wir legen großen Wert darauf, Ihr Vitalhaus ganz nach Ihren persönlichen Wünschen zu gestalten. Gemäß Ihren Wünschen und Ihrer Grundstückssituation ergibt sich dann ein exakter Festpreis für Ihr Traumhaus. Daher beziehen sich die Preise auf eine Vitalausstattung ohne spezifische Sonderausstattung.

Voraussetzung   zur   Erlangung   der   Bundesförderung   für   Effiziente   Gebäude   ist   die Einhaltung   der  diesbezüglichen Förderrichtlinien. So wird hierfür unter anderem  die Ausführung einer förderfähigen Haustechnik sowie die entsprechende Ausführung der bauherrenseitigen Leistungen (z.B. Keller und -ausbau) vorausgesetzt. Die Förderrichtlinien sind  auch  Änderungen unterworfen, sodass die Förderfähigkeit jeweils im Einzelfall geprüft und objektspezifisch durch das Förderinstitut bestätigt werden muss. Auch können einzelne Programme ausgesetzt oder verändert werden. Die Regnauer Hausbau GmbH & Co KG kann keine Finanzierungs- oder Förderberatung durchführen.

Hausdaten

Hausart Icon
HausartEinfamilienhaus
Bauweise Icon
BauweiseHolz-Tafelbau
Anzahl Räume Icon
Anzahl Räume4
Baustil Icon
BaustilKlassische Familienhäuser
Fassade Icon
FassadePutz
Außenmaße Icon
Außenmaße11.85 m x 8.2 m
Wohnfläche Icon
Wohnfläche151 m²
Dachform Icon
DachformSattel-/Giebeldach
Etagen Icon
Etagen2
Energiestandard Icon
EnergiestandardKFWG-Q
Immobilientyp Icon
ImmobilientypKundenhaus
Dachneigung Icon
Dachneigung32°
Kniestock Icon
Kniestock1.67 m
Mittlerer U-Wert Icon
Mittlerer U-Wert0.14 W/m²K
Hauseigenschaften Icon
HauseigenschaftenGästezimmer, Terasse, Dritter Giebel
Hausdämmstoff Icon
HausdämmstoffHolzfaser- und Zellulosedämmstoffe
Heizungsart Icon
HeizungsartWärmepumpe (Luft, Wasser, oder beides)
Pfeil nach unten linksWir schaffen Platz für Ihre Träume

Grundriss

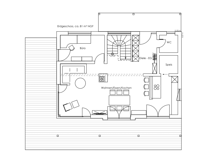
eg_bernstadt.png
Vitalhaus Bernstadt Grundriss (EG)Wohnfläche EG: 76 m²
no description
Vitalhaus Bernstadt Grundriss (OG)

Unser Team vor Ort

Regnauer HausbauFachberater*in bei Regnauer Hausbau
Default Avatar
Wir beraten Sie gerne!Arrow Icon

Kataloge

Regnauer: Hauskatalog
Regnauer Hausbau

Regnauer: Hauskatalog


House and TreeParksHouse and PinMusterhausHouse on HandAnbieter