1. AnbieterArrow Icon
  2. Regnauer HausbauArrow Icon
  3. Vitalhaus Bad Endorf
Slide 1
Slide 2
Slide 3
Slide 4
Slide 5
Slide 6
Slide 7
no description
Regnauer HausbauVitalhaus Bad Endorf
homeStadtvillen
livingArea154 m²
energyStandardKFWG-Q
Preis anfragen
Katalog bestellen

Vitalhaus Bad Endorf

Schutz, Geborgenheit, Rückzugsort vom stressigen Alltag – Die grundsätzlichen Ansprüche an unsere Häuser unterscheiden sich trotz unterschiedlicher Gestaltung kaum. Das Bauherrenehepaar des Hauses Bad Endorf wünschte sich vor allem ein offenes und lichtdurchflutetes Eigenheim, das Erholung vom stressigen Alltag  bietet. In einer ruhigen Ortsrandlage des oberbayerischen Kurorts  hat der Holzhaushersteller Regnauer diesen Traum verwirklicht und ein Haus entwickelt, das Kraft für die Aufgaben des Alltags schenkt.

Eine Oase der Entspannung – Die symmetrische Fassadengestaltung mit klaren Linien und großzügigen, teilweise ebenerdigen Fenstern strahlt Ruhe aus und wirkt gleichzeitig einladend. Fließend gestaltet sich der Übergang zwischen Garten,  Terrasse und dem Haus, von dessen Rückseite der Blick zu den Alpen reicht. Das üppige Grün des Gartens und die weiß verputzte Hausfassade signalisieren Vitalität und Lebenskraft. Das flach geneigte  Satteldach lässt auch im Obergeschoss noch genügend Licht ins Hausinnere. Ein auf zwei Hausseiten verlaufender breiter Balkon ergänzt das Haus.

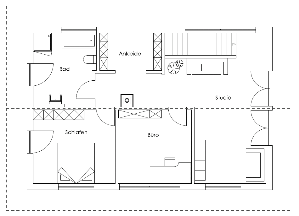
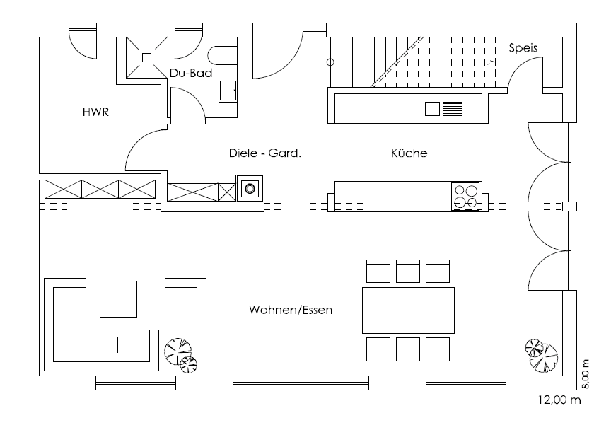
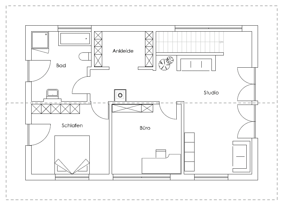
Ein Haus, das gut tut - Schon die ersten Schritte in die Diele unterstreichen das gewünschte offene Ambiente, das auf der Liste der Bauherren, beide um die sechzig, ganz oben stand. Die klare Formensprache der Inneneinrichtung und die vorherrschende Farbe Weiß verstärken die weitläufige Atmosphäre, die durch geschickt gesetzte farbliche Akzente unterstrichen wird. Neben der offenen Küche liegt der lichtdurchflutete Ess- und Wohnbereich, von dem aus man die breite Terrasse betritt. Wärme vermitteln die hellen Bodendielen und die Holztreppe ins Dachgeschoss. An den Garderobenbereich schließen sich ein kompaktes Duschbad sowie ein praktischer Hauswirtschaftsraum an. Die Raumaufteilung im Obergeschoss orientiert sich ganz an den Wünschen der Bauherren: Großzügig und hell präsentiert sich das  Schlafzimmer, das Bad beeindruckt durch seine hochwertige, edle Ausstattung. Ordnung schafft der übersichtliche Ankleideraum mit platzsparenden Schiebetüren. Der beruflichen Position als Anwalt trägt das Büro des Bauherrn Rechnung, sodass sich Arbeiten in der entspannenden Atmosphäre des eigenen Hauses erledigen lassen.

Träume verwirklichen – Je anstrengender das berufliche Engagement, umso wichtiger ist ein Rückzugsort, der wieder Kraft und Energie spendet. Die Leidenschaft des Hausherrn gilt der Musik. Als besonderes Extra gönnte sich der Anwalt in seinem Traumhaus einen eigenen  Musikraum.

Mehr Infos auf regnauer.de.

Ausführung gemäß aktueller Regnauer Bauleistungs- und Ausstattungsbeschreibung. Weitere Informationen auf www.regnauer.de. Abbildungen können Sonderausstattung zeigen. Wir legen großen Wert darauf, Ihr Vitalhaus ganz nach Ihren persönlichen Wünschen zu gestalten. Gemäß Ihren Wünschen und Ihrer Grundstückssituation ergibt sich dann ein exakter Festpreis für Ihr Traumhaus. Daher beziehen sich die Preise auf eine Vitalausstattung ohne spezifische Sonderausstattung.

Voraussetzung   zur   Erlangung   der   Bundesförderung   für   Effiziente   Gebäude   ist   die Einhaltung   der  diesbezüglichen Förderrichtlinien. So wird hierfür unter anderem  die Ausführung einer förderfähigen Haustechnik sowie die entsprechende Ausführung der bauherrenseitigen Leistungen (z.B. Keller und -ausbau) vorausgesetzt. Die Förderrichtlinien sind  auch  Änderungen unterworfen, sodass die Förderfähigkeit jeweils im Einzelfall geprüft und objektspezifisch durch das Förderinstitut bestätigt werden muss. Auch können einzelne Programme ausgesetzt oder verändert werden. Die Regnauer Hausbau GmbH & Co KG kann keine Finanzierungs- oder Förderberatung durchführen.

Hausdaten

Hausart Icon
HausartEinfamilienhaus
Bauweise Icon
BauweiseHolz-Tafelbau
Anzahl Räume Icon
Anzahl Räume3
Baustil Icon
BaustilStadtvillen
Fassade Icon
FassadePutz
Außenmaße Icon
Außenmaße12 m x 8 m
Wohnfläche Icon
Wohnfläche154 m²
Dachform Icon
DachformSattel-/Giebeldach
Etagen Icon
Etagen2
Energiestandard Icon
EnergiestandardKFWG-Q
Immobilientyp Icon
ImmobilientypKundenhaus
Dachneigung Icon
Dachneigung18°
Kniestock Icon
Kniestock2.1 m
Mittlerer U-Wert Icon
Mittlerer U-Wert0.14 W/m²K
Hauseigenschaften Icon
HauseigenschaftenTerasse
Hausdämmstoff Icon
HausdämmstoffHolzfaser- und Zellulosedämmstoffe
Heizungsart Icon
HeizungsartWärmepumpe (Luft, Wasser, oder beides)
Pfeil nach unten linksWir schaffen Platz für Ihre Träume

Grundriss

no description
Vitalhaus Bad Endorf Grundriss (EG)Wohnfläche EG: 78 m²
no description
Vitalhaus Bad Endorf Grundriss (DG)Wohnfläche DG: 76 m²

Unser Team vor Ort

Regnauer HausbauFachberater*in bei Regnauer Hausbau
Default Avatar
Wir beraten Sie gerne!Arrow Icon

Kataloge

Regnauer: Hauskatalog
Regnauer Hausbau

Regnauer: Hauskatalog


House and TreeParksHouse and PinMusterhausHouse on HandAnbieter