1. AnbieterArrow Icon
  2. Regnauer HausbauArrow Icon
  3. Vitalhaus Aschau
Slide 1
Slide 2
Slide 3
Slide 4
Slide 5
Slide 6
Slide 7
Slide 8
Slide 9
no description
Regnauer HausbauVitalhaus Aschau
homeKlassische Familienhäuser
livingArea168 m²
energyStandardKFWG-Q
Preis anfragen
Katalog bestellen

Vitalhaus Aschau

Von Aschau nach Meran, und über Rosenheim wieder zurück in die Heimat: In ihrem geräumigen Holzhaus von Regnauer Hausbau hat eine junge vierköpfige Familie ein Zuhause gefunden – in dem sie nun endgültig bleiben will.

168 m2 Wohnfläche, großzügige Glasflächen und weiß verputzte Wände, darüber ein behütendes Satteldach: So lässt sich das gemütliche Zuhause einer vierköpfigen Familie im oberbayerischen Aschau am besten charakterisieren. Der mit ökologischer Holzfaser gedämmte Neubau wurde als Massivholz-Riegel-Konstruktion realisiert und mit anthrazit engobierten Tondachziegeln gedeckt.

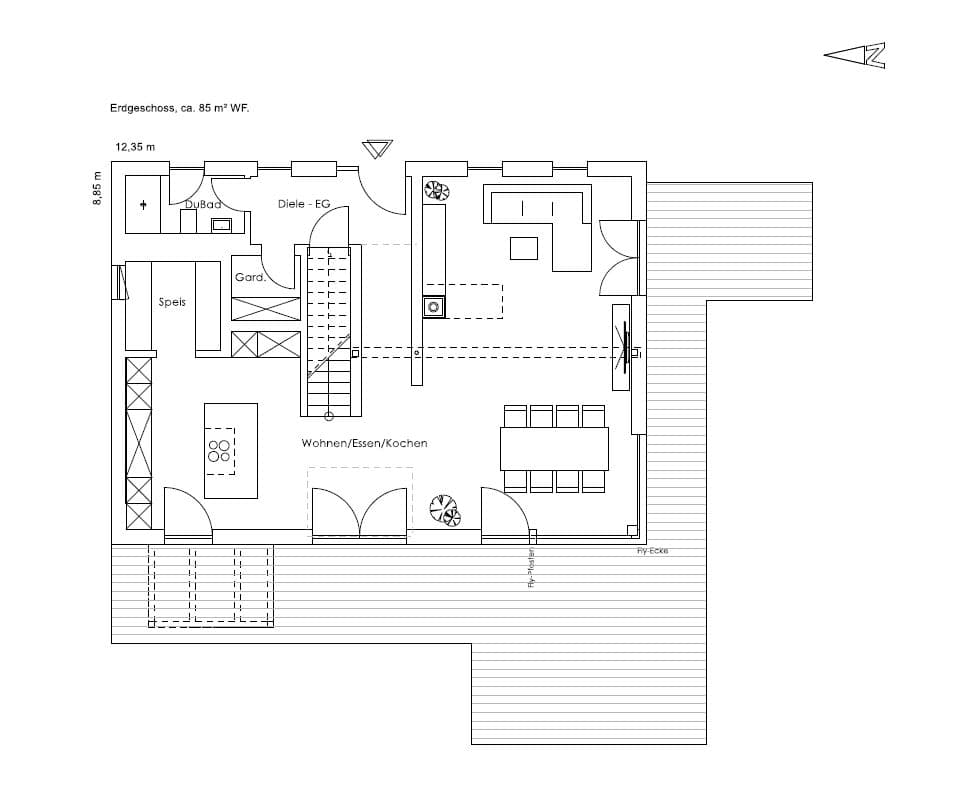
Drinnen empfängt die Familie eine geräumige Diele mit angeschlossener Garderobe und Gäste-WC, die das Gebäude in zwei Hälften teilt. Vom Windfang aus geht es direkt in den Wohn-Essbereich mit Kaminofen und Sitznische nebenan. In der Küche gegenüber finden eine große Kochinsel sowie eine kleine Speisekammer Platz. Und weil das Ehepaar während ihres Aufenthalts im Meran zu Weinliebhabern geworden ist, haben die beiden unterhalb der Küche einen Weinkeller eingerichtet. Ein Glasausschnitt im Küchenboden erlaubt von hier aus den Blick darauf.

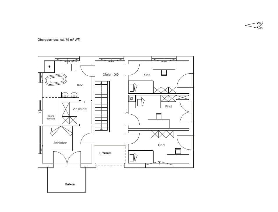
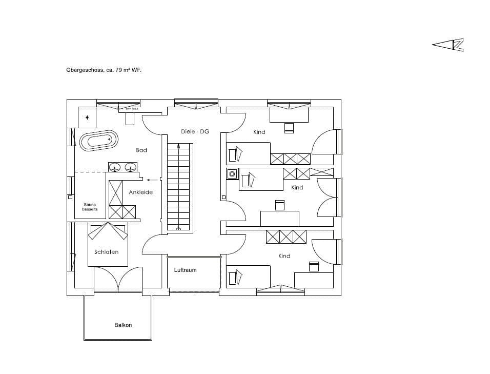
Im Obergeschoss reihen sich drei Kinderzimmer aneinander. Gegenüber – durch die breite Diele mit angrenzendem, großflächig verglastem Luftraum getrennt – liegt der Elternbereich mit Schlafzimmer, Ankleide und Bad. Eine integrierte Zirbenholzsauna dient als privater Wellnessbereich.

Strom für das KfN-Haus liefert eine Photovoltaikanlage auf dem Dach. Geheizt wird mit einer Luft-Wasser-Wärmepumpe mit daran angeschlossener Fußbodenheizung. Die Technik dafür befindet sich im Keller des Anwesens. Und Raum für Skiausrüstung, Fahrräder und ein Büro ist auch noch da.

Ausführung gemäß aktueller Regnauer Bauleistungs- und Ausstattungsbeschreibung. Weitere Informationen auf www.regnauer.de. Abbildungen können Sonderausstattung zeigen. Wir legen großen Wert darauf, Ihr Vitalhaus ganz nach Ihren persönlichen Wünschen zu gestalten. Gemäß Ihren Wünschen und Ihrer Grundstückssituation ergibt sich dann ein exakter Festpreis für Ihr Traumhaus. Daher beziehen sich die Preise auf eine Vitalausstattung ohne spezifische Sonderausstattung.

Voraussetzung   zur   Erlangung   der   Bundesförderung   für   Effiziente   Gebäude   ist   die Einhaltung   der  diesbezüglichen Förderrichtlinien. So wird hierfür unter anderem  die Ausführung einer förderfähigen Haustechnik sowie die entsprechende Ausführung der bauherrenseitigen Leistungen (z.B. Keller und -ausbau) vorausgesetzt. Die Förderrichtlinien sind  auch  Änderungen unterworfen, sodass die Förderfähigkeit jeweils im Einzelfall geprüft und objektspezifisch durch das Förderinstitut bestätigt werden muss. Auch können einzelne Programme ausgesetzt oder verändert werden. Die Regnauer Hausbau GmbH & Co KG kann keine Finanzierungs- oder Förderberatung durchführen.

Hausdaten

Hausart Icon
HausartEinfamilienhaus
Bauweise Icon
BauweiseHolz-Tafelbau
Anzahl Räume Icon
Anzahl Räume6
Baustil Icon
BaustilKlassische Familienhäuser
Fassade Icon
FassadePutz
Außenmaße Icon
Außenmaße12.35 m x 8.85 m
Wohnfläche Icon
Wohnfläche168 m²
Dachform Icon
DachformSattel-/Giebeldach
Etagen Icon
Etagen2
Energiestandard Icon
EnergiestandardKFWG-Q
Immobilientyp Icon
ImmobilientypKundenhaus
Dachneigung Icon
Dachneigung20°
Kniestock Icon
Kniestock2.3 m
Mittlerer U-Wert Icon
Mittlerer U-Wert0.14 W/m²K
Hauseigenschaften Icon
HauseigenschaftenGästezimmer, Terasse
Hausdämmstoff Icon
HausdämmstoffHolzfaser- und Zellulosedämmstoffe
Heizungsart Icon
HeizungsartWärmepumpe (Luft, Wasser, oder beides)
Pfeil nach unten linksWir schaffen Platz für Ihre Träume

Grundriss

Erdgeschoss Vitalhaus Aschau
Vitalhaus Aschau Grundriss (EG)Wohnfläche EG: 87 m²
Obergeschoss Vitalhaus Aschau
Vitalhaus Aschau Grundriss (OG)

Unser Team vor Ort

Regnauer HausbauFachberater*in bei Regnauer Hausbau
Default Avatar
Wir beraten Sie gerne!Arrow Icon

Kataloge

Regnauer: Hauskatalog
Regnauer Hausbau

Regnauer: Hauskatalog


House and TreeParksHouse and PinMusterhausHouse on HandAnbieter