1. AnbieterArrow Icon
  2. Regnauer HausbauArrow Icon
  3. Vitalhaus Alois
Slide 1
Slide 2
Slide 3
Slide 4
Slide 5
Slide 6
Slide 7
Slide 8
no description
Regnauer HausbauVitalhaus Alois
homeLandhäuser
livingArea256 m²
energyStandardKFWG-Q
Preis anfragen
Katalog bestellen

Vitalhaus Alois

Außen ländliche Idylle, drinnen ein modernes Zuhause mit jeglichem Komfort. So präsentiert sich das Holzfertighaus eines Unternehmers mitten in Oberbayern

Wenn Thomas Ebert entspannen will, dann kocht er. Leidenschaftlich gern. Für sich, seine Familie und für Freunde. Im Zentrum seines neuen Einfamilienhauses steht daher eine Kochinsel, groß, funktional und gemütlich. Gegessen und hernach geredet wird direkt davor, an einem Holztisch mit einer Bank und Stühlen drum herum. Genauso wie es in der bäuerlichen Kultur Bayerns seit je her üblich war.

Und weil die neue Heimat von Familie Ebert mitten in einem kleinen Dorf in Oberbayern liegt, ist das Haus ebenfalls ein Stück Heimat- und Handwerkskultur geworden: weißer Putz mit Holzfenstern im Erdgeschoss, Holzverschalung im Obergeschoss und Fensterläden überall, ein Holzbalkon mit geschnitztem Geländer davor, gedrechselte Stützen und ein Giebelkreuz mit Jahreszahl auf dem Dach. So sahen bayerische Höfe schon vor 100 Jahren aus. Nur das Haus Alois, wie es liebevoll genannt wird, nagelneu ist.

Und ein Holzfertighaus dazu. Regnauer Hausbau hatte diesen Fassadentypen vor Jahren für eine Kundin entwickelt und Ebert hatte ein Foto davon im Internet entdeckt. „Genau solch ein Haus möchte ich“, erinnert sich Architektin Irini Solakidou an die Worte, mit denen ihr Kunde ihr den Auftrag erteilt hatte, ein Zuhause für ihn und seine Familie zu planen.

Fertighausprozesse: ökologisch und ökonomisch gut

Die ökologisch und nachhaltig orientierte Planerin findet Fertighausprozesse ökologisch wie ökonomisch sinnvoll. „Warum soll ich nicht auf eine Wand- und Dachlösung zurückgreifen, die bereits erprobt ist?“, lautet ihr Credo daher. „Schließlich erfindet man das Rad auch nicht jedes Mal neu.“  Den auf die Wünsche ihres Bauherrn zugeschnittenen Neubau entwickelte sie daher in enger Zusammenarbeit mit einem Ansprechpartner der Regnauer Planungsabteilung.

Außen prägen diesen die von der historischen bayerischen Architektur abgeleitete Fassadenelemente: Vom verputzten Erdgeschoss bis zum geneigten Satteldach mit dem großen Dachüberstand und dem durchlaufenden Balkon. Die Fenster weisen Sprossen auf, und die Haustüre ist im ländlichen Baustil gestaltet. Um die Schnitzereien und gedrechselten Elemente – etwa das Giebelkreuz – so heimatnah und detailgetreu wie möglich fertigen zu können, holte sich das Holzfertighausunternehmen eine auf bayerische Architektur spezialisierte Fachfirma hinzu.

Vitalbauweise für hervorragendes Wohnklima

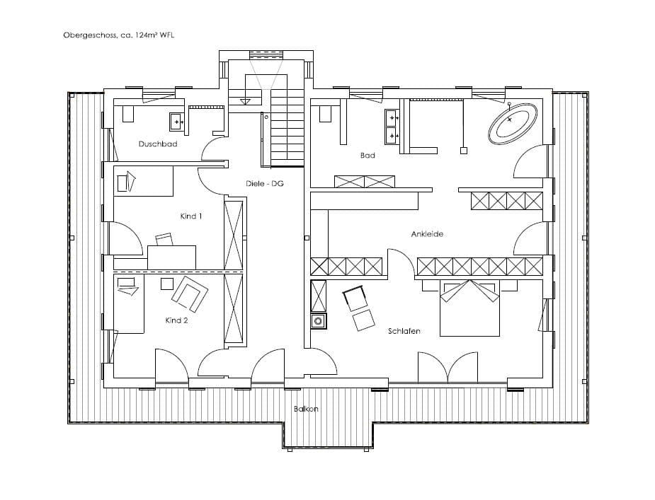
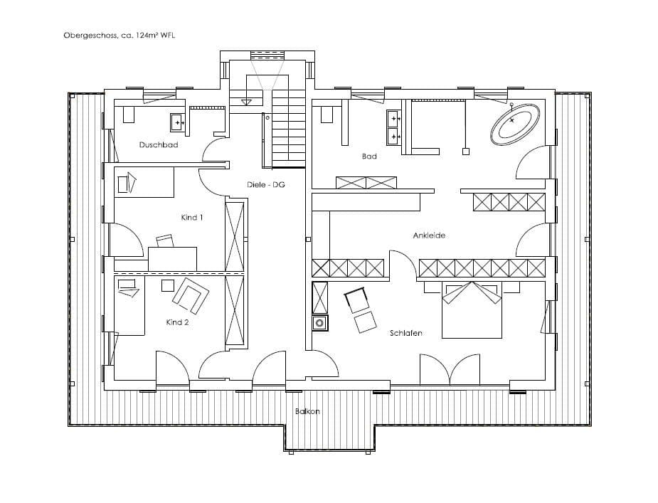
Der Wand- und Dachaufbau entspricht der Vitalbauweise von Regnauer. Innen- und Außenwände sind mit Holzfaserdämmung gedämmt und gewährleisten so ein hervorragendes Wohnklima. Eine Beplankung aus Gipsplatten optimiert die Räume schalltechnisch. Und die Silencedecke sorgt dafür, dass die Erwachsenen im Wohnzimmer in Ruhe plaudern können, während die Kinder ein Stockwerk darüber toben. Denn oben nimmt der Neubau nicht nur das Schlafzimmer der Eltern auf nebst der daran angrenzenden Ankleide und dem Elternbad. Hier befinden sich auch zwei identische Kinderzimmer mit Kinderbad.

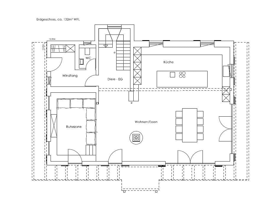
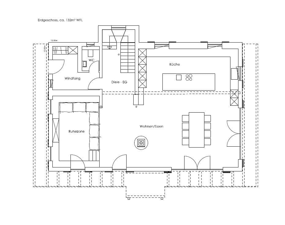
Eine Stahltreppe mit Setzstufen aus Holz verbindet das Geschoss mit der Eingangsebene. Zugunsten einer angenehmen Wegeführung entwarf die Planerin die Konstruktion statt mit einem Mittelpodest mit drei breiten Stufen am Treppenknick. Je zwei Schritte braucht es am Wendepunkt, um zur nächsten Stufe nach oben bzw. unten zu gelangen. Dort mündet sie in einer großzügigen Diele direkt hinter dem Windfang mit dem angrenzenden Gäste-WC. Und direkt vor jenem großen Wohnzimmer mit daran anschließendem Ess- und Kochbereich. Rechter Hand befindet sich eine abgesenkte Sitzecke mit maßgefertigten Polstern und Kissen. Das Zentrum des Raumes nimmt ein von der Decke abgehängter Kaminofen ab, der insbesondere in der kalten Jahreszeit dazu einlädt, im kleinen Kreis beisammen zu sitzen. 

Natürlich barrierefrei

Wer möchte, kann direkt aus dem Wohnraum nach draußen gehen. Oder aber er nimmt den Weg durch die Diele und den Windfang hinaus. Weil das Gebäude einerseits barrierefrei erschlossen werden sollte und andererseits um 50 cm aus der umgebenden Senke gehoben, führen einige Treppenstufen und eine lang gestreckte Rampe von der Garage ins Haus. 

Und während die Architektur draußen Wert legt auf bayerische Bautradition, spielt sie innen mit modernen Kontrasten: Der bäuerlich gehaltene Einbauschrank aus Holz steht direkt neben der blauschwarz gehaltenen schlichten Gästetoilette. Zum Parkett gesellen sich geschliffener Estrich und Fliesen als Bodenpartner. Und die Farben Schwarz und Graublau ziehen sich als moderne Eyecatcher durch das gesamte Gebäude hindurch.

Die notwendige Technik des Neubaus nimmt der an der Garage angegliederte Hausanschlussraum auf. Das Familienauto und das Motorrad stehen direkt davor. Einen Keller wollte der Bauherr nicht. Dort, so seine Meinung, würde sich nur unnützes Zeug ansammeln. Das, was man zum Leben braucht, hat er lieber direkt vor Ort. In der Küche und daneben, wo er mit der gesamten Familie zur Ruhe kommt.

Entwurfsverfasserin: Dipl.-Ing. (FH) Irini Solakidou, www.solakidou.eu (externe Architektin)

Mehr Infos auf regnauer.de.

Ausführung gemäß aktueller Regnauer Bauleistungs- und Ausstattungsbeschreibung. Weitere Informationen auf www.regnauer.de. Abbildungen können Sonderausstattung zeigen. Wir legen großen Wert darauf, Ihr Vitalhaus ganz nach Ihren persönlichen Wünschen zu gestalten. Gemäß Ihren Wünschen und Ihrer Grundstückssituation ergibt sich dann ein exakter Festpreis für Ihr Traumhaus. Daher beziehen sich die Preise auf eine Vitalausstattung ohne spezifische Sonderausstattung.

Voraussetzung   zur   Erlangung   der   Bundesförderung   für   Effiziente   Gebäude   ist   die Einhaltung   der  diesbezüglichen Förderrichtlinien. So wird hierfür unter anderem  die Ausführung einer förderfähigen Haustechnik sowie die entsprechende Ausführung der bauherrenseitigen Leistungen (z.B. Keller und -ausbau) vorausgesetzt. Die Förderrichtlinien sind  auch  Änderungen unterworfen, sodass die Förderfähigkeit jeweils im Einzelfall geprüft und objektspezifisch durch das Förderinstitut bestätigt werden muss. Auch können einzelne Programme ausgesetzt oder verändert werden. Die Regnauer Hausbau GmbH & Co KG kann keine Finanzierungs- oder Förderberatung durchführen.

Hausdaten

Hausart Icon
HausartEinfamilienhaus
Bauweise Icon
BauweiseHolz-Tafelbau
Anzahl Räume Icon
Anzahl Räume5
Baustil Icon
BaustilLandhäuser
Fassade Icon
FassadePutz, Materialkombination, Holz
Außenmaße Icon
Außenmaße15 m x 10 m
Wohnfläche Icon
Wohnfläche256 m²
Dachform Icon
DachformSattel-/Giebeldach
Etagen Icon
Etagen2
Energiestandard Icon
EnergiestandardKFWG-Q
Immobilientyp Icon
ImmobilientypKundenhaus
Dachneigung Icon
Dachneigung20°
Kniestock Icon
Kniestock2.46 m
Mittlerer U-Wert Icon
Mittlerer U-Wert0.14 W/m²K
Hauseigenschaften Icon
HauseigenschaftenBalkon, Terasse, Gästezimmer
Hausdämmstoff Icon
HausdämmstoffHolzfaser- und Zellulosedämmstoffe
Heizungsart Icon
HeizungsartWärmepumpe (Luft, Wasser, oder beides)
Pfeil nach unten linksWir schaffen Platz für Ihre Träume

Grundriss

Erdgeschoss Vitalhaus Alois
Vitalhaus Alois Grundriss (EG)Wohnfläche EG: 129 m²
Obergeschoss Vitalhaus Alois
Vitalhaus Alois Grundriss (OG)Wohnfläche OG: 127 m²

Unser Team vor Ort

Regnauer HausbauFachberater*in bei Regnauer Hausbau
Default Avatar
Wir beraten Sie gerne!Arrow Icon

Kataloge

Regnauer: Hauskatalog
Regnauer Hausbau

Regnauer: Hauskatalog


House and TreeParksHouse and PinMusterhausHouse on HandAnbieter