1. AnbieterArrow Icon
  2. Regnauer HausbauArrow Icon
  3. Musterhaus Ambienti+
Slide 1
Location Icon
Slide 2
Location Icon
Slide 3
Location Icon
Slide 4
Location Icon
Slide 5
Location Icon
Slide 6
Location Icon
Slide 7
Location Icon
Slide 8
Location Icon
no description
Regnauer HausbauMusterhaus Ambienti+
homeKubushäuser im Bauhausstil
livingArea230 m²
energyStandardPlusenergiehaus
Preis anfragen

Musterhaus Ambienti+

Organische Formen, viel Emotion, energieautark und hochmodern: das alles verbindet das Vitalhaus Ambienti+ von Regnauer. Die Gestaltung: modern mit einem auskragenden Obergeschosses samt großem Panoramafenster. Die Wirkung: ungewöhnlich durch die organische Formgebung. Die Technik: zukunftsweisend durch ein Plus-Energiekonzept und hochmoderne Gebäudeautomation. Außerdem erfüllt das neue von Architekt Günther Stummvoll entworfene und von Unternehmenschef Michael Regnauer weiterentwickelte Haus viele Impulse und Anregungen für modernes Wohnen: flexible, vielfältig nutzbare Raumkonzepte, mit denen sich Bewohner auf unterschiedliche Lebenslagen einstellen können.

Auskragendes Oberschoss - Wie durch ein riesiges Teleskop können Bewohner des Vitalhauses Ambienti+ im Regnauer-Bauherrenzentrum vom  auskragenden Obergeschoss in die Landschaft des Chiemgaus sehen: Das Holzhaus öffnet sich durch ein Panoramafenster in die Natur, drinnen und draußen verschwimmen.  Die Fassade ist abgerundet – durch eine wartungsfreie, lichtechte Fassade in Holzoptik, die gleichzeitig einen Witterungsschutz darstellt. „Wohnen ist Emotion“, erläutert Geschäftsführer Michael Regnauer, warum mit dem Haus eine neue Stilrichtung eingeschlagen wurde, „und das soll das Haus durch die Form innen und außen widerspiegeln“.

Klar und sanft  - Das neue Haus ist in Anlehnung an einen geradlinigen Bauhausstil entworfen worden und erhielt durch die organische Formgebung seine avantgardistische Stilrichtung, mit der Aussage „Klarheit und Konzentration auf das Wesentliche: ja, kühle Ausstrahlung: nein. In einer Zeit der Reizüberflutung wünschen sich Familien für die eigenen vier Wände einen Ort, der zum Entspannen und Wohlfühlen einlädt.  

Luftig-leichte Transparenz - Für Ambienti+ heißt dies: klare Formensprache,  luftig-leichtes Ambiente, sorgsam integrierte unaufdringliche Details. Flächenbündige, rahmenlose Fenster und Türen sowie raumhohe Innenschiebetüren und die Grundfarbe Weiß schaffen Transparenz und Weiträumigkeit. Schwerelos scheint auch die Treppe im Raum zu schweben, flankiert von einer Glaswand. Es gibt kuschelige Sitzecken oder wie im Elternschlafzimmer ein mit Glasscheiben in die Wand eingelassener Kamin. Leuchten verstecken sich flächenbündig in den Decken. Sanft abgerundet wurden in den beiden Bädern die Übergänge zwischen Wand und Boden. Als Materialien geben Holz, Glas und Edelstahl den Ton an.

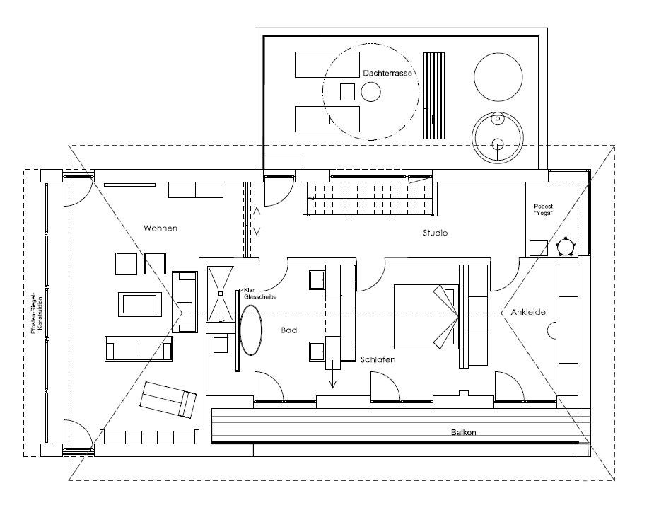
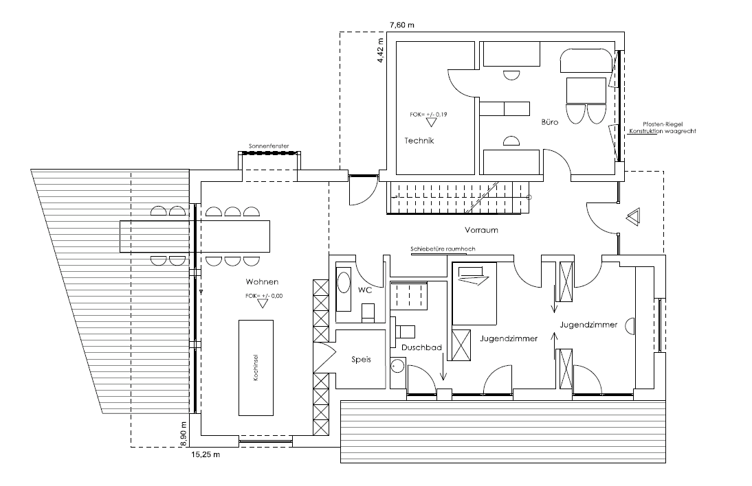
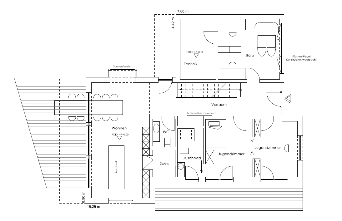
Neues Raumkonzept - Das neue Haus stellt die traditionelle Nutzung der Etagen auf den Kopf. Im Obergeschoss befinden sich nicht nur die Schlafräume, sondern auch das Wohnzimmer mit Panoramafenster, gestaltet als Rückzugsort und Erholungsoase. Dazu dienen eine großzügige Dachterrasse, ein Wellnessbad, ein Wasserspiel und eine Yoga-Ecke. Das oft turbulente Leben einer Familie spielt sich im Erdgeschoss, dem zentralen Treffpunkt des Hauses, ab. Hier befinden sich der offene Koch- und Essbereich, ein WC, ein Gästezimmer und ein Büro.

Wohnen für Generationen - Grundsätzlich lassen sich die beiden Geschosse mit jeweils gut 100 Quadratmetern Nutzfläche in zwei separate Wohneinheiten trennen. Wenn sich die Familie nach dem Auszug der Kinder wieder verkleinert, kann ein Teil des Hauses vermietet oder als Einliegerwohnung genutzt werden. Bereits heute denkt das neue Haus für das Alter mit: Das Erdgeschoss ist barrierefrei, das Obergeschoss verfügt über einen eigenen Eingang. 

Plus-Energiehaus - Auf die Zukunft ausgerichtet ist auch das Energiekonzept: Das neue Haus ist von einer Hochleistungshülle mit einer Holzfaserdämmung umgeben, die höchste Anforderungen an die Energieeffzienz erfüllt. Es lässt sich auch zum Plus-Energie-Haus weiter entwickeln. Das Plus steht für ein Plus an Energie, das durch eine Photovoltaikanlage auf dem flach geneigten Dach produziert wird. Diese versorgt über eine in die Außenwand integrierte Haustankstelle auch ein Elektroauto mit Strom. Die Regnauer-Vitalwand garantiert nicht nur, dass das Gebäude energetisch autark ist, sondern dass außerdem ein ausgeglichenes und gesundes Raumklima herrscht. Die Haustechnik basiert auf einer Luft-Wasser-Wärmepumpe mit Kühlfunktion über die Fußbodenheizung und einer Lüftungsanlage mit Wärme- und Feuchterückgewinnung. Zum Einsatz kommt außerdem die Regnauer-Silence-Decke, für die der Holzhaushersteller den Bundesinnovationspreis für hörbar besseres Wohnen erhalten hat.

Hochmoderne Gebäudeautomation - Zentral steuern lässt sich die gesamte Gebäudeautomation – über Fernbedienungen gemütlich auch vom Bett aus. Möglich sind Steuerungen über Smartphones (Apple/Android) oder  PC. Störungen werden automatisch per SMS oder Mail gemeldet. In die Gebäudeautomation für Jalousien, Licht und Heizung ist auch die Unterhaltungselektronik des Hauses eingebunden. Die sternförmige Auslegung der EDV-Anschlüsse ermöglicht einen strahlenfreien Betrieb der Datennetzwerke. Auch an moderne Sicherheitstechnik wurde gedacht. Seinem Namen wird Ambient+ im Bauherrenzentrum von Regnauer in Seebruck auch durch seine Außenanlagen gerecht: Eine Holzterrasse, viel Naturstein, heimische Bepflanzungen und Wasser als Gestaltungselement garantieren, dass das Haus auch im Garten Pluspunkte sammelt.

Entwurfsverfasser: Dipl.-Ing. Günther Stummvoll, Oberellbögen 70 b, A-6083 Ellbögen (externer Architekt)

Mehr Infos auf regnauer.de.

Ausführung gemäß aktueller Regnauer Bauleistungs- und Ausstattungsbeschreibung. Weitere Informationen auf www.regnauer.de. Abbildungen können Sonderausstattung zeigen. Wir legen großen Wert darauf, Ihr Vitalhaus ganz nach Ihren persönlichen Wünschen zu gestalten. Gemäß Ihren Wünschen und Ihrer Grundstückssituation ergibt sich dann ein exakter Festpreis für Ihr Traumhaus. Daher beziehen sich die Preise auf eine Vitalausstattung ohne spezifische Sonderausstattung.

Voraussetzung   zur   Erlangung   der   Bundesförderung   für   Effiziente   Gebäude   ist   die Einhaltung   der  diesbezüglichen Förderrichtlinien. So wird hierfür unter anderem  die Ausführung einer förderfähigen Haustechnik sowie die entsprechende Ausführung der bauherrenseitigen Leistungen (z.B. Keller und -ausbau) vorausgesetzt. Die Förderrichtlinien sind  auch  Änderungen unterworfen, sodass die Förderfähigkeit jeweils im Einzelfall geprüft und objektspezifisch durch das Förderinstitut bestätigt werden muss. Auch können einzelne Programme ausgesetzt oder verändert werden. Die Regnauer Hausbau GmbH & Co KG kann keine Finanzierungs- oder Förderberatung durchführen.

Hausdaten

Hausart Icon
HausartEinfamilienhaus
Bauweise Icon
BauweiseHolz-Tafelbau
Anzahl Räume Icon
Anzahl Räume6
Baustil Icon
BaustilKubushäuser im Bauhausstil
Fassade Icon
FassadePutz
Außenmaße Icon
Außenmaße15.25 m x 8.9 m
Wohnfläche Icon
Wohnfläche230 m²
Dachform Icon
DachformFlachdach
Energiestandard Icon
EnergiestandardPlusenergiehaus
Immobilientyp Icon
ImmobilientypMusterhaus
Dachneigung Icon
Dachneigung11°
Kniestock Icon
Kniestock2.5 m
Mittlerer U-Wert Icon
Mittlerer U-Wert0.14 W/m²K
Hauseigenschaften Icon
HauseigenschaftenGästezimmer
Hausdämmstoff Icon
HausdämmstoffHolzfaser- und Zellulosedämmstoffe
Heizungsart Icon
HeizungsartWärmepumpe (Luft, Wasser, oder beides)
Pfeil nach unten linksWir schaffen Platz für Ihre Träume

Grundriss

no description
Musterhaus Ambienti+ Grundriss (EG)Wohnfläche EG: 122,11 m²
no description
Musterhaus Ambienti+ Grundriss (OG)Wohnfläche OG: 107,82 m²

Musterhaus Ambienti+

360°Rundgang starten
no description

Unser Team vor Ort

Regnauer HausbauFachberater*in bei Regnauer Hausbau
Default Avatar
Wir beraten Sie gerne!Arrow Icon
House and TreeParksHouse and PinMusterhausHouse on HandAnbieter