1. AnbieterArrow Icon
  2. Regnauer HausbauArrow Icon
  3. Musterhaus Liesl
Slide 1
Location Icon
Slide 2
Location Icon
Slide 3
Location Icon
Slide 4
Location Icon
Slide 5
Location Icon
Slide 6
Location Icon
Slide 7
Location Icon
Slide 8
Location Icon
Slide 9
Location Icon
Slide 10
Location Icon
Slide 11
Location Icon
no description
Regnauer HausbauMusterhaus Liesl
homeKlassische Familienhäuser
livingArea167 m²
energyStandardKFWG-Q
Preis anfragen

Musterhaus Liesl

"Dahoam": Ankommen um zu bleiben.

Im neuen Regnauer Musterhaus „Liesl“ paart sich heimatverbundene Tradition mit zukunftsweisender Technik zu einem echten Zuhause. Das wahre Heim ist „dahoam“.

Schluss mit der Suche. „Liesl“ ist „dahoam“. Mit dem weit auskragenden Dach, dem breiten Flur, der Wohnküche auf der einen Seite und der gemütlichen Stube mit Kachelofen auf der anderen verleiht das neue Musterhaus in Seebruck am Chiemsee wahre Geborgenheit. Der Neubau paart heimatverbundene Gemütlichkeit mit zeitgemäßer Umsetzung und moderner Technik und führt so auf direktem Weg zum perfekten Zuhause.

Von Grund auf nachhaltig und wohngesund fußt das Musterhaus auf einer energetisch optimierten Gebäudehülle in ökologischer Holz-Riegel-Bauweise mit Thermo-Vitaldach und dreifach verglasten Holz-Alu-Fenstern. Die neue Thermo-Vitalwand mit Holzfaserdämmung erfüllt die höchsten Anforderungen – und feiert im Musterhaus Liesl Premiere. Das integrierte Regnauer Plus-Energie-Paket macht Liesl zudem förderfähig.

Das weiß verputzte Erdgeschoss und die gehackte Lärchenholzverschalung im Obergeschoss sowie der weit auskragende Dachüberstand verleihen dem Holzfertighaus die traditionelle Gemütlichkeit Chiemgauer Architektur. Einen modernen Akzent setzt der großzügig verglaste Giebel. Zusammen mit einem umlaufenden Holzbalkon mit filigranem Geländer aus schwarzem Stahl verleiht er dem heimatverbundenen Gebäude aktuelle Leichtigkeit. So verschmilzt Liesl scheinbar gegensätzliche traditionelle und innovative Stilelemente zu einem harmonischen Gesamtkonzept und kombiniert dabei zukunftsweisende Technik mit uriger Gemütlichkeit.

Für energetischen und persönlichen Komfort sorgen unter anderem Frischluftwärmetechnik mit Luft-/Luft-Wärmepumpe und integrierter Trinkwasserwärmepumpe, ein Photovoltaik-Solarsystem sowie der moderne Kaminofen. Die Hausautomation steuert die Beleuchtung ebenso wie die Beschattung und fährt beispielsweise die Jalousien bei Sonne und Wind automatisch hoch bzw. herunter. An das System angebundene Bewegungsmelder, Innen- und Außensirenen sowie Funkempfänger, eine Video-Türsprechanlage und weitere Komponenten erhöhen darüber hinaus die Sicherheit der Bewohner.

Smart-Home-Steuerung, Wellness-Bad und zwei Meter breite Doppeldusche sorgen für Komfort. Innenarchitektonische Details wie die holzvertäfelte Stube mit klassischem Holzofen und bequemer Liegebank sowie der einladende, dem historischen Flez alter Bauernhäuser nachempfundene Eingangsbereich mit Glasfront zum Garten hin oder die gemütliche Eichenholzküche vermitteln das Gefühl, „dahoam“ zu sein. Angekommen, um zu bleiben.

Das Musterhaus Liesl am Regnauer Firmensitz in Seebruck am Chiemsee ist täglich von 10 Uhr bis 18 Uhr für Besucher geöffnet.

Ausführung gemäß aktueller Regnauer Bauleistungs- und Ausstattungsbeschreibung. Weitere Informationen auf www.regnauer.de. Abbildungen können Sonderausstattung zeigen. Wir legen großen Wert darauf, Ihr Vitalhaus ganz nach Ihren persönlichen Wünschen zu gestalten. Gemäß Ihren Wünschen und Ihrer Grundstückssituation ergibt sich dann ein exakter Festpreis für Ihr Traumhaus. Daher beziehen sich die Preise auf eine Vitalausstattung ohne spezifische Sonderausstattung.

Voraussetzung   zur   Erlangung   der   Bundesförderung   für   Effiziente   Gebäude   ist   die Einhaltung   der  diesbezüglichen Förderrichtlinien. So wird hierfür unter anderem  die Ausführung einer förderfähigen Haustechnik sowie die entsprechende Ausführung der bauherrenseitigen Leistungen (z.B. Keller und -ausbau) vorausgesetzt. Die Förderrichtlinien sind  auch  Änderungen unterworfen, sodass die Förderfähigkeit jeweils im Einzelfall geprüft und objektspezifisch durch das Förderinstitut bestätigt werden muss. Auch können einzelne Programme ausgesetzt oder verändert werden. Die Regnauer Hausbau GmbH & Co KG kann keine Finanzierungs- oder Förderberatung durchführen.

Hausdaten

Hausart Icon
HausartEinfamilienhaus
Bauweise Icon
BauweiseHolz-Tafelbau
Anzahl Räume Icon
Anzahl Räume4
Baustil Icon
BaustilKlassische Familienhäuser
Fassade Icon
FassadeHolz, Materialkombination, Putz
Außenmaße Icon
Außenmaße12.2 m x 9.3 m
Wohnfläche Icon
Wohnfläche167 m²
Dachform Icon
DachformSattel-/Giebeldach
Etagen Icon
Etagen2
Energiestandard Icon
EnergiestandardKFWG-Q
Immobilientyp Icon
ImmobilientypMusterhaus
Dachneigung Icon
Dachneigung20°
Kniestock Icon
Kniestock2.52 m
Mittlerer U-Wert Icon
Mittlerer U-Wert0.14 W/m²K
Hauseigenschaften Icon
HauseigenschaftenGästezimmer, Terasse, Balkon
Hausdämmstoff Icon
HausdämmstoffHolzfaser- und Zellulosedämmstoffe
Heizungsart Icon
HeizungsartLüftungsheizung
Pfeil nach unten linksWir schaffen Platz für Ihre Träume

Grundriss

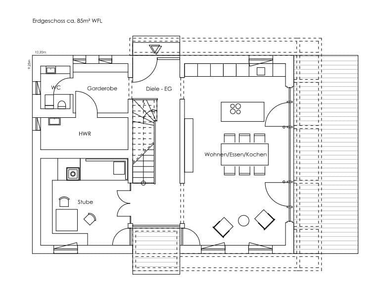
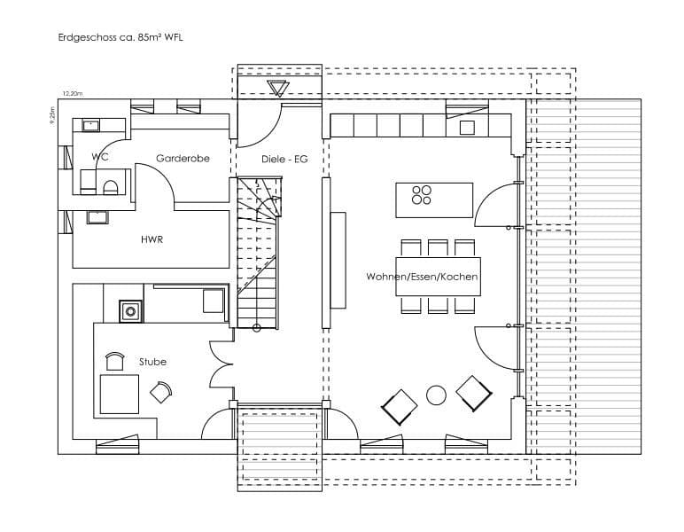
Erdgeschoss Musterhaus Liesl
Musterhaus Liesl Grundriss (EG)Wohnfläche EG: 85 m²
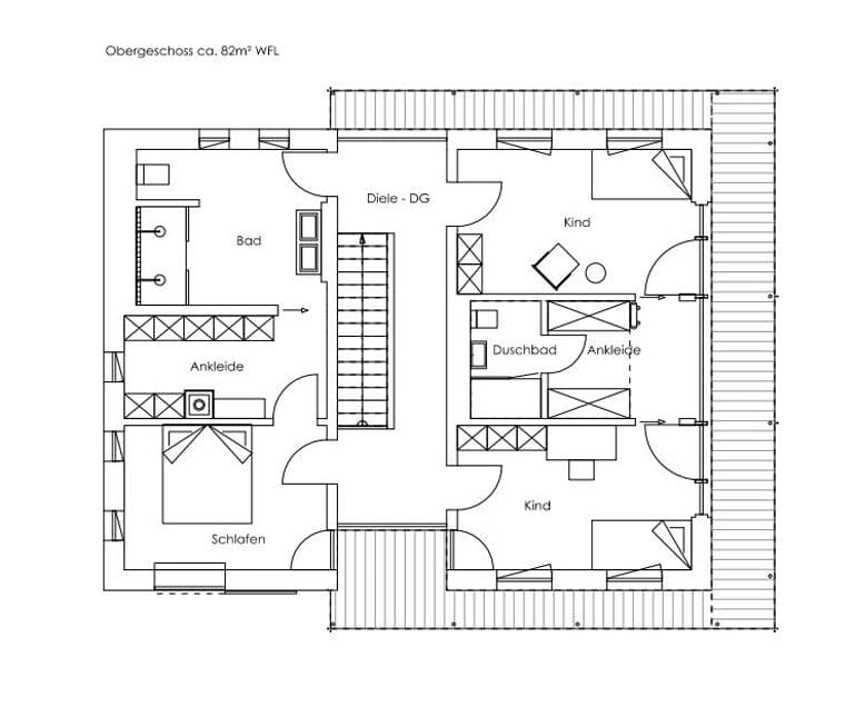
Obergeschoss Musterhaus Liesl
Musterhaus Liesl Grundriss (OG)Wohnfläche OG: 82 m²

Musterhaus Liesl

360°Rundgang starten
no description

Unser Team vor Ort

Regnauer HausbauFachberater*in bei Regnauer Hausbau
Default Avatar
Wir beraten Sie gerne!Arrow Icon
House and TreeParksHouse and PinMusterhausHouse on HandAnbieter