1. AnbieterArrow Icon
  2. FischerHausArrow Icon
  3. FischerHaus - Modern 190
Slide 1
Slide 2
Slide 3
Slide 4
Slide 5
Slide 6
Slide 7
Slide 8
FischerHaus-Logo-2023.jpg
FischerHausFischerHaus - Modern 190
homeKlassische Familienhäuser
livingArea190 m²
energyStandardEffizienzhaus 40 Plus
Preis anfragen
Katalog bestellen

FischerHaus - Modern 190

Ein Wohnkonzept, das doppelt glücklich macht .

Das Leben flexibel halten!

Wer heute schon an morgen denkt, der macht auf jeden Fall alles richtig. Denn mit einer Einliegerwohnung im Haus ist man für alle Fälle gut gerüstet und profitiert doppelt: Heute kann man gut vermieten, morgen braucht man vielleicht einen Arbeitsplatz vor Ort und übermorgen möchte man die Eltern bei sich haben, um sich fürsorglich zu kümmern. Oder Sie haben womöglich ein Aupair für die Kinder? Ganz egal, welchen Ursprungsgedanken Sie verfolgen: Mit der Einliegerwohnung von FischerHaus sind Sie flexibel und können dem Leben in jeder Situation entspannt begegnen.

 

Das macht doppelt glücklich und sorglos. Heute, morgen und übermorgen.

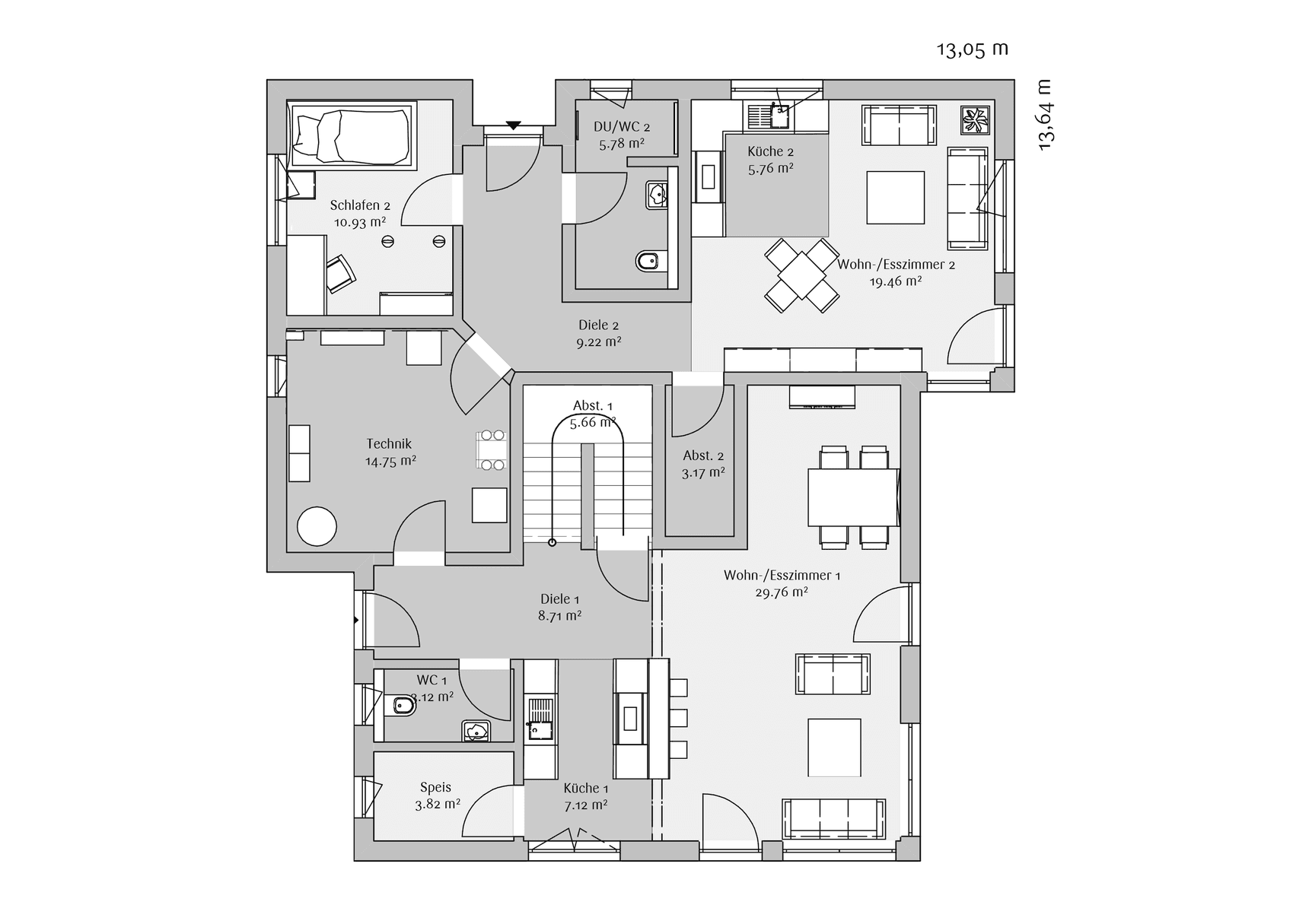
Familienhaus mit Einliegerwohnung

Ein Beispiel für gelungenes, gelebtes Mehrgenerationen-Wohnen ist das FischerHaus der Familie Philipp. Das Haus wurde als Zwei-Familienhaus gebaut, mit einer Einliegerwohnung im Erdgeschoss und einem Haupthaus für die Familie. Durch die Aufteilung in zwei Wohneinheiten konnten die Bauherren von einer doppelten Förderung der KfW-Bank profitieren, denn die staatliche Förderung in Form von günstigen Krediten und Tilgungszuschüssen gibt es für jede Wohnung separat. Da FischerHaus standardmäßig besonders sparsame Effizienzhäuser 40 baut, ist diese finanzielle Unterstützung jedem Bauherrn sicher.

Hausdaten

Hausart Icon
HausartEinfamilienhaus
Bauweise Icon
BauweiseHolz-Tafelbau
Anzahl Räume Icon
Anzahl Räume13
Baustil Icon
BaustilKlassische Familienhäuser
Fassade Icon
FassadePutz
Außenmaße Icon
Außenmaße13.05 m x 13.64 m
Wohnfläche Icon
Wohnfläche189.79 m²
Dachform Icon
DachformSattel-/Giebeldach
Energiestandard Icon
EnergiestandardEffizienzhaus 40 Plus
Pfeil nach unten linksWir schaffen Platz für Ihre Träume

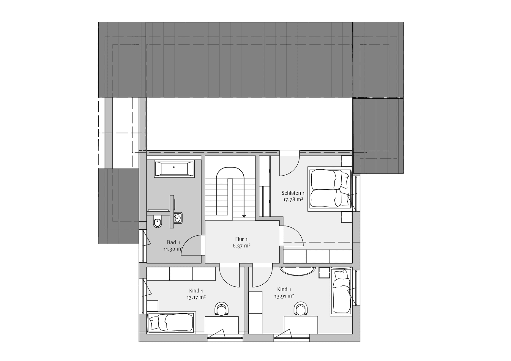
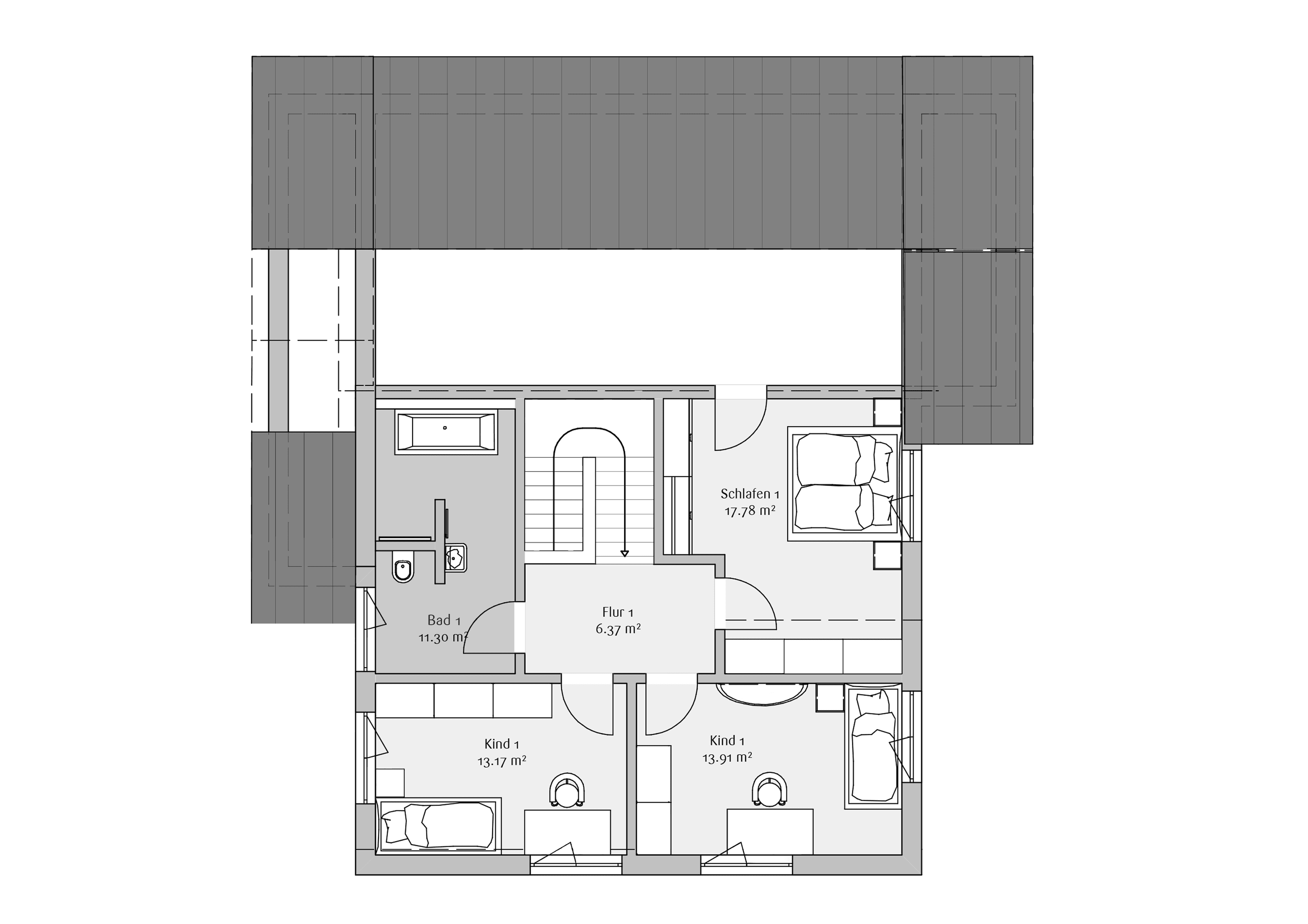
Grundriss

no description
FischerHaus - Modern 190 Grundriss (EG)
no description
FischerHaus - Modern 190 Grundriss (OG)

Kataloge

FischerHaus: Hauskatalog
FischerHaus

FischerHaus: Hauskatalog


House and TreeParksHouse and PinHäuser liveHouse on HandAnbieter