1. AnbieterArrow Icon
  2. Regnauer HausbauArrow Icon
  3. Vitalhaus Lautrach
Slide 1
Slide 2
Slide 3
Slide 4
Slide 5
Slide 6
Slide 7
Slide 8
no description
Regnauer HausbauVitalhaus Lautrach
homeSchwedenhäuser
livingArea144 m²
energyStandardKFWG-Q
Preis anfragen
Katalog bestellen

Vitalhaus Lautrach

Ein Regnauer Vitalhaus, das seinen gesunden Kern aus natürlichem Holz souverän zeigt.

Wer Kinder hat, wünscht sich, dass sie in einer gesunden Umgebung aufwachsen. Deshalb entschied sich eine junge Familie in Bayern bewusst für ein Holzhaus mit Holzfaserdämmung.

Dunkle Tonziegel, eine graue Schalung aus Holz, weiße Fenster. Dazu ein mit 26 Grad sanft geneigtes Satteldach, das als weit ausladendes Vordach ausläuft und an der Unterseite weiß angestrichen ist: Dieses Haus könnte auch in Finnland stehen. So sehr entspricht es dem Traum vom Wohnen im nordischen Wohnstil. Die darin lebende junge Familie entschied sich schon der Kinder wegen bewusst für ein ökologisches Vitalhaus in einer Massivholz-Riegel-Konstruktion. Auch die Außenhaut wünschten sich die jungen Eltern aus Holz. Und als Dämmstoff wählten sie Holzfasern, die als nachwachsendes Baumaterial absolut umweltverträglich und biologisch abbaubar sind.

Vor dem Wohnzimmer erstreckt sich die überdachte Terrasse bzw. ein über die gesamte Giebelfront durchlaufender Balkon: der Lieblingsplatz der Familie an sonnigen Tagen. Konkurrenz bekommt dieser allerdings das ganze Jahr über von dem zweiten Lieblingsplatz der Familie, dem gemütlichen Solariumfenster, das die Ostfassade im Wohnraum ziert. Dieser erstreckt sich über die gesamte Hausbreite und schließt auch eine gemütliche Küche mit Kochinsel und einen großzügigen Essbereich ein. Mitten im Raum steht ein Schwedenofen und sorgt auf Wunsch im Winter für kuschelige Nordlichtromantik.

Die Basiswärme garantiert  eine Luft-/Wasser-Wärmepumpe. Eine 4,1 m2 große Solaranlage mit 300l Solarboiler deckt die Warmwasserversorgung ab. Eine zentrale Lüftungsanlage garantiert, dass im gesamten Haus stets frische Luft herrscht, ohne dass von Hand gelüftet werden muss.

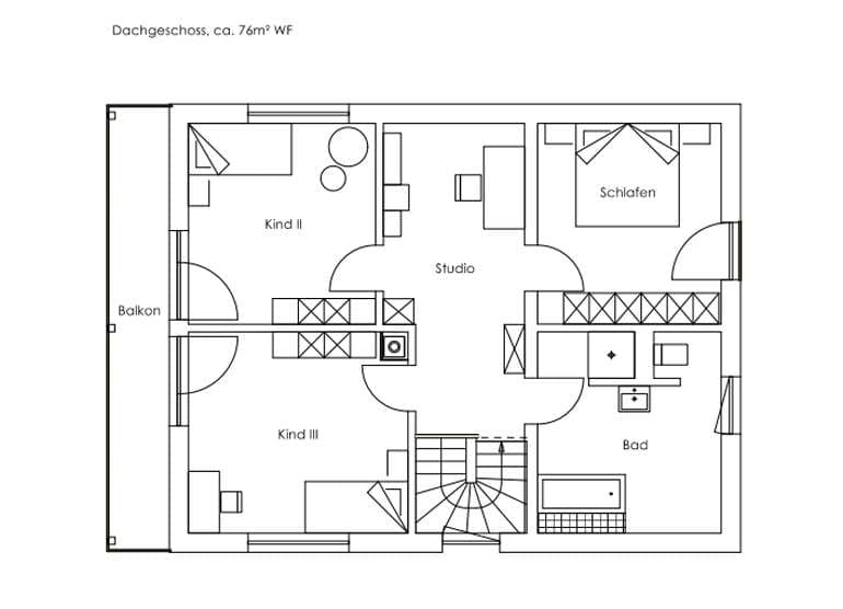
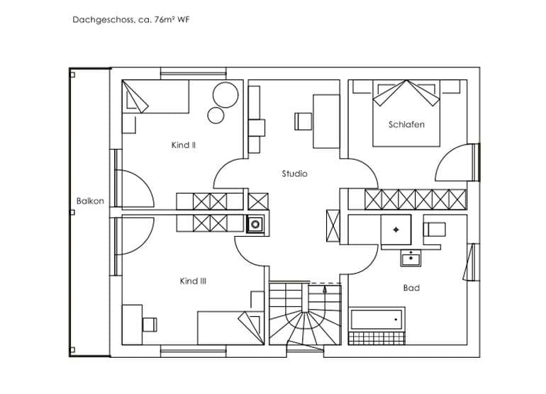
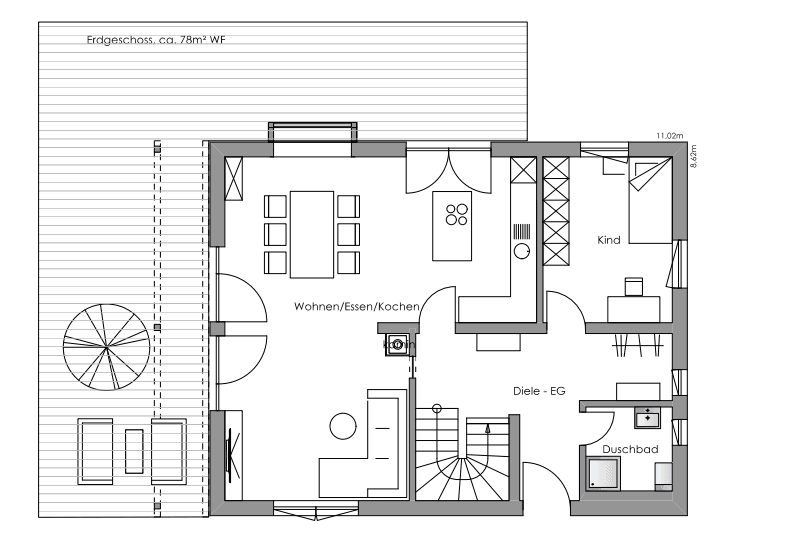
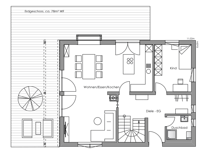
Insgesamt bietet das Anwesen der vierköpfigen Familie 137 Quadratmeter Wohnfläche auf zwei Ebenen. Dazu kommt ein Keller, in dem die Haustechnik und Abstellräume Platz finden. Im Erdgeschoss befinden sich neben dem Wohnbereich noch die Eingangszone und ein Gästebad sowie ein zusätzliches Kinderzimmer. Von der Diele aus führt eine Holztreppe sowohl in den Keller als auch ins Obergeschoss. Neben den Schlafzimmern der Eltern und der Kinder ist hier auch noch ein großzügiges Badezimmer untergebracht. 

Mehr Infos auf regnauer.de.

Ausführung gemäß aktueller Regnauer Bauleistungs- und Ausstattungsbeschreibung. Weitere Informationen auf www.regnauer.de. Abbildungen können Sonderausstattung zeigen. Wir legen großen Wert darauf, Ihr Vitalhaus ganz nach Ihren persönlichen Wünschen zu gestalten. Gemäß Ihren Wünschen und Ihrer Grundstückssituation ergibt sich dann ein exakter Festpreis für Ihr Traumhaus. Daher beziehen sich die Preise auf eine Vitalausstattung ohne spezifische Sonderausstattung.

Voraussetzung   zur   Erlangung   der   Bundesförderung   für   Effiziente   Gebäude   ist   die Einhaltung   der  diesbezüglichen Förderrichtlinien. So wird hierfür unter anderem  die Ausführung einer förderfähigen Haustechnik sowie die entsprechende Ausführung der bauherrenseitigen Leistungen (z.B. Keller und -ausbau) vorausgesetzt. Die Förderrichtlinien sind  auch  Änderungen unterworfen, sodass die Förderfähigkeit jeweils im Einzelfall geprüft und objektspezifisch durch das Förderinstitut bestätigt werden muss. Auch können einzelne Programme ausgesetzt oder verändert werden. Die Regnauer Hausbau GmbH & Co KG kann keine Finanzierungs- oder Förderberatung durchführen.

Hausdaten

Hausart Icon
HausartEinfamilienhaus
Bauweise Icon
BauweiseHolz-Tafelbau
Anzahl Räume Icon
Anzahl Räume4
Baustil Icon
BaustilSchwedenhäuser
Fassade Icon
FassadeHolz
Außenmaße Icon
Außenmaße11 m x 8.6 m
Wohnfläche Icon
Wohnfläche144 m²
Dachform Icon
DachformSattel-/Giebeldach
Etagen Icon
Etagen2
Energiestandard Icon
EnergiestandardKFWG-Q
Immobilientyp Icon
ImmobilientypKundenhaus
Dachneigung Icon
Dachneigung26°
Kniestock Icon
Kniestock1.45 m
Mittlerer U-Wert Icon
Mittlerer U-Wert0.15 W/m²K
Hauseigenschaften Icon
HauseigenschaftenTerasse
Hausdämmstoff Icon
HausdämmstoffHolzfaser- und Zellulosedämmstoffe
Heizungsart Icon
HeizungsartWärmepumpe (Luft, Wasser, oder beides)
Pfeil nach unten linksWir schaffen Platz für Ihre Träume

Grundriss

eg_lautrach.png
Vitalhaus Lautrach Grundriss (EG)Wohnfläche EG: 74 m²
no description
Vitalhaus Lautrach Grundriss (OG)

Unser Team vor Ort

Regnauer HausbauFachberater*in bei Regnauer Hausbau
Default Avatar
Wir beraten Sie gerne!Arrow Icon

Kataloge

Regnauer: Hauskatalog
Regnauer Hausbau

Regnauer: Hauskatalog


House and TreeParksHouse and PinMusterhausHouse on HandAnbieter