1. AnbieterArrow Icon
  2. Regnauer HausbauArrow Icon
  3. Vitalhaus Ingolstadt
Slide 1
Slide 2
Slide 3
Slide 4
Slide 5
Slide 6
Slide 7
Slide 8
Slide 9
no description
Regnauer HausbauVitalhaus Ingolstadt
homeStadtvillen
livingArea180 m²
energyStandardKFWG-Q
Preis anfragen
Katalog bestellen

Vitalhaus Ingolstadt

In Funktion und Design ein ganz besonderes Haus.

Außen und innen, in Funktion und Design ein ganz besonderes Haus: Ein fast quadratischer Baukörper mit zwei Vollgeschossen und Walmdach, das durch die nahezu gleichen Fassadenlängen optisch den Charakter eines Zeltdachs annimmt. Zentrale gestalterische Elemente sind Symmetrie, Offenheit und viel natürliches Licht, das vor allem über die Südseite in die Räume eindringt. Die Fenstergrafik der Fassaden ist stilprägend für das ganze Haus. In der Formensprache klar, für die Belichtungsfunktion ausgeklügelt und in Kombination mit modernen partiellen Holzverschalungen hochwertig im Anspruch. Schon beim Betreten dieses Vitalhauses reicht der Blick von der einladenden Diele aus entlang der geradläufigen Treppe bis in den Wohn- und Essbereich. Das Homeoffice ist dabei so in den Grundriss integriert, dass das Wohnen privat bleibt. Der Luftraum zur Galerie im Obergeschoss gibt zusätzliches Licht und ein weites Raumgefühl. Im Obergeschoss erschließt die luftige Diele zwei gleich große Kinderzimmer, ein geräumiges Schlafzimmer und zwei Bäder.

Ausführung gemäß aktueller Regnauer Bauleistungs- und Ausstattungsbeschreibung. Weitere Informationen auf www.regnauer.de. Abbildungen können Sonderausstattung zeigen. Wir legen großen Wert darauf, Ihr Vitalhaus ganz nach Ihren persönlichen Wünschen zu gestalten. Gemäß Ihren Wünschen und Ihrer Grundstückssituation ergibt sich dann ein exakter Festpreis für Ihr Traumhaus. Daher beziehen sich die Preise auf eine Vitalausstattung ohne spezifische Sonderausstattung.

Voraussetzung   zur   Erlangung   der   Bundesförderung   für   Effiziente   Gebäude   ist   die Einhaltung   der  diesbezüglichen Förderrichtlinien. So wird hierfür unter anderem  die Ausführung einer förderfähigen Haustechnik sowie die entsprechende Ausführung der bauherrenseitigen Leistungen (z.B. Keller und -ausbau) vorausgesetzt. Die Förderrichtlinien sind  auch  Änderungen unterworfen, sodass die Förderfähigkeit jeweils im Einzelfall geprüft und objektspezifisch durch das Förderinstitut bestätigt werden muss. Auch können einzelne Programme ausgesetzt oder verändert werden. Die Regnauer Hausbau GmbH & Co KG kann keine Finanzierungs- oder Förderberatung durchführen.

Hausdaten

Hausart Icon
HausartEinfamilienhaus
Bauweise Icon
BauweiseHolz-Tafelbau
Anzahl Räume Icon
Anzahl Räume4
Baustil Icon
BaustilStadtvillen
Fassade Icon
FassadePutz
Außenmaße Icon
Außenmaße11.5 m x 10.15 m
Wohnfläche Icon
Wohnfläche180 m²
Dachform Icon
DachformWalm-/Zeltdach
Etagen Icon
Etagen2
Energiestandard Icon
EnergiestandardKFWG-Q
Immobilientyp Icon
ImmobilientypKundenhaus
Dachneigung Icon
Dachneigung21°
Kniestock Icon
Kniestock2.6 m
Mittlerer U-Wert Icon
Mittlerer U-Wert0.14 W/m²K
Hauseigenschaften Icon
HauseigenschaftenTerasse, Viel Glas
Hausdämmstoff Icon
HausdämmstoffHolzfaser- und Zellulosedämmstoffe
Heizungsart Icon
HeizungsartWärmepumpe (Luft, Wasser, oder beides)
Pfeil nach unten linksWir schaffen Platz für Ihre Träume

Grundriss

eg_ingolstadt.png
Vitalhaus Ingolstadt Grundriss (EG)Wohnfläche EG: 93 m²
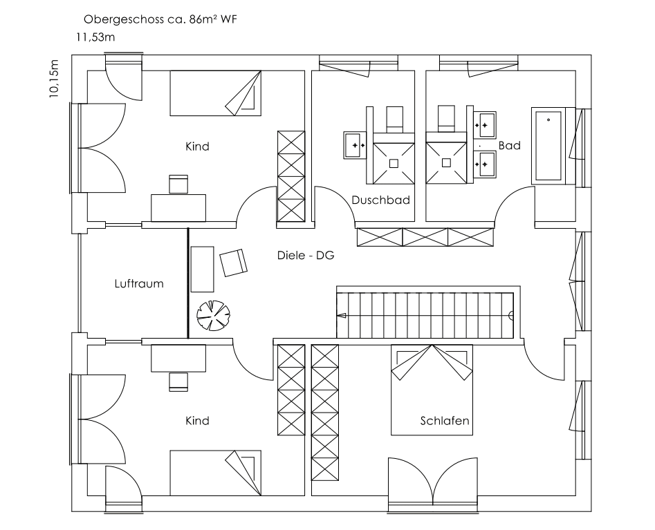
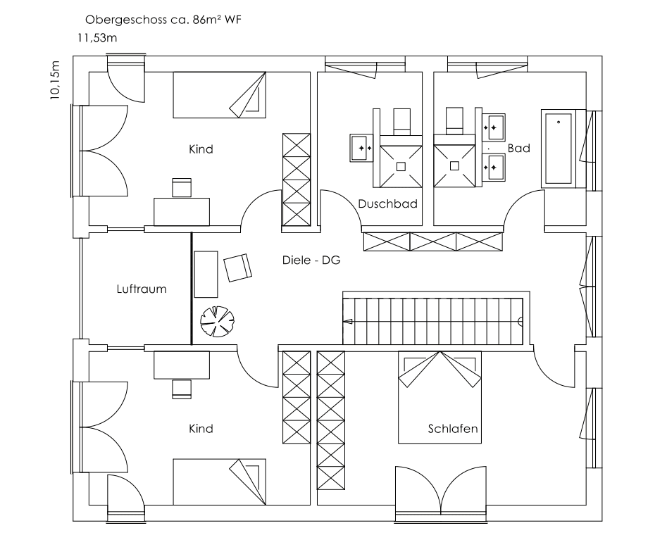
dg_ingolstadt.png
Vitalhaus Ingolstadt Grundriss (DG)Wohnfläche DG: 87 m²

Unser Team vor Ort

Regnauer HausbauFachberater*in bei Regnauer Hausbau
Default Avatar
Wir beraten Sie gerne!Arrow Icon

Kataloge

Regnauer: Hauskatalog
Regnauer Hausbau

Regnauer: Hauskatalog


House and TreeParksHouse and PinMusterhausHouse on HandAnbieter