1. AnbieterArrow Icon
  2. Sonnleitner HolzbauwerkeArrow Icon
  3. Haus 'St. Johann'
Slide 1
Slide 2
Slide 3
Slide 4
Slide 5
Sonnleitner_Logo_2.jpg
Sonnleitner HolzbauwerkeHaus 'St. Johann'
homeLandhäuser
livingArea127 m²
energyStandardEffizienzhaus 55
Preis anfragen

Haus 'St. Johann'

Aus der Tradition geboren

Mit dem Referenzhaus "St. Johann" wurde ein Haus mit ländlicher Atmosphäre und modernem Wohlfühlcharakter geschaffen. Das mit mineralischem Strukturputz versehene Erdgeschoss in Kombination mit der Lärchenfassade des Obergeschosses hat zweierlei Vorteile aufzuweisen, denn dieser harmonische Materialmix schützt einerseits optimal vor Witterungseinflüssen und unterstreicht andererseits den zeitlos schönen Voralpenstil. Diese Kombination ist seit Jahren sehr beliebt und so verwundert es nicht, dass das Haus „St. Johann“ mehrfach ausgezeichnet wurde.

Durch die weit nach unten gezogenen und um die Ecke gebauten großen Fenster wird der Wohn-Essraum optimal mit Licht durchflutet und ermöglicht helles Wohnen ohne künstliche Beleuchtung.

Durch den 1,46 m hohen Kniestock wirken alle Obergeschossräume sehr gemütlich und ermöglichen eine sinnvolle Raumnutzung. Die von Sonnleitner maßgefertigten Massivholzmöbel sind multifunktional und vervollkommnen das harmonische Gesamterscheinungsbild.

Besonders schön anzusehen ist das sichtbare Balkenlager mit weiß abgesetzten Zwischenflächen. Hierdurch wirken Räume sehr einladend und freundlich.

Hausdaten

Hausart Icon
HausartEinfamilienhaus
Bauweise Icon
BauweiseMassivholzkonstruktion
Anzahl Räume Icon
Anzahl Räume4
Baustil Icon
BaustilLandhäuser
Fassade Icon
FassadeHolz, Materialkombination, Putz
Außenmaße Icon
Außenmaße10 m x 85 m
Wohnfläche Icon
Wohnfläche127 m²
Dachform Icon
DachformSattel-/Giebeldach
Energiestandard Icon
EnergiestandardEffizienzhaus 55
Dachneigung Icon
Dachneigung27°
Kniestock Icon
Kniestock1.46 m
Hauseigenschaften Icon
HauseigenschaftenTerasse, Balkon
Hausdämmstoff Icon
HausdämmstoffHolzfaser- und Zellulosedämmstoffe
Heizungsart Icon
HeizungsartWärmepumpe (Luft, Wasser, oder beides)
Pfeil nach unten linksWir schaffen Platz für Ihre Träume

Grundriss

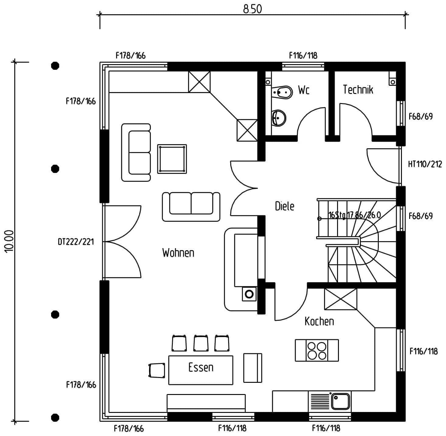
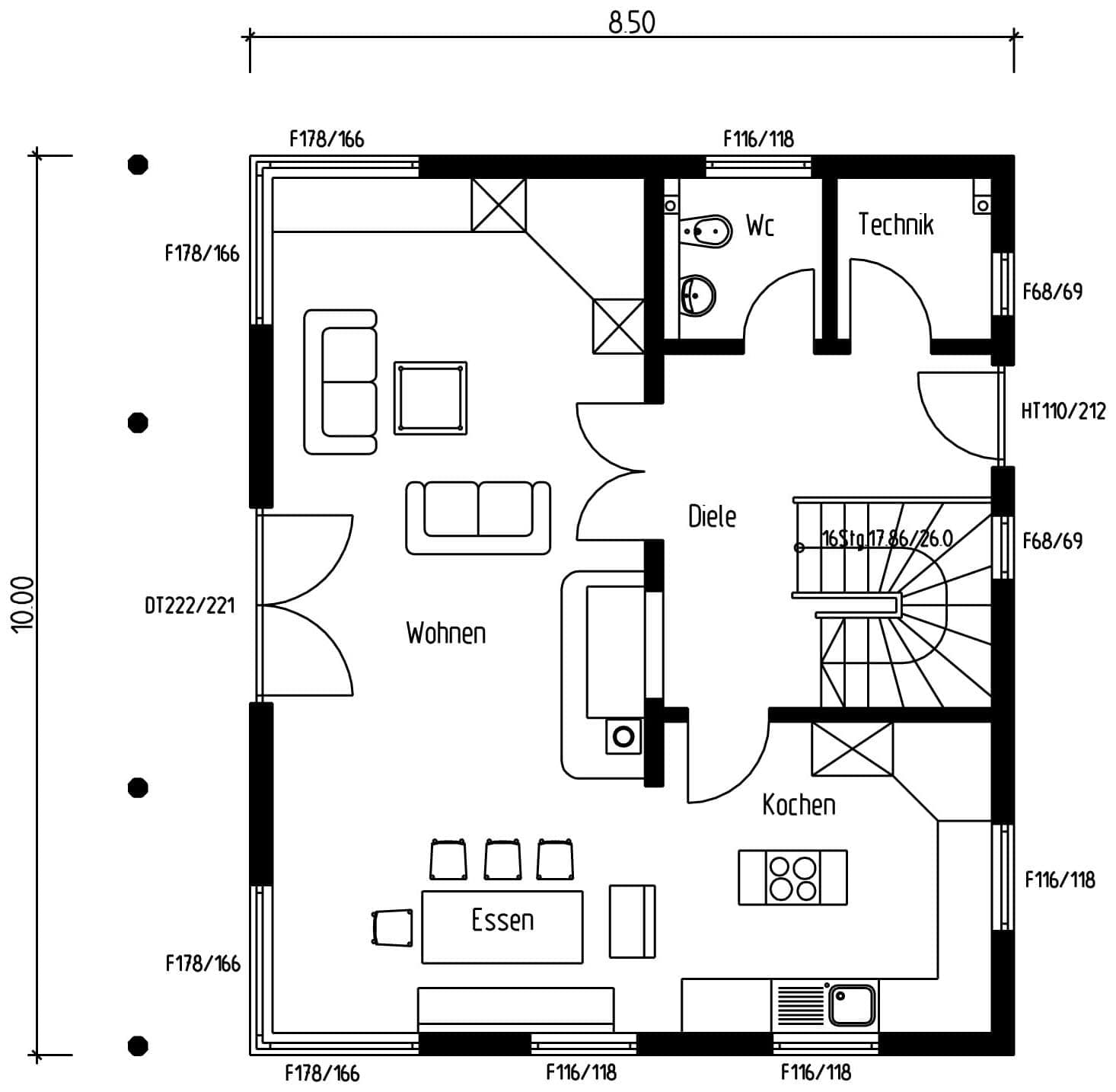
Der Grundriss des EGs des traditionellen Musterhauses aus Holz mit Mischfassade aus Strukturputz und Lärchenholz
Haus 'St. Johann' Grundriss (EG)Wohnfläche EG: 68,89 m²
Der Grundriss des OGs des traditionellen Musterhauses aus Holz mit Mischfassade aus Strukturputz und Lärchenholz
Haus 'St. Johann' Grundriss (OG)Wohnfläche OG: 58,11 m²
House and TreeParksHouse and PinMusterhausHouse on HandAnbieter