1. AnbieterArrow Icon
  2. Sonnleitner HolzbauwerkeArrow Icon
  3. Kundenhaus 'Gwandtner'
Slide 1
Slide 2
Slide 3
Slide 4
Slide 5
Slide 6
Slide 7
Sonnleitner_Logo_2.jpg
Sonnleitner HolzbauwerkeKundenhaus 'Gwandtner'
homeKubushäuser im Bauhausstil
livingArea289 m²
energyStandardEffizienzhaus 55
Preis anfragen
Katalog bestellen

Kundenhaus 'Gwandtner'

Monolith in Holz

Dreigeschossig am Hang – kein Zweifel, dieses frei geplante Einfamilienhaus mit Einliegerwohnung ist ein veritabler Blickfang, denn der konsequente Holzkubus verzichtet auf jegliches Ornament und ist ein Bekenntnis zur puren Funktion.

Zugegeben, es ist ein sehr mutiger Entwurf, denn verzichtet wird auf alles, was in Sachen Hausbau mit Tradition zusammenhängt. Der Baukörper steht am Hang wie ein Monolith, schnörkellos, reduziert auf das Wesentliche. Ein Wohnkubus, schlicht in der Form, jedoch von starker Ausdruckskraft. Mit Flachdach, einem strengen Fensterdesign und in einer Holz-Optik, die nicht vorgesetzt als Fassadenelement wirkt, sondern Bestandteil der Konstruktion ist. Innen weiß gehalten und mit Gipskartonplatten verkleidet, außen mit Massivholzbohlen aus Lärche und mit einer Längs-Fräsung versehen. 

 

Das talseits freigestellte und verputzte Untergeschoss, für Wohnzwecke nutzbar (43 m2), ist von der Nordseite zugänglich, auf der sich auch der Haupteingang des Hauses befindet. Am Hang findet sich eine große, aufgeständerte Terrasse (57 m2), sodass die Bewohner Aussicht und Natur voll genießen können. Letztere ist zugänglich vom Ess- und Küchenbereich. Ein formal witziges Detail: Das „Auge“ des Hauses, ein Erker-Fenster mit breitem Putzrahmen, inmitten der Lamellen-Fassade.

 

Die ca. 163 m2 Gesamtwohnfläche auf beiden Ebenen sind ausgelegt für eine vierköpfige Familie. Das Erdgeschoss präsentiert sich weitgehend offen, mit kleinem Arbeitszimmer, großer Eingangsdiele und einer offenen Küche mit frei aufgestelltem Küchenblock. Alles formal stimmig und praktisch gelöst, z. B. mit zwei Schiebetüren als Verbindung zu Diele und Speisekammer. Die einzigen Farbtupfer: Bunte Design-Stühle als Kontrast zu den weißen Hochglanz-Fronten der Küche und der polierten, schwarzen Granitplatte des Blocks. Große Glas-Schiebetüren stellen die Verbindung zur Terrasse dar, sodass im Sommer Innen und Außen nahtlos verschmelzen.

 

Eine formschöne, geradläufige Holztreppe mit dreiteiligem Glaselement als Absturzsicherung führt auf die zweite Wohnebene. Zwei Kinderzimmer mit separatem Bad, der Elterntrakt mit Bad, sowie ein Abstellraum runden das Raumangebot ab. Auch hier ein ungewöhnlich pfiffiges Detail: Elternzimmer und Bad sind aus einem Guss, nur getrennt durch eine mittige, raumhohe Glaswand, mit Öffnungen auf beiden Seiten. Das Bad ist somit nicht mehr als klassischer Nassraum gestaltet, sondern hier als Bestandteil des Wohngeschehens.

Weitere Infos und Impressionen

Hausdaten

Hausart Icon
HausartEinfamilienhaus
Bauweise Icon
BauweiseMassivholzkonstruktion
Anzahl Räume Icon
Anzahl Räume10
Baustil Icon
BaustilKubushäuser im Bauhausstil
Fassade Icon
FassadeHolz, Materialkombination, Putz
Außenmaße Icon
Außenmaße11.3 m x 8.47 m
Wohnfläche Icon
Wohnfläche289 m²
Dachform Icon
DachformFlachdach
Energiestandard Icon
EnergiestandardEffizienzhaus 55
Immobilientyp Icon
ImmobilientypKundenhaus
Hauseigenschaften Icon
HauseigenschaftenBalkon, Einliegerwohnung, Terasse
Hausdämmstoff Icon
HausdämmstoffHolzfaser- und Zellulosedämmstoffe
Heizungsart Icon
HeizungsartLüftungsheizung
Pfeil nach unten linksWir schaffen Platz für Ihre Träume

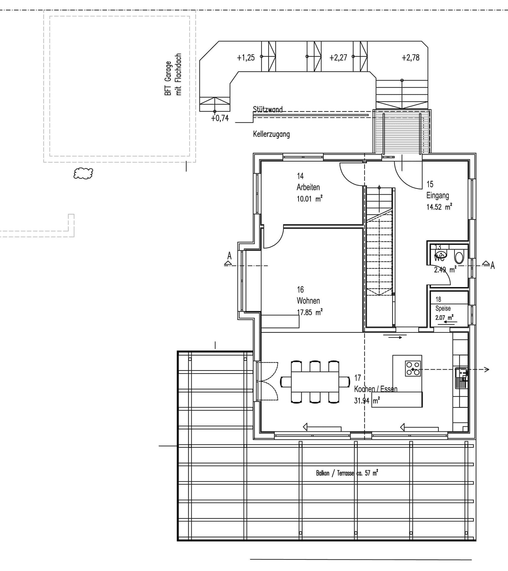
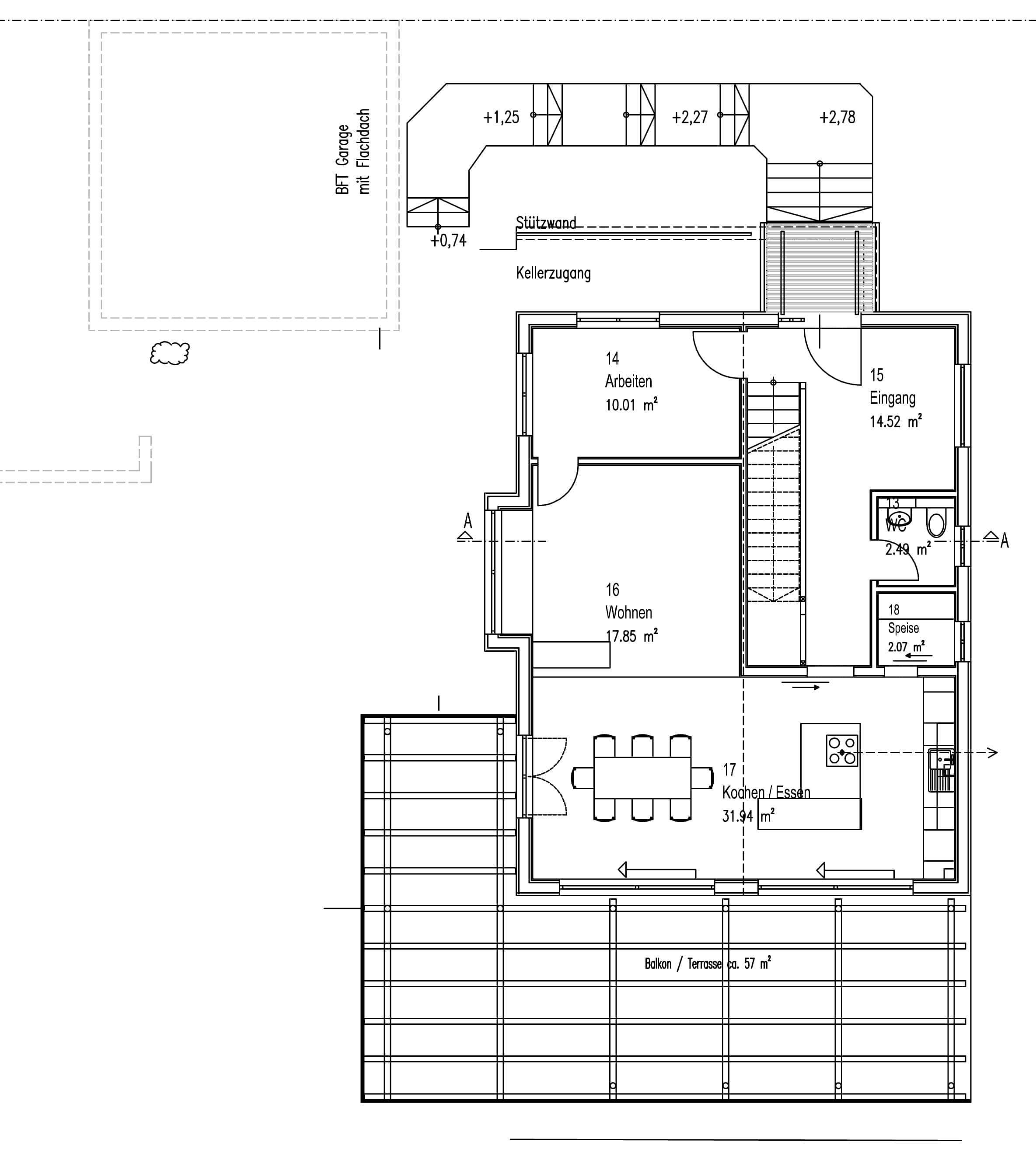
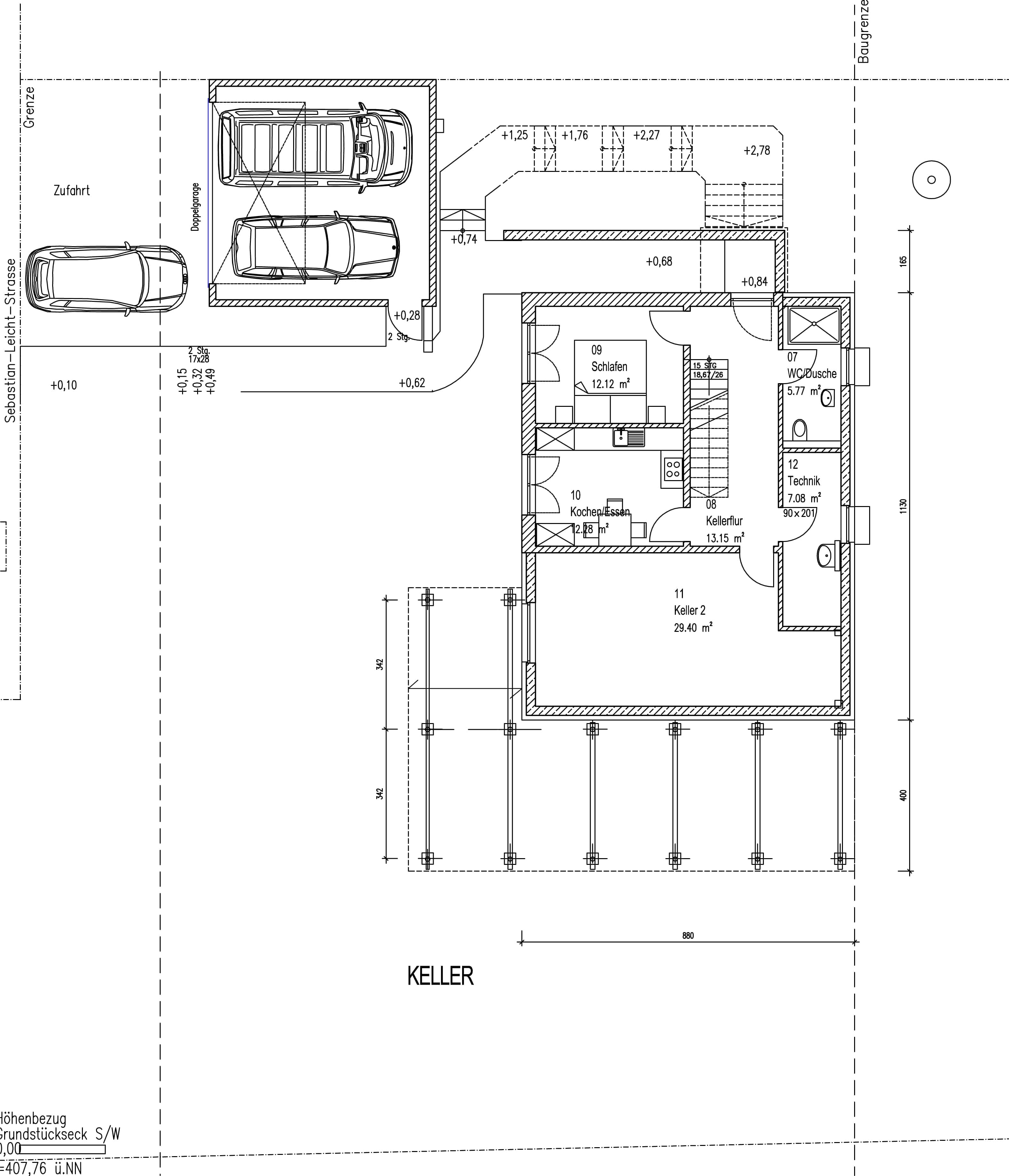
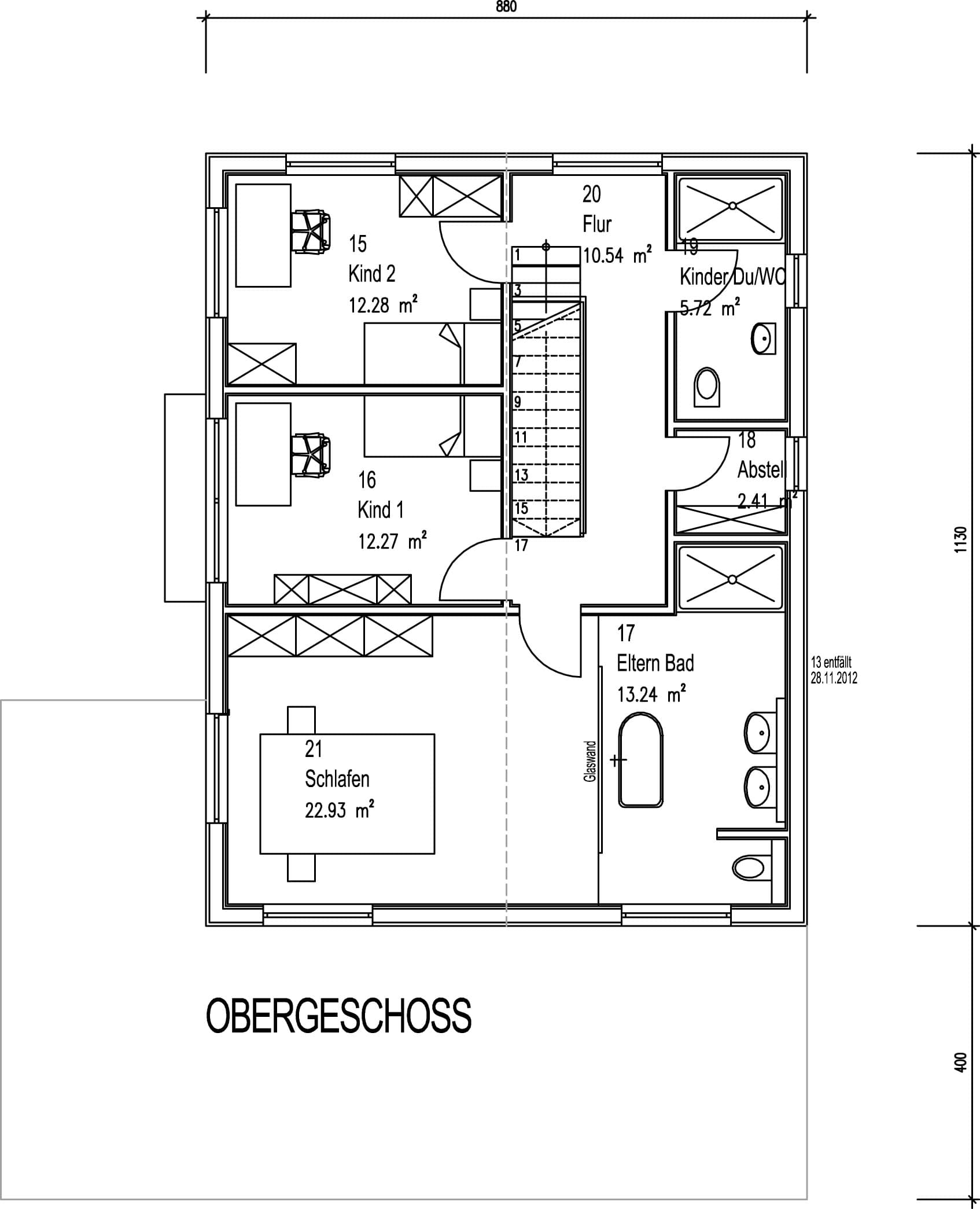
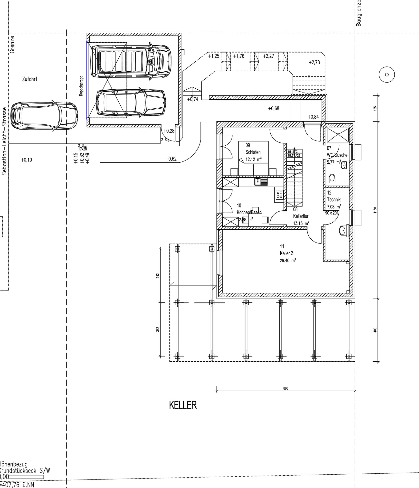
Grundriss

Der Grundriss des Kellers des Modernen Holzkubuses am Hang mit Holzfassade
Kundenhaus 'Gwandtner' Grundriss (Keller)Wohnfläche KG: 71,67 m²
Der Grundriss des EGs des Modernen Holzkubuses am Hang mit Holzfassade
Kundenhaus 'Gwandtner' Grundriss (EG)Wohnfläche EG: 83,11 m²
Der Grundriss des OGs des Modernen Holzkubuses am Hang mit Holzfassade
Kundenhaus 'Gwandtner' Grundriss (OG)Wohnfläche OG: 79,39 m²
House and TreeParksHouse and PinMusterhausHouse on HandAnbieter