1. AnbieterArrow Icon
  2. Sonnleitner HolzbauwerkeArrow Icon
  3. Kundenhaus 'Stefani'
Slide 1
Slide 2
Slide 3
Slide 4
Slide 5
Slide 6
Sonnleitner_Logo_2.jpg
Sonnleitner HolzbauwerkeKundenhaus 'Stefani'
homeStadtvillen
livingArea195 m²
energyStandardEffizienzhaus 55
Preis anfragen
Katalog bestellen

Kundenhaus 'Stefani'

Das Haus im Grünen hat nach wie vor viele Anhänger, doch bereits seit Jahren geht der Trend eindeutig zurück in die Stadt. Der Grund, warum alle Haushersteller sich intensiv auch mit dem Stadthaus beschäftigen.

Mit zwei Vollgeschossen, Zeltdach (26 Grad), anknüpfend an städtische Villen-Traditionen, mit quadratischen Außenabmessungen (11 x 11 m) und sehr kompakt gehalten, fügt sich dieses Einfamilienhaus perfekt als Stadtvilla in das moderne Baugebiet ein. Ein echter Grundstückssparer mit reichlich Wohnfläche (195 m2), der zweifellos auch gut in das Einzugsgebiet einer mittleren Großstadt passen würde.

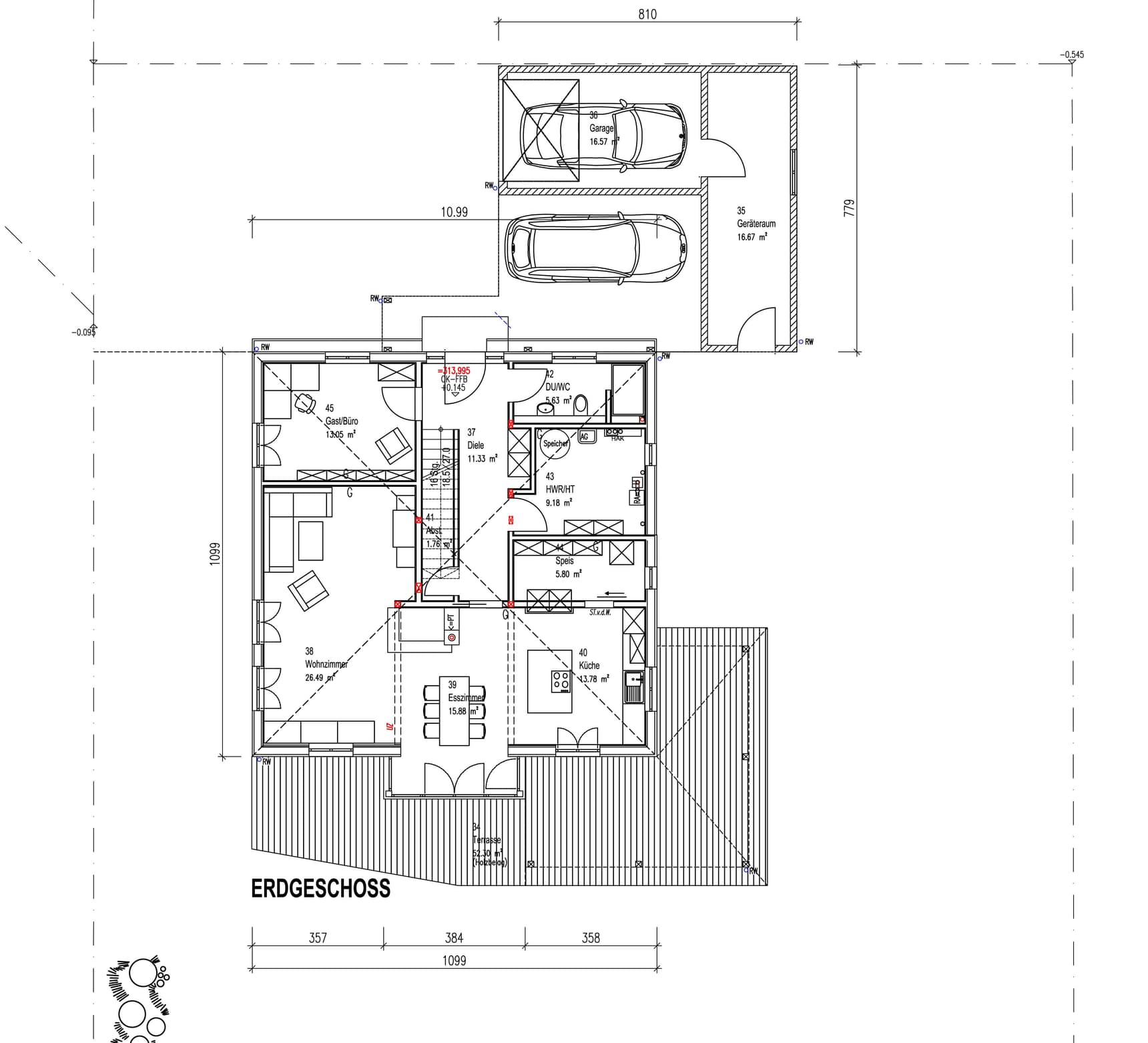
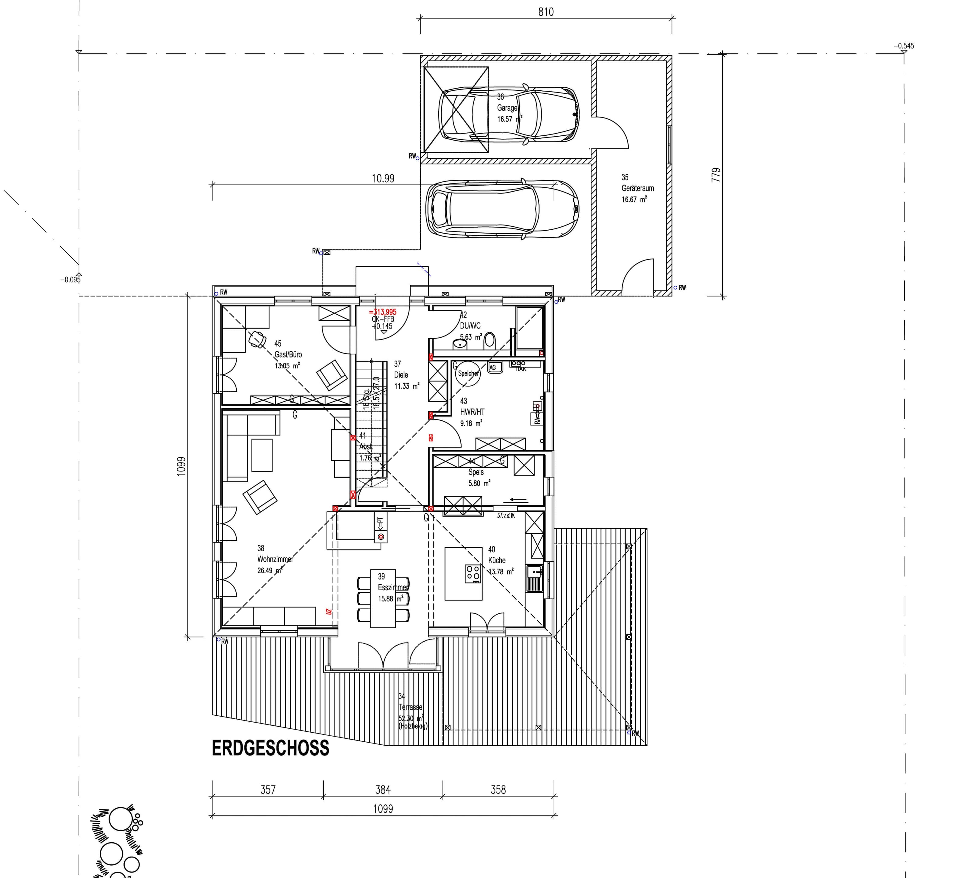
Das Haus "Stefani" ist ausgelegt für eine vierköpfige Familie. Gut gelöst ist die Anbindung von Garage/Carport an die Überdachung am Eingang, sodass die Eingangssituation aus einem Guss erscheint. Beim Betreten der Diele fällt die einläufige, formschöne (gerade) Treppe sofort auf, aber auch die Tatsache, dass genügend Platz für die Garderobe ausgewiesen wird. Linker Hand befindet sich der Technik-/Hauswirtschaftsraum, denn das Haus "Stefani" ist nicht unterkellert. KfW 70 wird angegeben, mit Kaminofen, Solaranlage, Gaszentralheizung und Fußbodenheizung. Bussteuerung bringt den nötigen Komfort, sämtliche Fenster und Fenstertüren verfügen über elektrisch gesteuerte Rollläden.

Eigentlich schon ein Sonnleitner-Markenzeichen: Auf beiden Wohnebenen bleibt das Balkenlager sichtbar, das besondere Ambiente des Holzhauses ist somit überall wahrnehmbar. Die Konstruktion ist Bestandteil der Wohnphilosophie. An der Nahtstelle: Ein Kaminofen über Eck mit Sitzmöglichkeit. Praktisches Detail: Die Küche verfügt über eine Speisekammer mit Schiebetür, letztere ist auch im Bereich Diele/Essen zu entdecken.

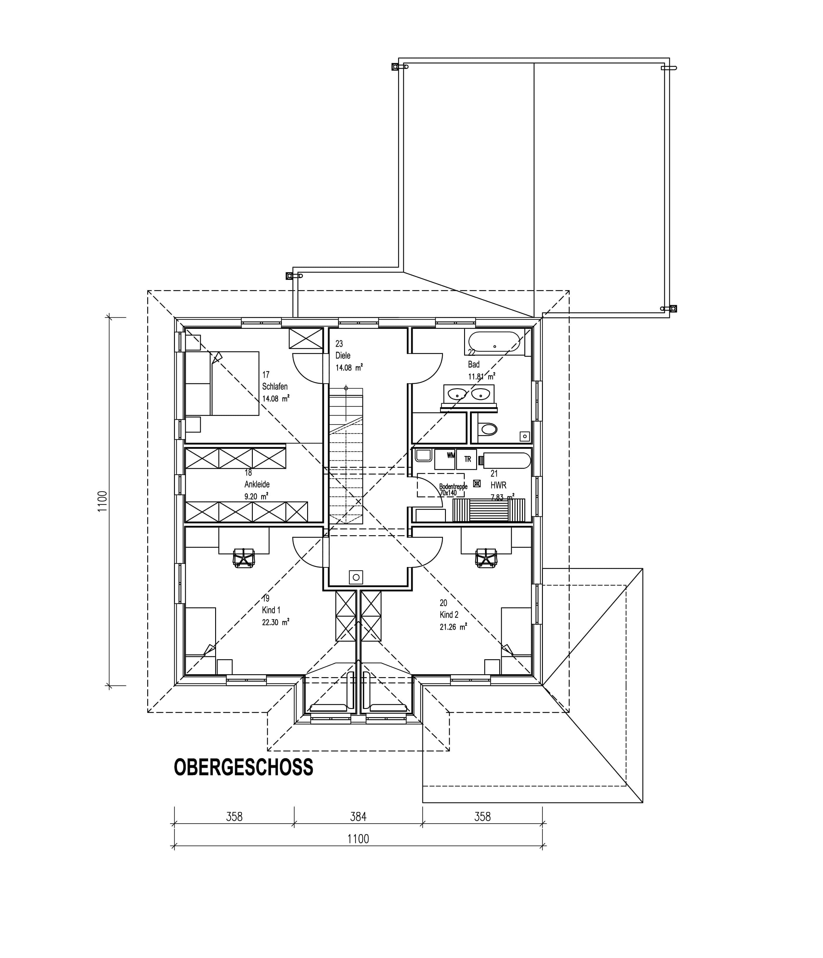
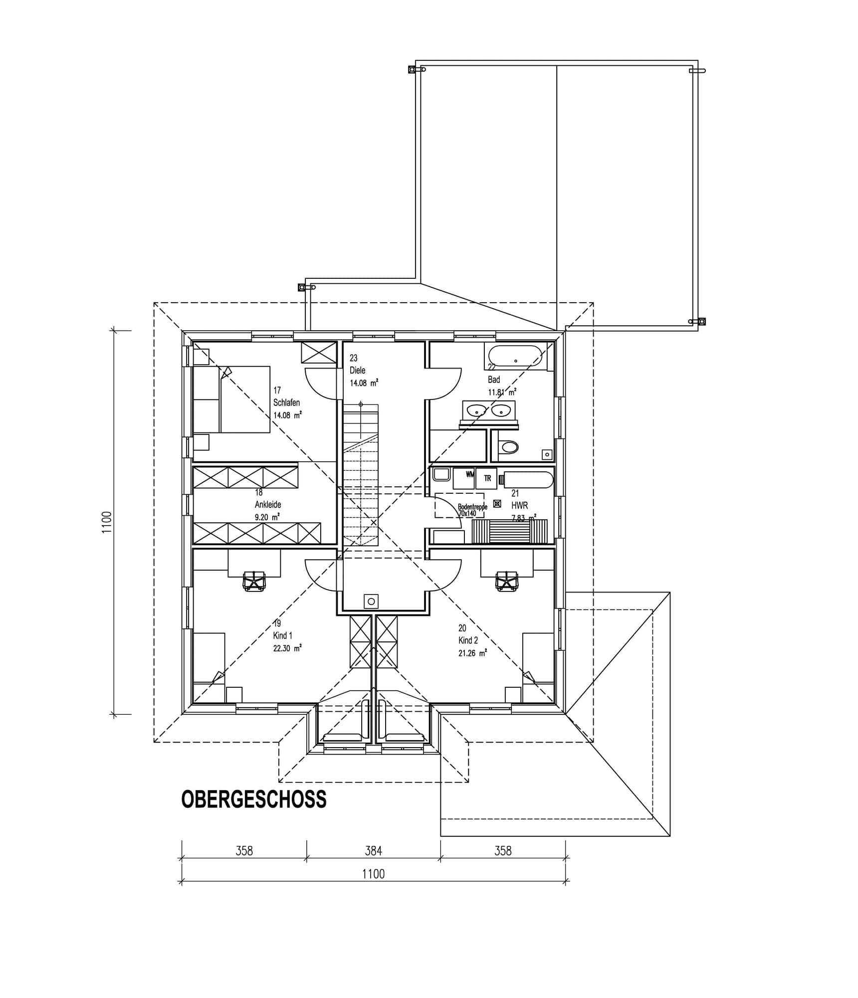
Zwei Vollgeschosse, das bedeutet: Ein Plus in Sachen Wohnkomfort und Bewegungsfreiheit. Die beiden Kinderzimmer sind üppig dimensioniert, das wird den Nachwuchs begeistern. Elterntrakt mit Ankleide, Familienbad und ein kleiner Hauswirtschafts-/Abstellraum, mit Einschubtreppe für den Speicher, runden das Angebot ab. Rundum alles also bestens organisiert und strukturiert – da fehlt ganz einfach nichts!

Weitere Infos und Impressionen

Hausdaten

Hausart Icon
HausartEinfamilienhaus
Bauweise Icon
BauweiseMassivholzkonstruktion
Anzahl Räume Icon
Anzahl Räume7
Baustil Icon
BaustilStadtvillen
Fassade Icon
FassadePutz
Außenmaße Icon
Außenmaße11 m x 11 m
Wohnfläche Icon
Wohnfläche194.79 m²
Dachform Icon
DachformWalm-/Zeltdach
Energiestandard Icon
EnergiestandardEffizienzhaus 55
Immobilientyp Icon
ImmobilientypKundenhaus
Dachneigung Icon
Dachneigung26°
Hauseigenschaften Icon
HauseigenschaftenTerasse
Hausdämmstoff Icon
HausdämmstoffHolzfaser- und Zellulosedämmstoffe
Heizungsart Icon
HeizungsartGas-Brennwertheizung
Pfeil nach unten linksWir schaffen Platz für Ihre Träume

Grundriss

Der Grundriss des EGs des modernen Holzhauses im Stadtvilla-Stil mit mineralischem Außenputz und teilweise überdachter Terrasse
Kundenhaus 'Stefani' Grundriss (EG)Wohnfläche EG: 93,85 m²
Der Grundriss des OGs des modernen Holzhauses im Stadtvilla-Stil mit mineralischem Außenputz und teilweise überdachter Terrasse
Kundenhaus 'Stefani' Grundriss (OG)Wohnfläche OG: 100,94 m²

Kataloge

Sonnleitner: Hauskatalog
Sonnleitner Holzbauwerke

Sonnleitner: Hauskatalog


House and TreeParksHouse and PinHäuser liveHouse on HandAnbieter