1. AnbieterArrow Icon
  2. Sonnleitner HolzbauwerkeArrow Icon
  3. Kundenhaus 'Engleder'
Slide 1
Slide 2
Slide 3
Slide 4
Slide 5
Slide 6
Slide 7
Sonnleitner_Logo_2.jpg
Sonnleitner HolzbauwerkeKundenhaus 'Engleder'
homeKlassische Familienhäuser
livingArea174 m²
energyStandardEffizienzhaus 55
Preis anfragen
Katalog bestellen

Kundenhaus 'Engleder'

Zwischen Tradition und Moderne

Dieses Einfamilienhaus mit kombinierter Holz-/Putz-Fassade, flachem Satteldach und breiten Dachüberständen steht klassisch für ein Haus im bayerischen Voralpenland. An den kompakten Baukörper schließt ein Carport mit Durchgang an der Rückseite an. So kommen die Bewohner wettergeschützt ins Haus.

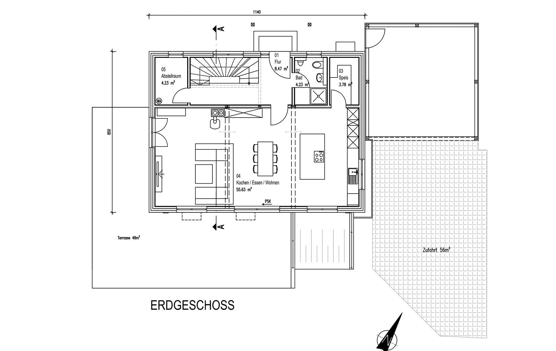
Auf der sonnigen Südseite im Erdgeschoss liegt der offene Bereich für Wohnen, Essen und Kochen. Zwei große Holz-Alu-Schiebetüren lassen viel Licht herein und verbinden den Raum optisch mit der Terrasse. Eine massive Holzbalkendecke und die Massivholzwand zum Flur sorgen für ein behagliches Ambiente. Zweckmäßig nach hinten gelegen und durch eine Tür abgeschottet sind Diele, Abstellräume und das Gäste-Duschbad.

Dank des hohen Kniestocks im Dachgeschoss ist hier viel Platz für ein geräumiges Elternschlafzimmer, zwei großzügige Kinderzimmer und ein üppiges Bad. Clever geplant und umgesetzt ist auch das große Büro und Gästezimmer im Keller. Durch eine Ausschachtung vor dem Raum und eine großzügige Fensterfront nach Süden ist ein zusätzlicher, lichtdurchfluteter Raum entstanden.

Weitere Infos und Impressionen

Hausdaten

Hausart Icon
HausartEinfamilienhaus
Bauweise Icon
BauweiseMassivholzkonstruktion
Anzahl Räume Icon
Anzahl Räume4
Baustil Icon
BaustilKlassische Familienhäuser
Fassade Icon
FassadeMaterialkombination, Putz, Holz
Außenmaße Icon
Außenmaße11.4 m x 8.5 m
Wohnfläche Icon
Wohnfläche173.8 m²
Dachform Icon
DachformSattel-/Giebeldach
Energiestandard Icon
EnergiestandardEffizienzhaus 55
Immobilientyp Icon
ImmobilientypKundenhaus
Dachneigung Icon
Dachneigung18°
Kniestock Icon
Kniestock2.5 m
Hauseigenschaften Icon
HauseigenschaftenTerasse
Hausdämmstoff Icon
HausdämmstoffHolzfaser- und Zellulosedämmstoffe
Heizungsart Icon
HeizungsartHolzpelletheizung
Pfeil nach unten linksWir schaffen Platz für Ihre Träume

Grundriss

Der Grundriss des EGs des modernen Holzhauses im Landhausstil mit Mischfassade aus mineralischem Putz und Holz
Kundenhaus 'Engleder' Grundriss (EG)Wohnfläche EG: 100,34 m²
Der Grundriss des OGs des modernen Holzhauses im Landhausstil mit Mischfassade aus mineralischem Putz und Holz
Kundenhaus 'Engleder' Grundriss (DG)Wohnfläche DG: 73,46 m²

Kataloge

Sonnleitner: Hauskatalog
Sonnleitner Holzbauwerke

Sonnleitner: Hauskatalog


House and TreeParksHouse and PinMusterhausHouse on HandAnbieter