1. AnbieterArrow Icon
  2. Sonnleitner HolzbauwerkeArrow Icon
  3. Musterhaus 'Functionality'
Slide 1
Location Icon
Slide 2
Location Icon
Slide 3
Location Icon
Slide 4
Location Icon
Slide 5
Location Icon
Slide 6
Location Icon
Slide 7
Location Icon
Sonnleitner_Logo_2.jpg
Sonnleitner HolzbauwerkeMusterhaus 'Functionality'
homeKubushäuser im Bauhausstil
livingArea193 m²
energyStandardPlusenergiehaus
Preis anfragen

Musterhaus 'Functionality'

Plus-Energie-Haus produziert mehr Energie, als es verbraucht

In Zeiten steigender Energiekosten und umweltbewusster Lebensweise wollen viele Bauherren gerne ihren persönlichen Beitrag zum Umweltschutz leisten. Ein wohngesundes Eigenheim aus Holz, das mehr Energie erzeugt, als es verbraucht, ist heute kein Zukunftstraum mehr, sondern Realität.


Um dieses Plus an Energie zu erreichen, wird im förderfähigen „Functionality“-Haus von Sonnleitner mit seiner ökologischen, hochgedämmten Klimawand-Gebäudehülle eine Photovoltaikanlage sowie eine Wärmerückgewinnungsanlage installiert. Damit ist es möglich, komplett ohne externen Energielieferanten und unabhängig von der Preispolitik der Konzerne zu leben. Der CO2-Ausstoß des Plus-Energie-Hauses ist gleich Null, wodurch die aktuelle Energieeinsparverordnung weit übertroffen wird. „Zuviel“ erzeugte Energie kann als Energielieferant für ein Elektroauto dienen oder gewinnbringend ins Stromnetz eingespeist werden.
Die architektonische Gestaltung des Baukörpers erfolgt bewusst puristisch, spannende Hingucker sind die praktischen Fassaden-Schiebeelemente. Bei der Gestaltung des Inneren heißt das Motto „Räume und Möbel in Bewegung“. Wand- und Möbelfunktionen des „Functionality“-Hauses wurden so geplant, dass fast alle Räume schnell und unkompliziert in ihrer Größe verändert und variabel ganz nach aktuellen Bedürfnissen der Bewohner genutzt werden können.

Weitere Infos und Impressionen

Hausdaten

Hausart Icon
HausartEinfamilienhaus
Bauweise Icon
BauweiseMassivholzkonstruktion
Anzahl Räume Icon
Anzahl Räume5
Baustil Icon
BaustilKubushäuser im Bauhausstil
Fassade Icon
FassadeMaterialkombination, Putz, Holz
Außenmaße Icon
Außenmaße13 m x 90 m
Wohnfläche Icon
Wohnfläche192.59 m²
Dachform Icon
DachformSattel-/Giebeldach
Energiestandard Icon
EnergiestandardPlusenergiehaus
Immobilientyp Icon
ImmobilientypMusterhaus
Dachneigung Icon
Dachneigung22°
Hauseigenschaften Icon
HauseigenschaftenTerasse, Balkon
Hausdämmstoff Icon
HausdämmstoffHolzfaser- und Zellulosedämmstoffe
Heizungsart Icon
HeizungsartWärmepumpe (Luft, Wasser, oder beides)
Pfeil nach unten linksWir schaffen Platz für Ihre Träume

Grundriss

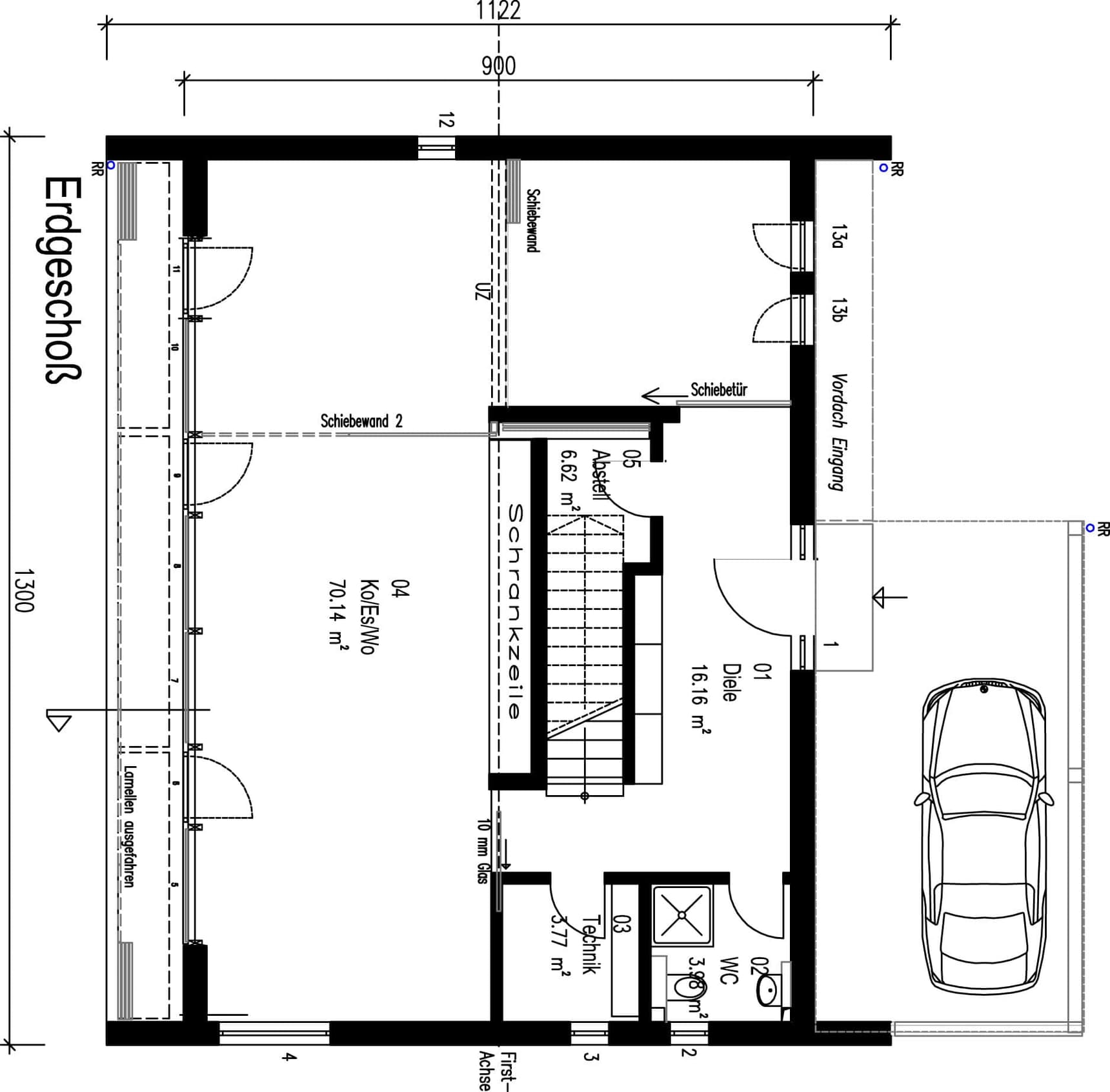
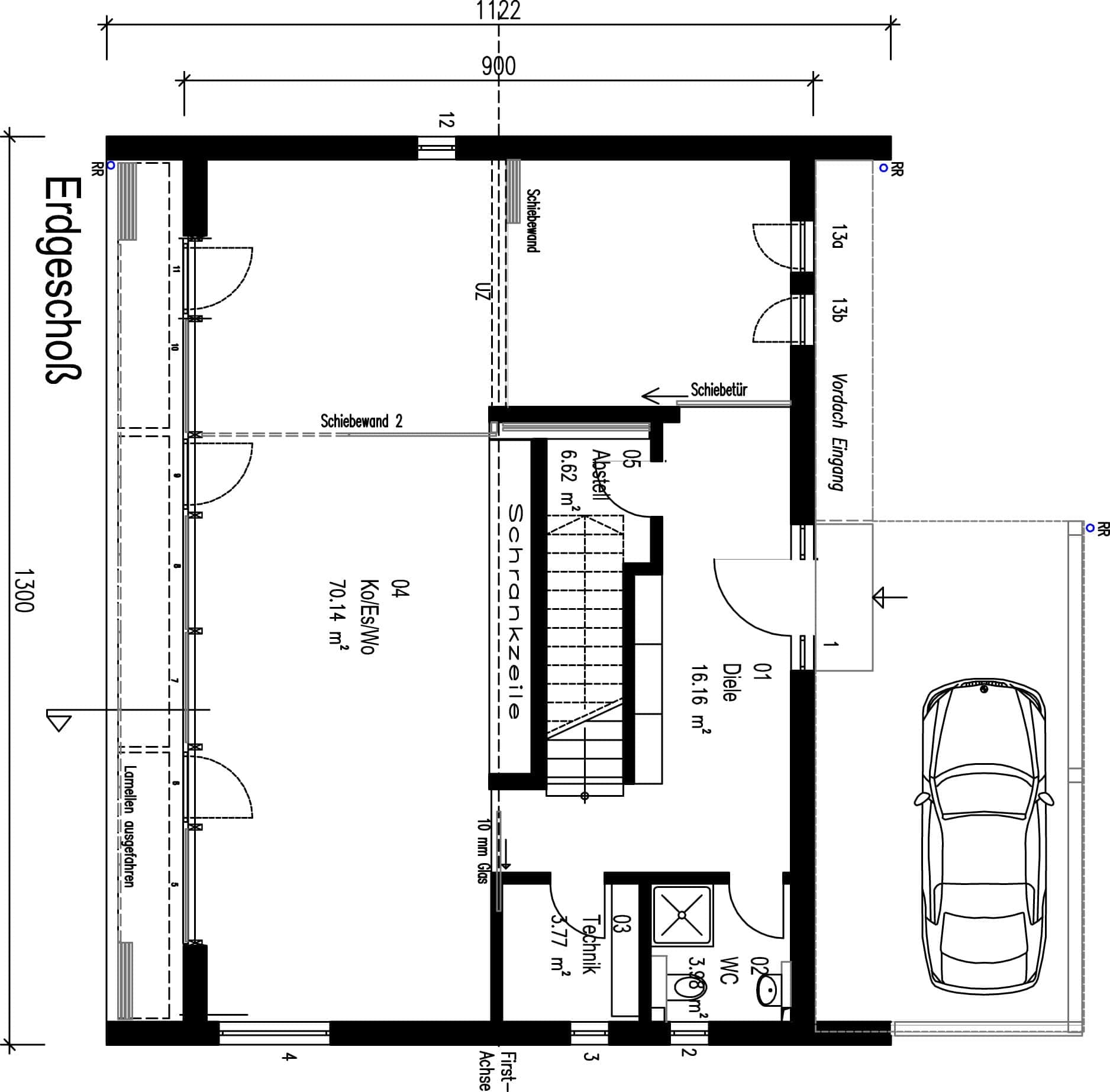
Musterhauspark Sonnleitner Ortenburg, Functionality, Holzhaus mit Schiebeelementen, Plus-Energie-Haus, Schlafzimmer, Grundriss EG
Musterhaus 'Functionality' Grundriss (EG)Wohnfläche EG: 98,58 m²
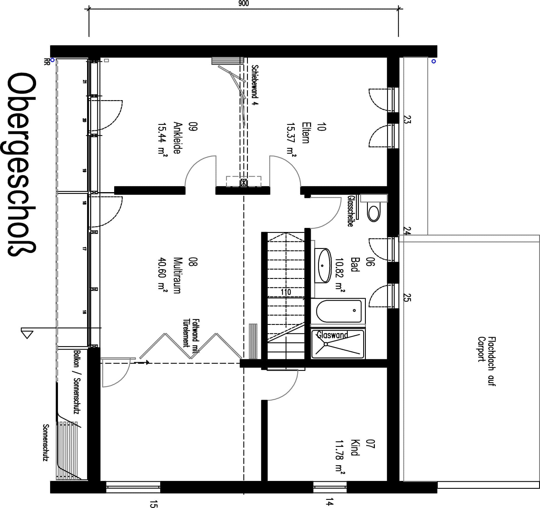
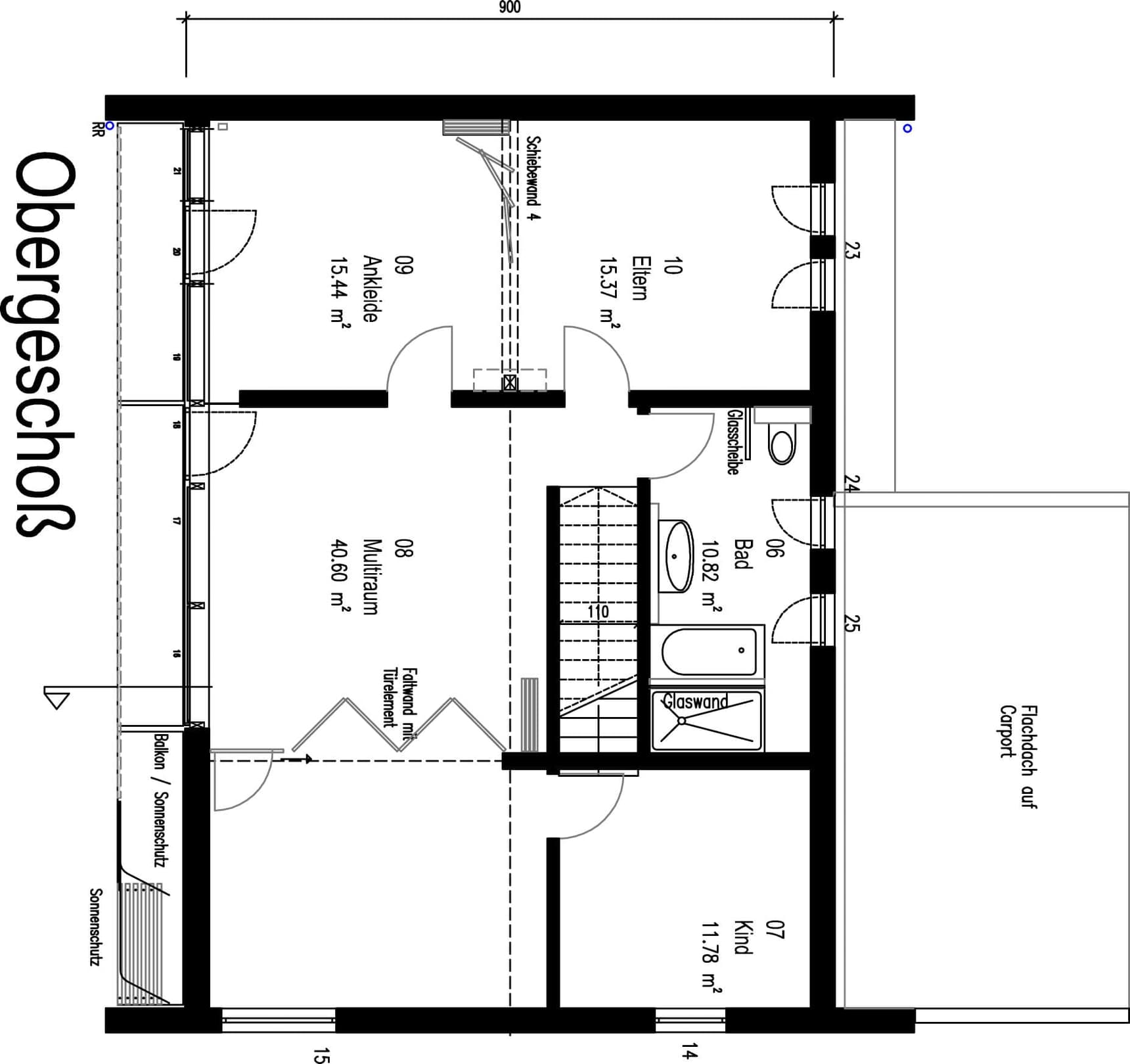
Musterhauspark Sonnleitner Ortenburg, Functionality, Holzhaus mit Schiebeelementen, Plus-Energie-Haus, Schlafzimmer, Grundriss OG
Musterhaus 'Functionality' Grundriss (OG)Wohnfläche OG: 94,01 m²

Musterhaus 'Functionality'

360°Rundgang starten
no description
House and TreeParksHouse and PinMusterhausHouse on HandAnbieter