1. AnbieterArrow Icon
  2. Sonnleitner HolzbauwerkeArrow Icon
  3. Kundenhaus 'Fischer'
Slide 1
Slide 2
Slide 3
Slide 4
Sonnleitner_Logo_2.jpg
Sonnleitner HolzbauwerkeKundenhaus 'Fischer'
homeLandhäuser
livingArea160 m²
energyStandardEffizienzhaus 55
Preis anfragen
Katalog bestellen

Kundenhaus 'Fischer'

Ein Hanghaus mit zwei schönen Gesichtern

Hanggrundstücke sind sehr begehrt, da sie vielerlei Vorteile bieten. Dabei geht es nicht nur um die Aussicht, die lockt. Es ist auch der Höhenunterschied am Hang, der kreativen Baufamilien viel Gestaltungsfreiraum erlaubt, wenn man ihn zu nutzen weiß.

Das Holzhaus steht auf einem rund 600 m² großen Hanggrundstück in Niederösterreich, an der Grenze zwischen Wein- und Waldviertel. In einer Gegend, in der eigentlich Ziegelkonstruktionen mit Putzfassade den Ton angeben. Für eine solche Bauweise war Herr Fischer jedoch nicht zu begeistern. „Ziegel und Styropor-Dämmung, das war nun wirklich nicht unsere Vorstellung. Wir wollten eine ökologische Massivholzbauweise. Leider gibt es in unserer Ecke keine Hersteller in diesem Bereich. So lernten wir Sonnleitner bei einem Event in Salzburg kennen. Beeindruckt hat uns vor allem deren Konstruktion mit der Holzfaserdämmung und der beidseitigen Beplankung mit Lärchen- bzw. Fichtenbohlen. Das hat dann alles nahtlos gepasst“.

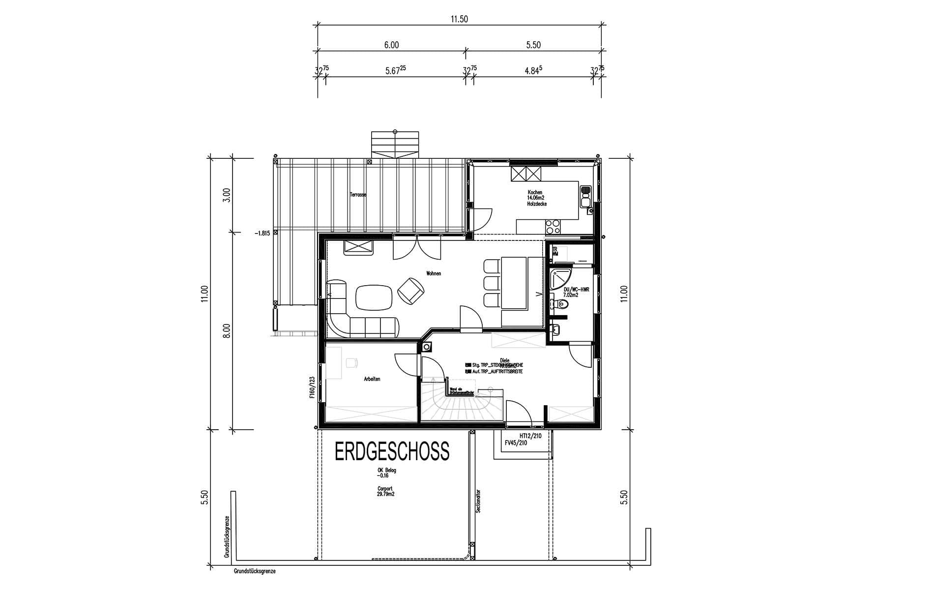
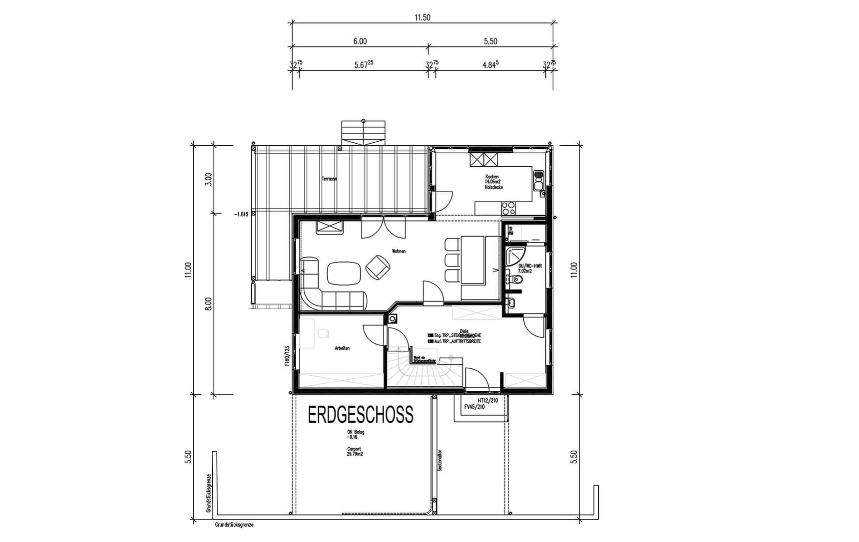
Erschlossen wird das Haus hangseits auf der Nordseite, die fast komplett geschlossen ist. Zur Straße hin präsentiert sich das Haus als „Zweigeschosser“, bedingt durch den extrem hohen Kniestock. Das flach geneigte Satteldach tritt optisch kaum in Erscheinung. Die Wirkung des Kernhauses wird in der Höhe durch den Carport und die angedockte Küche wesentlich reduziert. Ein weiterer Vorteil: Beide Lösungen schützen Eingang und Terrasse. Ein attraktiver Pagoden-Effekt entsteht darüber dank Überdachung der umlaufenden Terrasse. Das heißt: Durch die abgestufte Dachgeometrie erfolgt talseits eine Anpassung an den Hang.

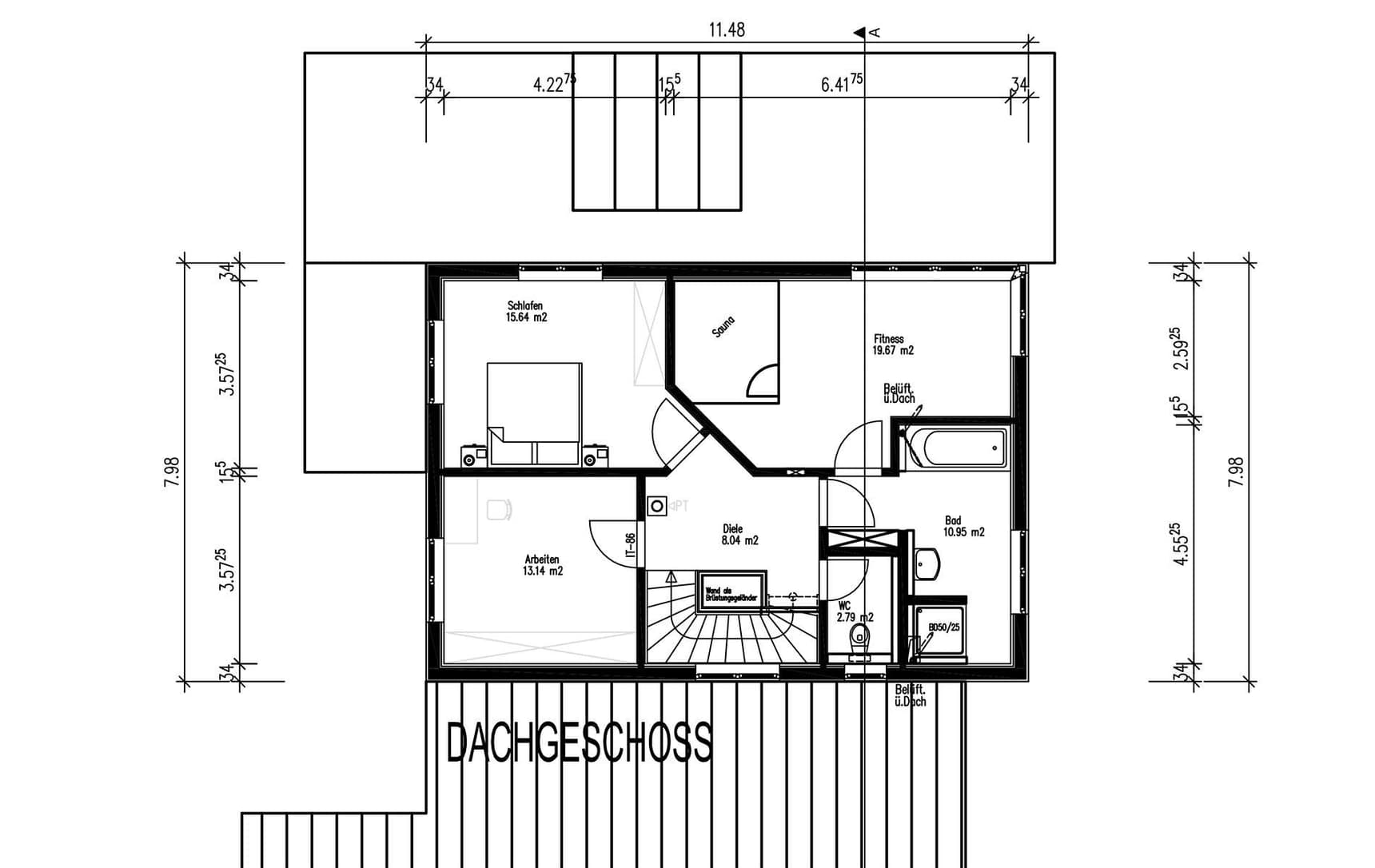
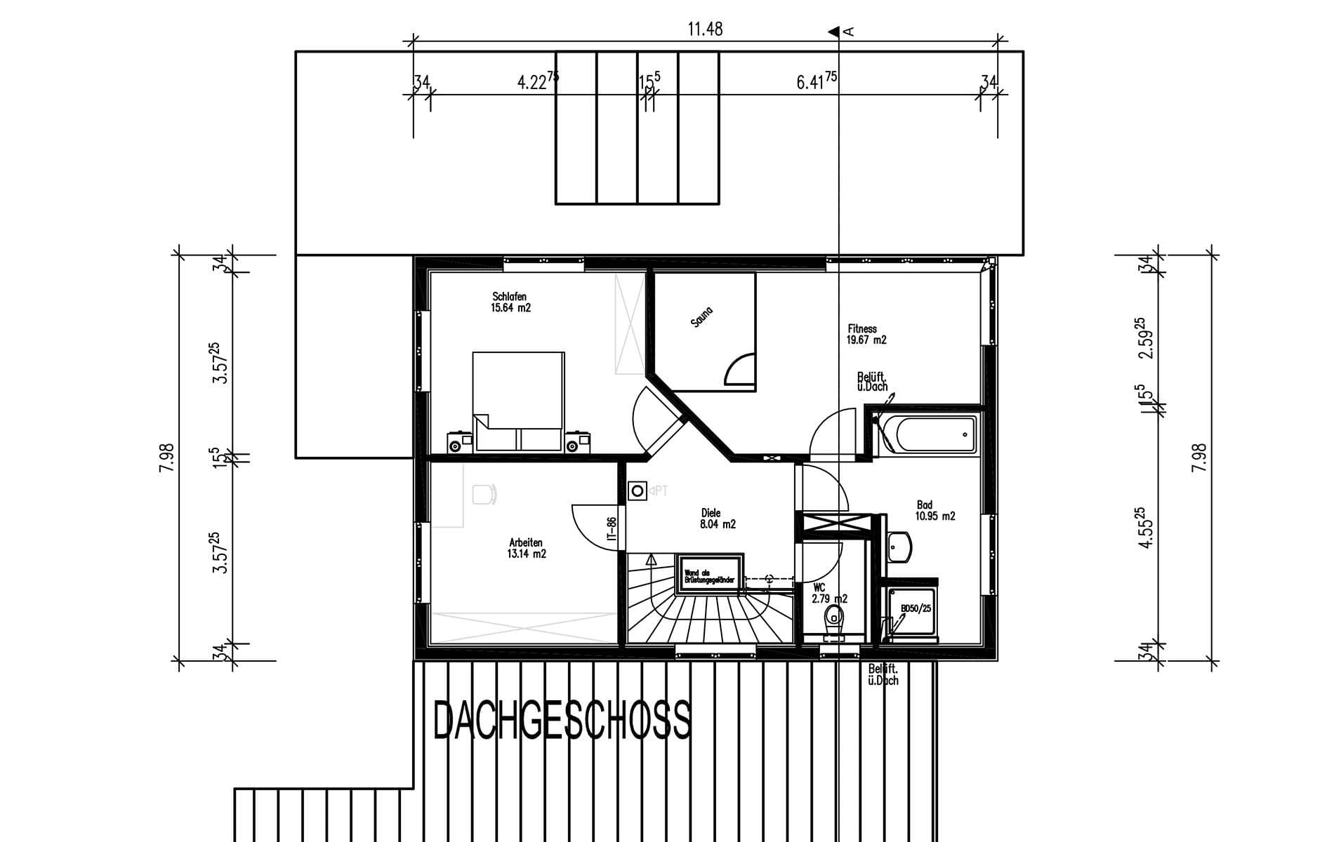
Dem Ehepaar stehen insgesamt rund 160 m² Wohnfläche zur Verfügung. Da fällt die Raumaufteilung in dem einen oder anderen Punkt schon etwas üppiger aus. Das trifft beispielsweise auf die ca. 20 m² große Diele zu, die reichlich Platz für Garderobe & mehr bietet. Auffällig im Erdgeschoss ist die gemauerte Ofenlandschaft mit Sitzbank, die im Zusammenwirken mit der sichtbaren Balkendecke für ein wohliges Ambiente sorgt. Praktisch: Mit einem verglasten Schiebeelement kann die Küche blitzschnell vom Wohnbereich abgetrennt werden. Ein formschönes Element, das durch seine waagerechte Unterteilung den Raum gliedert. Eine Lösung, die es übrigens öfters bei Sonnleitner zu sehen gibt. Die Küche hat Erker-Charakter, nicht nur durch ihre Lage, sondern auch durch die beiden Eckfenster – innen Holz, außen Alu. Auch eine Verbindung zur Terrasse ist vorhanden.

Breiten Raum nehmen Bad und Fitness auf der zweiten Ebene ein. Auch hier setzt ein Eckfenster Akzente, an gleicher Stelle wie im Erdgeschoss. Ein Blick aus dem Fenster zeigt, dass die Terrassenüberdachung mittig ein Glaselement beinhaltet. Beheizt wird das Haus mit einer Wärmepumpe in Kombination mit einer Wandheizung.

Weitere Infos und Impressionen

Hausdaten

Hausart Icon
HausartEinfamilienhaus
Bauweise Icon
BauweiseMassivholzkonstruktion
Baustil Icon
BaustilLandhäuser
Fassade Icon
FassadeMaterialkombination, Putz, Holz
Außenmaße Icon
Außenmaße11.5 m x 11 m
Wohnfläche Icon
Wohnfläche160 m²
Dachform Icon
DachformSattel-/Giebeldach
Energiestandard Icon
EnergiestandardEffizienzhaus 55
Immobilientyp Icon
ImmobilientypKundenhaus
Dachneigung Icon
Dachneigung18°
Kniestock Icon
Kniestock2.82 m
Hauseigenschaften Icon
HauseigenschaftenTerasse, Integriertes Carport
Hausdämmstoff Icon
HausdämmstoffHolzfaser- und Zellulosedämmstoffe
Heizungsart Icon
HeizungsartWärmepumpe (Luft, Wasser, oder beides)
Pfeil nach unten linksWir schaffen Platz für Ihre Träume

Grundriss

Der Grundriss des EGs des modernen Holzhauses im Landhausstil auf einem Hanggrundstück
Kundenhaus 'Fischer' Grundriss (EG)
Der Grundriss des OGs des modernen Holzhauses im Landhausstil auf einem Hanggrundstück
Kundenhaus 'Fischer' Grundriss (OG)

Kataloge

Sonnleitner: Hauskatalog
Sonnleitner Holzbauwerke

Sonnleitner: Hauskatalog


House and TreeParksHouse and PinMusterhausHouse on HandAnbieter