1. AnbieterArrow Icon
  2. Sonnleitner HolzbauwerkeArrow Icon
  3. Kundenhaus 'Am Falkenberg'
Slide 1
Slide 2
Slide 3
Slide 4
Slide 5
Sonnleitner_Logo_2.jpg
Sonnleitner HolzbauwerkeKundenhaus 'Am Falkenberg'
homeLandhäuser
livingArea152 m²
energyStandardEffizienzhaus 55
Preis anfragen
Katalog bestellen

Kundenhaus 'Am Falkenberg'

Ebenerdig mit Wohnhalle

Bauen in Hanglage ist bekanntlich mit erheblichem Mehraufwand verbunden. Doch es lohnt sich, denn die architektonischen Möglichkeiten sind wesentlich vielschichtiger als bei ebenem Grundstück. Was gemeint ist, zeigt sich bei diesem ungewöhnlichen Sonnleitner-Haus. 

Auf den ersten Blick ist bei diesem Kundenentwurf nicht erkennbar, dass es sich bei diesem Hanghaus um ein eher ungewöhnliches Objekt handelt. Das Haus mit flachem Satteldach (25 Grad) präsentiert sehr unterschiedliche Ansichten und tritt mit dem Untergeschoss weit aus dem Gelände hervor. So kann das Kellergeschoss mehr als zur Hälfte für Wohnzwecke genutzt werden, mit einem hohen Glasanteil talseits und sogar mit Fenstern an den beiden Giebelseiten. 

Terrassenseits sieht das Haus aus wie ein Bungalow. Und in der Tat: Der Hauptbaukörper ist eingeschossig gestaltet, im Erdgeschoss wird ein Sichtdachstuhl ausgewiesen, was sich im offenen Wohnbereich, der rund 45 m2 groß ist, mit einem grandiosen Ambiente bemerkbar macht. Der Blick reicht immerhin bis zum Firstbalken! Am Rande zu erwähnen: Die Räume im Keller weisen eine Sichtbalkendecke aus, sodass sich der urgemütliche Holzcharakter nahtlos fortsetzt, auch im Untergeschoss.

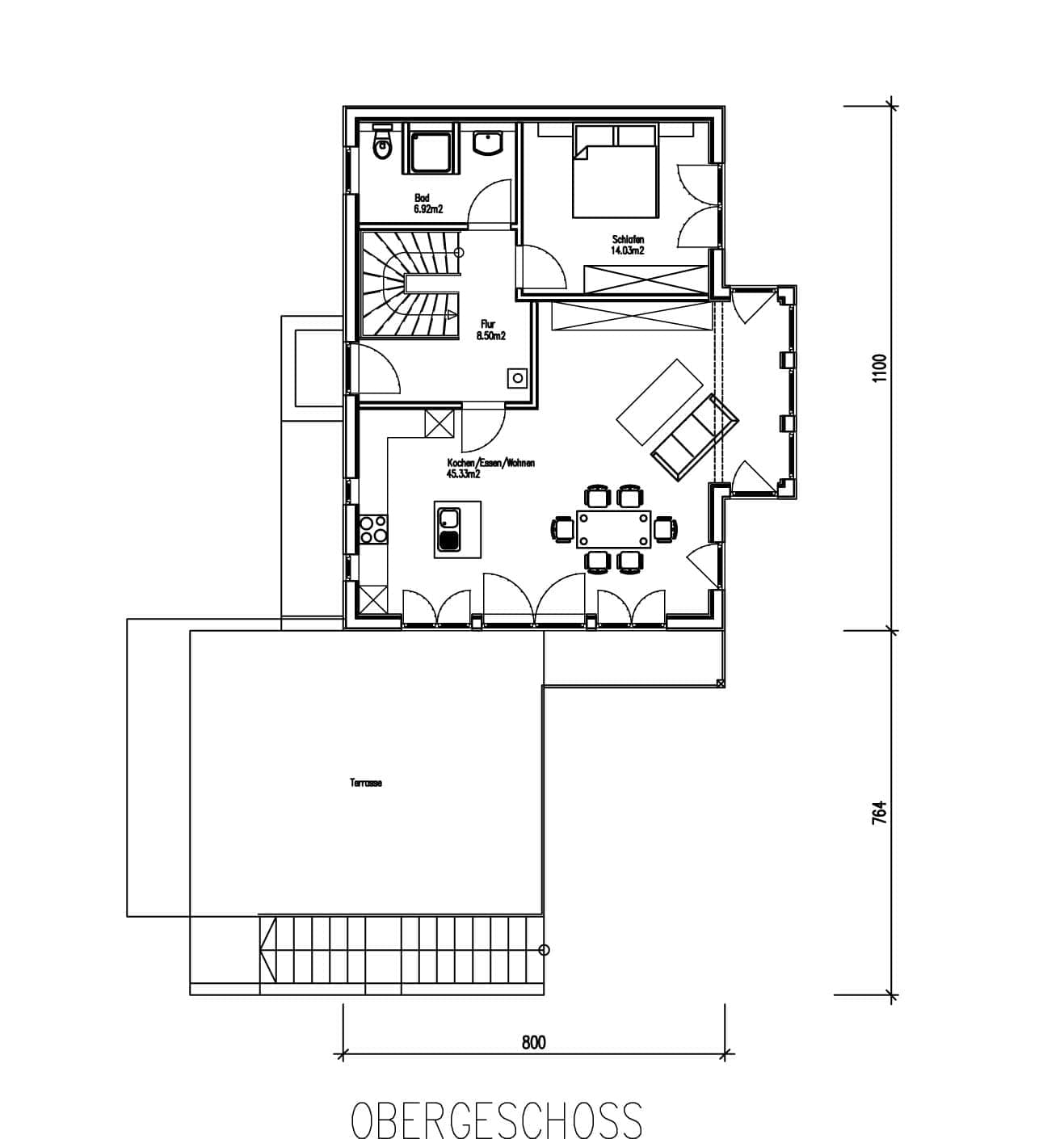
Bei der Raumaufteilung im Erdgeschoss dominiert die großartige Wohnhalle, ergänzt durch Terrasse, Balkon und Erker. Auffällig ist der hohe Glasanteil, der bis zum Giebeldreieck reicht. Mit dem nahtlosen Übergang zu Terrasse und Balkon präsentiert sich hier die „Schokoladenseite“ des Hauses. Ein weiterer Blickfang ist zweifellos die offene Küche mit den Granit-Arbeitsflächen und dem Küchenblock. Erwähnenswert außerdem der gemauerte Grundofen mit verglastem Eckbrennraum, der gleichzeitig als Heiz- und Gestaltungselement wirkt.

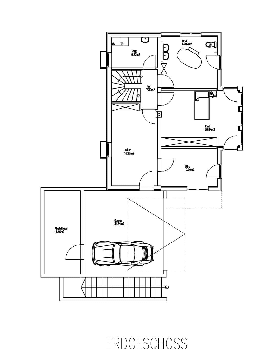
Eine Etage tiefer: Ein kompletter Kindertrakt mit eigenem Bad, außerdem ein Hauswirtschafts- sowie ein Büroraum. Ganz schön praktisch: Von der Doppelgarage gelangt man auf direktem Weg ins Untergeschoss! Beheizt wird das 152 m2 (Wohn-/Nutzfläche) große Haus (KfW 55) über eine Luft-Wärmepumpe mit Holzgrundofen und Solaranlage.

Weitere Infos und Impressionen

Hausdaten

Hausart Icon
HausartEinfamilienhaus
Bauweise Icon
BauweiseMassivholzkonstruktion
Anzahl Räume Icon
Anzahl Räume4
Baustil Icon
BaustilLandhäuser
Fassade Icon
FassadeMaterialkombination, Putz, Holz
Außenmaße Icon
Außenmaße11.5 m x 8.56 m
Wohnfläche Icon
Wohnfläche151.65 m²
Dachform Icon
DachformSattel-/Giebeldach
Energiestandard Icon
EnergiestandardEffizienzhaus 55
Immobilientyp Icon
ImmobilientypKundenhaus
Dachneigung Icon
Dachneigung25°
Hauseigenschaften Icon
HauseigenschaftenTerasse, Balkon
Hausdämmstoff Icon
HausdämmstoffHolzfaser- und Zellulosedämmstoffe
Heizungsart Icon
HeizungsartLüftungsheizung
Pfeil nach unten linksWir schaffen Platz für Ihre Träume

Grundriss

Der Grundriss des EGs des Bungalows aus Holz auf Hanggrundstück mit ausgebautem Keller mit viel Glas
Kundenhaus 'Am Falkenberg' Grundriss (EG)Wohnfläche EG: 74,78 m²
Der Grundriss des OGs des Bungalows aus Holz auf Hanggrundstück mit ausgebautem Keller mit viel Glas
Kundenhaus 'Am Falkenberg' Grundriss (OG)
House and TreeParksHouse and PinMusterhausHouse on HandAnbieter