1. AnbieterArrow Icon
  2. NORDHAUSArrow Icon
  3. EFH S-166
Slide 1
Location Icon
Slide 2
Location Icon
Slide 3
Location Icon
Slide 4
Location Icon
Slide 5
Location Icon
Slide 6
Location Icon
Slide 7
Location Icon
NORDHAUS Logo | Hausbau made im Bergischen
NORDHAUSEFH S-166
homeStadtvillen
livingArea166 m²
energyStandardEffizienzhaus 40 Plus
Preis anfragen

EFH S-166

Exklusiv, unverwechselbar und repräsentativ. 

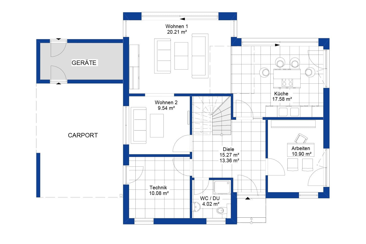
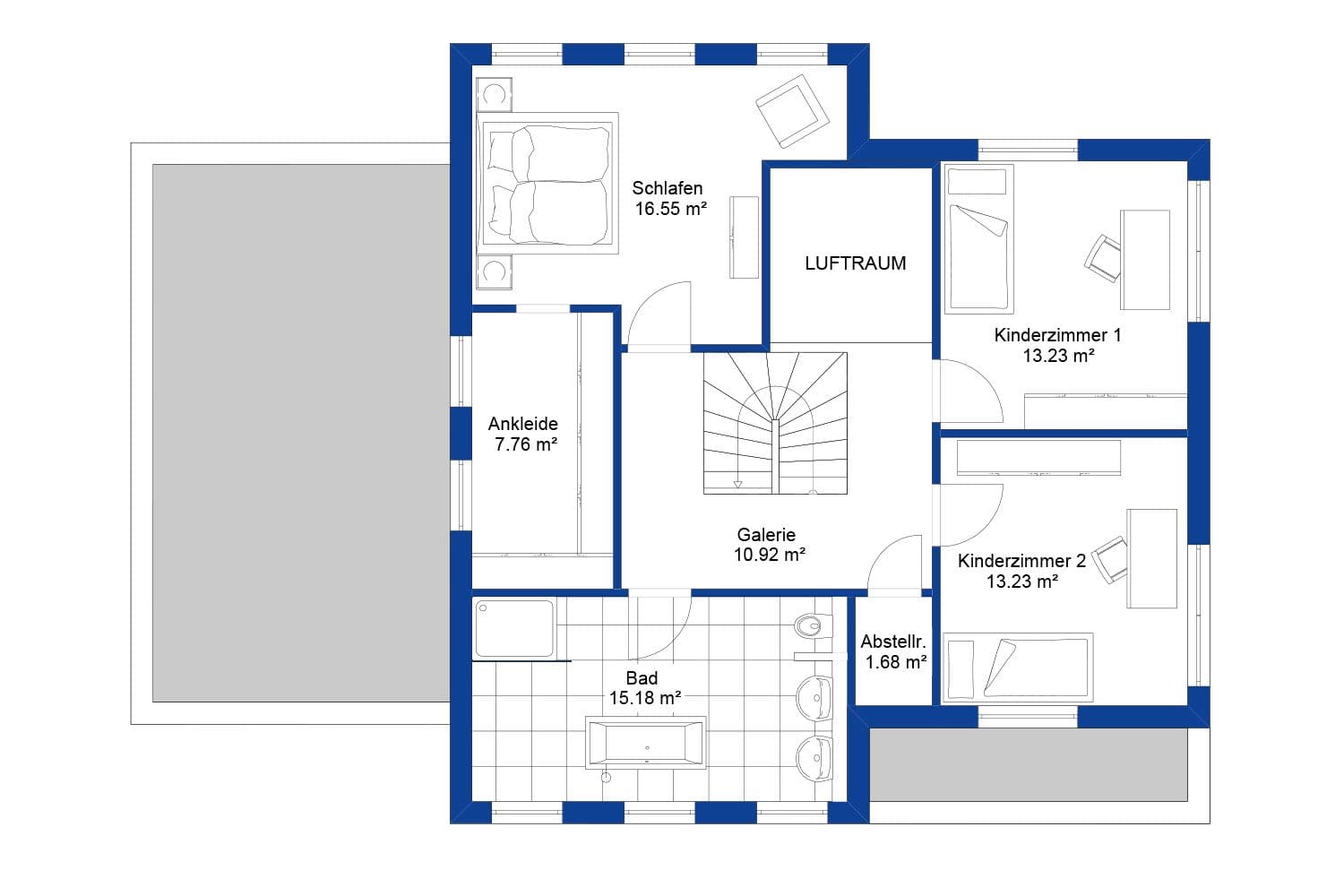
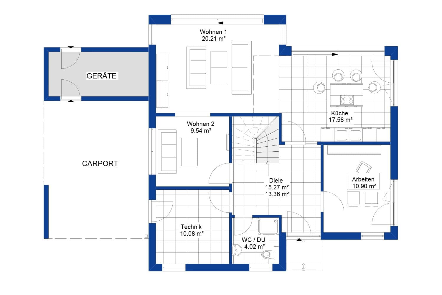
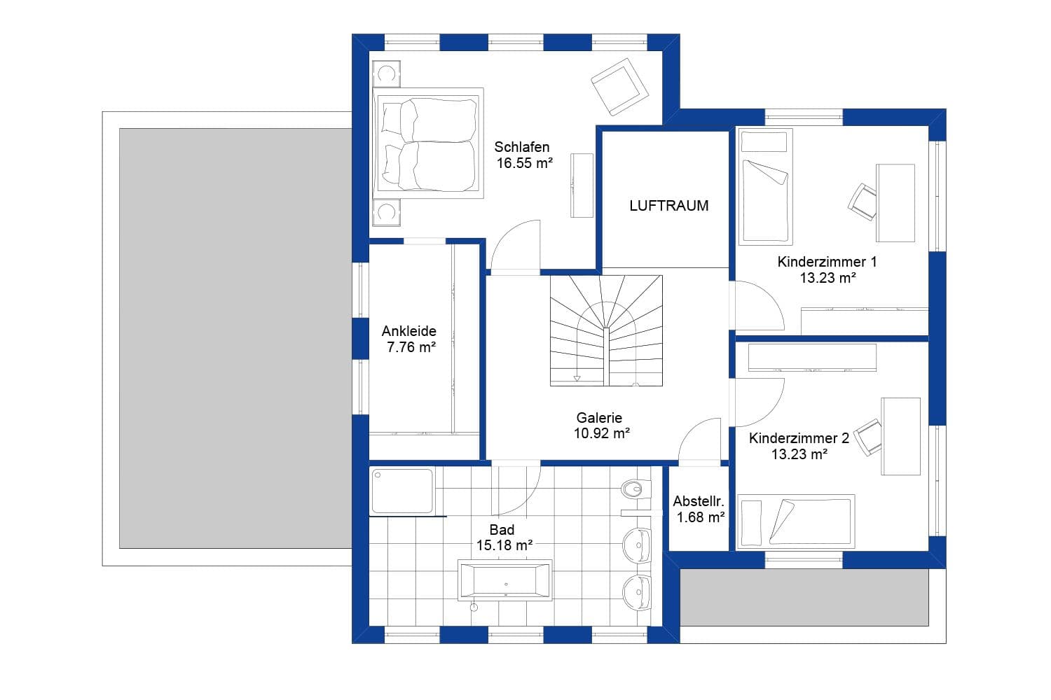
Eine unverwechselbare Architektur, verbunden mit großen Fensterflächen prägen das Bild dieses 2-geschoßigen Einfamilienhauses. Im Erdgeschoß stehen ein mit zwei Schiebetüren versehener lichtdurchfluteter Wohn-/Essbereich mit Küche, ein separater TV-Raum, ein Büro, Dusche und WC sowie ein Hauswirtschaftraum mit Zugang zum Carport zur Verfügung. Das Obergeschoß verfügt über Kinderzimmer, einen Elternbereich mit separater Ankleide sowie ein großes Bad mit Dusche und Wanne. 

Weitere Informationen zu dem Haustyp EFH S-166 finden Sie hier.

Hausdaten

Hausart Icon
HausartEinfamilienhaus
Bauweise Icon
BauweiseHolz-Tafelbau
Anzahl Räume Icon
Anzahl Räume6
Baustil Icon
BaustilStadtvillen
Fassade Icon
FassadeMaterialkombination
Außenmaße Icon
Außenmaße11.01 m x 10.71 m
Wohnfläche Icon
Wohnfläche166.2 m²
Dachform Icon
DachformSattel-/Giebeldach
Etagen Icon
Etagen2
Energiestandard Icon
EnergiestandardEffizienzhaus 40 Plus
Immobilientyp Icon
ImmobilientypMusterhaus
Dachneigung Icon
Dachneigung22°
Hauseigenschaften Icon
HauseigenschaftenTerasse
Heizungsart Icon
HeizungsartWärmepumpe (Luft, Wasser, oder beides)
Pfeil nach unten linksWir schaffen Platz für Ihre Träume

Grundriss

NORDHAUS | Grundriss Erdgeschoss Einfamilienhaus EFH S-166 | Hausbau made im Bergischen
EFH S-166 Grundriss (EG)Wohnfläche EG: 87,6 m²
NORDHAUS | Grundriss Obergeschoss Einfamilienhaus EFH S-166 | Hausbau made im Bergischen
EFH S-166 Grundriss (OG)Wohnfläche OG: 78,6 m²

Öffnungszeiten

Montag:Geschlossen
Dienstag:Geschlossen
Mittwoch:09:00 - 16:00 Uhr
Donnerstag:09:00 - 16:00 Uhr
Freitag:09:00 - 16:00 Uhr
Samstag:09:00 - 16:00 Uhr
Sonntag:09:00 - 16:00 Uhr

(schließt heute 16:00 Uhr)

Pfingstsonntag
10:00 - 17:00 Uhr
Pfingstmontag
10:00 - 17:00 Uhr

Adresse

Schmiedestraße 59
Wuppertal 42279

Anfahrt planen

Beratungstermin

Fertighaus Team in Wuppertal

Unser Team vor Ort

Jascha LiebschFachberater*in bei NORDHAUS
NORDHAUS Verkaufsberater Jascha Liebsch - Musterhaus Köln-Frechen
Wir beraten Sie gerne!Arrow Icon
Klaus HartigFachberater*in bei NORDHAUS
NORDHAUS Verkaufsberater Klaus Hartig - Musterhaus Wuppertal
House and TreeParksHouse and PinMusterhausHouse on HandAnbieter