1. AnbieterArrow Icon
  2. NORDHAUSArrow Icon
  3. DH 118
NORDHAUS - Modernes Doppelhaus mit farblichen Akzenten | Doppelhaus DH 118 | Hausbau made im Bergischen
NORDHAUS Logo | Hausbau made im Bergischen
NORDHAUSDH 118
homeKlassische Familienhäuser
livingArea118 m²
energyStandardEffizienzhaus 40
Preis anfragen
Katalog bestellen

DH 118

Grundstücksfläche optimal nutzen

Zu wenig Grundstücksfläche für zwei freistehende Einzelhäuser, aber für ein großes Haus reicht es –  unter diesen Voraussetzungen kann ein Doppelhaus sinnvoll sein. Egal aus welchen Gründen Sie ein Doppelhaus zu bauen gedenken, NORDHAUS steht Ihnen dabei gerne zur Seite und baut Ihren Traum von zwei vollwertigen Doppelhaushälften.
Und dabei bieten wir Ihnen neben freier Zimmergestaltung und der Lage Ihrer separaten Eingänge noch viele weitere Features.

Weitere Informationen zu dem Haustyp DH 118 finden Sie hier.

Hausdaten

Hausart Icon
HausartDoppelhaus
Bauweise Icon
BauweiseHolz-Tafelbau
Anzahl Räume Icon
Anzahl Räume8
Baustil Icon
BaustilKlassische Familienhäuser
Fassade Icon
FassadePutz
Außenmaße Icon
Außenmaße6.37 m x 11.76 m
Wohnfläche Icon
Wohnfläche117.7 m²
Dachform Icon
DachformSattel-/Giebeldach
Etagen Icon
Etagen1.5
Energiestandard Icon
EnergiestandardEffizienzhaus 40
Immobilientyp Icon
ImmobilientypPlanungsidee
Dachneigung Icon
Dachneigung35°
Hauseigenschaften Icon
HauseigenschaftenTerasse
Heizungsart Icon
HeizungsartWärmepumpe (Luft, Wasser, oder beides)
Pfeil nach unten linksWir schaffen Platz für Ihre Träume

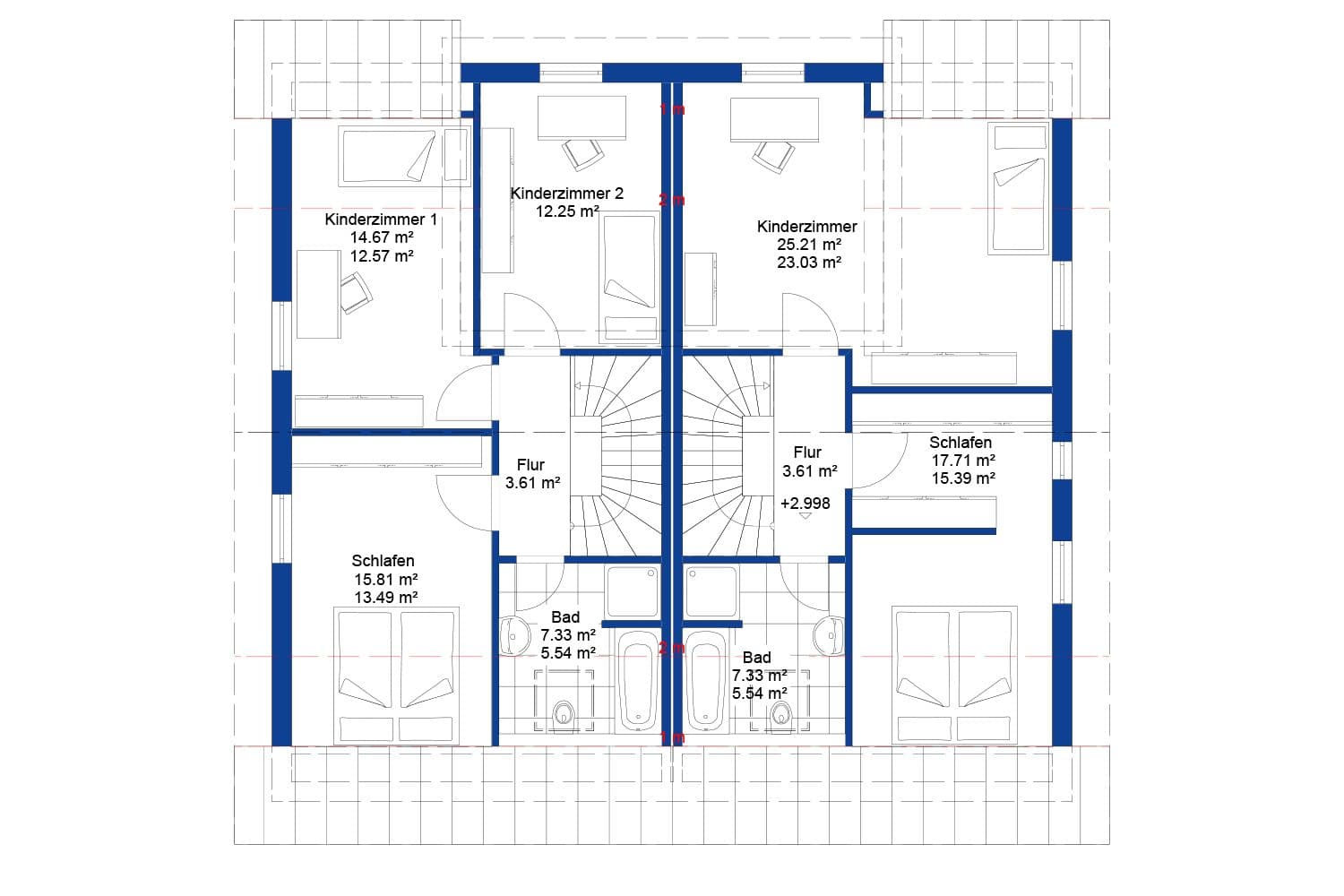
Grundriss

NORDHAUS | Grundriss Erdgeschoss Doppelhaus DH 118 | Hausbau made im Bergischen
DH 118 Grundriss (EG)
NORDHAUS | Grundriss Obergeschoss Doppelhaus DH 118 | Hausbau made im Bergischen
DH 118 Grundriss (OG)

Unser Team vor Ort

NORDHAUS TeamFachberater*in bei NORDHAUS
NORDHAUS | Luftaufnahme des Werkstandorts | Hausbau made im Bergischen
Wir beraten Sie gerne!Arrow Icon

Kataloge

NORDHAUS: Prospekt
NORDHAUS

NORDHAUS: Prospekt


NORDHAUS: Hauskatalog
NORDHAUS

NORDHAUS: Hauskatalog


House and TreeParksHouse and PinMusterhausHouse on HandAnbieter