1. AnbieterArrow Icon
  2. NORDHAUSArrow Icon
  3. ZFH 195
NORDHAUS - Modernes Zweifamilienhaus mit Satteldach | Zweifamilienhaus ZFH 195 | Hausbau made im Bergischen
NORDHAUS Logo | Hausbau made im Bergischen
NORDHAUSZFH 195
homeKlassische Familienhäuser
livingArea195 m²
energyStandardEffizienzhaus 40
Preis anfragen
Katalog bestellen

ZFH 195

Ein freundliches Zuhause!

Egal, ob groß oder klein, hier findet jede Familie Platz.

Die Zweifamilienhäuser von NORDHAUS  bieten den Raum für die Zukunft des Wohnens.
Ein Ort, den man „Zuhause“ nennen kann; an dem man mit seinen Liebsten leben kann, ein Ort für die Familie – diesen Ort für Sie zu bauen ist unser Ziel.

Weitere Informationen zu dem Haustyp ZFH 195 finden Sie hier.

Hausdaten

Hausart Icon
HausartZweifamilienhaus
Bauweise Icon
BauweiseHolz-Tafelbau
Anzahl Räume Icon
Anzahl Räume6
Baustil Icon
BaustilKlassische Familienhäuser
Fassade Icon
FassadePutz
Außenmaße Icon
Außenmaße14.01 m x 10.11 m
Wohnfläche Icon
Wohnfläche195 m²
Dachform Icon
DachformSattel-/Giebeldach
Energiestandard Icon
EnergiestandardEffizienzhaus 40
Immobilientyp Icon
ImmobilientypPlanungsidee
Dachneigung Icon
Dachneigung42°
Hauseigenschaften Icon
HauseigenschaftenEinliegerwohnung
Heizungsart Icon
HeizungsartWärmepumpe (Luft, Wasser, oder beides)
Pfeil nach unten linksWir schaffen Platz für Ihre Träume

Grundriss

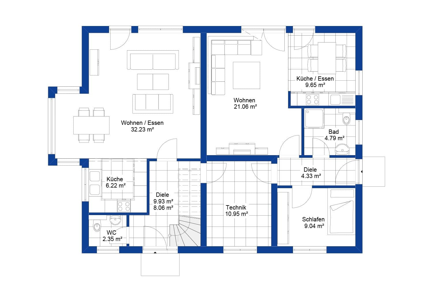
NORDHAUS | Grundriss Erdgeschoss Zweifamilienhaus ZFH 195 | Hausbau made im Bergischen
ZFH 195 Grundriss (EG)Wohnfläche EG: 110,55 m²
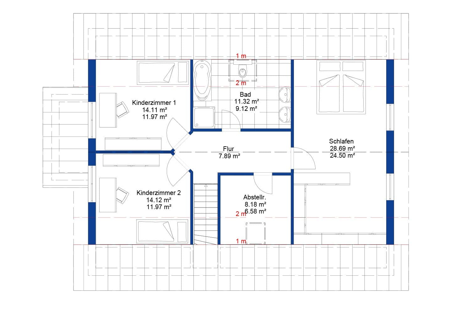
NORDHAUS | Grundriss Obergeschoss Zweifamilienhaus ZFH 195 | Hausbau made im Bergischen
ZFH 195 Grundriss (OG)Wohnfläche OG: 84,45 m²

Unser Team vor Ort

NORDHAUS TeamFachberater*in bei NORDHAUS
NORDHAUS | Luftaufnahme des Werkstandorts | Hausbau made im Bergischen
Wir beraten Sie gerne!Arrow Icon

Kataloge

NORDHAUS: Prospekt
NORDHAUS

NORDHAUS: Prospekt


NORDHAUS: Hauskatalog
NORDHAUS

NORDHAUS: Hauskatalog


House and TreeParksHouse and PinMusterhausHouse on HandAnbieter