1. AnbieterArrow Icon
  2. NORDHAUSArrow Icon
  3. EFH S-129
NORDHAUS - Modernes Einfamilienhaus mit Satteldach und Teilfassade aus hellem Holz | Einfamilienhaus EFH K-129 | Hausbau made im Bergischen
NORDHAUS Logo | Hausbau made im Bergischen
NORDHAUSEFH S-129
homeKlassische Familienhäuser
livingArea129 m²
energyStandardEffizienzhaus 40
Preis anfragen
Katalog bestellen

EFH S-129

Großes Wohngefühl für kleines Geld!

Die einzigartige Holzoptik an der Außenfassade des Obergeschosses, ein günstiges Preis-/ Leistungsverhältnis und die laufend niedrigen Heizkosten zeichnen dieses Einfamilienhaus aus der EcoPur-Reihe aus.

Weitere Informationen zu dem Haustyp EFH S-129 finden Sie hier.

Hausdaten

Hausart Icon
HausartEinfamilienhaus
Bauweise Icon
BauweiseHolz-Tafelbau
Anzahl Räume Icon
Anzahl Räume4
Baustil Icon
BaustilKlassische Familienhäuser
Fassade Icon
FassadePutz
Außenmaße Icon
Außenmaße1071 m x 7.41 m
Wohnfläche Icon
Wohnfläche128.8 m²
Dachform Icon
DachformSattel-/Giebeldach
Energiestandard Icon
EnergiestandardEffizienzhaus 40
Immobilientyp Icon
ImmobilientypPlanungsidee
Dachneigung Icon
Dachneigung25°
Heizungsart Icon
HeizungsartWärmepumpe (Luft, Wasser, oder beides)
Pfeil nach unten linksWir schaffen Platz für Ihre Träume

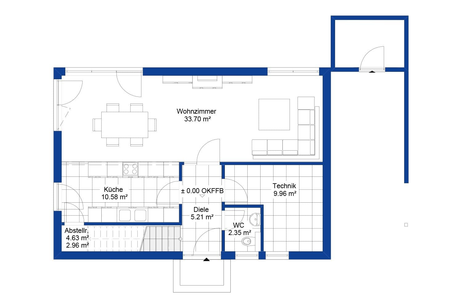
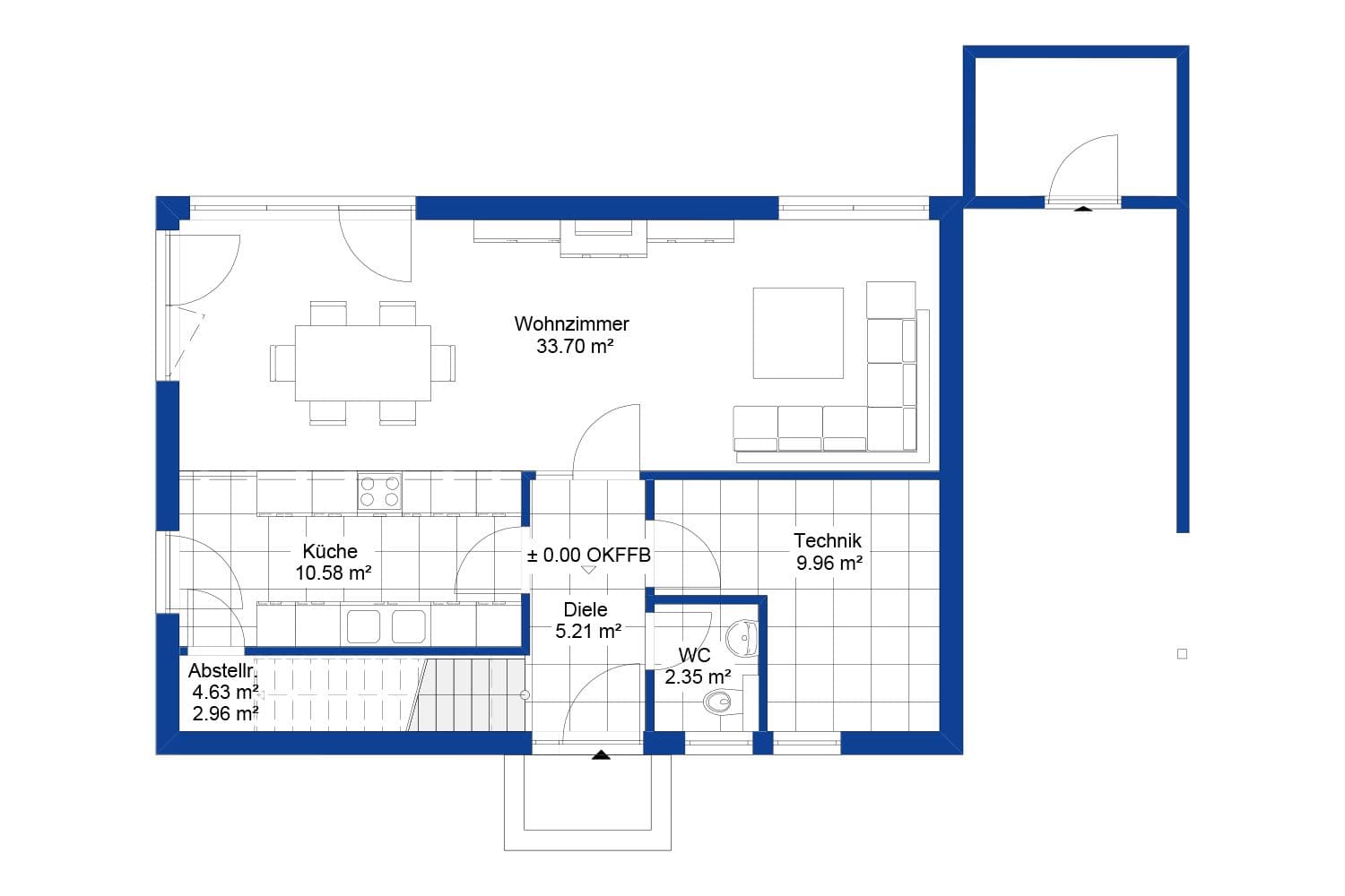
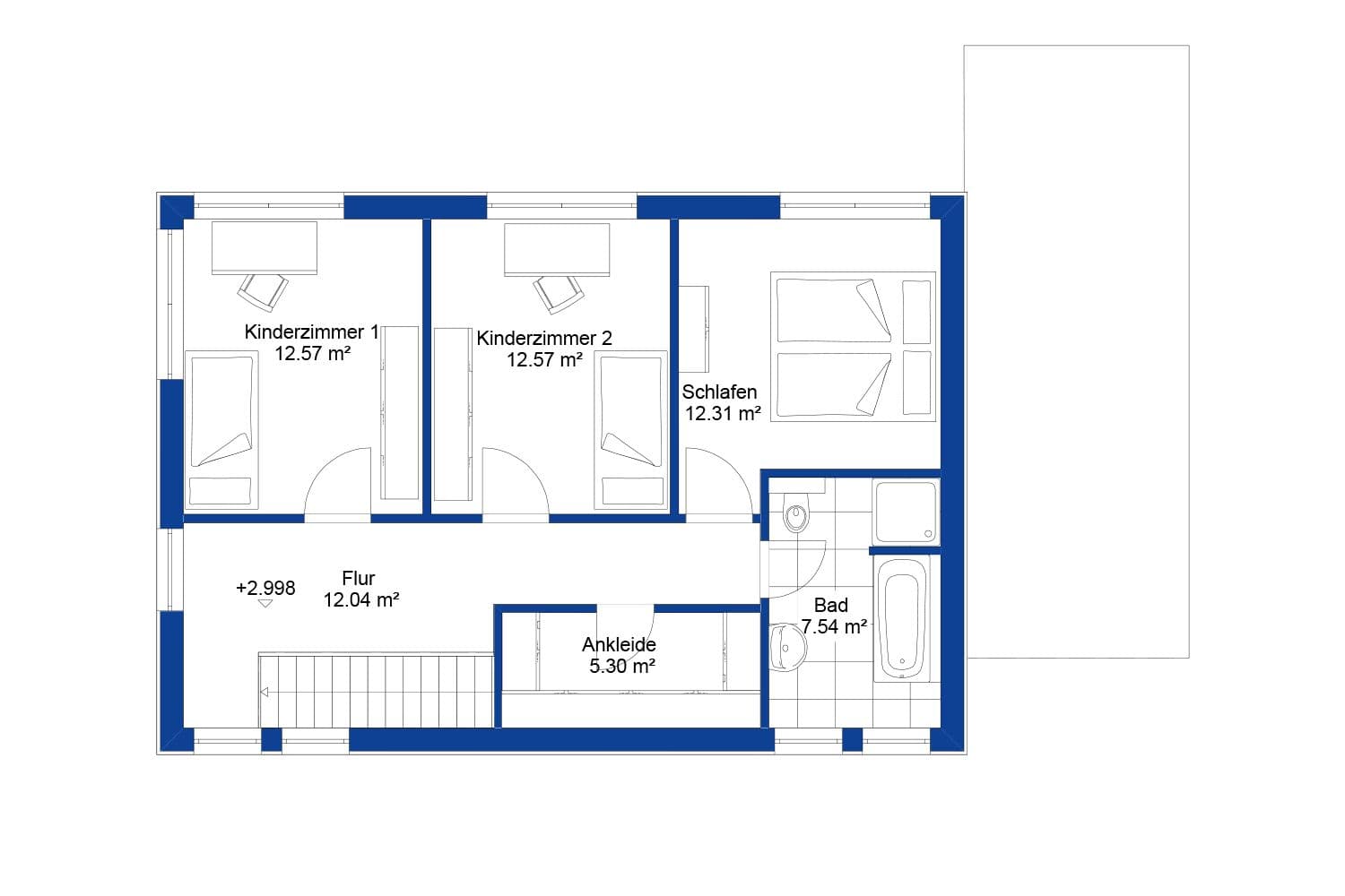
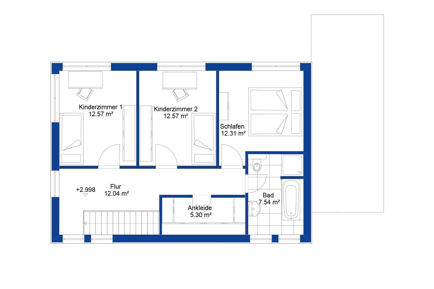
Grundriss

NORDHAUS | Grundriss Erdgeschoss Einfamilienhaus EFH S-129 | Hausbau made im Bergischen
EFH S-129 Grundriss (EG)Wohnfläche EG: 66,5 m²
NORDHAUS | Grundriss Obergeschoss Einfamilienhaus EFH S-129 | Hausbau made im Bergischen
EFH S-129 Grundriss (OG)Wohnfläche OG: 62,3 m²

Unser Team vor Ort

NORDHAUS TeamFachberater*in bei NORDHAUS
NORDHAUS | Luftaufnahme des Werkstandorts | Hausbau made im Bergischen
Wir beraten Sie gerne!Arrow Icon

Kataloge

NORDHAUS: Prospekt
NORDHAUS

NORDHAUS: Prospekt


NORDHAUS: Hauskatalog
NORDHAUS

NORDHAUS: Hauskatalog


House and TreeParksHouse and PinMusterhausHouse on HandAnbieter