1. AnbieterArrow Icon
  2. NORDHAUSArrow Icon
  3. ZFH 201
NORDHAUS - Zweifamilienhaus mit klassischem Satteldach | Zweifamilienhaus ZFH 201 | Hausbau made im Bergischen
NORDHAUS Logo | Hausbau made im Bergischen
NORDHAUSZFH 201
homeKlassische Familienhäuser
livingArea201 m²
energyStandardEffizienzhaus 40
Preis anfragen
Katalog bestellen

ZFH 201

Ein freundliches Zuhause.

Mit seinem ansprechendem Äußeren und einem gut durchdachten Grundriss überzeugt dieses einladende Zweifamilienhaus.

Weitere Informationen zu dem Haustyp ZFH 201 finden Sie hier.

Hausdaten

Hausart Icon
HausartZweifamilienhaus
Bauweise Icon
BauweiseHolz-Tafelbau
Anzahl Räume Icon
Anzahl Räume7
Baustil Icon
BaustilKlassische Familienhäuser
Fassade Icon
FassadePutz
Außenmaße Icon
Außenmaße12.51 m x 10.11 m
Wohnfläche Icon
Wohnfläche200.61 m²
Dachform Icon
DachformSattel-/Giebeldach
Etagen Icon
Etagen1.5
Energiestandard Icon
EnergiestandardEffizienzhaus 40
Immobilientyp Icon
ImmobilientypPlanungsidee
Dachneigung Icon
Dachneigung42°
Kniestock Icon
Kniestock0.5 m
Heizungsart Icon
HeizungsartWärmepumpe (Luft, Wasser, oder beides)
Pfeil nach unten linksWir schaffen Platz für Ihre Träume

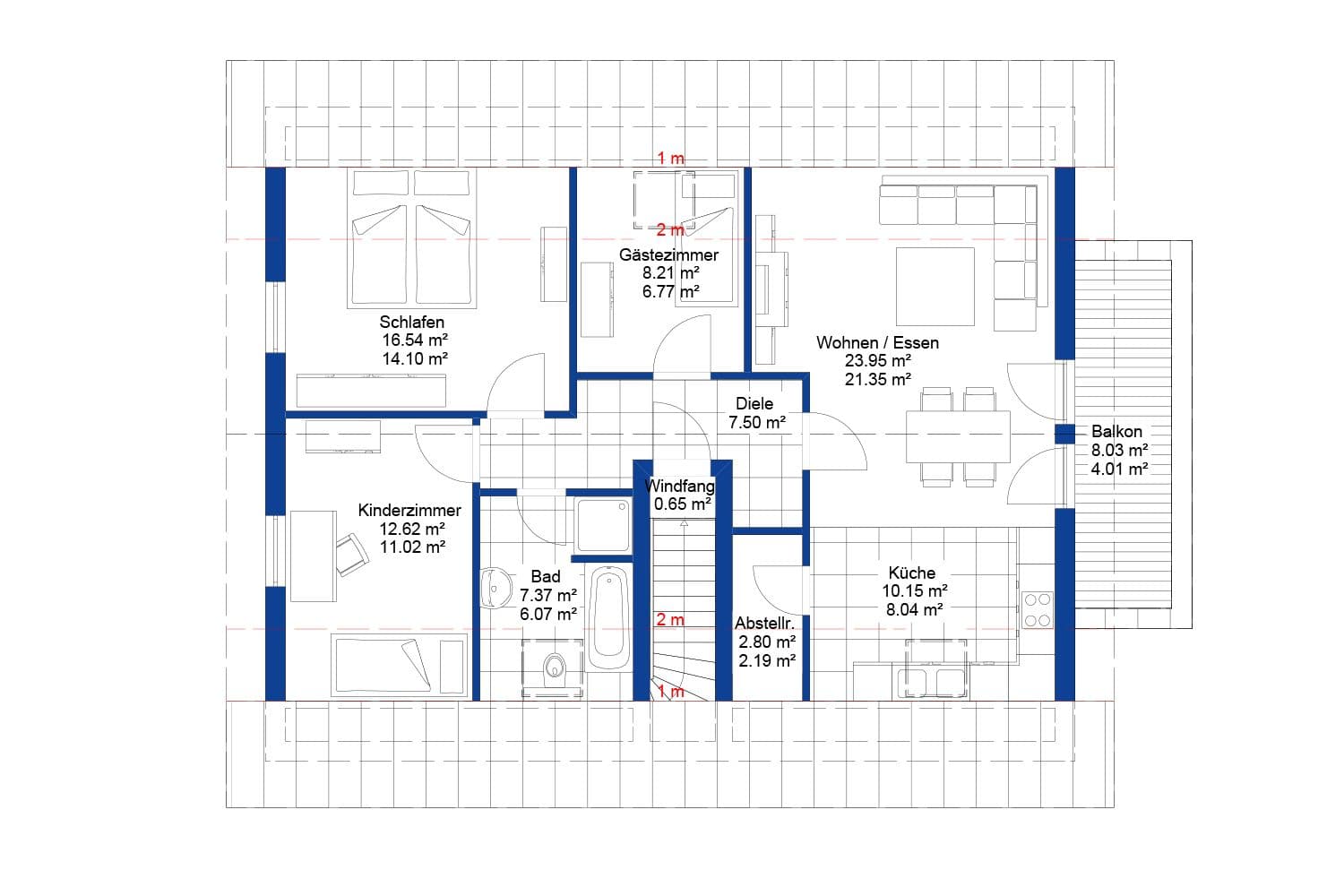
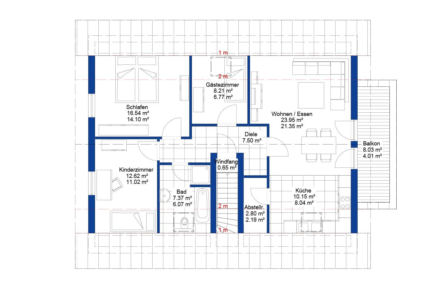
Grundriss

NORDHAUS | Grundriss Erdgeschoss Zweifamilienhaus ZFH 201 | Hausbau made im Bergischen
ZFH 201 Grundriss (EG)Wohnfläche EG: 106,84 m²
NORDHAUS | Grundriss Obergeschoss Zweifamilienhaus ZFH 201 | Hausbau made im Bergischen
ZFH 201 Grundriss (OG)Wohnfläche OG: 93,77 m²

Unser Team vor Ort

NORDHAUS TeamFachberater*in bei NORDHAUS
NORDHAUS | Luftaufnahme des Werkstandorts | Hausbau made im Bergischen
Wir beraten Sie gerne!Arrow Icon

Kataloge

NORDHAUS: Prospekt
NORDHAUS

NORDHAUS: Prospekt


NORDHAUS: Hauskatalog
NORDHAUS

NORDHAUS: Hauskatalog


House and TreeParksHouse and PinMusterhausHouse on HandAnbieter