1. AnbieterArrow Icon
  2. NORDHAUSArrow Icon
  3. EFH K-128
NORDHAUS - Klassisches und modernes Einfamilienhaus mit Satteldach | Einfamilienhaus EFH K-128 | Hausbau made im Bergischen
NORDHAUS Logo | Hausbau made im Bergischen
NORDHAUSEFH K-128
homeKlassische Familienhäuser
livingArea128 m²
energyStandardEffizienzhaus 40
Preis anfragen
Katalog bestellen

EFH K-128

Kompakt und doch großzügig.

Außen wie innen überzeugt das Einfamilienhaus mit seinem strukturierten Charme.
Das klar gegliederte äußere Erscheinungsbild wird innen durch die geschickte Raumaufteilung noch verstärkt.

Weitere Informationen zu dem Haustyp EFH K-128 finden Sie hier.

Hausdaten

Hausart Icon
HausartEinfamilienhaus
Bauweise Icon
BauweiseHolz-Tafelbau
Anzahl Räume Icon
Anzahl Räume5
Baustil Icon
BaustilKlassische Familienhäuser
Fassade Icon
FassadePutz
Außenmaße Icon
Außenmaße9.21 m x 9.51 m
Wohnfläche Icon
Wohnfläche127.8 m²
Dachform Icon
DachformSattel-/Giebeldach
Energiestandard Icon
EnergiestandardEffizienzhaus 40
Immobilientyp Icon
ImmobilientypPlanungsidee
Dachneigung Icon
Dachneigung42°
Hauseigenschaften Icon
HauseigenschaftenGästezimmer
Heizungsart Icon
HeizungsartWärmepumpe (Luft, Wasser, oder beides)
Pfeil nach unten linksWir schaffen Platz für Ihre Träume

Grundriss

NORDHAUS | Grundriss Erdgeschoss Einfamilienhaus EFH K-128 | Hausbau made im Bergischen
EFH K-128 Grundriss (EG)Wohnfläche EG: 74 m²
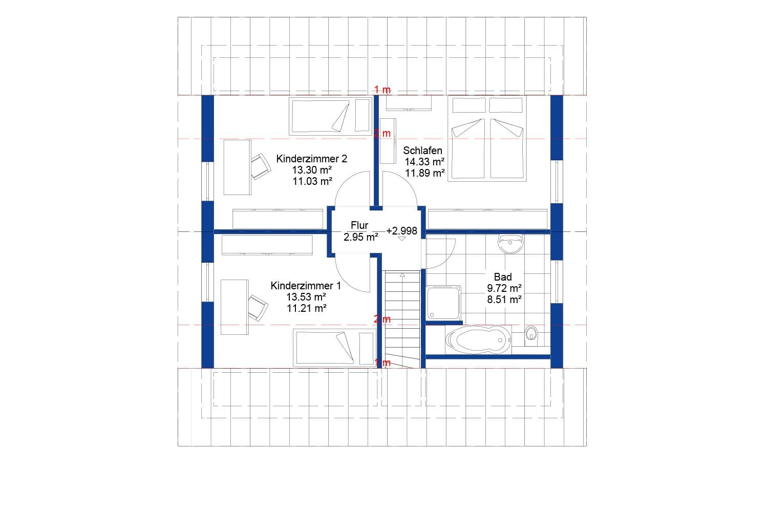
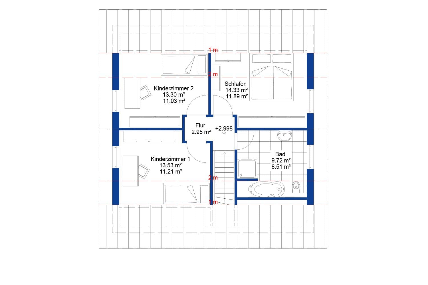
NORDHAUS | Grundriss Obergeschoss Einfamilienhaus EFH K-128 | Hausbau made im Bergischen
EFH K-128 Grundriss (OG)

Unser Team vor Ort

NORDHAUS TeamFachberater*in bei NORDHAUS
NORDHAUS | Luftaufnahme des Werkstandorts | Hausbau made im Bergischen
Wir beraten Sie gerne!Arrow Icon

Kataloge

NORDHAUS: Prospekt
NORDHAUS

NORDHAUS: Prospekt


NORDHAUS: Hauskatalog
NORDHAUS

NORDHAUS: Hauskatalog


House and TreeParksHouse and PinMusterhausHouse on HandAnbieter