1. AnbieterArrow Icon
  2. NORDHAUSArrow Icon
  3. EFH K-125
NORDHAUS - Klassisches und modernes Einfamilienhaus mit Satteldach | Einfamilienhaus EFH K-125 | Hausbau made im Bergischen
NORDHAUS Logo | Hausbau made im Bergischen
NORDHAUSEFH K-125
homeKlassische Familienhäuser
livingArea125 m²
energyStandardEffizienzhaus 40
Preis anfragen
Katalog bestellen

EFH K-125

Heimkommen und ankommen im Wohnfühlhaus.

Der ideale Hausvorschlag für zwei bis drei Personen.
Wohnen in moderner und doch zeitloser Architektur.

Weitere Informationen zu dem Haustyp EFH K-125 finden Sie hier.

Hausdaten

Hausart Icon
HausartEinfamilienhaus
Bauweise Icon
BauweiseHolz-Tafelbau
Anzahl Räume Icon
Anzahl Räume4
Baustil Icon
BaustilKlassische Familienhäuser
Fassade Icon
FassadePutz
Außenmaße Icon
Außenmaße10.41 m x 7.41 m
Wohnfläche Icon
Wohnfläche124.5 m²
Dachform Icon
DachformSattel-/Giebeldach
Etagen Icon
Etagen1.5
Energiestandard Icon
EnergiestandardEffizienzhaus 40
Immobilientyp Icon
ImmobilientypPlanungsidee
Dachneigung Icon
Dachneigung42°
Kniestock Icon
Kniestock1 m
Heizungsart Icon
HeizungsartWärmepumpe (Luft, Wasser, oder beides)
Pfeil nach unten linksWir schaffen Platz für Ihre Träume

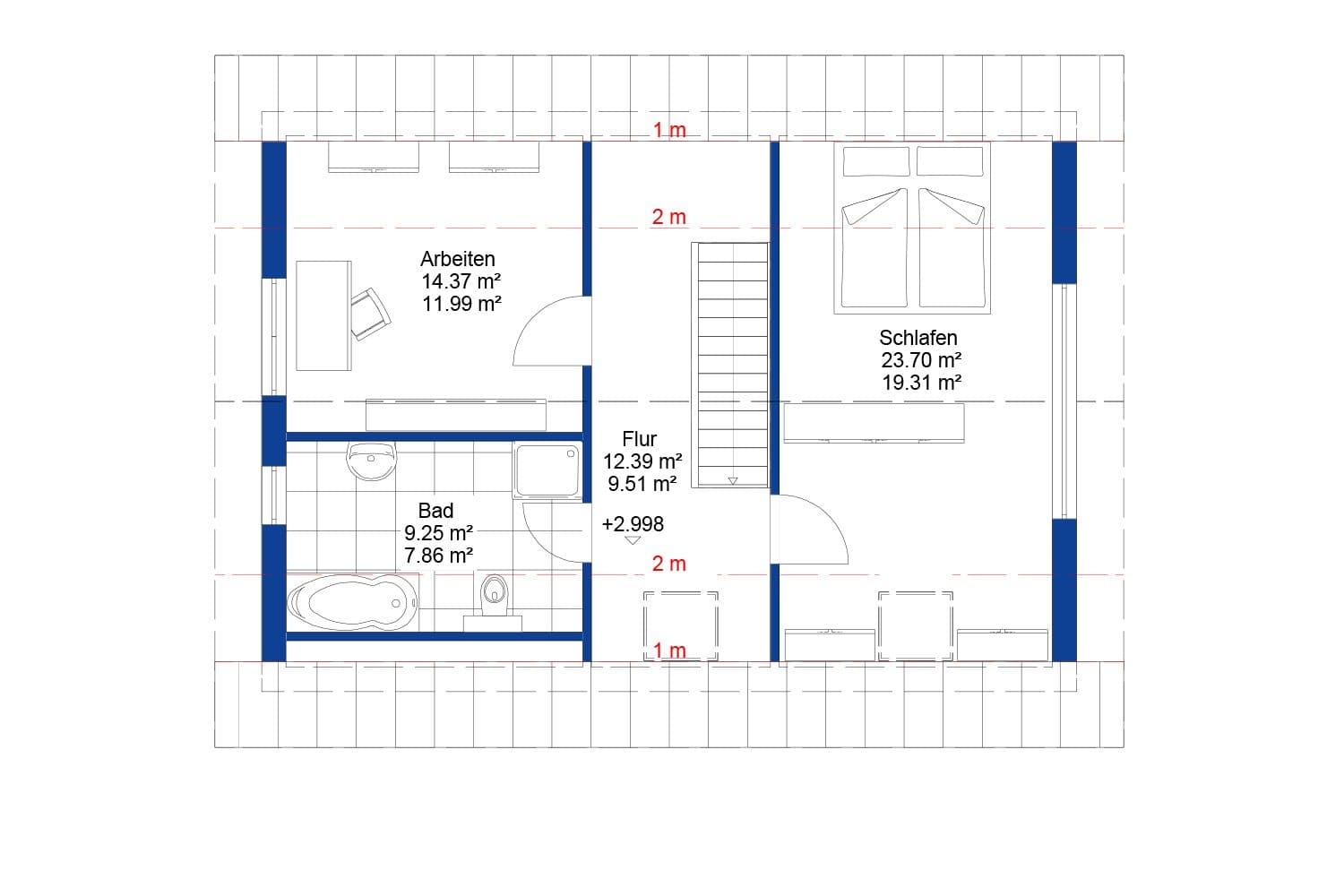
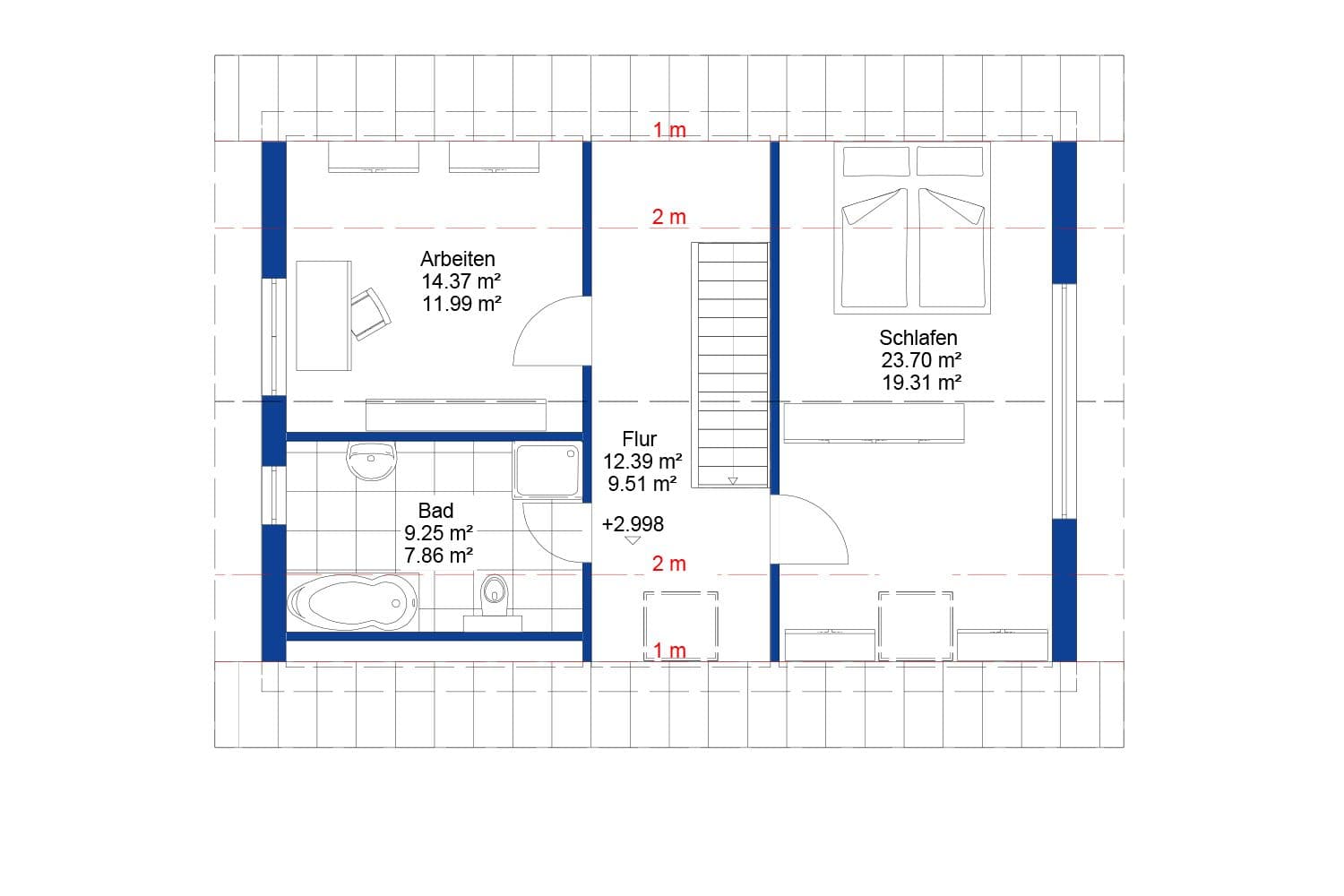
Grundriss

NORDHAUS | Grundriss Erdgeschoss Einfamilienhaus EFH K-125 | Hausbau made im Bergischen
EFH K-125 Grundriss (EG)Wohnfläche EG: 64,7 m²
NORDHAUS | Grundriss Obergeschoss Einfamilienhaus EFH K-125 | Hausbau made im Bergischen
EFH K-125 Grundriss (OG)Wohnfläche OG: 59,8 m²

Unser Team vor Ort

NORDHAUS TeamFachberater*in bei NORDHAUS
NORDHAUS | Luftaufnahme des Werkstandorts | Hausbau made im Bergischen
Wir beraten Sie gerne!Arrow Icon

Kataloge

NORDHAUS: Prospekt
NORDHAUS

NORDHAUS: Prospekt


NORDHAUS: Hauskatalog
NORDHAUS

NORDHAUS: Hauskatalog


House and TreeParksHouse and PinMusterhausHouse on HandAnbieter