1. AnbieterArrow Icon
  2. NORDHAUSArrow Icon
  3. EFH S-164
NORDHAUS - Moderne Stadtvilla | Einfamilienhaus EFH S-164 | Hausbau made im Bergischen
NORDHAUS Logo | Hausbau made im Bergischen
NORDHAUSEFH S-164
homeStadtvillen
livingArea164 m²
energyStandardEffizienzhaus 40
Preis anfragen
Katalog bestellen

EFH S-164

Großzügigkeit kompakt verpackt.

Großzügigkeit kompakt verpackt.
Auf zwei Vollgeschossen finden Sie lebendige Leichtigkeit und weitläufige Atmosphäre.

Weitere Informationen zu dem Haustyp EFH S-164 finden Sie hier.

Hausdaten

Hausart Icon
HausartEinfamilienhaus
Bauweise Icon
BauweiseHolz-Tafelbau
Anzahl Räume Icon
Anzahl Räume5
Baustil Icon
BaustilStadtvillen
Fassade Icon
FassadePutz
Außenmaße Icon
Außenmaße11.91 m x 8.31 m
Wohnfläche Icon
Wohnfläche164.1 m²
Dachform Icon
DachformSattel-/Giebeldach
Etagen Icon
Etagen1.5
Energiestandard Icon
EnergiestandardEffizienzhaus 40
Immobilientyp Icon
ImmobilientypPlanungsidee
Dachneigung Icon
Dachneigung25°
Hauseigenschaften Icon
HauseigenschaftenViel Glas
Heizungsart Icon
HeizungsartWärmepumpe (Luft, Wasser, oder beides)
Pfeil nach unten linksWir schaffen Platz für Ihre Träume

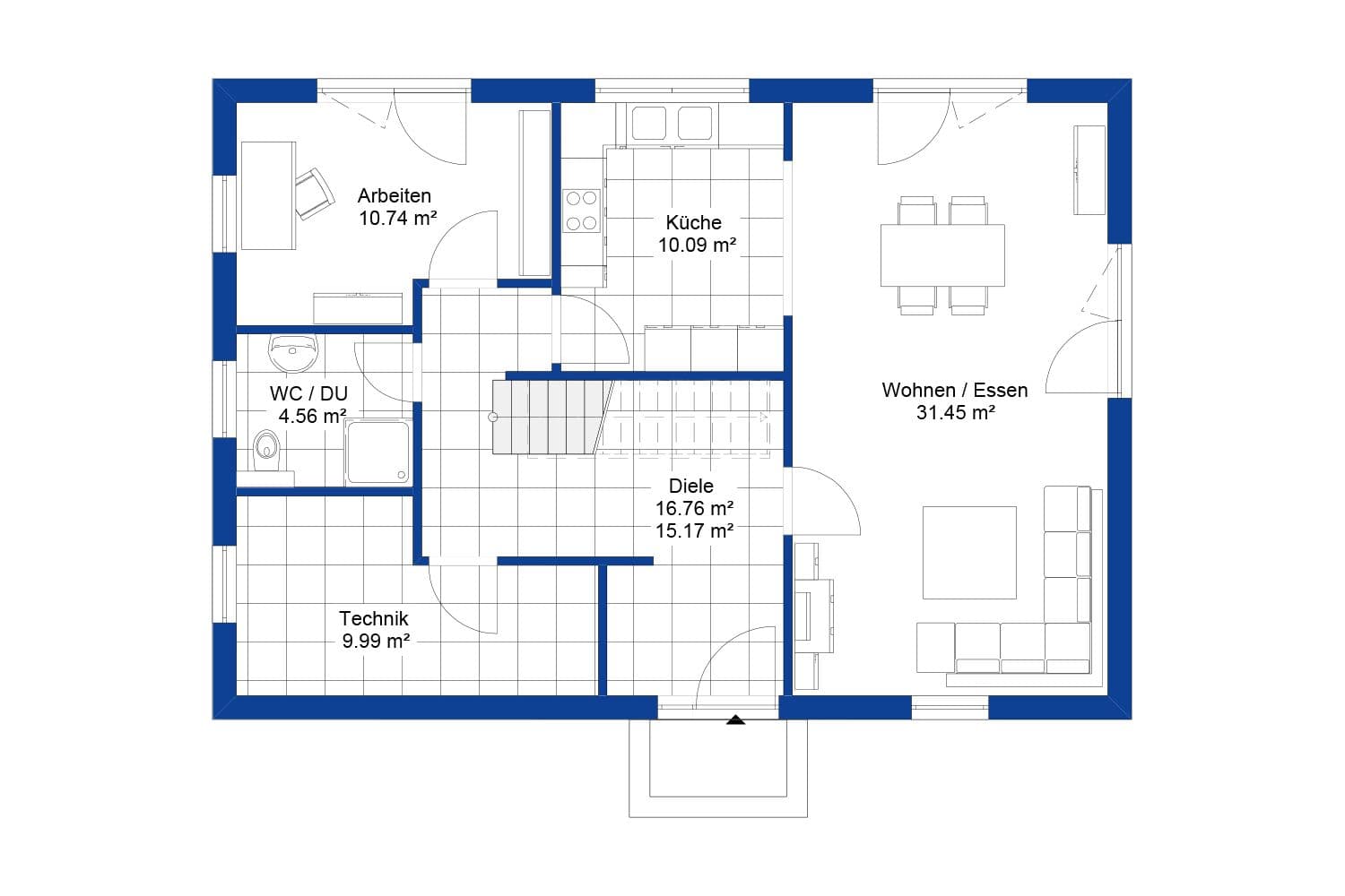
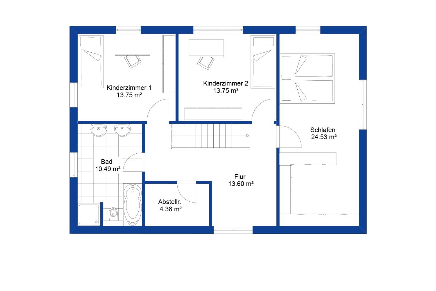
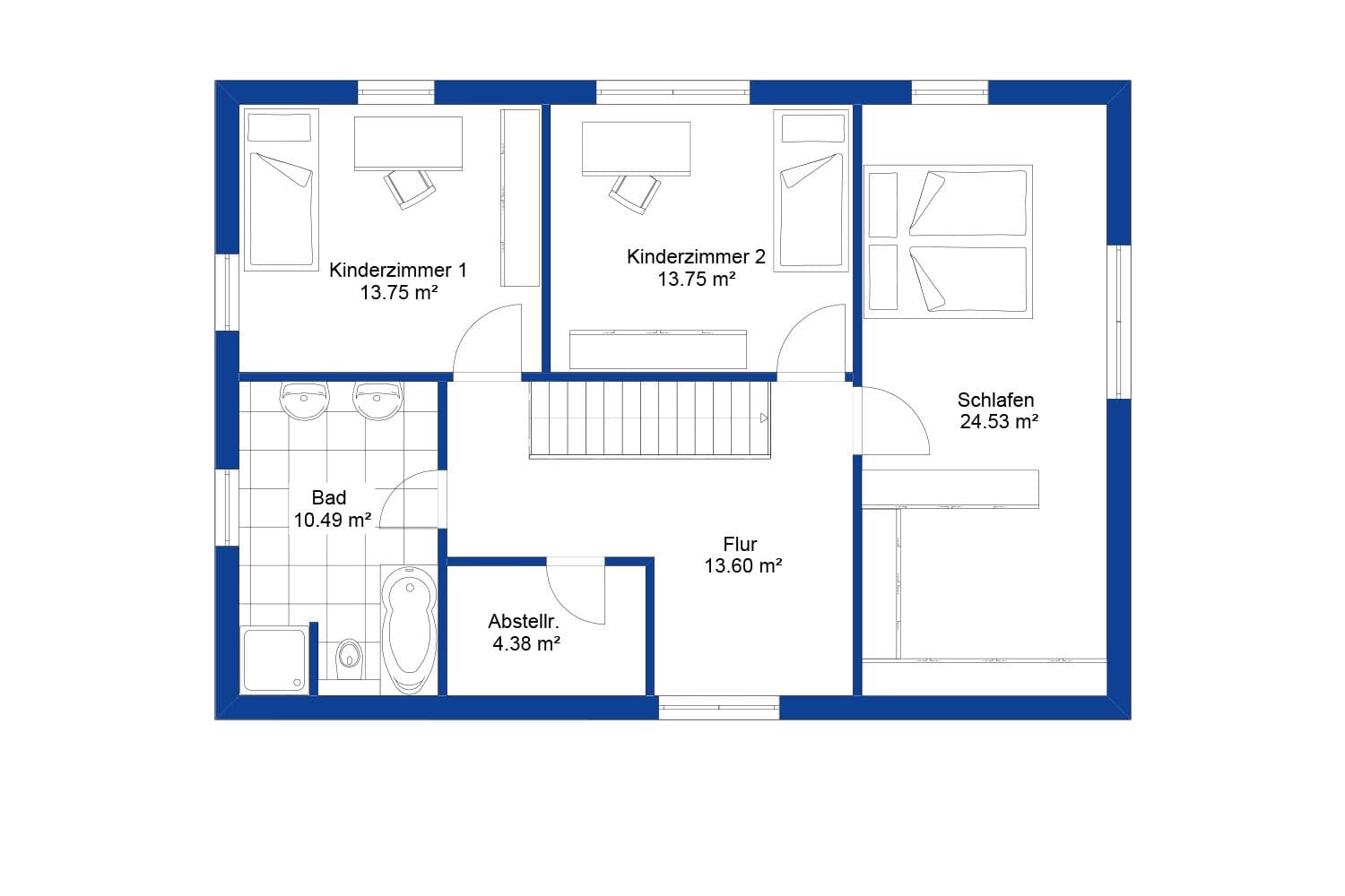
Grundriss

NORDHAUS | Grundriss Erdgeschoss Einfamilienhaus EFH S-164 | Hausbau made im Bergischen
EFH S-164 Grundriss (EG)Wohnfläche EG: 83,6 m²
NORDHAUS | Grundriss Obergeschoss Einfamilienhaus EFH S-164 | Hausbau made im Bergischen
EFH S-164 Grundriss (OG)Wohnfläche OG: 80,51 m²

Unser Team vor Ort

NORDHAUS TeamFachberater*in bei NORDHAUS
NORDHAUS | Luftaufnahme des Werkstandorts | Hausbau made im Bergischen
Wir beraten Sie gerne!Arrow Icon

Kataloge

NORDHAUS: Prospekt
NORDHAUS

NORDHAUS: Prospekt


NORDHAUS: Hauskatalog
NORDHAUS

NORDHAUS: Hauskatalog


House and TreeParksHouse and PinMusterhausHouse on HandAnbieter