1. AnbieterArrow Icon
  2. NORDHAUSArrow Icon
  3. EFH K-149
NORDHAUS - Modernes Einfamilienhaus mit versetztem Pultdach | Einfamilienhaus EFH K-149 | Hausbau made im Bergischen
NORDHAUS Logo | Hausbau made im Bergischen
NORDHAUSEFH K-149
homeKlassische Familienhäuser
livingArea148 m²
energyStandardEffizienzhaus 40
Preis anfragen
Katalog bestellen

EFH K-149

Der erste Eindruck überzeugt!

Die ungewöhnliche Optik mit dem versetzten Pultdach ist ein Hingucker, die geschickte Raumaufteilung lässt keine Wünsche offen.
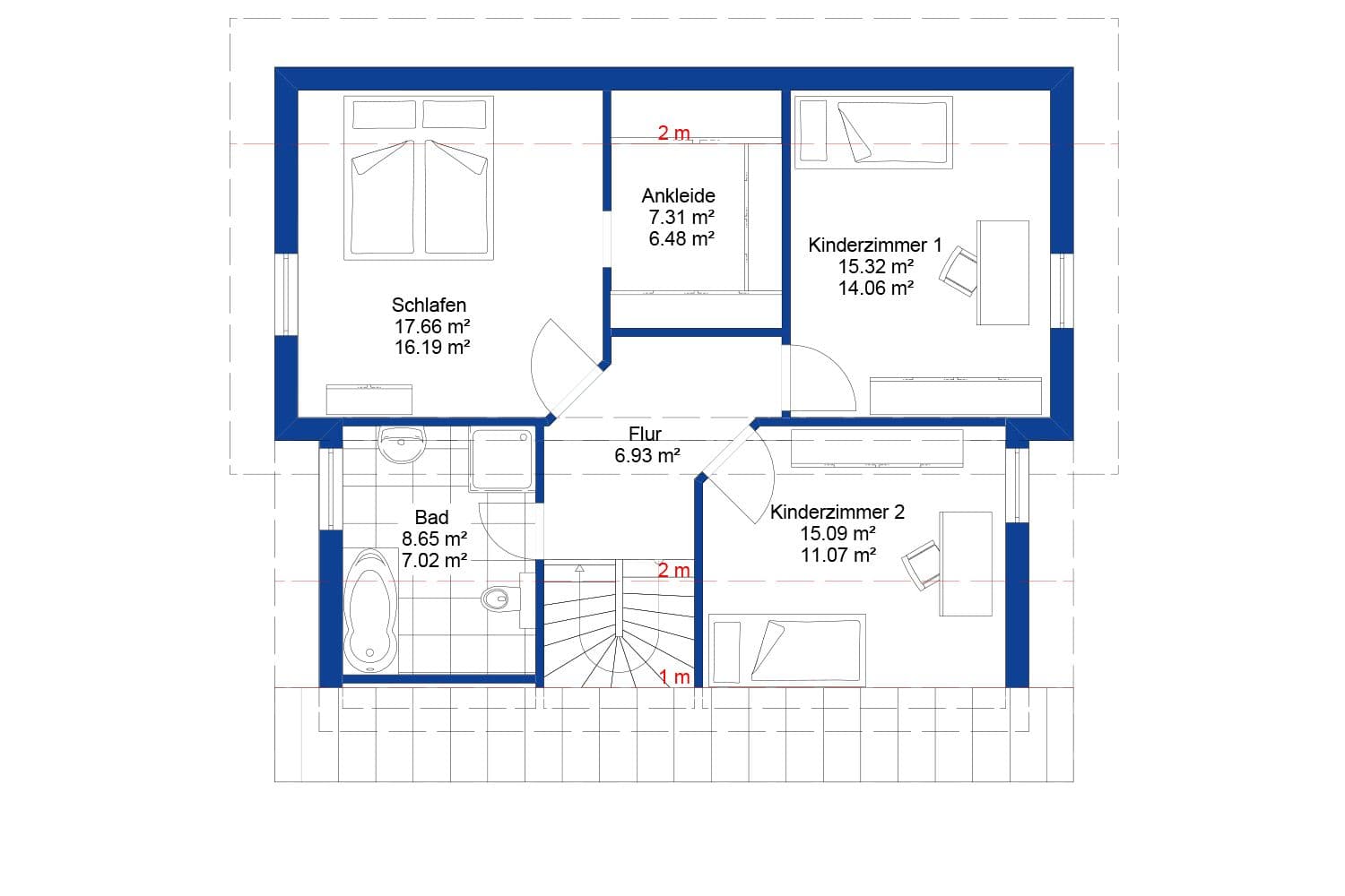
Für die Eltern gibt es neben dem Schlafraum einen separaten Ankleideraum.

Weitere Informationen zu dem Haustyp EFH K-149 finden Sie hier.

Hausdaten

Hausart Icon
HausartEinfamilienhaus
Bauweise Icon
BauweiseHolz-Tafelbau
Anzahl Räume Icon
Anzahl Räume4
Baustil Icon
BaustilKlassische Familienhäuser
Fassade Icon
FassadePutz
Außenmaße Icon
Außenmaße10.71 m x 8.91 m
Wohnfläche Icon
Wohnfläche148 m²
Dachform Icon
DachformVersetztes Pultdach
Energiestandard Icon
EnergiestandardEffizienzhaus 40
Immobilientyp Icon
ImmobilientypPlanungsidee
Dachneigung Icon
Dachneigung30°
Kniestock Icon
Kniestock0.9 m
Heizungsart Icon
HeizungsartWärmepumpe (Luft, Wasser, oder beides)
Pfeil nach unten linksWir schaffen Platz für Ihre Träume

Grundriss

NORDHAUS | Grundriss Erdgeschoss Einfamilienhaus EFH K-149 | Hausbau made im Bergischen
EFH K-149 Grundriss (EG)Wohnfläche EG: 77 m²
NORDHAUS | Grundriss Obergeschoss Einfamilienhaus EFH K-149 | Hausbau made im Bergischen
EFH K-149 Grundriss (DG)Wohnfläche DG: 71 m²

Unser Team vor Ort

NORDHAUS TeamFachberater*in bei NORDHAUS
NORDHAUS | Luftaufnahme des Werkstandorts | Hausbau made im Bergischen
Wir beraten Sie gerne!Arrow Icon

Kataloge

NORDHAUS: Prospekt
NORDHAUS

NORDHAUS: Prospekt


NORDHAUS: Hauskatalog
NORDHAUS

NORDHAUS: Hauskatalog


House and TreeParksHouse and PinMusterhausHouse on HandAnbieter