1. AnbieterArrow Icon
  2. NORDHAUSArrow Icon
  3. EFH K-144
NORDHAUS - Klassisches Einfamilienhaus mit Satteldach und Flachdachgaube | Einfamilienhaus EFH K-144 | Hausbau made im Bergischen
NORDHAUS Logo | Hausbau made im Bergischen
NORDHAUSEFH K-144
homeKlassische Familienhäuser
livingArea143 m²
energyStandardEffizienzhaus 40
Preis anfragen
Katalog bestellen

EFH K-144

Wohnen in und mit der Natur.

Die bodentiefen Fensterelemente bieten einen fließenden Übergang nach außen.
Die Dachgaube bringt zusätzlich Licht und Raum ins Dachgeschoss.
Auf Wunsch farbige Teilflächen des Außenputzes lockern die Fasssade auf.

Weitere Informatione zu dem Haustyp EFH K-144 finden Sie hier.

Hausdaten

Hausart Icon
HausartEinfamilienhaus
Bauweise Icon
BauweiseHolz-Tafelbau
Anzahl Räume Icon
Anzahl Räume4
Baustil Icon
BaustilKlassische Familienhäuser
Fassade Icon
FassadePutz
Außenmaße Icon
Außenmaße10.11 m x 8.61 m
Wohnfläche Icon
Wohnfläche143.4 m²
Dachform Icon
DachformSattel-/Giebeldach
Energiestandard Icon
EnergiestandardEffizienzhaus 40
Immobilientyp Icon
ImmobilientypPlanungsidee
Dachneigung Icon
Dachneigung38°
Kniestock Icon
Kniestock1 m
Heizungsart Icon
HeizungsartWärmepumpe (Luft, Wasser, oder beides)
Pfeil nach unten linksWir schaffen Platz für Ihre Träume

Grundriss

NORDHAUS | Grundriss Erdgeschoss Einfamilienhaus EFH K-144 | Hausbau made im Bergischen
EFH K-144 Grundriss (EG)Wohnfläche EG: 73,92 m²
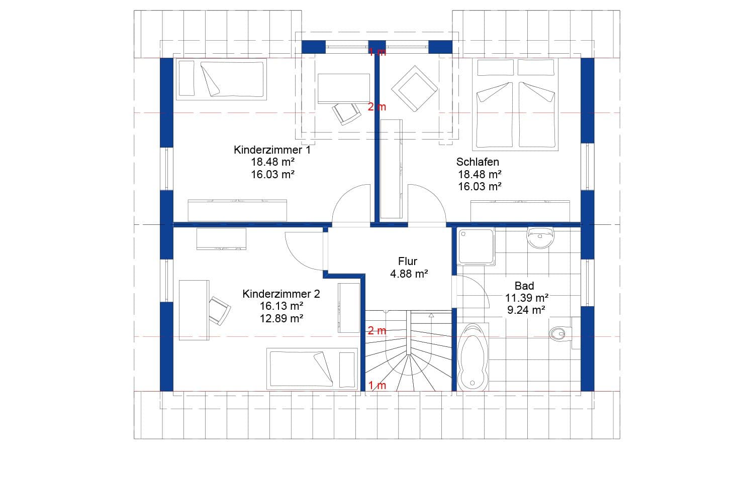
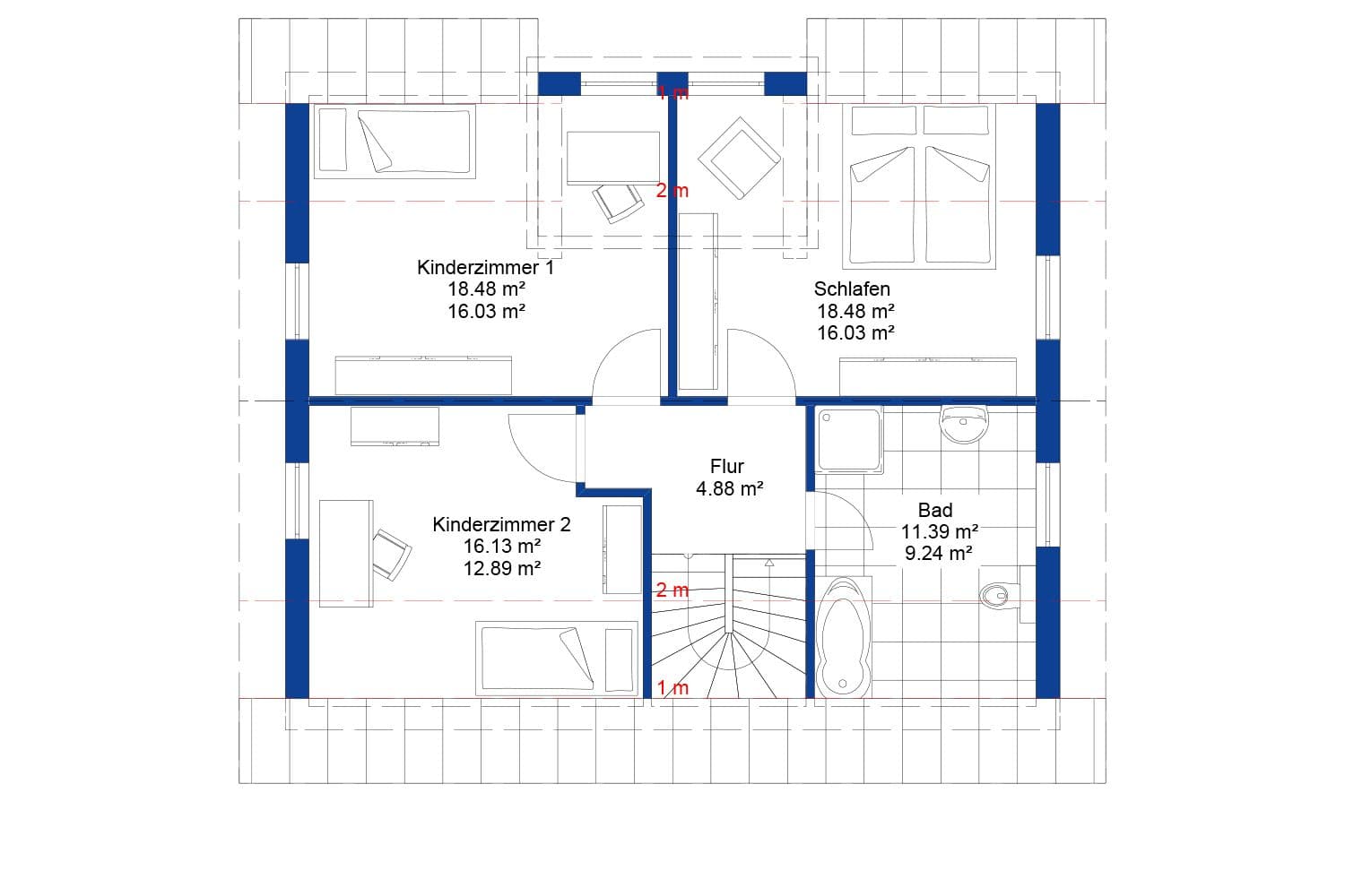
NORDHAUS | Grundriss Obergeschoss Einfamilienhaus EFH K-144 | Hausbau made im Bergischen
EFH K-144 Grundriss (DG)Wohnfläche DG: 69,48 m²

Unser Team vor Ort

NORDHAUS TeamFachberater*in bei NORDHAUS
NORDHAUS | Luftaufnahme des Werkstandorts | Hausbau made im Bergischen
Wir beraten Sie gerne!Arrow Icon

Kataloge

NORDHAUS: Prospekt
NORDHAUS

NORDHAUS: Prospekt


NORDHAUS: Hauskatalog
NORDHAUS

NORDHAUS: Hauskatalog


House and TreeParksHouse and PinMusterhausHouse on HandAnbieter