1. AnbieterArrow Icon
  2. NORDHAUSArrow Icon
  3. EFH K-119
NORDHAUS - Klassisches und modernes Einfamilienhaus mit Satteldach und Holzakzenten | Einfamilienhaus EFH K-119 | Hausbau made im Bergischen
NORDHAUS Logo | Hausbau made im Bergischen
NORDHAUSEFH K-119
homeKlassische Familienhäuser
livingArea119 m²
energyStandardEffizienzhaus 40
Preis anfragen
Katalog bestellen

EFH K-119

Ein Haus mit klaren Strukturen und interessanten Details.

Unter dem Satteldach mit einem großzügigen Kniestock finden Sie viel Raum und architektonische Geräumigkeit.
Mit wenig Änderungen sind auch zwei Kinderzimmer im Dachgeschoss möglich.

Weitere Informationen zu dem Haustyp EFH K-119 finden Sie hier.

Hausdaten

Hausart Icon
HausartEinfamilienhaus
Bauweise Icon
BauweiseHolz-Tafelbau
Anzahl Räume Icon
Anzahl Räume4
Baustil Icon
BaustilKlassische Familienhäuser
Fassade Icon
FassadePutz
Außenmaße Icon
Außenmaße10.41 m x 7.11 m
Wohnfläche Icon
Wohnfläche118.9 m²
Dachform Icon
DachformSattel-/Giebeldach
Energiestandard Icon
EnergiestandardEffizienzhaus 40
Immobilientyp Icon
ImmobilientypPlanungsidee
Dachneigung Icon
Dachneigung38°
Kniestock Icon
Kniestock1.5 m
Heizungsart Icon
HeizungsartWärmepumpe (Luft, Wasser, oder beides)
Pfeil nach unten linksWir schaffen Platz für Ihre Träume

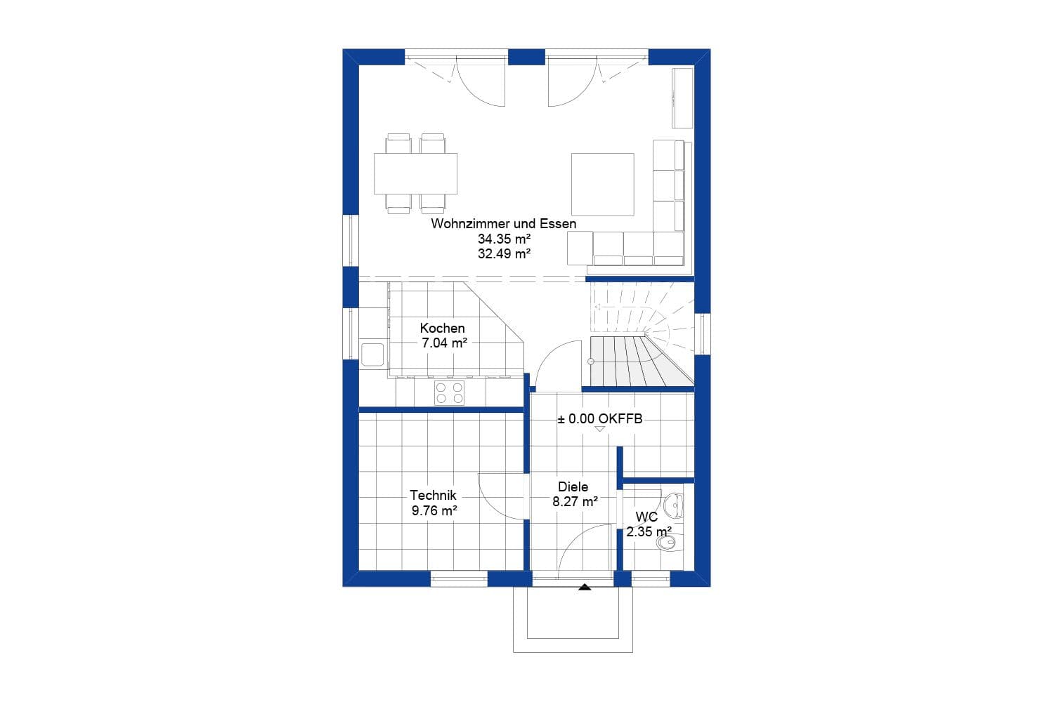
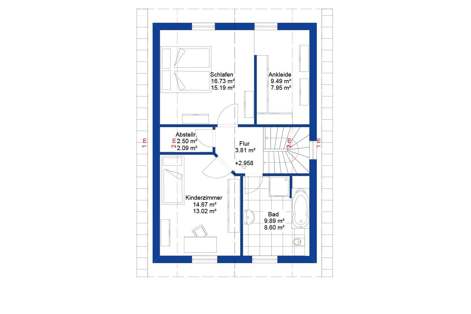
Grundriss

NORDHAUS | Grundriss Erdgeschoss Einfamilienhaus EFH K-119 | Hausbau made im Bergischen
EFH K-119 Grundriss (EG)Wohnfläche EG: 61,8 m²
NORDHAUS | Grundriss Obergeschoss Einfamilienhaus EFH K-119 | Hausbau made im Bergischen
EFH K-119 Grundriss (OG)

Unser Team vor Ort

NORDHAUS TeamFachberater*in bei NORDHAUS
NORDHAUS | Luftaufnahme des Werkstandorts | Hausbau made im Bergischen
Wir beraten Sie gerne!Arrow Icon

Kataloge

NORDHAUS: Prospekt
NORDHAUS

NORDHAUS: Prospekt


NORDHAUS: Hauskatalog
NORDHAUS

NORDHAUS: Hauskatalog


House and TreeParksHouse and PinMusterhausHouse on HandAnbieter