1. AnbieterArrow Icon
  2. NORDHAUSArrow Icon
  3. EFH S-155
NORDHAUS - Moderne Stadtvilla im Bauhaus-Stil und mit Holzfassade | Einfamilienhaus EFH S-155 | Hausbau made im Bergischen
NORDHAUS Logo | Hausbau made im Bergischen
NORDHAUSEFH S-155
homeKubushäuser im Bauhausstil
livingArea154 m²
energyStandardEffizienzhaus 40
Preis anfragen
Katalog bestellen

EFH S-155

Häuser aus Holz - innen wie außen

„Warum gibt es denn keine Fassaden in Holzoptik bei NORDHAUS? Ihr seid doch ein Fertighaushersteller, ihr baut doch nur mit Holz?!“
Richtig, wir bauen mit Holz!
Und dieses EcoPur Modell macht das auch nach außen hin sichtbar.

Weitere Informationen zu dem Haustyp EFH S-155 finden Sie hier.

Hausdaten

Hausart Icon
HausartEinfamilienhaus
Bauweise Icon
BauweiseHolz-Tafelbau
Anzahl Räume Icon
Anzahl Räume5
Baustil Icon
BaustilKubushäuser im Bauhausstil
Fassade Icon
FassadeHolz
Außenmaße Icon
Außenmaße11.7 m x 10.8 m
Wohnfläche Icon
Wohnfläche154.4 m²
Dachform Icon
DachformFlachdach
Energiestandard Icon
EnergiestandardEffizienzhaus 40
Immobilientyp Icon
ImmobilientypPlanungsidee
Hauseigenschaften Icon
HauseigenschaftenTerasse
Heizungsart Icon
HeizungsartWärmepumpe (Luft, Wasser, oder beides)
Pfeil nach unten linksWir schaffen Platz für Ihre Träume

Grundriss

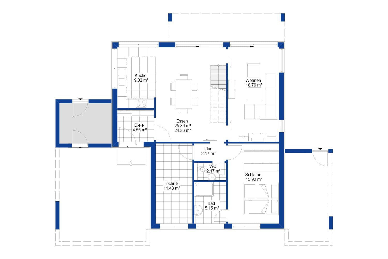
NORDHAUS | Grundriss Erdgeschoss Einfamilienhaus EFH S-155 | Hausbau made im Bergischen
EFH S-155 Grundriss (EG)Wohnfläche EG: 95,1 m²
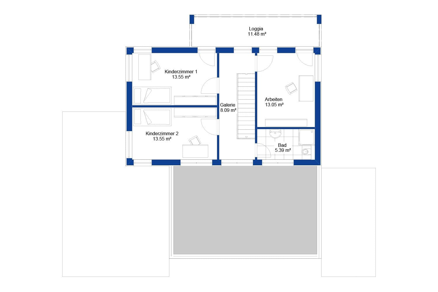
NORDHAUS | Grundriss Obergeschoss Einfamilienhaus EFH S-155 | Hausbau made im Bergischen
EFH S-155 Grundriss (OG)Wohnfläche OG: 53,6 m²

Kataloge

NORDHAUS: Prospekt
NORDHAUS

NORDHAUS: Prospekt


NORDHAUS: Hauskatalog
NORDHAUS

NORDHAUS: Hauskatalog


House and TreeParksHouse and PinMusterhausHouse on HandAnbieter