Das optisch überzeugende Einfamilienhaus mit stilvoller Außengestaltung ist zweigeschossig gebaut. Die weiße Putzfassade bildet einen modernen Kontrast zum anthrazitfarbenen Walmdach, den dunklen Fensterrahmen und der hochwertigen Eingangstüre. Großzügig und offen empfängt die Stadtvilla mit quadratischem Grundriss und direkt angebauter Doppelgarage den Besucher, der das Haus über eine weitläufige Diele betritt. Hier fühlt sich jeder gleich wohl und trotz der Größe nicht verloren.
Mit pfiffigen Ideen und durchdachter räumlicher Aufteilung findet man genauso schnell sein Lieblingsplätzchen oder den zentralen kommunikativen Ort – die offene Küche. Traditionell ist sie ja das Kommunikationszentrum schlechthin. Moderne, funktionale Einrichtungselemente und eine zentrale, freistehende Arbeitsfläche mit Induktionsherd laden zum gemeinsamen Kochen, miteinander Reden und Genießen ein. Die Vorräte findet man in einer von zwei Seiten, auch direkt von der Diele, begehbaren Speisekammer. Übrigens ist die KAMPA Küche natürlich mit energiesparenden Geräten ausgestattet: Alle Haushaltsgeräte haben im Standard die Effizienzklasse A++. Mit größter Sorgfalt und perfekt durchdacht wurde diese Küche von den Spezialisten im KAMPA eigenen Küchenstudio geplant und ausgeführt. Mehr Platz durch Technikraum in der Garage.
Die bodentiefen Fenster im Wohn- und Essraum mit Dreischeiben-Verglasung bringen Licht und die Natur praktisch direkt ins Haus. Der gemütliche Teil mit Kuschelsofa ist vom Esstisch mit einer Wandscheibe getrennt, die den Raum optimal gliedert. Abgeteilt, aber dennoch offen, ist ein Arbeits- oder Gästezimmer angegliedert. Ein gelungener Ort, um sich zurückzuziehen und trotzdem kann man durch die großzügige Schiebetüre mittendrin sein. In der über 80 Quadratmeter großen Erdgeschossebene findet man alles zum Wohlfühlen, aber keine Haustechnik. Hier zeigt sich die Intelligenz der Architektur. Der Garagenanbau bietet reichlich Raum für zwei Fahrzeuge, einen Abstellraum und vor allem die komplette Haustechnik. Das schafft wertvollem Wohnraum. Von der Garage geht es direkt und witterungsunabhängig ins Haus.
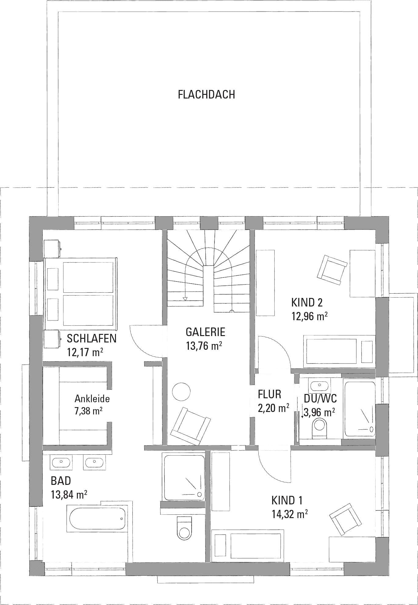
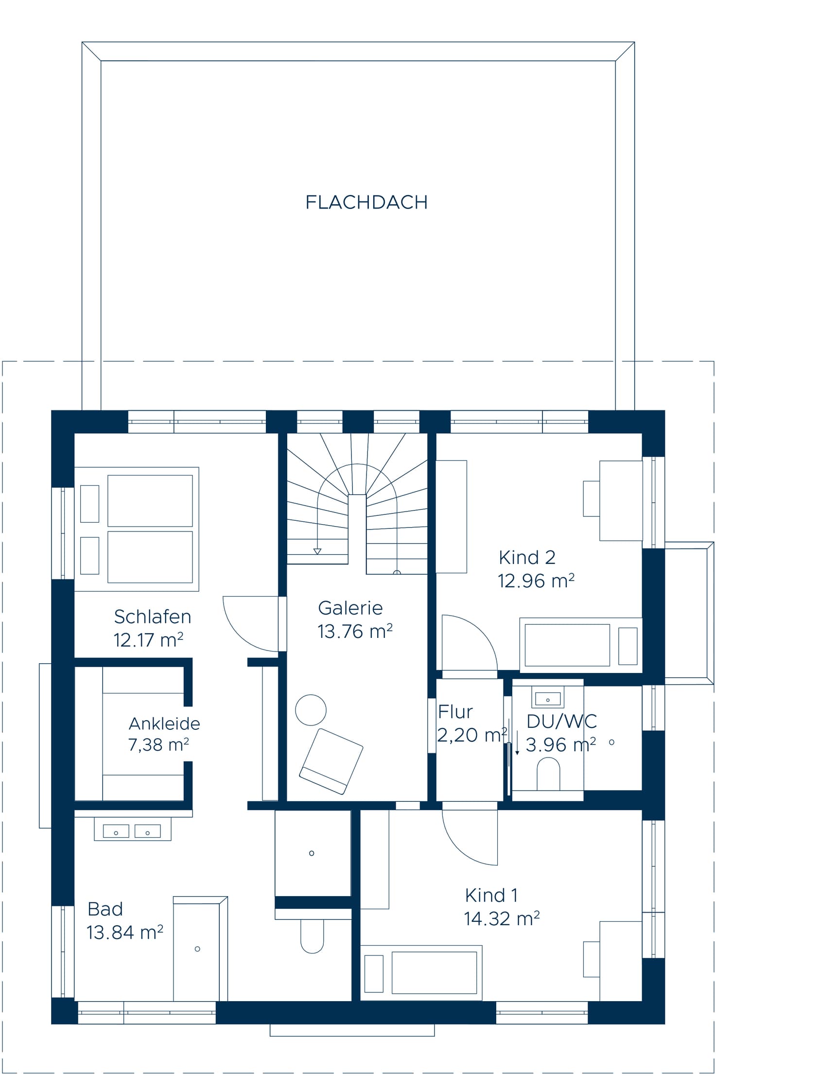
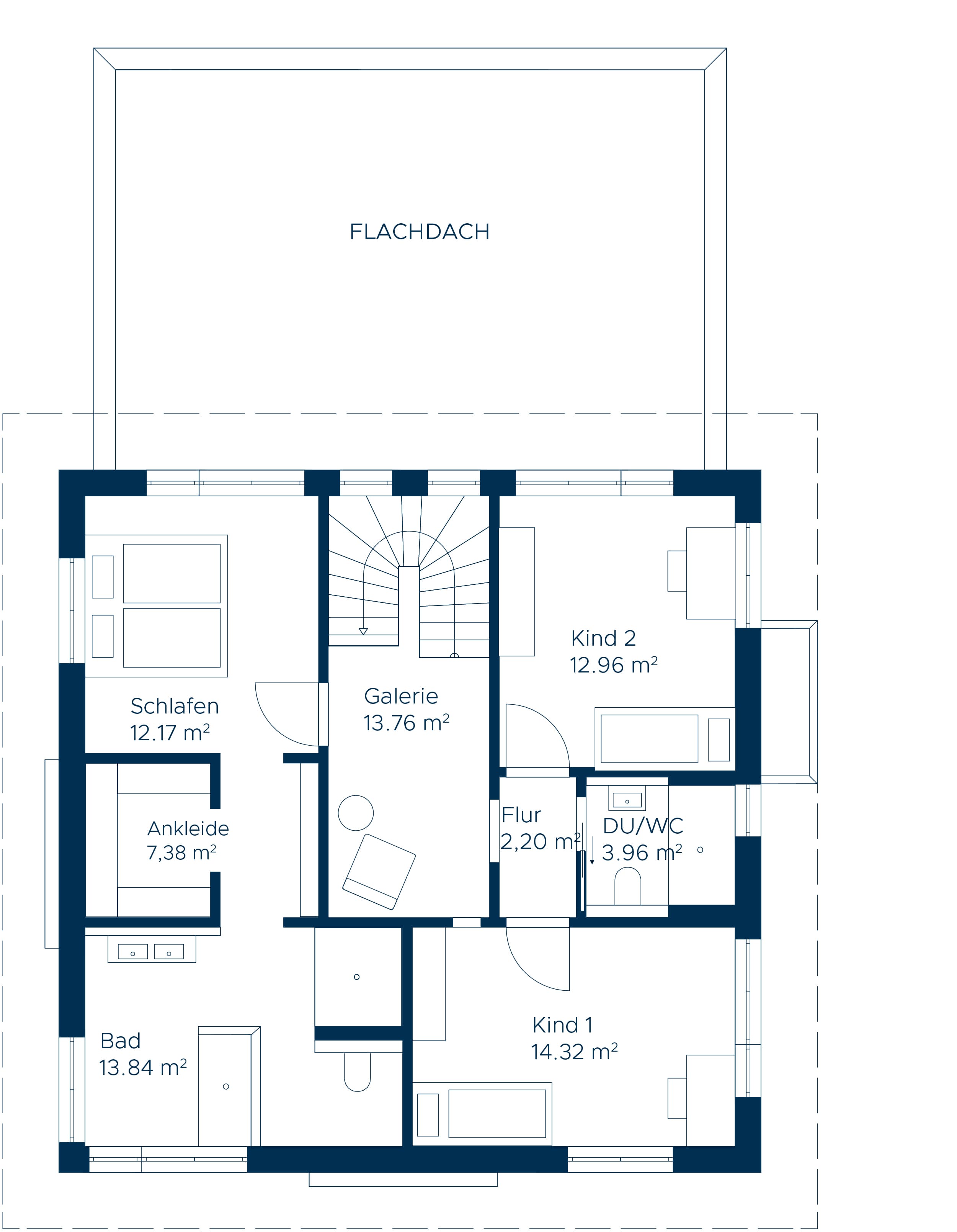
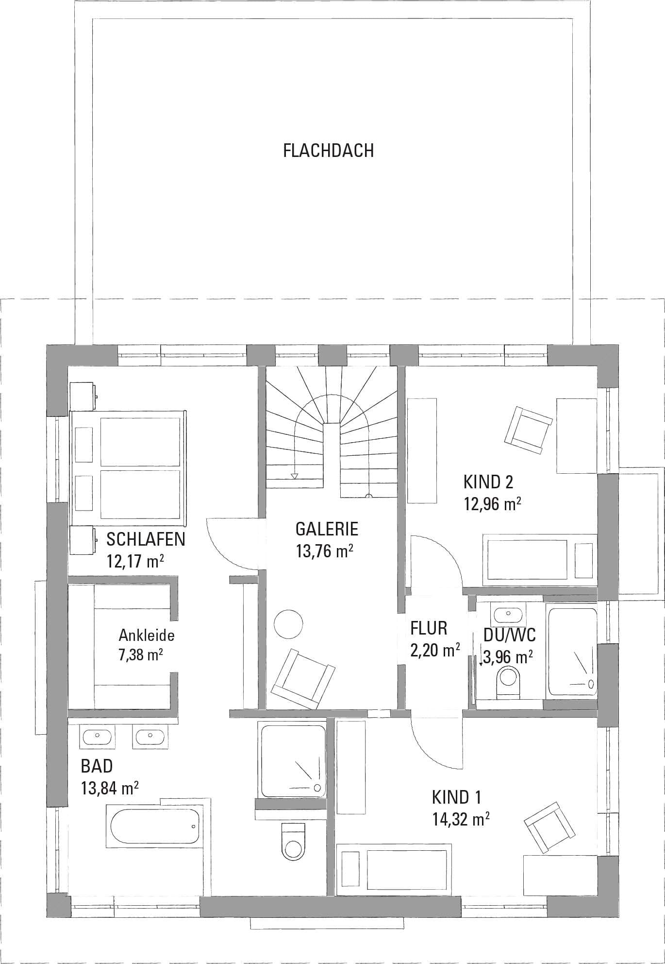
Eine massive Holztreppe führt in die zweite Ebene, die mit über 80 Quadratmetern ebenfalls über ein beeindruckendes Platzangebot verfügt. Neben dem Elternschlafzimmer mit moderner Ankleide gibt es zwei große Zimmer sowie ein großzügiges Elternbad mit freistehender Badewanne zum Wohlfühlen und Entspannen. Ein zweites Bad für Kinder und Gäste vermeidet den üblichen Stau bei der Morgentoilette. Glanzpunkt ist hier eine großzügige Galerie, die das Treppenhaus ergänzt.


(schließt heute 16:00 Uhr)


