Concept 5 präsentiert sich als modernes Einfamilienhaus auf zwei Etagen, dessen minimalistische und zeitgenössische Architektur durch eine freischwingende Überdachung eine besondere Note erhält.
Holz und Fassadenplatten verleihen dem Haus eine moderne Optik, während das klassische Satteldach mit dunklen Ziegeln einen stilvollen Kontrast bildet. Eine großzügige Glasfront im Erdgeschoss lässt viel Tageslicht hinein und verbindet Innen- und Außenbereich fließend. Die teilüberdachte Terrasse erweitert den Wohnraum ins Freie.
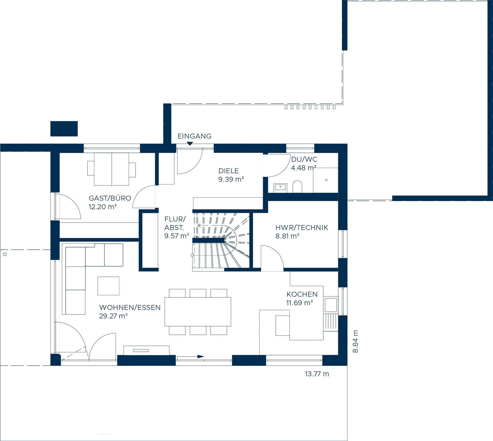
Der einladende Eingangsbereich führt in den offen gestalteten, klar zonierten Wohn-, Ess- und Kochbereich. Ein großer Hauswirtschaftsraum sorgt für Ordnung im Alltag. Ein zusätzlicher Raum im Erdgeschoss bietet Platz für Büro, Gäste oder Hobbys.
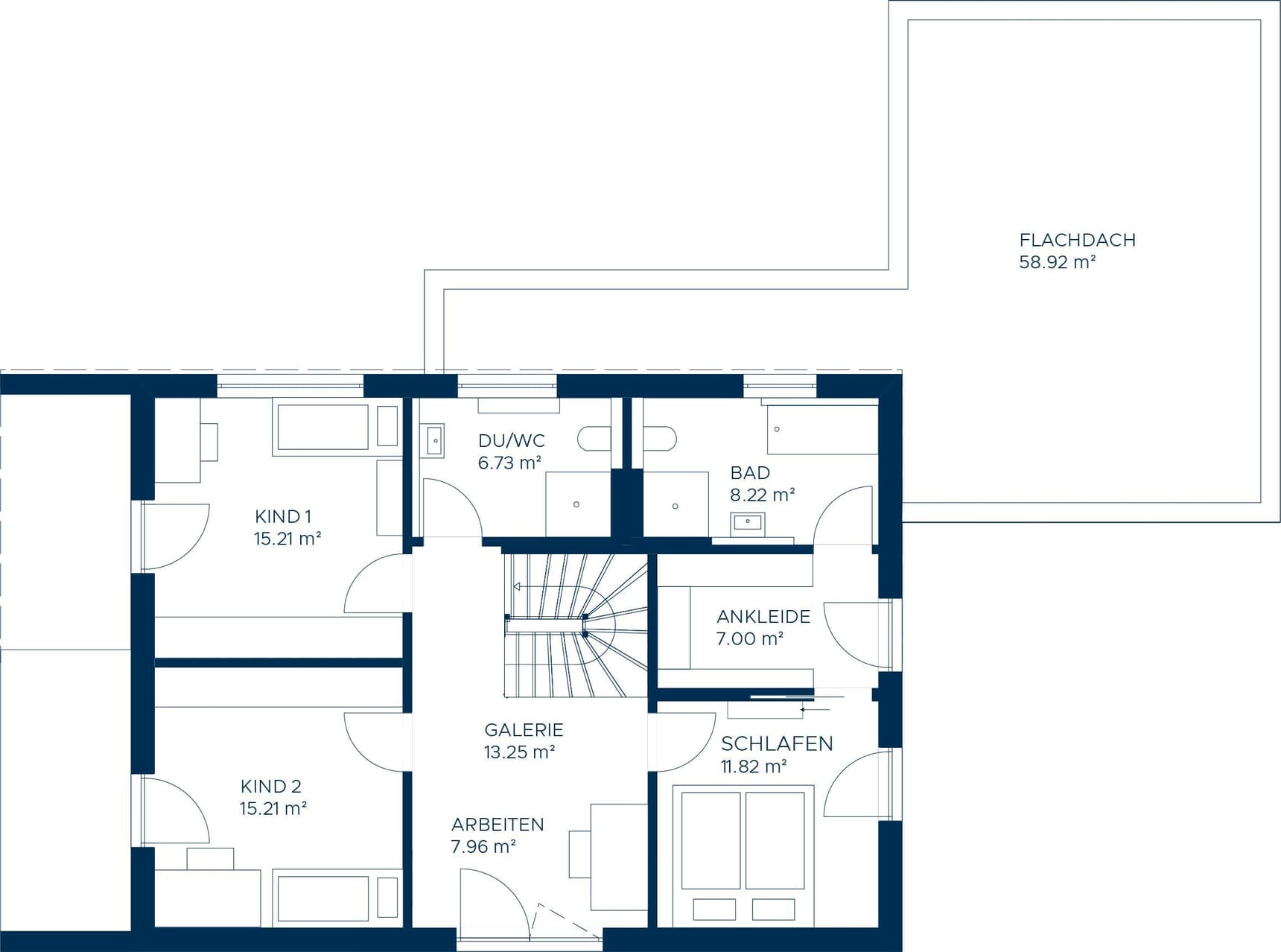
Im Obergeschoss sorgen viele Fenster für helle Räume. Zwei gleich große Kinderzimmer fördern ein ausgeglichenes Familienleben. Die lichtdurchflutete Galerie mit Lese- oder Arbeitsbereich lädt zum Verweilen ein. Der Elternbereich mit Schlafzimmer, Ankleide und Bad bildet einen Rückzugsort.
Modern, durchdacht und naturnah – ein Zuhause zum Wohlfühlen.

