Als wahres Raumwunder präsentiert sich das Concept 4 und bietet viel Platz sowie clevere Stauraumlösungen. Dieses moderne zweistöckige Haus ist eine gelungene Mischung aus zeitgenössischem Design und funktionalem Wohnraum.
Große Fensterflächen in beiden Etagen sorgen für viel Tageslicht und bieten einen herrlichen Ausblick auf die Natur. Im Erdgeschoss schafft ein überdachter Außenbereich mit Outdoorküche und Schiebetüren eine nahtlose Verbindung zwischen innen und außen – ideal für gesellige Abende.
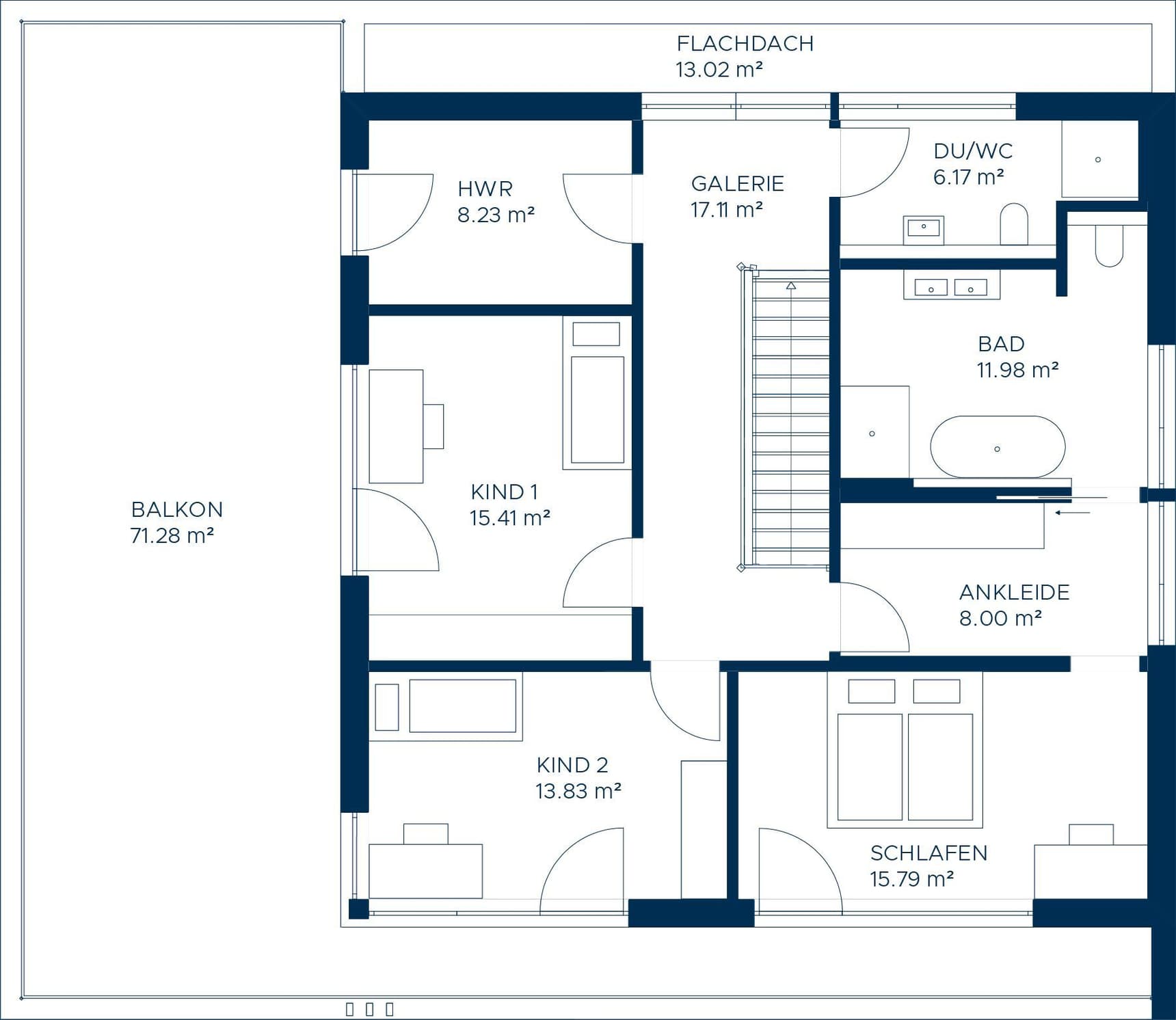
Ein Highlight ist der im Obergeschoss platzierte Hauswirtschaftsraum – genau da, wo die Wäsche anfällt. Die Ankleide führt direkt ins Schlafzimmer und ins Elternbad, was für Privatsphäre sorgt. Über Kinderzimmer, Schlafzimmer und HWR gelangt man auf die große Dachterrasse mit stilvollem Glasgeländer.
Das flache Walmdach betont die moderne Architektur, während schwarze Akzente an Säulen und Fensterrahmen dem Haus Struktur und Eleganz verleihen. Der Technikraum mit Zugang zur Garage bietet Stauraum und dient als praktische Schmutzschleuse.

