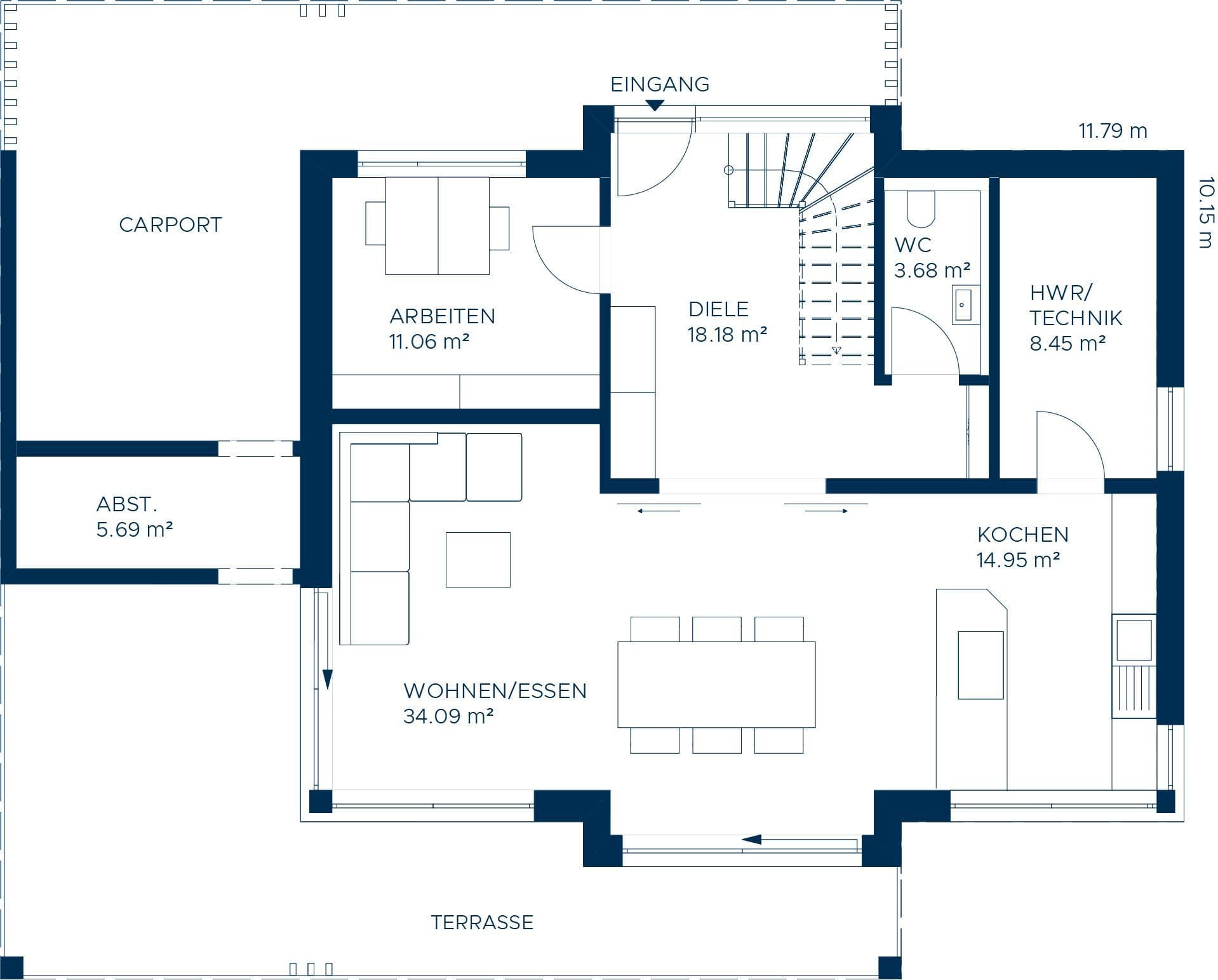
Das Concept 2 begeistert durch seine klare Linienführung und den harmonischen Einsatz natürlicher Materialien. Die ansprechende Architektur verbindet auf elegante Weise Holz und Glas, die sich nahtlos in die schlichte, weiße Fassade einfügen.
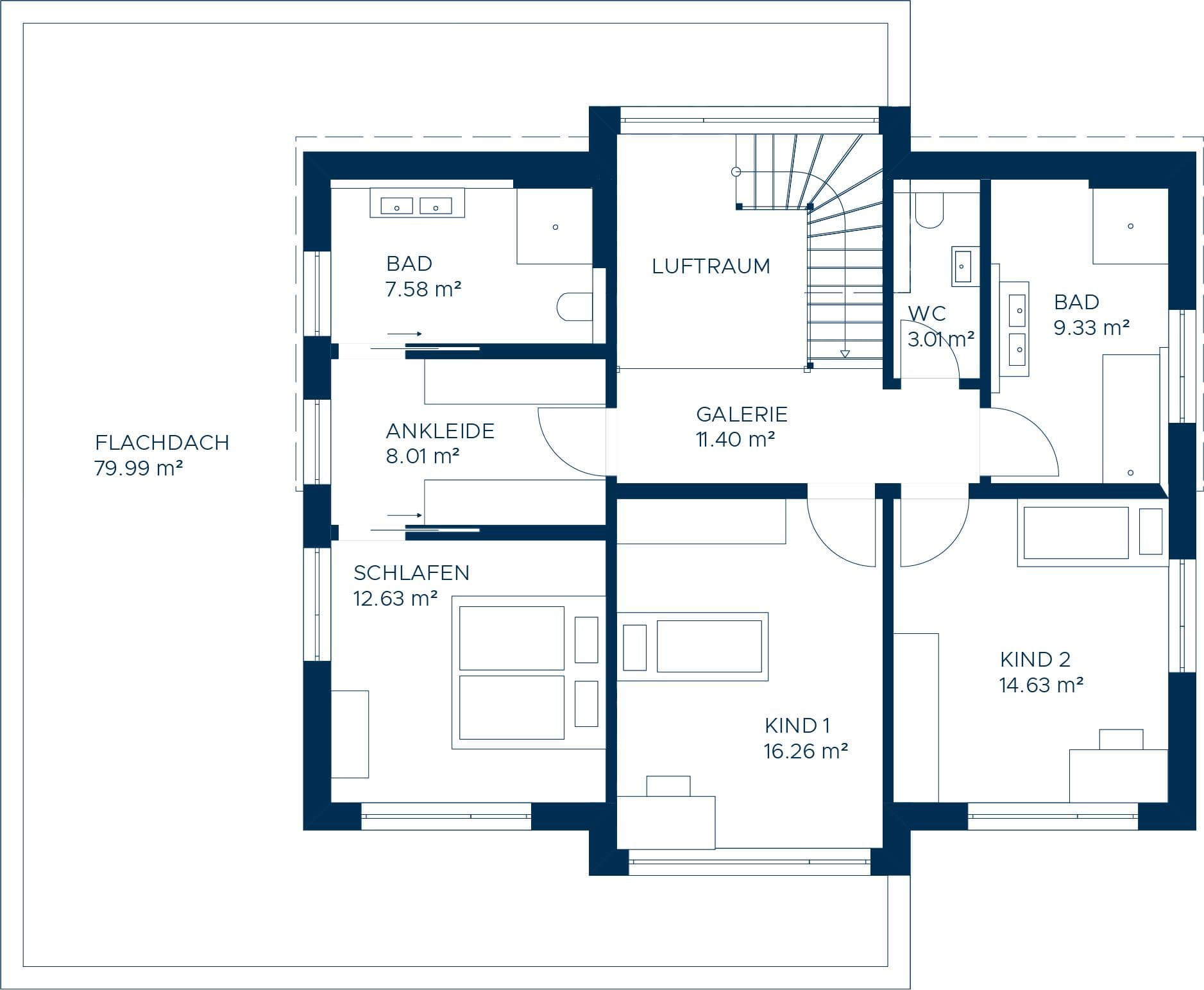
Ein architektonisches Juwel ist die offene Galerie, die das Haus mit Licht durchflutet und ein luftiges Raumgefühl erzeugt. Im Erdgeschoss lädt eine großzügige Terrasse zum Verweilen im Freien ein, während das Obergeschoss durch große Fenster einen grandiosen Ausblick bietet. Das flache Dach des Giebels harmoniert perfekt mit dem Satteldach und verleiht dem Gebäude eine moderne und einladende Atmosphäre. Im Obergeschoss schafft die offene Galerie zudem zwei separate Bereiche für Eltern und Kinder. Ergänzt wird dieses durchdachte Konzept durch ein Arbeitszimmer im Erdgeschoss.
Dieses Architektenhaus ist zweifelsohne ein Juwel, das modernen Wohnkomfort und ästhetische Eleganz in idealer Weise vereint.

