Klassisch und doch modern geht es im Musterhaus Mannheim zu. Im Außenbereich wurde bei der Fassadengestaltung auf klassische Elemente wie das Satteldach, den Rechteck – und den Segmentbogenerker und die Gaube zurückgegriffen. Das macht Sinn, denn so wird möglichst viel Sonnenlicht eingefangen. Innen gewinnt man damit Raum und eine gemütliche Atmosphäre macht sich breit.
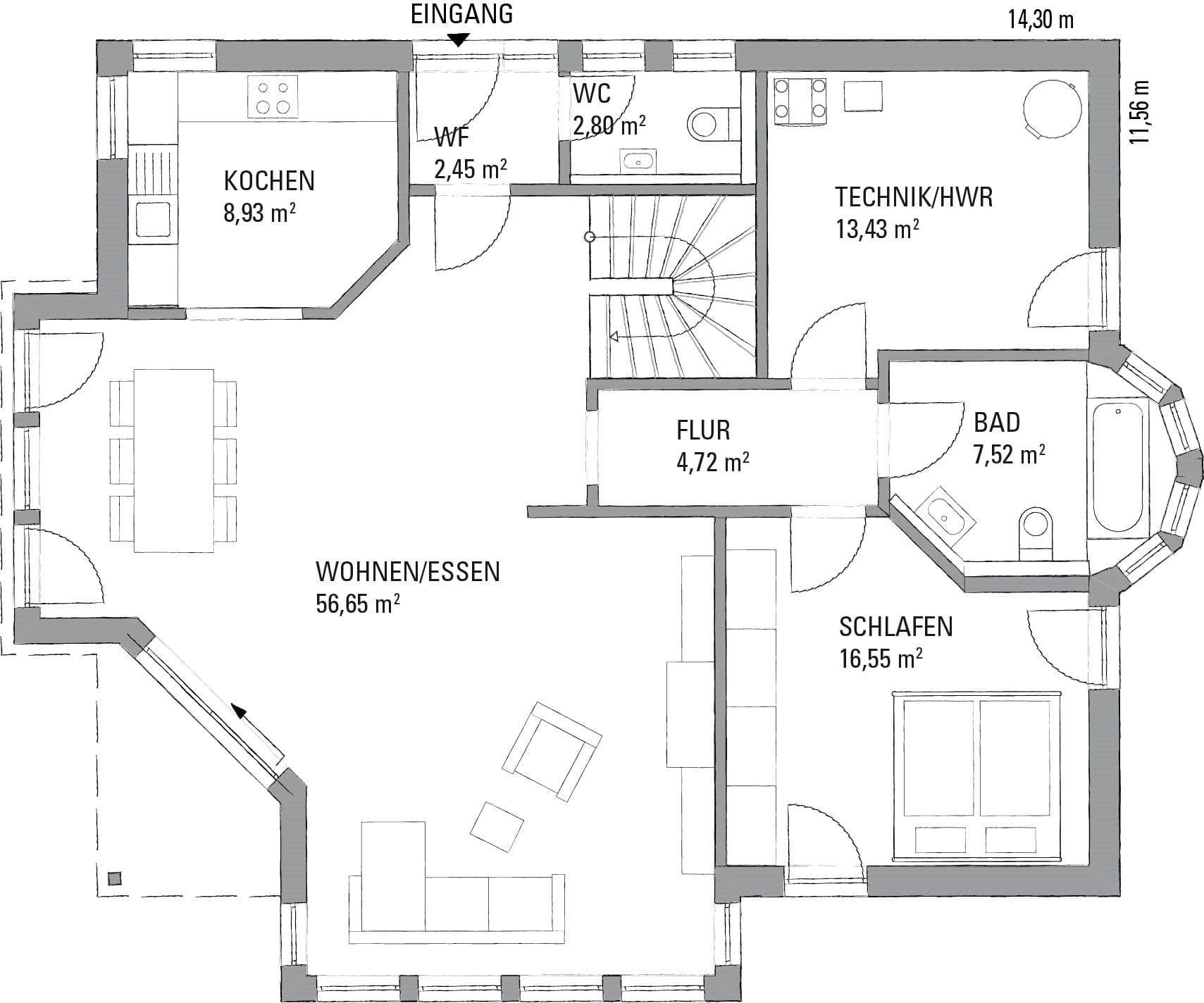
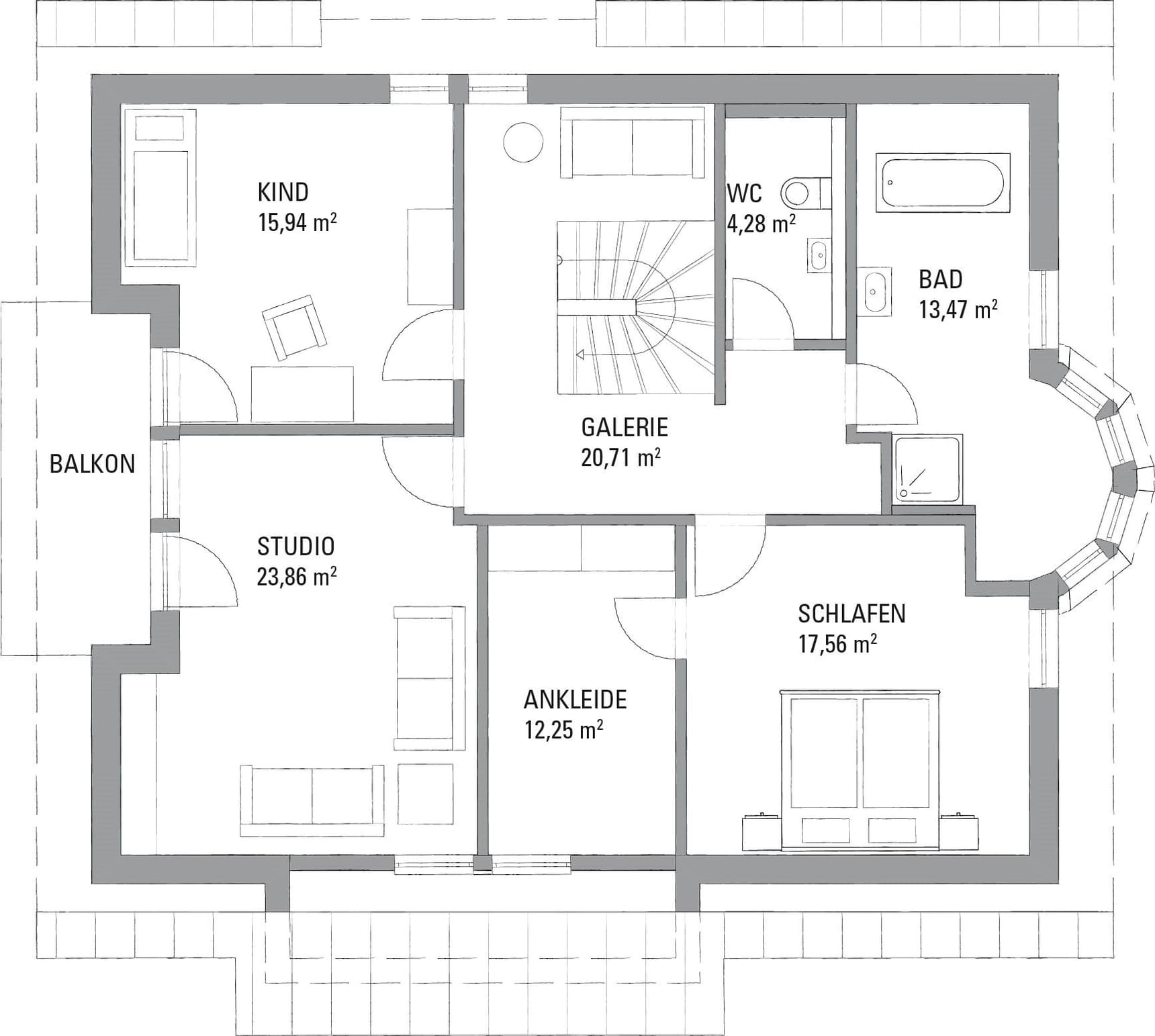
Die Fenster mit den Sprossen und das außergewöhnliche Balkongeländer sieht man nicht alle Tage. Es verleiht dem sonst eher konservativen Äußeren eine frische Note und macht es besonders. Die farbenfrohe Wandgestaltung im Innenraum setzt gekonnt optische Akzente und rundet das Ensemble ab. Kurzum: Das KAMPA Musterhaus in Mannheim lädt zur Besichtigung ein und hält viele Anregungen für angehende Bauherren bereit. @@Das Erdgeschoss ist großzügig aufgeteilt und verfügt bereits über ein ausgestattetes Bad und ein separates Schlafzimmer. Vom Wohn-Essbereich gelangt man direkt auf die Terrasse, die dort sogar ganz geschickt überdacht ist. Der Kochbereich wurde ein wenig separiert, ohne dabei abgeschnitten zu werden. Im Dachgeschoss befindet sich ebenfalls noch ein großes Familienbad und genügend Platz für Kinder, Gäste oder auch für sich selbst.
KAMPA. DAS ORIGINAL. Für Selbstversorger.
KAMPA Häuser stehen für energieeffiziente Bauweise und exzellenten Wohnkomfort - Effizienzhaus 40 Plus mit Photovoltaik-Anlage und Lithium-Ionen-Stromspeicher serienmäßig. In den monatlichen Kosten nicht zu unterbieten!

