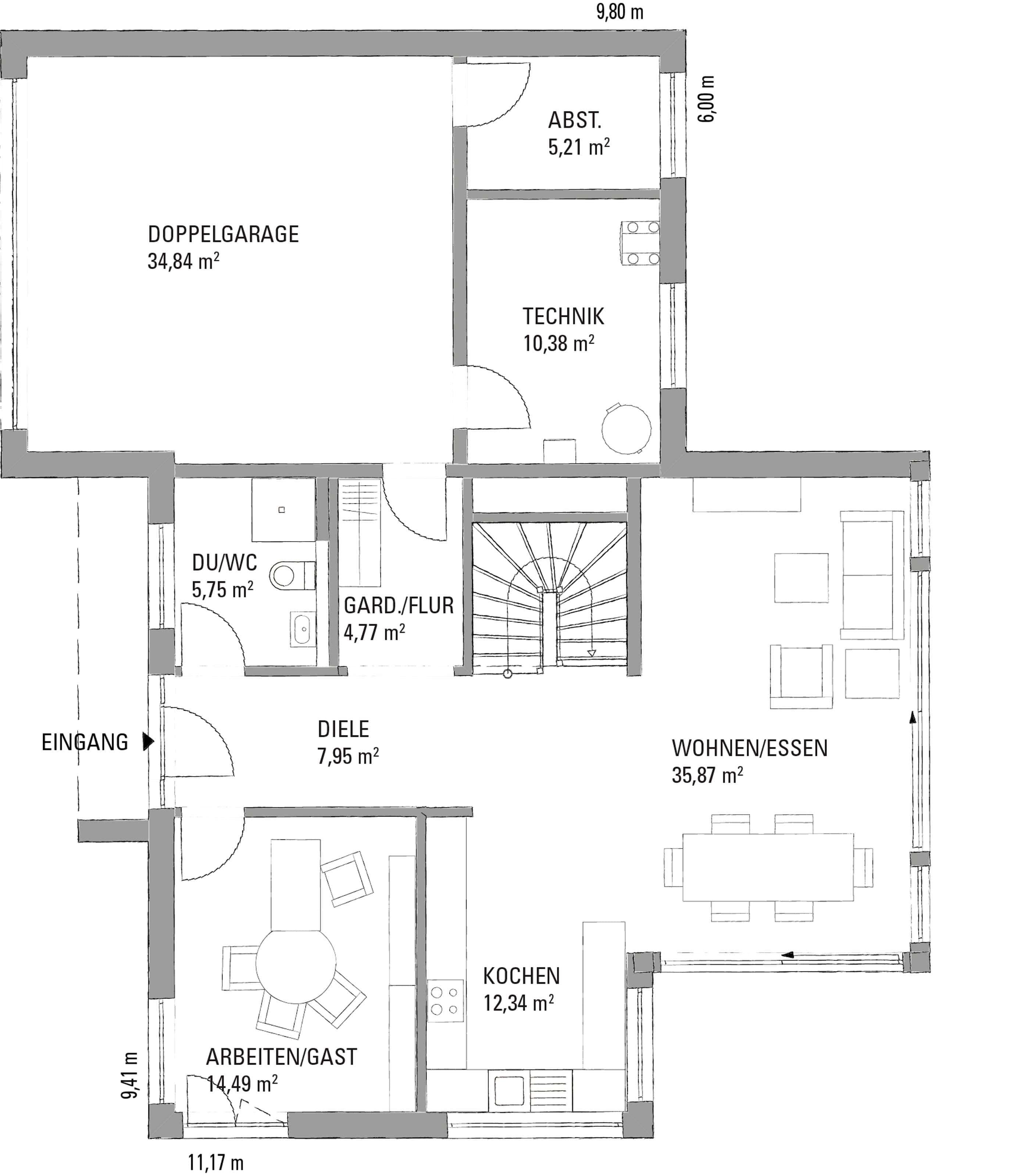
...weitläufig, offen, hell und nahtlos verbunden mit Terrasse und Garten. Einfach beeindruckend. Familienleben und Gastlichkeit ohne Grenzen. Denn Freiraum ist Wohn- und Lebensqualität.
Das Musterhaus in Leipzig trägt eine unverwechselbare Handschrift: Gradlinige Formen und große Fensterflächen prägen das Erscheinungsbild. Die Panoramaverglasung, die sich fast über die Hälfte des Erdgeschosses erstreckt, erzeugt ein Gefühl von grenzenloser Freiheit. Hier verbinden sich Wohnraum und Terrasse fließend miteinander.
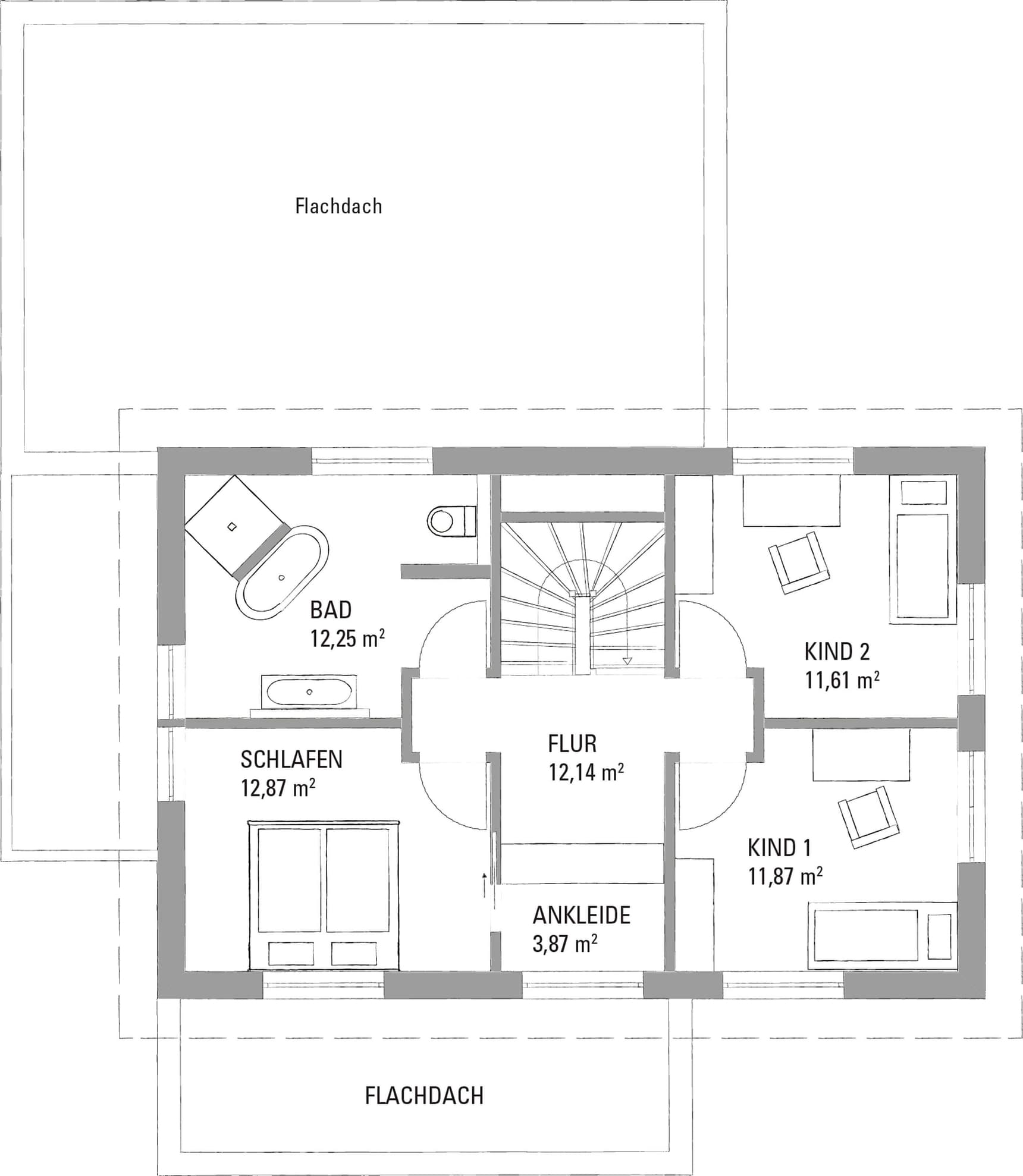
Der kubische Anbau mit markanter Holzverschalung beherbergt eine Doppelgarage mit integriertem Technik- und Abstellraum und schafft zusätzlichen Raum im Erdgeschoss, welches sich durch sein offenes und geschickt zoniertes Raumkonzept auszeichnet. Durch den mannshohen Kniestock entsteht im Obergeschoss ein vollwertiges Geschoss, allseits belichtet und ohne sich unter Dachschrägen ducken zu müssen.
Gebaut als Effizienzhaus 40 Plus übertrifft das Musterhaus die KfW-Anforderungen bei weitem, weil deutlich mehr Energie erzeugt wird, als das Haus benötigt. Echte Plus-Energie eben, weil der komplette Energiebedarf nicht nur für Heizen und Warmwasser sondern auch für Haushaltsgeräte und Licht abgedeckt wird und sogar noch ein Elektrofahrzeug betankt werden kann. Die KfW belohnt diesen Standard mit der höchsten Förderung.
KAMPA. DAS ORIGINAL. Für Selbstversorger.
KAMPA Häuser stehen für energieeffiziente Bauweise und exzellenten Wohnkomfort – Effizienzhaus 40 Plus mit Photovoltaik-Anlage und Lithium-Ionen-Stromspeicher serienmäßig. In den monatlichen Kosten nicht zu unterbieten!
Das KAMPA Musterhaus Leipzig ist der Gewinner des Haus-Award 2016 in der Kategorie Energieeffizienzhäuser.

