Eine unverwechselbare Handschrift.
Mit durchgängiger Gestaltung von der Gesamterscheinung des Baukörpers bis zum kleinsten Detail. Als architektonisches Gesamtkonzept, das vor allem in seiner zeitgemäßen Umsetzung überzeugt. Mit einer wertigen Materialkomposition aus Holz, Stahl und Glas.
Hier vereinen sich Ästhetik, Offenheit und Leichtigkeit mit einem behaglichen Wohngefühl. Innen genauso wie außen. Außen ein architektonisch höchst attraktiver Design-Blickfang. Im Innern mit deutlichem Platzvorteil. Typisch für das Haus Oslo.
Die hohen Fensterflächen lassen das Haus Oslo großzügig wirken. Verleihen ihm seine Offenheit. Seine Individualität. Erinnern an die Weite nordischer Länder. Genauso wie die optionale Holzverschalung der Hausfassade. Sie gibt dem Haus Oslo seinen Charakter. Als fühl- und spürbares Ergebnis kreativer Planungsqualität. Und die lange Hausform lässt erahnen, was Sie im Innern des Hauses an Platz und Raum erwartet. Mehr noch. Dieser zeitgemäße und schlanke Baukörper ist ideal für kleinere Grundstücke in der Stadt zum Beispiel. Hier wird jeder Quadratmeter maßvoll ausgenutzt und es bleibt noch viel Platz für Garten und großzügige Terrassen.
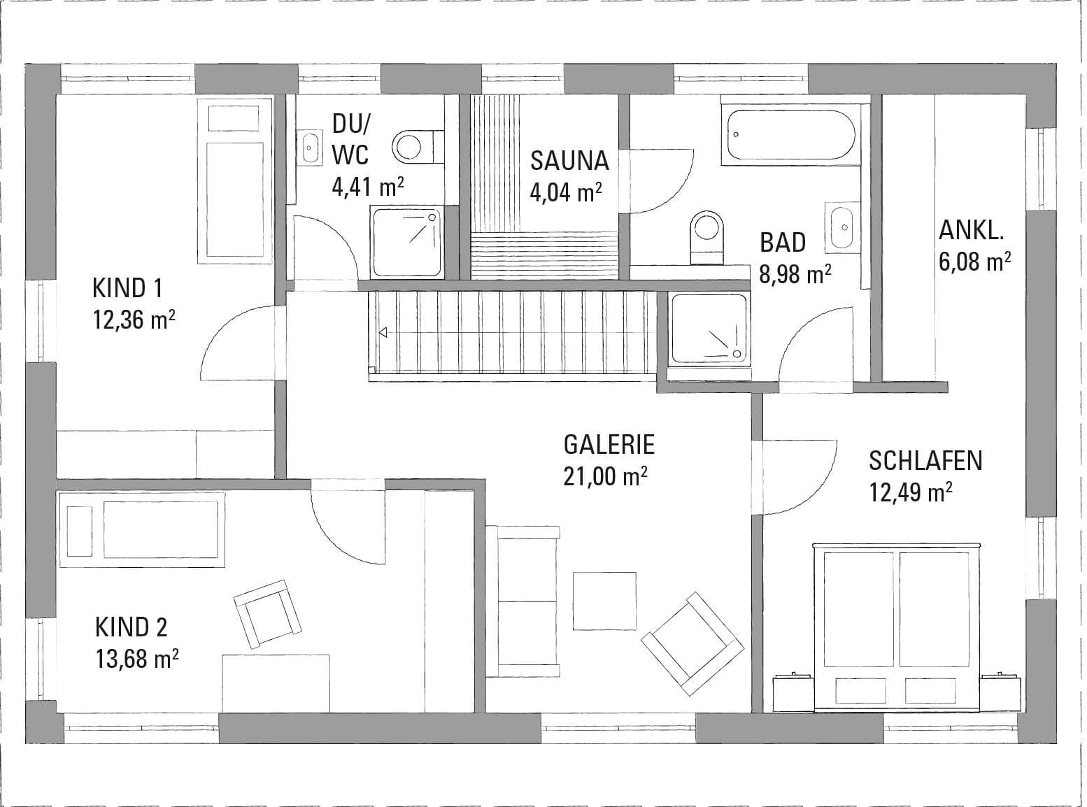
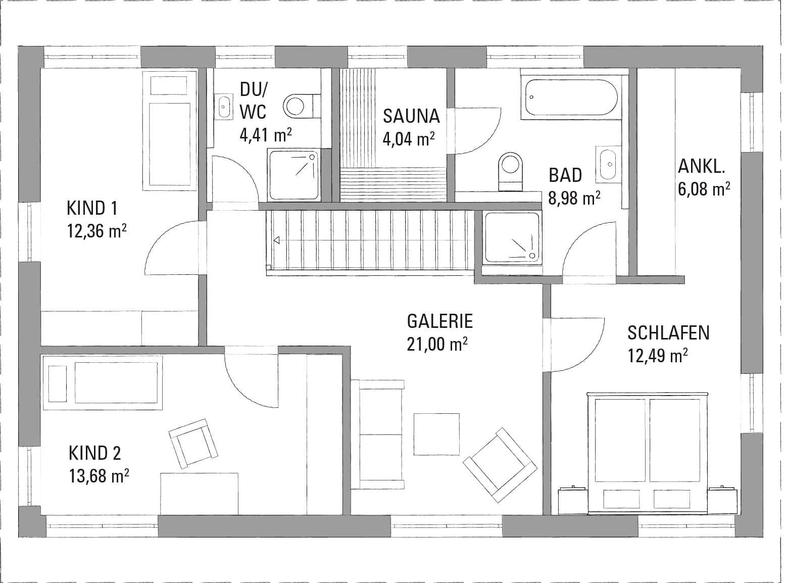
Im Erdgeschoss werden der Essplatz und die offene Küche zu einem harmonischen Ensemble zusammengeführt. Das ist Gastlichkeit in ihrer schönsten Form. Folgen Sie uns bitte weiter ins Obergeschoss. Mittelpunkt ist hier die lichtdurchflutete Galerie. Sie trennt den Bereich der Eltern von den Kindern und lässt allen hier oben viel Frei- und Spielraum. Sogar eine eigene Sauna ist möglich – Ihr persönlicher Wellness-Bereich.
