Weiße Fachwerk-Elemente und roter Klinker sprechen eine klare Sprache. Dieser modern gehaltene Entwurf einzigartiger Landhausarchitektur überzeugt auf den ersten Blick: Zweiflügelige Holzfenster mit Sprossen und eine leuchtend rote Eindeckung mit weißen Dachuntersichten machen das Haus zu einem Blickfang in der FertighausWelt am Flughafen Hannover.
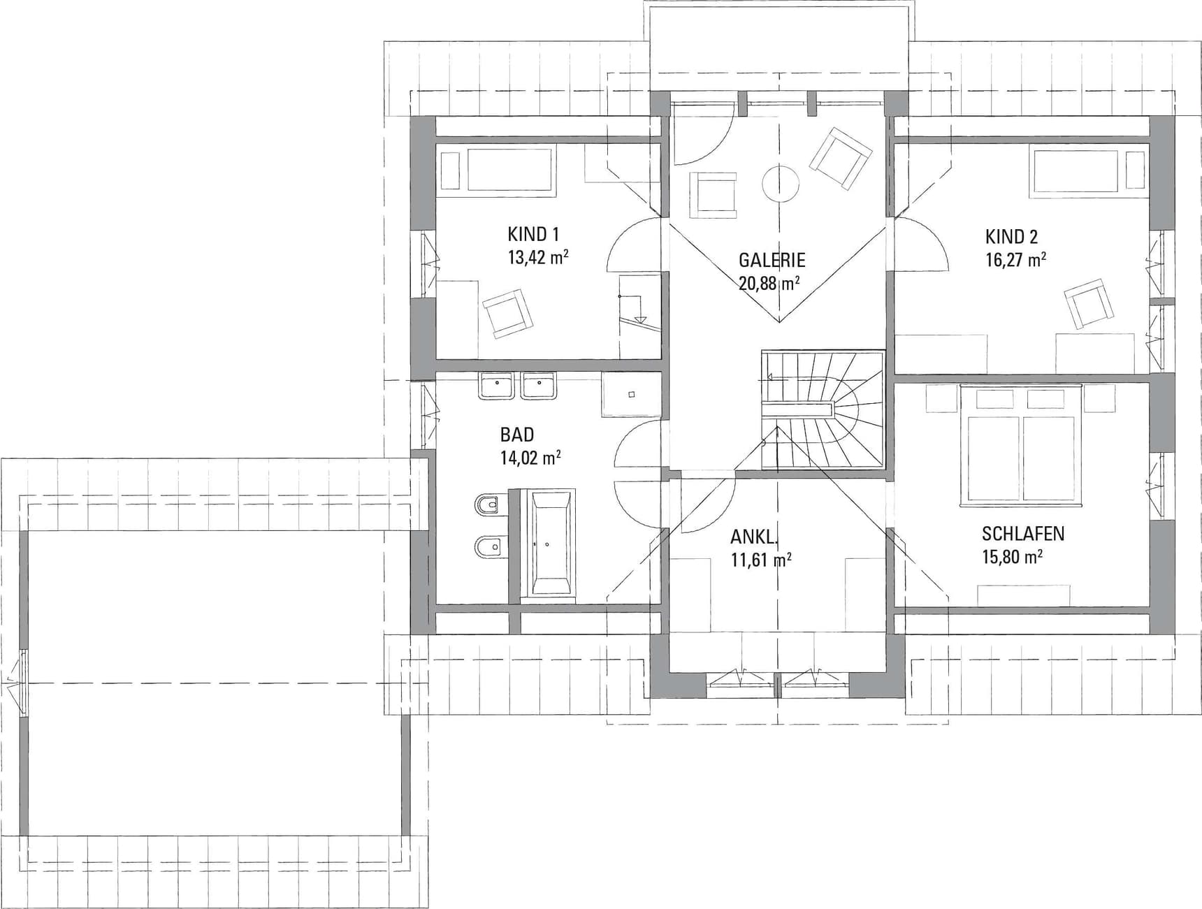
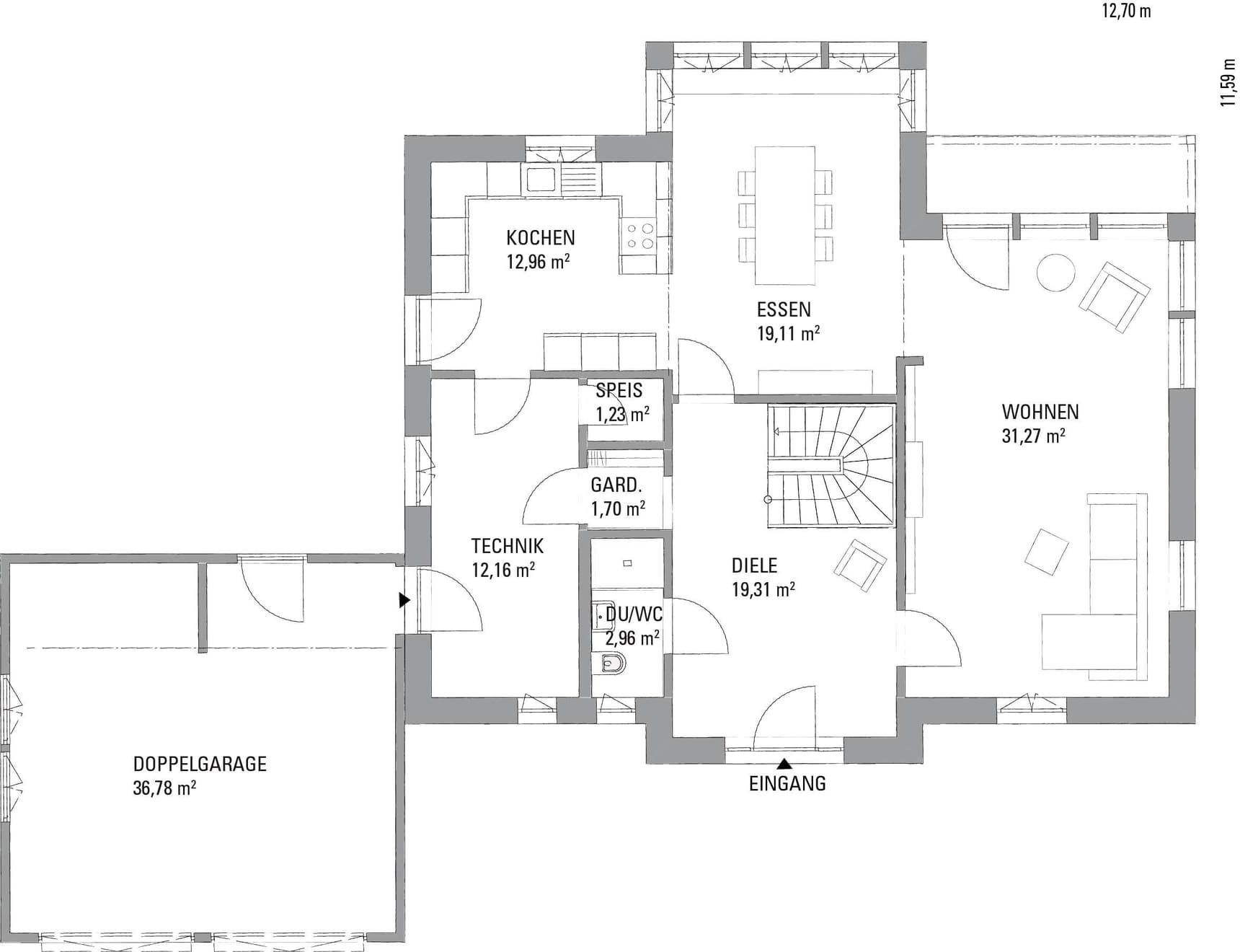
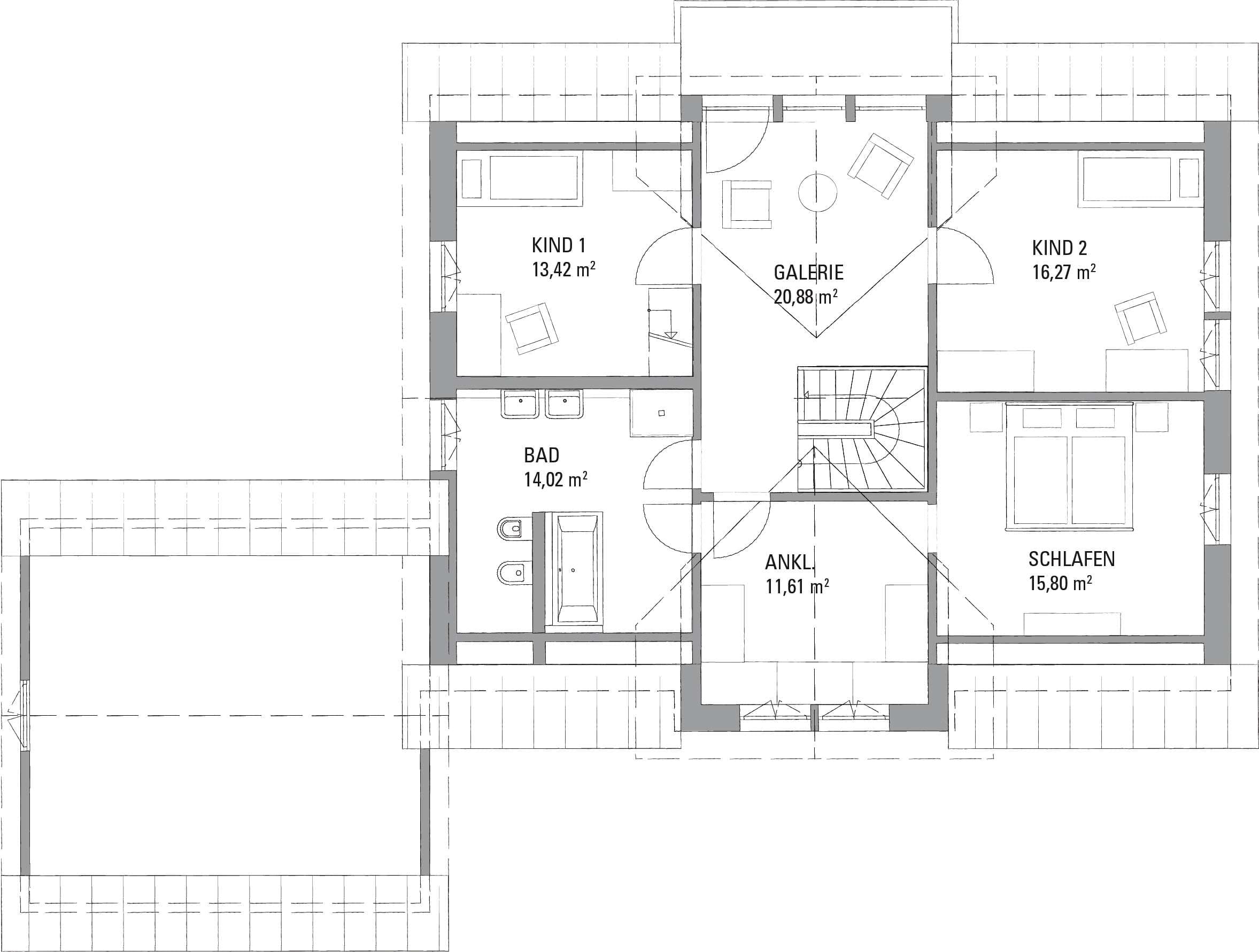
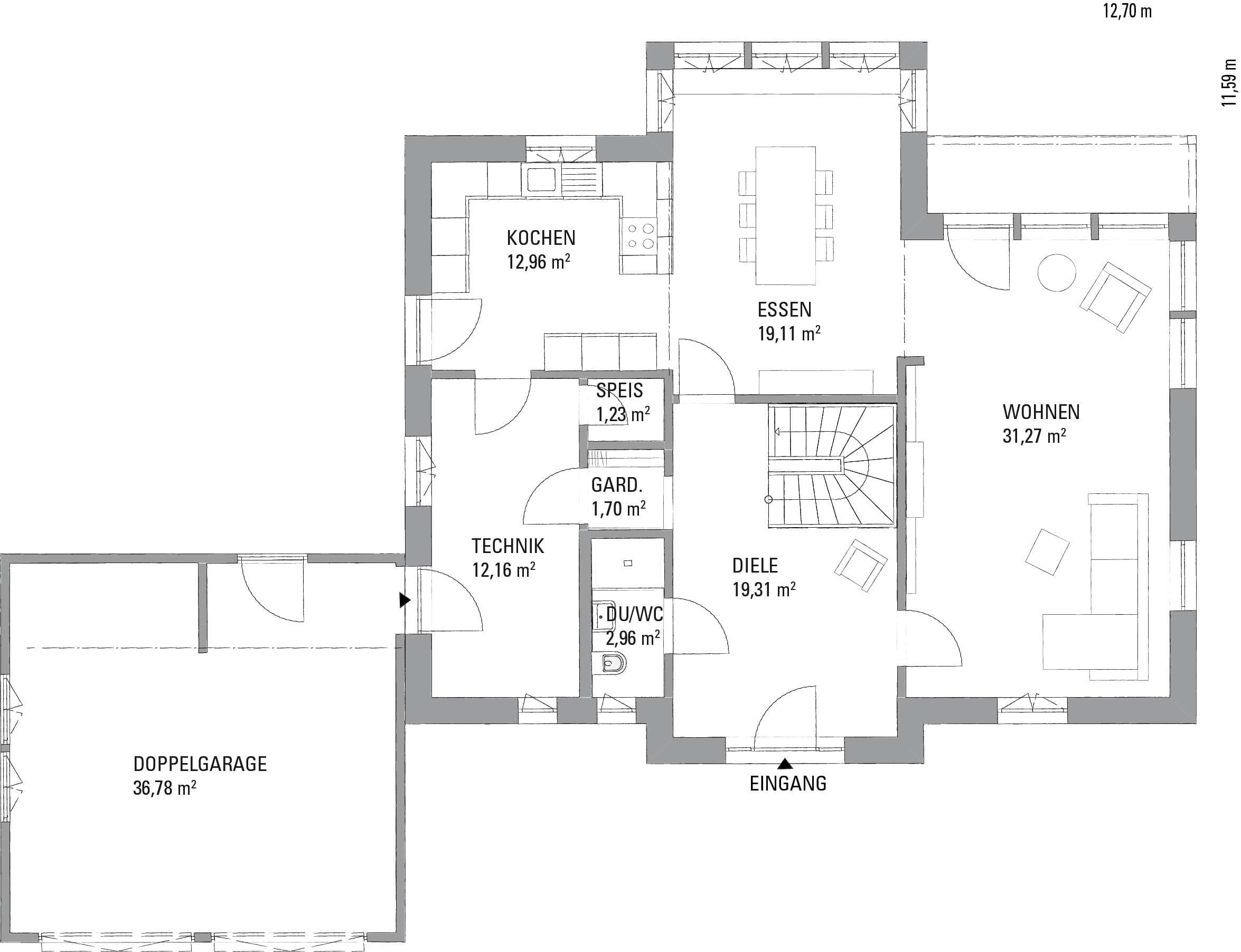
Der typische Stufengiebel mit geschnitzten Balkenköpfen nimmt die Fachwerkgliederung der Fassade bis in das Firstdreieck auf. Der Wohn- und Essbereich ist ebenso wie der Eingang offen und großzügig gehalten. Großflächige Fenster im Essbereich sind als Erker ausgebildet und vermitteln den Eindruck eines Wintergartens. Vom Wohnbereich mit offenem Kamin gelangt man über eine geschützte Loggia direkt auf die Terrasse. Auch im Obergeschoss entsteht ein großzügiger, hellerer Eindruck, da die Diele offen in den Balkon übergeht. Ein besonderer Pfiff ist der ausgebaute Spitzboden.
(öffnet Mittwoch um 12:00 Uhr)


