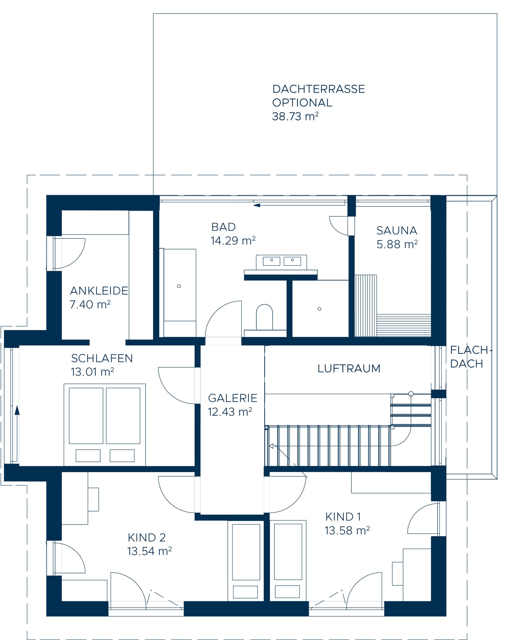
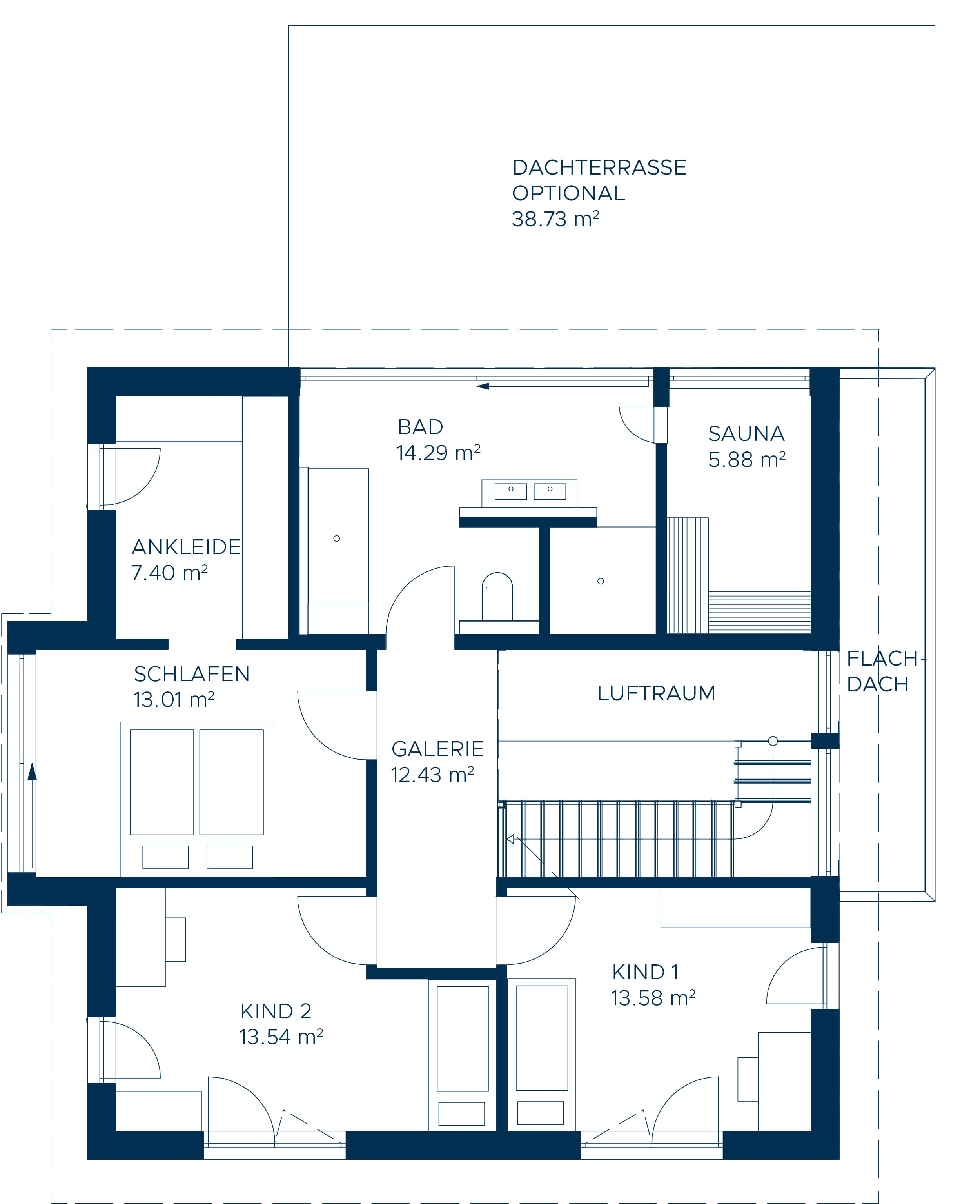
Die Sonderplanung Setros_3 ist eine Stadtvilla, ausgestattet mit allem, was urbanes Leben heute an Ansprüchen stellt: Eine klare Geometrie des modernen Baukörpers, ergänzt um einen Anbau, der im Inneren den Wohnraum vergrößert und dem Obergeschoss gleichzeitig eine fast 40 m2 große Dachterrasse schenkt.
Großzügige Fenstertüren als Schiebelemente sind schick und praktisch zugleich, denn sie lassen im Innenraum eine noch größere Auswahl an Möbilierungskonzepten zu. Die spezielle Fachwerkkonstruktion im Obergeschoss erlaubt sogar besonders große, zusammenhängende Glasflächen, so dass diese sich über die gesamte Terrassenbreite erstrecken. Man kann also bei schönem Wetter aus dem Wellnessbereich sofort auf die Terrasse treten, hat aber auch bei ungemütlicher Witterung ungetrübte Sicht nach draußen.
Ein Flachdachgiebel öffnet den Raum zusätzlich.
Für noch mehr Tageslicht und Freiraum sorgt das Flachdachgiebel auf der Westseite. Er lässt die Fassade von außen noch moderner wirken, indem er sie in seiner kubischen Form gekonnt durchbricht.


(öffnet Samstag um 13:00 Uhr)



