Es ist nicht allein der Blick aus dem großzügigen Fenster. Und auch nicht die klare Architektur der Räume. Was Sie aufatmen lässt, ist die Gewissheit, Ihren Lebenstraum in einen Lebensraum verwandelt zu haben. Ebenso wie das beruhigende Gefühl, alles richtig gemacht zu haben. Die Wohnraumlüftung hält ungebetene Gäste wie Pollen, unangenehme Gerüche, Feuchtigkeit und Lärm zuverlässig fern – und macht das Durchatmen umso schöner.
Moderne Interpretation der Villen-Architektur. Zweigeschossig, raumgreifend, prominent. Die klare Sachlichkeit von Baukörper und Dachform steht im spannenden Dialog mit der filigranen Gestaltung der optionalen Veranda. Wie schön, dass Sie Ihren wichtigsten Traum schon verwirklicht haben: Freiheit. Für all Ihre Wünsche in Ihrer Zukunft des Wohnens.
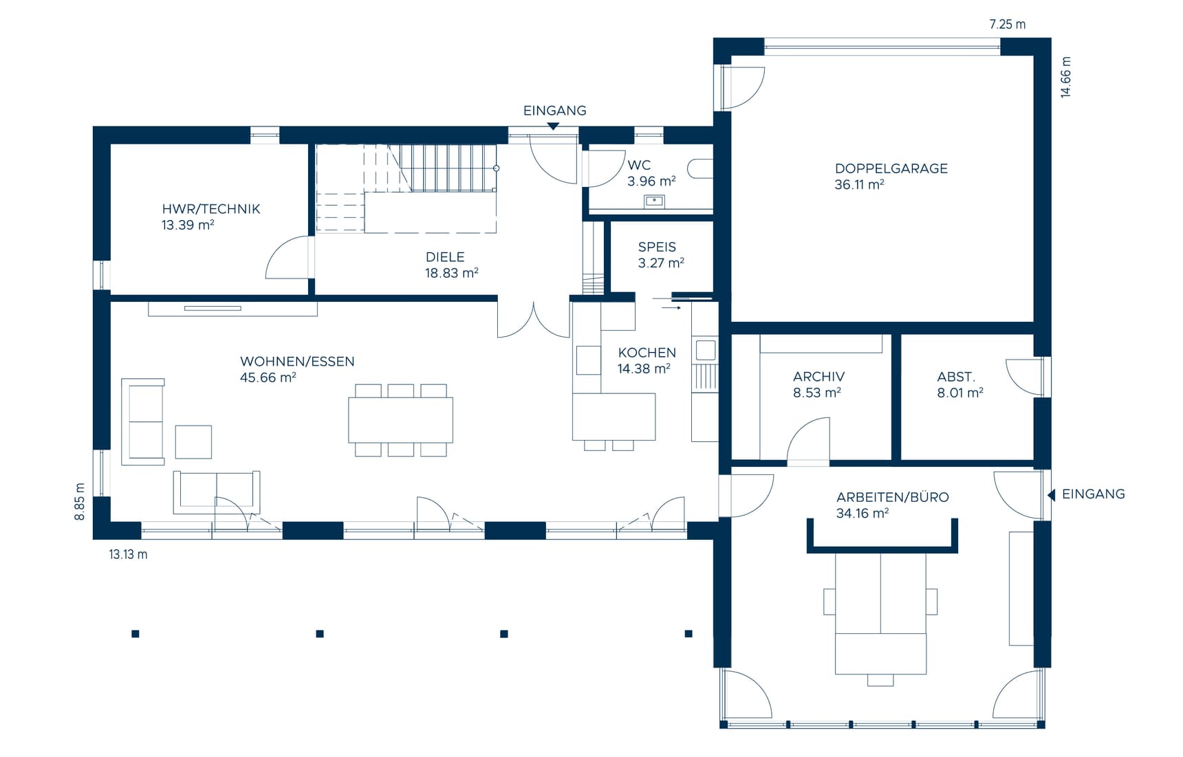
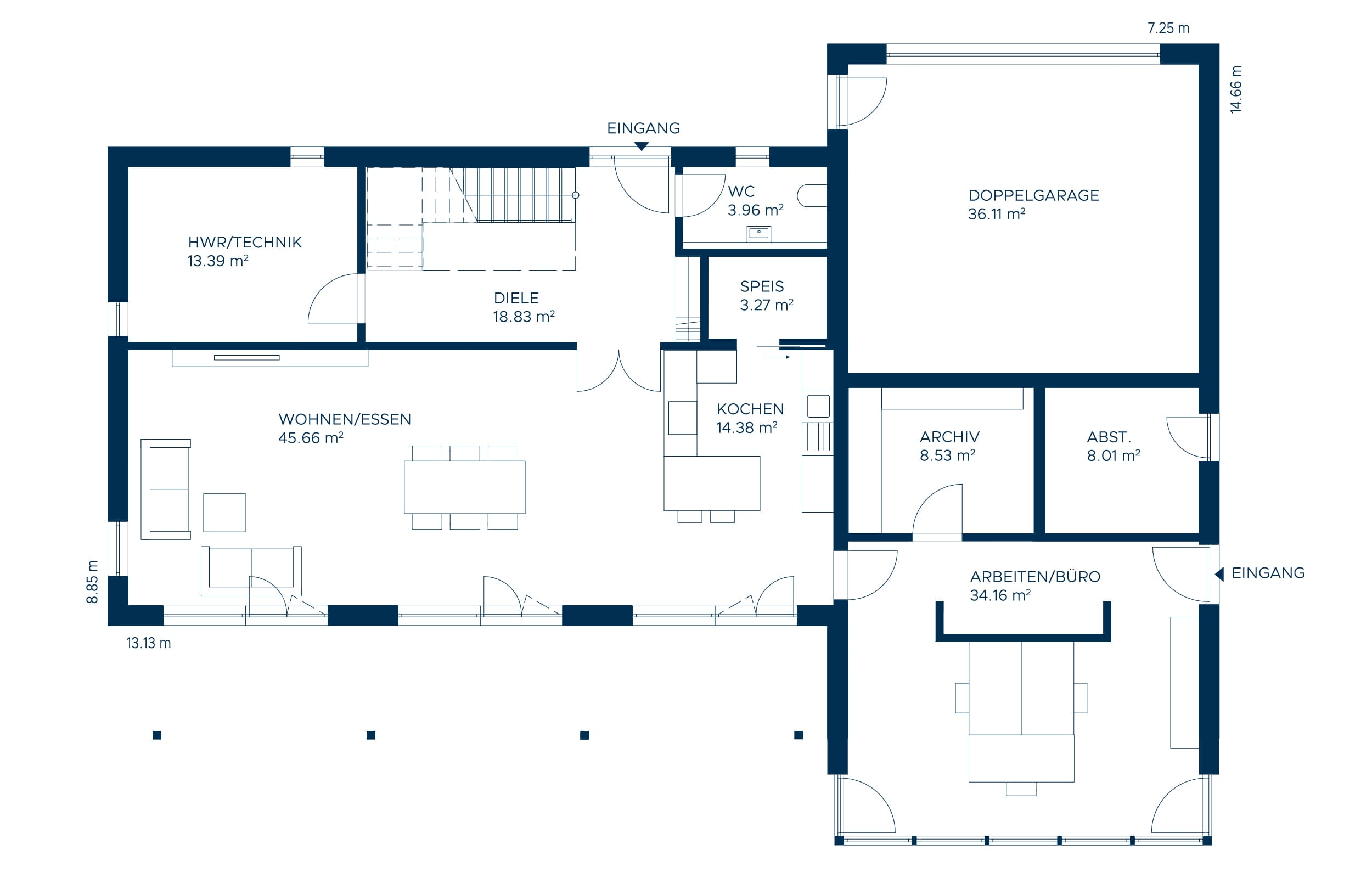
Freunde einladen, Feste feiern oder die Zeit mit Ihren Lieben genießen. Was auch immer Sie vorhaben – Sie haben die Bewegungsfreiheit, die Sie brauchen. Dabei zeigt sich Ihr Zuhause mit seinen hochwertigen Einrichtungselementen stets von seiner komfortabelsten Seite. Und dank seiner zwei großzügigen Vollgeschosse ohne Dachschrägen auch von seiner attraktivsten.
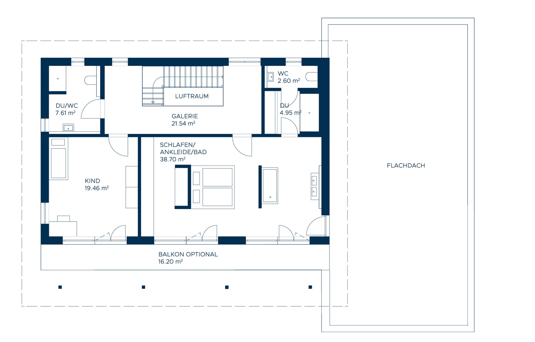
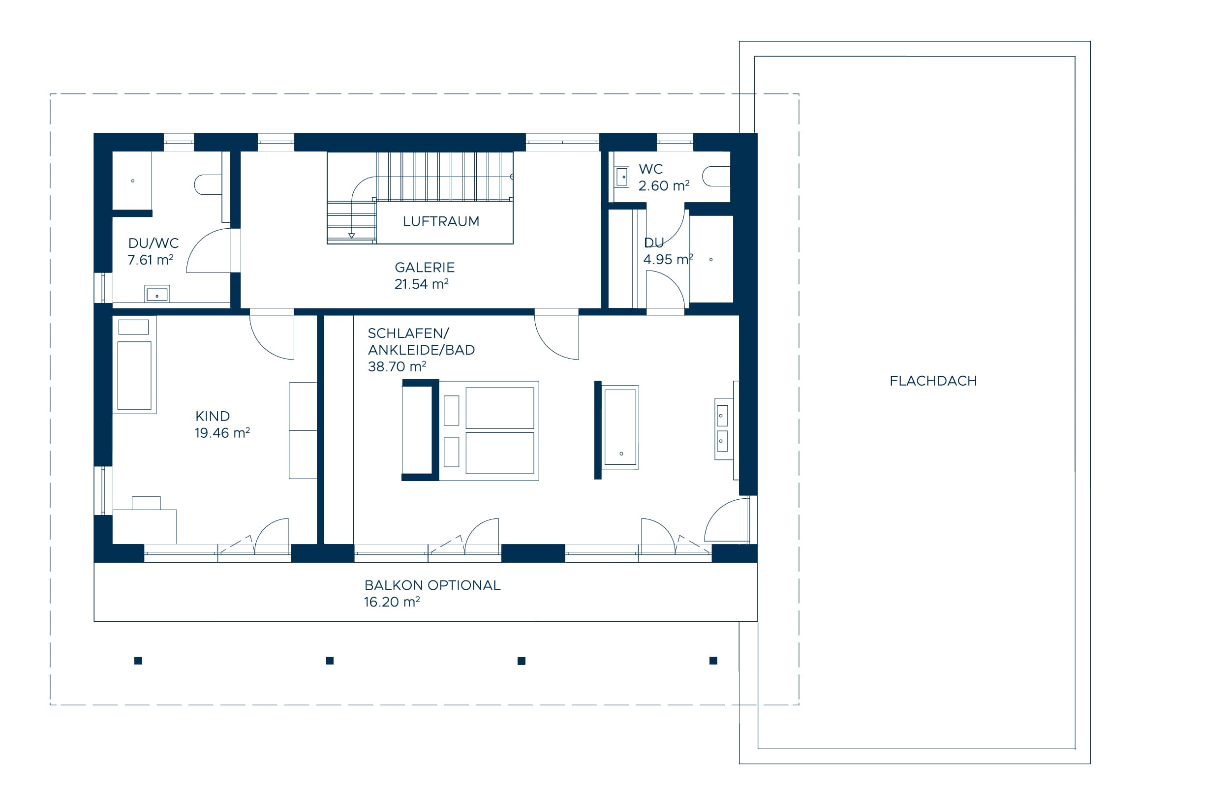
Viele laufen weit dafür, mal wieder richtig Sonne zu tanken. Sie brauchen nur wenige Schritte. Über den Parkettboden. An der großen Fensterfront vorbei. Und schon können Sie ihn genießen: Den frischen Cocktail in Ihrem lichtdurchfluteten Wintergarten. Oder Sie verbringen sonnige Zeiten auf dem stilvollen Loggiabalkon im Obergeschoss. Auf was wir anstoßen? Auf Ihre gute Wahl, natürlich!




