Ein wahres Schmuckstück: Architektonisch liebevoll ausgestattet bis ins Detail und gleichermaßen unübertroffen vielseitig in seiner Funktion. Die elegante Linienführung einer urbanen Stadtvilla verbunden mit der raffinierten Absetzung des Anbaus in Material und Farbe sorgt für ein stimmiges Bild und macht neugierig auf das Innenleben. Und auch hier wird der Besucher nicht enttäuscht. Die Bedürfnisse aller Familienmitglieder wurden berücksichtigt und das Ergebnis kann sich sehen lassen: Zwei Vollgeschosse, in die man am liebsten sofort selbst einziehen möchte. Ein Büro oder eine Einliegerwohnung, die ebenfalls in wenigen Sekunden gedanklich besetzt wird. Da braucht man nicht viel Phantasie, um sich wohlzufühlen. Eine gemütliche, geschützte Terrasse für die ganze Familie schließt sich an den offenen Wohnraum an und eine weitere Dachterrasse bietet den gesamten Überblick von oben oder lädt zu romantischen Stunden zu zweit ein.
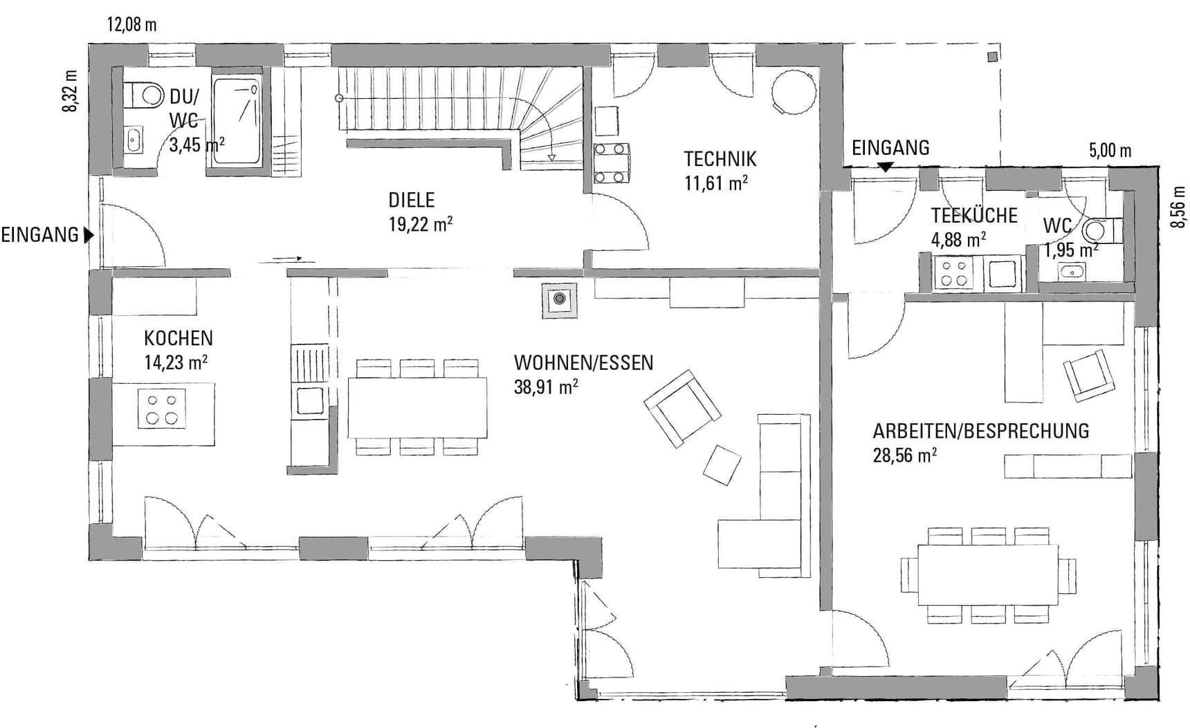
Wohnen und Arbeiten unter einem Dach, Vermieten oder Mehrgenerationen-Wohnen – das frei geplante KAMPA Musterhaus bietet dank seines Anbaus vielseitige Möglichkeiten. Hinter der hochwertigen Tonziegelfassade stehen 35 Quadratmeter Wohnraum mit eigenem Eingang zur Verfügung. Platz genug für ein repräsentatives Büro oder eine gemütliche Einliegerwohnung. Das Flachdach des Anbaus wurde für eine fast 40 Quadratmeter große Dachterrasse mit Zugängen vom Elternschlafzimmer und vom Komfortbad genutzt. Hier können die Hausherren nach der Sauna entspannt ein Sonnenbad nehmen.
Genauso durchdacht und weitläufig wie der Wellnessbereich präsentiert sich auch der übrige Grundriss des Hauses: Die beiden Kinderzimmer im Obergeschoss verfügen über ein separates Duschbad, während das Komfortbad der Eltern Wellness pur bietet – inklusive Saunagenuss. Die helle, großzügige Küche mit praktischer Durchreiche direkt zum Esstisch ist ein besonders charmantes Detail der Grundrissgestaltung im Erdgeschoss. Über den sich anschließenden, offenen Wohn/-Essbereich gelangt man zu der geschützten Terrasse. Elektrisch betriebene Raffstores ermöglichen mit wenigen Handgriffen eine effektive Beschattung und lassen durch die großen Fensterflächen gleichzeitig viel Licht ins Haus.
Hell wird es auch im Wohnkeller des Musterhauses. Hier wurde der neue Lichtfluter eingebaut. Bei diesem innovativen Bausystem werden die Kelleraußenwände auf einer Breite von zwei Metern schräg gestellt und bieten somit den Lichtstrahlen die Möglichkeit, direkt in das Kellerinnere einzudringen. Die durch den speziellen Lichteinfall erzeugte Raumwirkung ist beeindruckend und wertet die Kellerräume durch die hohe und natürliche Lichtintensität extrem auf. Der Lichtfluter ist dabei nur ein Beispiel, wie sich moderne Wohnkeller selbst bei drückendem Grundwasser realisieren lassen, ohne dass die hohen energetischen Anforderungen des Hauses zu Kosten der Wohnqualität gehen.






