1. AnbieterArrow Icon
  2. KAMPAArrow Icon
  3. Kundenhaus in Steinhagen
Slide 1
Slide 2
Slide 3
Slide 4
Slide 5
Slide 6
Slide 7
Slide 8
Slide 9
Slide 10
Slide 11
KAMPA_Logo.jpg
KAMPAKundenhaus in Steinhagen
homeKlassische Familienhäuser
livingArea154 m²
energyStandardEffizienzhaus 40 Plus
Preis anfragen
Katalog bestellen

Kundenhaus in Steinhagen

Langfristig auf Nachhaltigkeit gesetzt

Der Hausbau ist für viele ein einmaliger Schritt im Leben, deshalb sind die meisten erstaunt darüber, wie zeitintensiv die Planung unserer Verwirklichung eines Traumhauses sein kann. Es müssen alle Ideen, Wünsche und Planungen sowie die Arbeit an der Baustelle perfekt organisiert und koordiniert werden. Umso besser ist es daher einen Partner an seiner Seite zu haben, der alle Leistungen aus einer Hand anbietet und dabei auf die Energieeffizienz und Nachhaltigkeit achtet. KAMPA bietet mit Hausbau 360° ein Rundum-Sorglos-Paket. Familie John hat sich daher dazu entschieden, ihren Traum vom Eigenheim mit KAMPA zu verwirklichen.

„KAMPA hat uns ein wirklich stimmiges Gesamtpaket geschnürt.“ Da passt von der Technik und Ausstattung bis hin zur Energieeffizienz einfach alles. Letzteres war uns auch besonders wichtig. „Schließlich wollten wir das Geld für die Energieversorgung nicht an Fremde „verbrennen“, sondern unseren Strom im besten Falle komplett selbst produzieren“, so Bauherr Frank John, der bei seinem Effizienzhaus 40 Plus über eine eigene Photovoltaikanlage verfügt, mit der er Sonnenenergie in Strom verwandeln und so für den eigenen Bedarf nutzen kann. Dank der hochgedämmten Gebäudehülle, der effizienten Haustechnik und einem intelligenten Energiemanagement bewegen sich die Energiekosten für das Haus im niedrigen Bereich. „Da lohnt es sich wirklich, in die Zukunft zu investieren und langfristig auf Nachhaltigkeit zu setzen.“

Gemeinsam mit Familie John wurde vor dem Baubeginn ein detaillierter Plan von Ihrem Haus entworfen. Hierbei stellten sich die KAMPA-Architekten vor die Herausforderung, den Anforderungen der Bauherren gerecht zu werden, gleichzeitig aber auch die Architektur des Hauses an die natürlich gewachsene Umgebung des Baugebietes anzupassen.

„Die Zusammenarbeit hat da bestens funktioniert und die Entwürfe haben genau unseren Geschmack getroffen“, erzählt Herr John, der sich mit seiner Frau Ina für einen eher schlichten Stil ausgesprochen hat. „Wir lieben klare Formen. Und die sind sowohl im äußeren Erscheinungsbild des Hauses wie auch bei der Inneneinrichtung zu finden. Von der weißen Küche bis hin zum hochwertigen Eichenholzboden ist alles sehr schlicht und elegant gehalten“.

Die persönliche Note und der Einrichtungsstil sorgen für ein angenehmes Ambiente und tragen in Kombination mit dem Wohnklima einen wichtigen Teil dazu bei, dass sich Familie John in Ihrem Zuhause rundum neu wohlfühlt. „Im Haus haben wir immer die perfekte Temperatur, es ist nie zu trocken oder zu feucht und die Lüftungsanlage beschert uns stets frische Luft.“ „Das ist schon beeindruckend, wie so ein Haus einfach das perfekte Raumklima erzeugen kann“, schwärmt der Bauherr über die integrierte Lüftungsanlage mit Wärmerückgewinnung. „Da freue ich mich wirklich jedes Mal aufs Neue, nach Hause zu kommen.“

Hausdaten

Hausart Icon
HausartEinfamilienhaus
Bauweise Icon
BauweiseHolz-Tafelbau
Baustil Icon
BaustilKlassische Familienhäuser
Fassade Icon
FassadePutz
Außenmaße Icon
Außenmaße9.98 m x 9.98 m
Wohnfläche Icon
Wohnfläche154 m²
Dachform Icon
DachformSattel-/Giebeldach
Energiestandard Icon
EnergiestandardEffizienzhaus 40 Plus
Immobilientyp Icon
ImmobilientypKundenhaus
Dachneigung Icon
Dachneigung45°
Kniestock Icon
Kniestock0.7 m
Heizungsart Icon
HeizungsartWärmepumpe (Luft, Wasser, oder beides)
Pfeil nach unten linksWir schaffen Platz für Ihre Träume

Grundriss

kh_john_EG.jpg
Kundenhaus in Steinhagen Grundriss (EG)
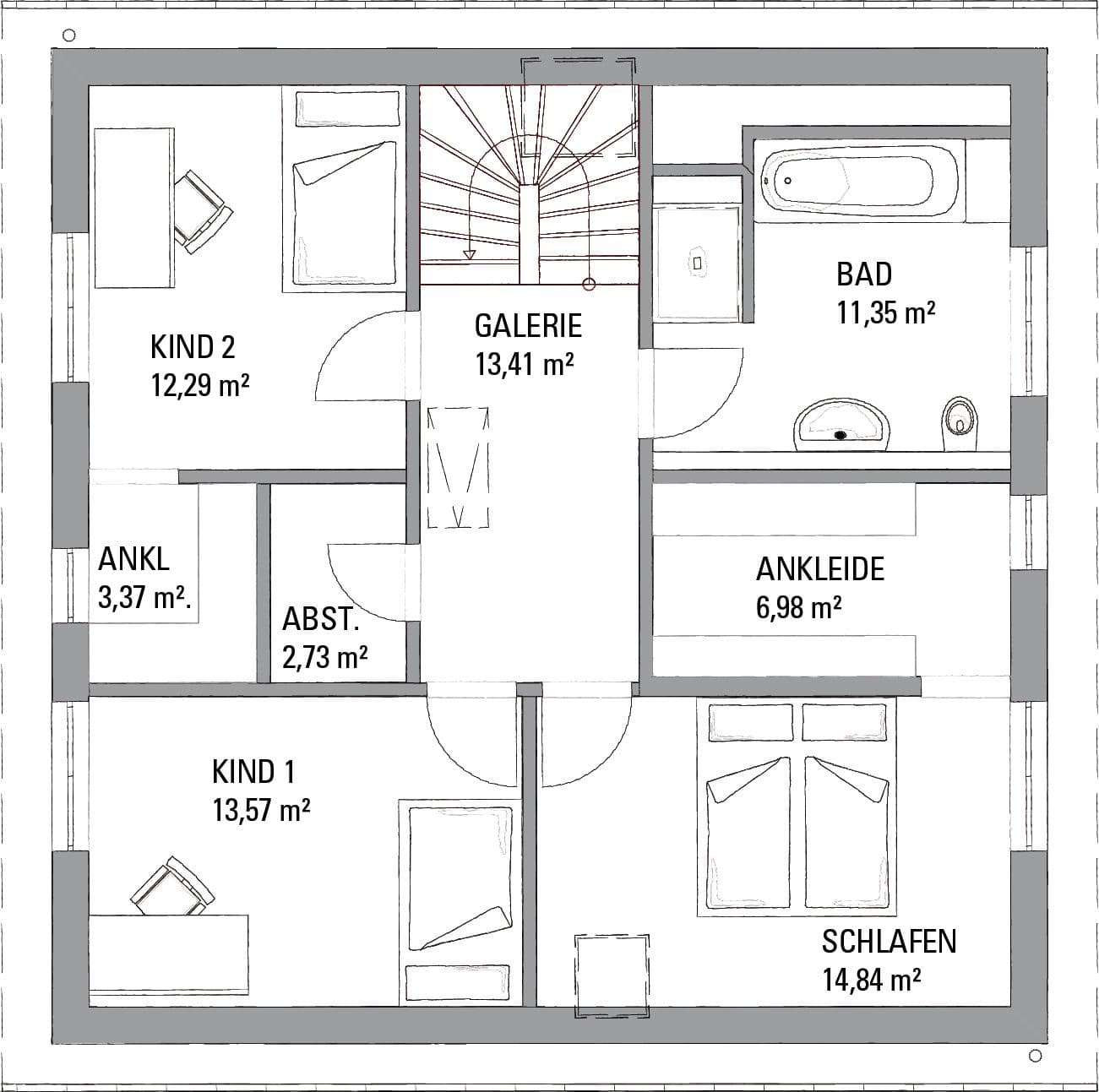
kh_john_OG.jpg
Kundenhaus in Steinhagen Grundriss (OG)

Unser Team vor Ort

Dietmar ThomFachberater*in bei KAMPA
7389_thom_dietmar
Wir beraten Sie gerne!Arrow Icon

Kataloge

KAMPA: Hauskatalog
KAMPA

KAMPA: Hauskatalog


House and TreeParksHouse and PinMusterhausHouse on HandAnbieter