1. AnbieterArrow Icon
  2. KAMPAArrow Icon
  3. Kundenhaus in Hannover
Slide 1
Slide 2
Slide 3
Slide 4
Slide 5
Slide 6
Slide 7
Slide 8
Slide 9
Slide 10
Slide 11
Slide 12
Slide 13
Slide 14
Slide 15
Slide 16
KAMPA_Logo.jpg
KAMPAKundenhaus in Hannover
homeKlassische Familienhäuser
livingArea182 m²
energyStandardEffizienzhaus 40 Plus
Preis anfragen
Katalog bestellen

Kundenhaus in Hannover

Familie Mörke mit grüner Hausnummer ausgezeichnet

INDIVIDUELL – NACHHALTIG – REGIONAL – KAMPA

Energieeffizientes Bauen ist in der heutigen Zeit wichtiger denn je. Unsere Baufamilie Mörke aus Langenhagen hat mit ihrem KAMPA Traumhaus die Grüne Hausnummer der Klima- und Energieagentur Niedersachsen und deren Partner gewonnen. Diese zeichnet Gebäudeeigentümer aus, die besonders energieeffizient gebaut oder saniert haben.

„Wir sind froh und dankbar, stadtnah, Ressourcen schonend und ein Stück vom aktuellen Energiekonflikt unabhängig in unseren eigenen vier Wänden zu leben. Besonders gut tut der Blick auf die grüne Hausnummer, der uns immer wieder daran erinnert, wie ökologisch wir hier bauen konnten!“, so unsere Baufamilie. „Uns war es außerdem wichtig, dass wir mit KAMPA einen Haushersteller gefunden haben, der häufig Effizienzhaus 40 Plus-Häuser baut.“ Bei KAMPA ist Plusenergie seit Jahren gelebter Standard.

Die schlüsselfertig ausgeführte KUBOS-Sonderplanung mit Pultdach, verfügt über einen großzügigen Grundriss. Ausgestattet mit einem separaten Schlafzimmer mit angrenzender Ankleide im Erdgeschoss bietet es vielseitige Nutzungsmöglichkeiten. Ein großer und heller Wohn-Ess-Bereich mit offener Küche bildet den kommunikativen Mittelpunkt des Hauses. Ein Duschbad und eine begehbare Garderobe runden das Raumangebot im Erdgeschoss ab.

Im Obergeschoss befinden sich die zwei gleichgroßen Kinderzimmer, auf der gegeben überliegenden Seite des Hauses der Elternbereich mit einem geräumigen Schlafzimmer, mit Ankleide sowie dem Komfortbad. Ein praktischer Hauswirtschaftsraum im Obergeschoss rundet den gelungenen Grundriss von Familie Mörke ab.

Vom Bauablauf war unsere Baufamilie sehr angetan: „Es war alles super durchorganisiert und für uns deshalb überhaupt nicht anstrengend.“

Neben der Qualität der Materialien sowie der Bauausführung ist Selbstversorger für KAMPA Familien ausschlaggebend. Die KAMPA Philosophie setzt konsequent auf eine energieeffiziente Bauweise mit echter Plusenergie. Erreicht wird dies durch die perfekt gedämmte Gebäudehülle, die den Energiebedarf auf ein Minimum reduziert. Und den kleinen Rest, den man noch braucht, erzeugt man selbst. Mit einer leistungsstarken Photovoltaikanlage auf dem eigenen Dach. Der selbst erzeugte Strom wird im Speicher zwischengespeichert und bedarfsgerecht abgerufen. Dabei verbraucht ein KAMPA Haus weniger Energie, als es für Heizen und Kühlen, Warmwasser sowie den kompletten Haushaltsstrom mit Beleuchtung und E-Mobilität produziert. Echte Plusenergie eben. Werden auch Sie zum Selbstversorger!

Hausdaten

Hausart Icon
HausartEinfamilienhaus
Bauweise Icon
BauweiseHolz-Tafelbau
Baustil Icon
BaustilKlassische Familienhäuser
Fassade Icon
FassadePutz
Außenmaße Icon
Außenmaße13.89 m x 11.26 m
Wohnfläche Icon
Wohnfläche182 m²
Dachform Icon
DachformPultdach
Energiestandard Icon
EnergiestandardEffizienzhaus 40 Plus
Immobilientyp Icon
ImmobilientypKundenhaus
Heizungsart Icon
HeizungsartWärmepumpe (Luft, Wasser, oder beides)
Pfeil nach unten linksWir schaffen Platz für Ihre Träume

Grundriss

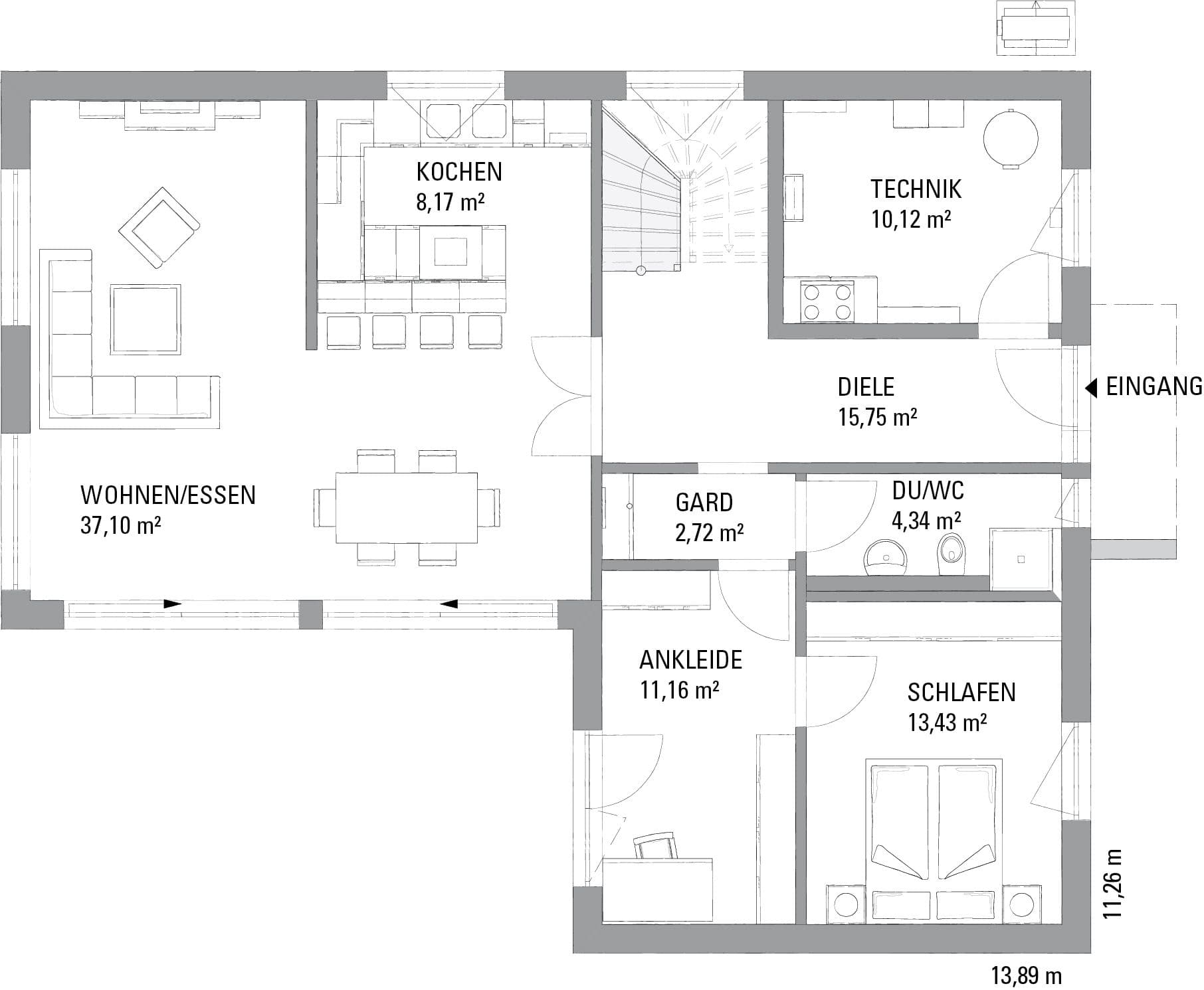
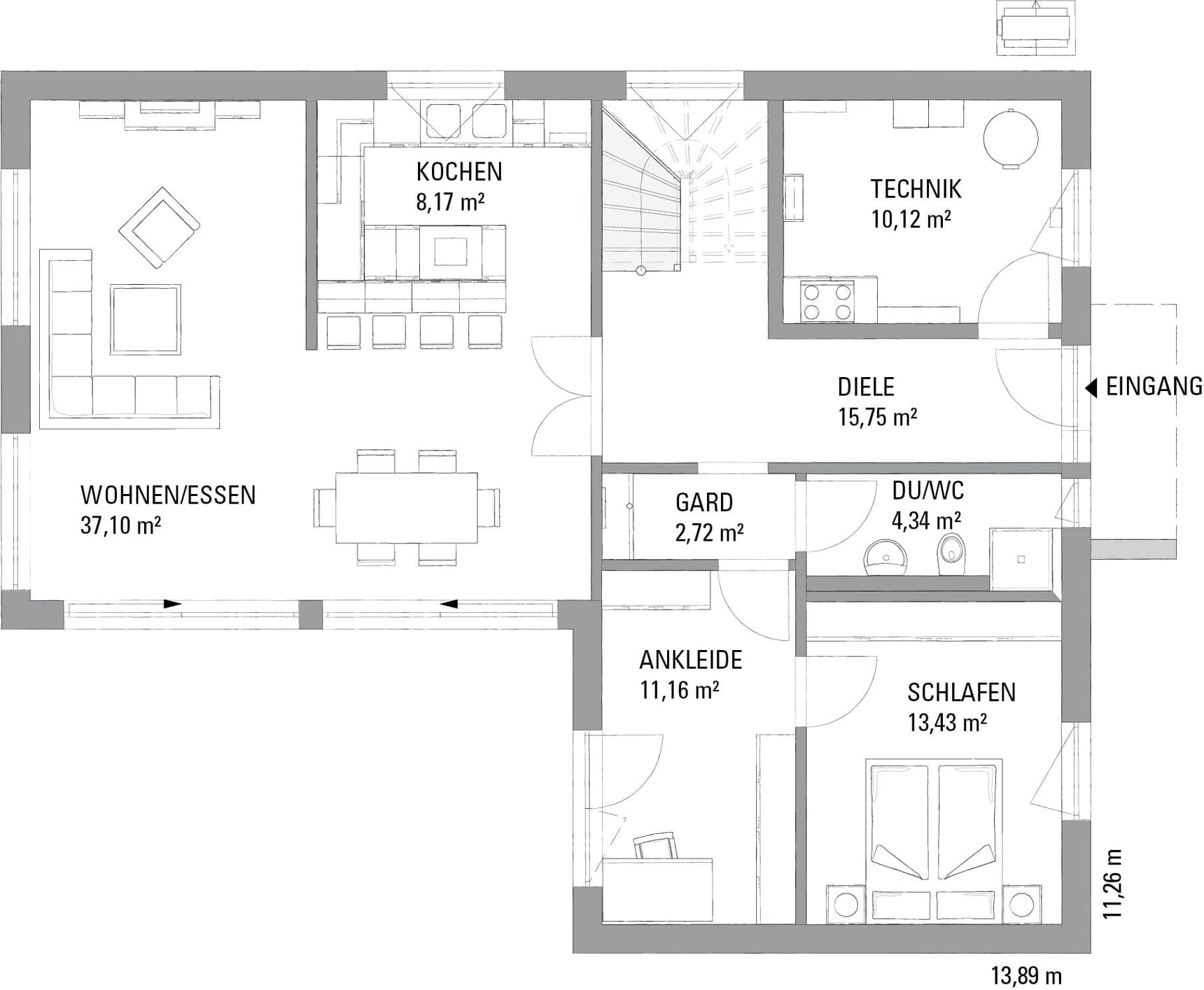
grundriss_EG_kh_moerke.jpg
Kundenhaus in Hannover Grundriss (EG)Wohnfläche EG: 96,54 m²
grundriss_OG_kh_moerke.jpg
Kundenhaus in Hannover Grundriss (OG)Wohnfläche OG: 84,74 m²

Unser Team vor Ort

Dietmar ThomFachberater*in bei KAMPA
7389_thom_dietmar
Wir beraten Sie gerne!Arrow Icon

Kataloge

KAMPA: Hauskatalog
KAMPA

KAMPA: Hauskatalog


House and TreeParksHouse and PinMusterhausHouse on HandAnbieter