Mit seinen klaren Formen ist das lichtdurchflutete Kuboshaus ein absoluter Hingucker. Hier findet die ganze Familie Platz.
Wow! Die Bauherrenfamilie aus der Nähe von Köln war überwältigt, als sie ihr neues Domizil im Januar 2021 zum ersten Mal ganz ohne Baugerüst in Augenschein nehmen konnte. Knapp zwei Jahre später ist die Begeisterung noch immer riesengroß. Denn vom Grundriss über die Ausstattung bis hin zum Energiekonzept hat sich alles als praxistauglich erwiesen.
Vorbildlich: das KAMPA Musterhaus Kubos in Ludwigsfelde
Perfekter Partner für das Bauprojekt: Premiumhersteller KAMPA – und das nicht ohne Grund. „Vorbild für unser neues Zuhause ist das KAMPA Musterhaus Kubos in Ludwigsfelde. Ich habe es gesehen und war gleich schockverliebt“, schwärmt die Bauherrin. Das Haus mit seiner großzügigen Panoramaverglasung wirkt modern und elegant und bietet viel Freiraum auf allen Ebenen. „Genau das wollten wir auch für uns – angepasst an unsere individuellen Bedürfnisse und natürlich an die baulichen Gegebenheiten vor Ort.“
Fünf Personen, drei Ebenen
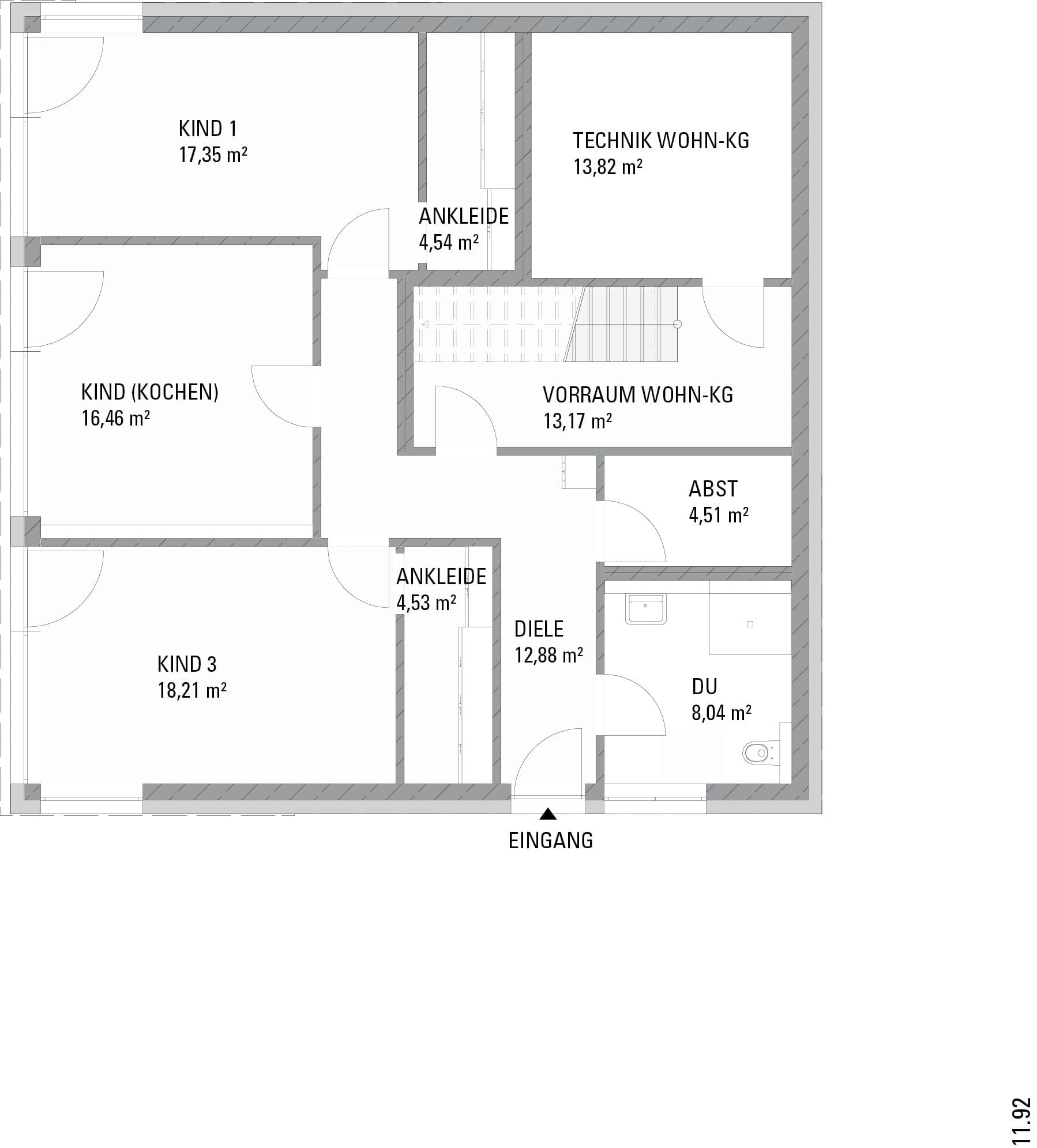
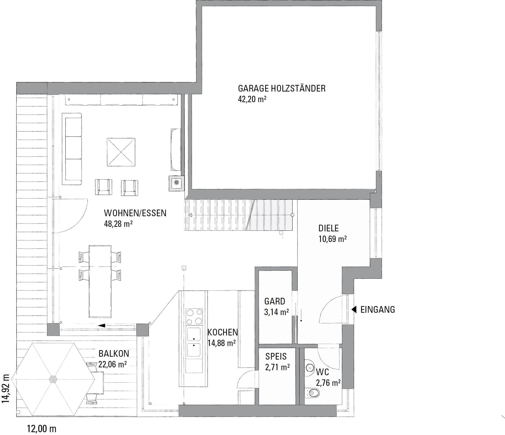
Zwei Geschosse und ein Keller mit insgesamt ca. 250 m2 Wohnfläche: Hier gibt es viel Platz, um mit der Familie zusammen zu sein, sich zurückzuziehen, zu arbeiten oder auszuspannen. Dank einer leichten Hanglage öffnet sich der komfortable Wohnkeller zur Gartenseite, große Fensterfronten erlauben den Ausblick ins Grüne und auf den Swimmingpool. „Der Wohnkeller mit separatem Eingang und Badezimmer ist das Reich unserer Kinder. Jedes hat ein eigenes Zimmer mit direktem Zugang zur Terrasse und zum Pool. Das finden nicht nur unsere Kids, sondern auch deren Freunde cool.“ Das Erdgeschoss ist Familienzone. Der offene, lichtdurchflutete Wohn-, Koch- und Essbereich lädt dazu ein, viel Zeit miteinander zu verbringen. Etwas gemütlich vor dem Kamin oder am XXL-Esstisch mit Blick in den Garten. Oder auf dem ca. 22 m2 groß, von einem Glasgeländer eingefassten Balkon, der im Sommer zum Outdoor-Wohnzimmer wird. Auch das Obergeschoss verfügt über einen großzügigen Balkon mit Glasverkleidung, außerdem befindet sich hier das Elternschlafzimmer inklusive Ankleideraum und Wellness-Badezimmer. Direkten Zugang zum Balkon gibt es auch über das Arbeitszimmer. „Hier oben bin ich ganz in meinem Element.“ Das ist mein Bereich, mein absoluter Lieblingsplatz. „Hier habe ich Ruhe zum Arbeiten, kann aber auch gut abschalten und entspannen“, erzählt die Bauherrin. „Und tolle Sonnenuntergänge beobachten, am liebsten zusammen mit meinem Ehemann.“ Direkten Zugang zum Balkon gibt es auch über das Arbeitszimmer. „Hier oben bin ich ganz in meinem Element.“ Das ist mein Bereich, mein absoluter Lieblingsplatz. „Hier habe ich Ruhe zum Arbeiten, kann aber auch gut abschalten und entspannen“, erzählt die Bauherrin. „Und tolle Sonnenuntergänge beobachten, am liebsten zusammen mit meinem Ehemann.“ Direkten Zugang zum Balkon gibt es auch über das Arbeitszimmer. „Hier oben bin ich ganz in meinem Element.“ Das ist mein Bereich, mein absoluter Lieblingsplatz. „Hier habe ich Ruhe zum Arbeiten, kann aber auch gut abschalten und entspannen“, erzählt die Bauherrin. „Und tolle Sonnenuntergänge beobachten, am liebsten zusammen mit meinem Ehemann.“
Individualität ist Standard
KAMPA stand der Bauherrenfamilie von der ersten Idee über die Entwurfsentwicklung, die Einrichtungsberatung und die professionelle Baubegleitung bis hin zum Einzug konsequent zur Seite. „Von Anfang an in die Planung eingebunden zu sein, meine Ideen einbringen und umsetzen zu können – das war mir besonders wichtig“, so die Bauherrin. Inspiration boten Architekturmagazine, aber auch ausgiebige Spaziergänge durch die Nachbarschaft. „Ich bin gewissermaßen eine Häuser-Stalkerin‘, schaue mir alles genau an. Einmal habe ich sogar an einer fremden Haustür geklingelt, um die Fassadenfarbe zu erfragen.“
Schlüssiges Energiekonzept
Bei KAMPA ist nicht nur Individualität Serienstandard, sondern auch echte Plusenergie. So verbrauchen die als Effizienzhaus 40 Plus konzipierten Holzhäuser weniger Energie, als sie produzieren. Die Bewohner werden zu Selbstversorgern und unabhängig von schwankenden Energiepreisen. „Unser KAMPA Haus ist prima gedämmt, dafür sorgt u. a. das MultiTec Wand- und Fassadensystem, das sogar in unserer Garage zum Einsatz kommt. Im Sommer profitieren wir von einem optimalen Hitzeschutz, während wir es im Winter behaglich warm haben. Auch die Passivhausfenster sichern kostbare Heizwärme im Haus.“ Kurz: Die perfekt gedämmte Gebäudehülle reduziert den Energieverbrauch auf ein Minimum. Der verbleibende Energiebedarf wird durch selbst erzeugten, regenerativen Sonnenstrom von der Photovoltaikanlage auf dem Dach gedeckt. Ein leistungsfähiger Lithium-Ionen-Energiespeicher sorgt dafür, dass der Strom bedarfsgerecht abgerufen werden kann.
Home, Smart Home
Die Energie- und Haustechnik kommt von VIESSMANN und lässt sich auch ins Smart Home integrieren. „Das ist etwas für meinen Mann. Als IT-ler liebt er es, immer neue Szenarien zu erstellen, die unseren Alltag deutlich erleichtern.“ Beleuchtung, Raffstores & Co. lassen sich per Smartphone von unterwegs oder über zwei im Haus installierte Touch-Panels bedienen und überwachen. „Ich wünsche mir, dass unser schönes Zuhause allen als Inspiration dient, die ebenfalls den Traum von den eigenen vier Wänden realisieren möchten. Sie dürfen auch gerne an unsere Tür klopfen“, versichert die Bauherrin mit einem Augenzwinkern.
