1. AnbieterArrow Icon
  2. KAMPAArrow Icon
  3. Kundenhaus in Brück bei Berlin
Slide 1
Slide 2
Slide 3
Slide 4
Slide 5
Slide 6
Slide 7
Slide 8
Slide 9
Slide 10
Slide 11
Slide 12
Slide 13
Slide 14
Slide 15
Slide 16
Slide 17
KAMPA_Logo.jpg
KAMPAKundenhaus in Brück bei Berlin
homeKlassische Familienhäuser
livingArea144 m²
energyStandardEffizienzhaus 40 Plus
Preis anfragen
Katalog bestellen

Kundenhaus in Brück bei Berlin

Energiepreise sind kein Thema

Lucas Sehnert ist die große Bühne gewohnt. Er steht schon gemeinsam mit The BossHoss, Joris und vielen anderen im Rampenlicht. Gemeinsam mit seiner Frau Katharina hat er sich für ein Haus von KAMPA entschieden – unter anderem wegen dem KAMPA Plusenergie Konzept.

Alles begann auf der Baumesse in Berlin. Katharina und Lucas Sehnert waren auf der Suche nach ihrem Traumhaus unterwegs, als sie am KAMPA Messestand vorbeikamen. „Wenn wir finanziell unbegrenzte Möglichkeiten hätten, dann wäre das mein Traumhaus“, schwärmte Katharina. Sie kamen mit dem KAMPA Berater ins Gespräch und schnell wurde klar, dass es keine finanziell unbegrenzten Möglichkeiten braucht, um KAMPA Bauherren zu werden. Anfänglich hatte das Ehepaar nach einer Bestandsimmobilie gesucht, aber da war nichts Passendes zu finden – überteuert und nicht mehr zeitgemäß. Also trauten sie sich an den Gedanken eines Neubaus heran. „Die steigenden Energiepreise hatten wir schon seit längerem mit Sorge beobachtet“, gab Lucas zu. Das KAMPA Plusenergie Konzept überzeugt die beiden deshalb sofort: Dank der hochwertigen Gebäudehülle benötigt ein KAMPA Haus sowieso nur noch sehr wenig Energie für Heizung, Warmwasser und Haushalt. Mit einer Photovoltaikanlage wird dieser Strom auf dem Dach erzeugt. Er wird im Stromspeicher zwischengespeichert und dann genutzt, wenn die Sonne gerade mal nicht scheint. Der minimale Rest wird eingespeist bzw. aus dem Netz bezogen. Der größte Teil des eigenproduzierten Stroms kann somit selbst genutzt werden. „Unsere Generation ist in der Pflicht, klimaneutral zu bauen.“ „Der Gedanke, Selbstversorger in Sachen Energieversorgung und damit weitestgehend autark von steigenden Energiepreisen zu sein und gleichzeitig noch etwas für die Umwelt zu tun, hat uns richtig gut gefallen“, so der stolze Bauherr weiter. Die Sehnerts haben im April 2020 begonnen zu bauen und sind schon im Juli 2020 in ihr Eigenheim eingezogen. Sie haben bereits einen ersten Winter im neuen Zuhause verbracht und können stolz berichten: „Wir haben um die 20 € Euro im Monat an Stromkosten für Heizung, Warmwasser, Haushaltsstrom und Fußbodenkühlung im Sommer.“ Wir sind glücklich, dass unser Energiekonzept aufgegangen ist.“

Hausausstattung aus einer Hand und im Grundpreis enthalten

Bei KAMPA geht es um mehr als nur vier Wände und ein Dach. Es geht um das Gesamtkonzept, welches es braucht, um ein richtig gemütliches Zuhause zum Wohlfühlen zu schaffen. Und zwar so, dass es sich die Bauherren auch leisten können. Katharina und Lucas Sehnert berichten: „Wir wurden zur Bemusterung in die KAMPA Ausstellung nach Freiwalde bei Berlin eingeladen und waren positiv überrascht, welch vielfältige Auswahl uns erwartete. Böden, Fliesen, Türen, Bäder, Armaturen – variantenreich und alles bereits im Grundpreis enthalten.“ Ihr KAMPA Haus haben die Sehnerts ganz nach ihrem Geschmack ausgestattet. Ein geschmackvolles, gemütliches Zuhause ist entstanden. Da möchte man gleich selbst einziehen.

Hausdaten

Hausart Icon
HausartEinfamilienhaus
Bauweise Icon
BauweiseHolz-Tafelbau
Baustil Icon
BaustilKlassische Familienhäuser
Fassade Icon
FassadePutz
Außenmaße Icon
Außenmaße11.7 m x 8.5 m
Wohnfläche Icon
Wohnfläche144 m²
Dachform Icon
DachformSattel-/Giebeldach
Energiestandard Icon
EnergiestandardEffizienzhaus 40 Plus
Immobilientyp Icon
ImmobilientypKundenhaus
Dachneigung Icon
Dachneigung32°
Heizungsart Icon
HeizungsartWärmepumpe (Luft, Wasser, oder beides)
Pfeil nach unten linksWir schaffen Platz für Ihre Träume

Grundriss

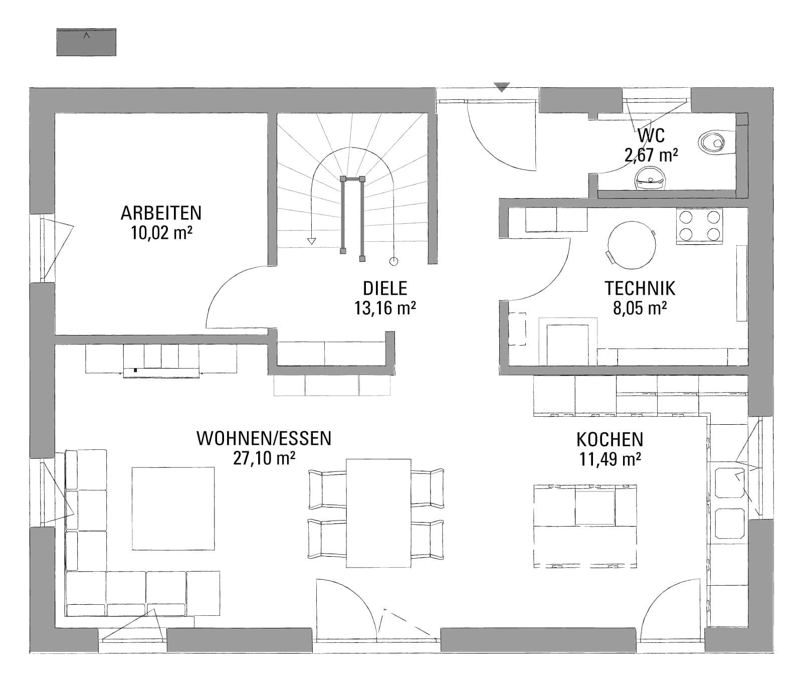
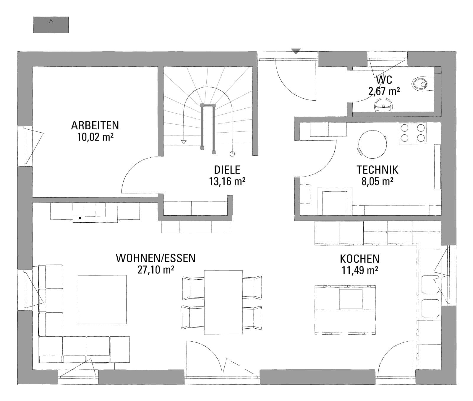
Grundriss_Sehnert_EG.jpg
Kundenhaus in Brück bei Berlin Grundriss (EG)Wohnfläche EG: 72,49 m²
Grundriss_Sehnert_OG.jpg
Kundenhaus in Brück bei Berlin Grundriss (OG)Wohnfläche OG: 71,61 m²

Unser Team vor Ort

Kataloge

KAMPA: Hauskatalog
KAMPA

KAMPA: Hauskatalog


House and TreeParksHouse and PinMusterhausHouse on HandAnbieter