Typisch für die Architektur des Schwarzwaldes überzeugt dieses KAMPA Musterhaus mit einem Steildach. Klare Linien und eine „kantige“ Ausführung der Gaube und der Giebel stehen für moderne Interpretation eines Dreigiebelhauses. Die auffällige Fassaden-Komposition aus Putz-, Holz- und Schieferelementen setzt gekonnte individuelle Akzente und zeigt die Vielfalt des innovativen MultiTec Wand- und Fassadensystems. Die beiden Anbauten – nämlich die Eingangs- sowie die Terrassenüberdachung – sind beide ebenfalls mit einer Schieferfassade ausgestattet und fügen sich so perfekt in die Architektur des Hauses ein.
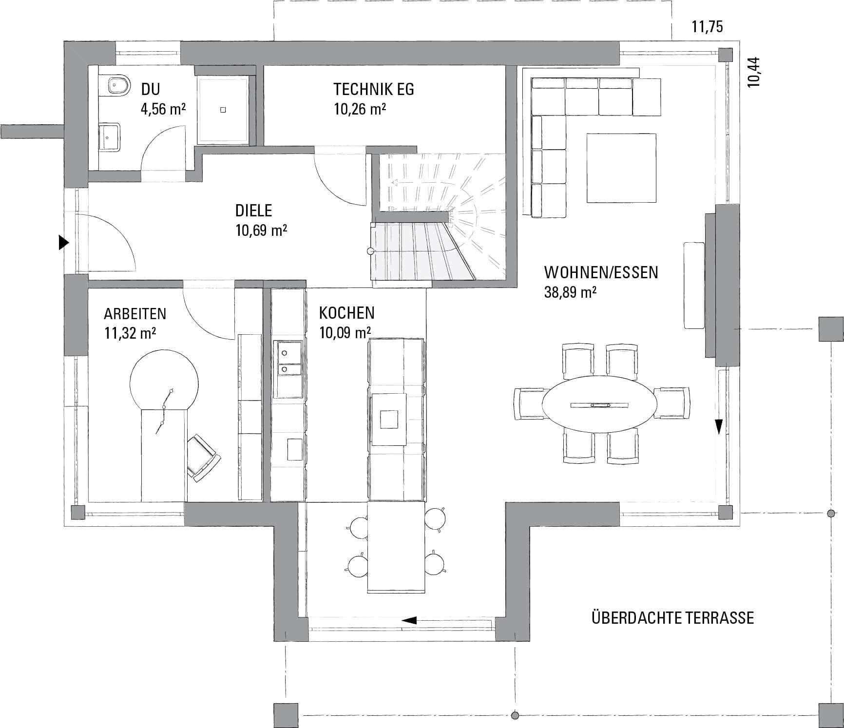
Im lichtdurchfluteten Innenraum wird der gleiche Ansatz wie außen verfolgt: gemütlich aber modern und komfortabel. Großformatige Fliesen, schöne Naturholzdielen in warmen Tönen in Kombination mit trendigem Schwarz sorgen für stylisches Wohlgefühl. Der durchdachte und flexible Grundriss mit vielen Highlights macht es möglich, ihn in der Größe anzupassen, wenn das Haus etwas kleiner oder sowohl etwas größter werden soll. Offen und hell präsentiert sich das Erdgeschoss. Schon die Eingangstür ist etwas Besonderes. Es handelt sich um eine Schwingtür mit überdimensionalem Türblatt und seitlicher Drehachse, welche in die große Diele mit integriertem Stauraum und „verstecktem“ Zugang zum Hauswirtschafts- und Technikraum führt. Ein zusätzliches Zimmer im Erdgeschoss kann als Büro oder durch das Duschbad in unmittelbarer Nähe auch als Gästezimmer genutzt werden. Eine moderne, große und zentral gelegene Küche mit Sitzgelegenheit im Erker bildet mit dem offenen Wohn- und Essbereich den Mittelpunkt des Hauses, große Schiebetüren und Verglasungen lassen viel Licht hinein und gewähren den freien Blick ins Grüne. Die großzügige Terrasse bietet einen geschützten und geschützten Platz zum Genießen.
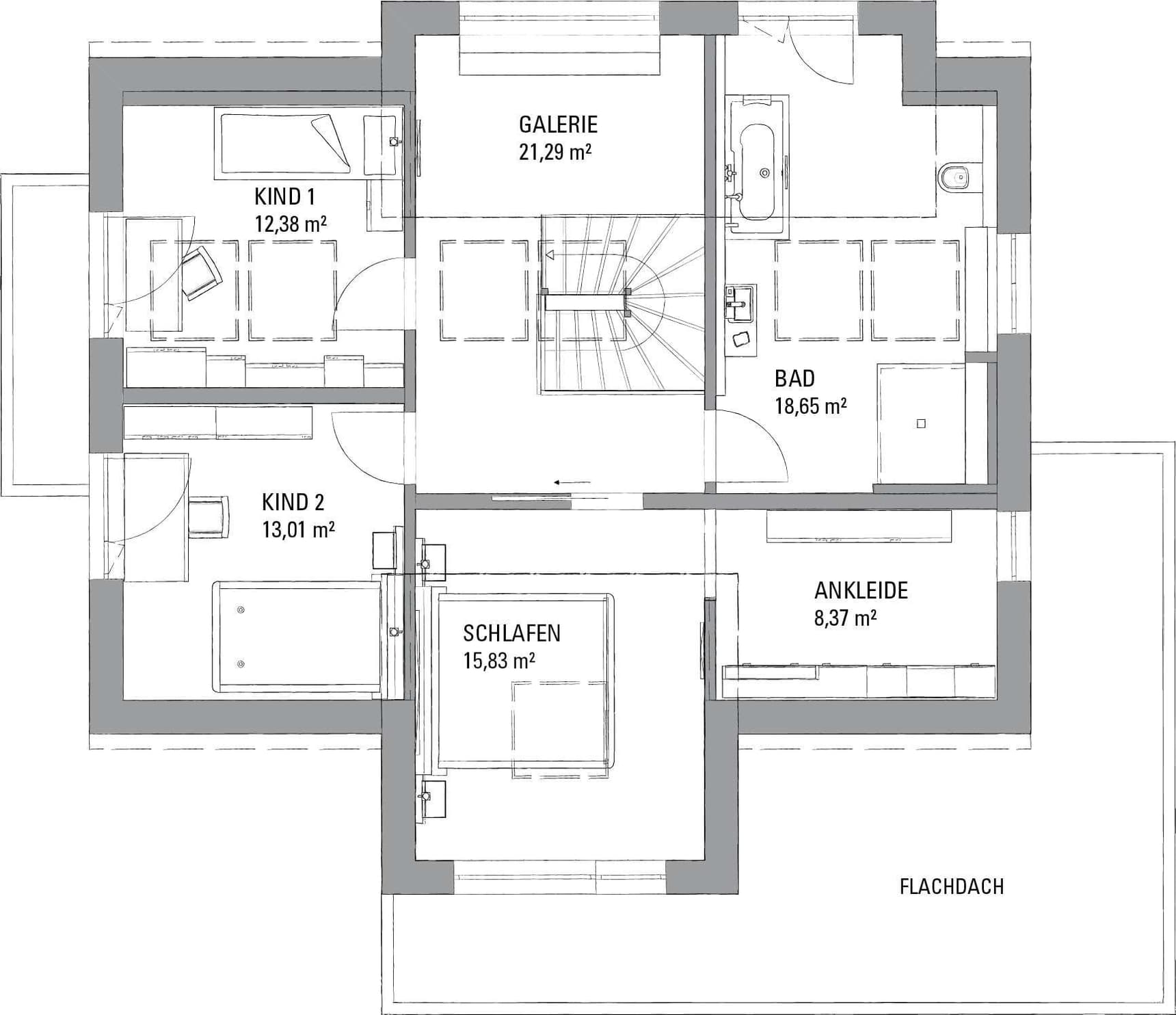
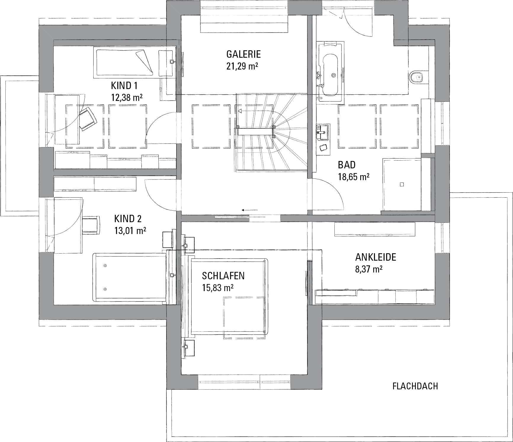
Im Dachgeschoss befindet sich eine lichtdurchflutete Galerie mit großem Sitzfenster. Zwei gleichgroße Kinderzimmer, ein Schlafzimmer mit Lichtkuppel und separatem Ankleidezimmer sowie ein Designbad mit Wellnessdusche und freistehender Badewanne mit Blick ins Grüne sind weitere Highlights. Durch die großzügige Verglasungen – auch in der Dachschräge – entstehen helle, freundliche und hohe Räume. Ausgestattet mit einem Smart-Home-System und der neuesten Energie- und Klima-Lösung von Viessmann bietet das Haus viel Komfort und Wohlgefühl.


(öffnet Donnerstag um 12:00 Uhr)


