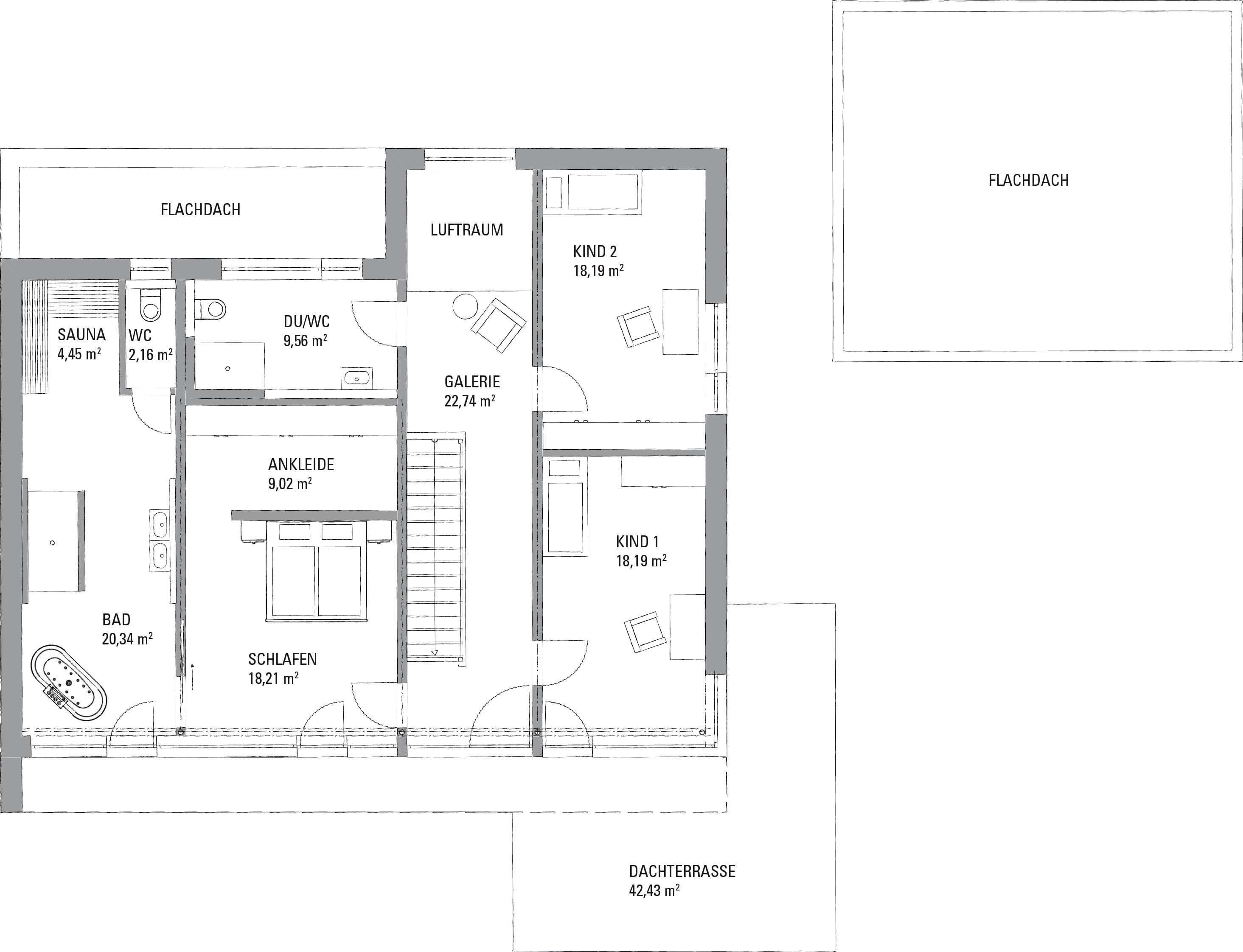
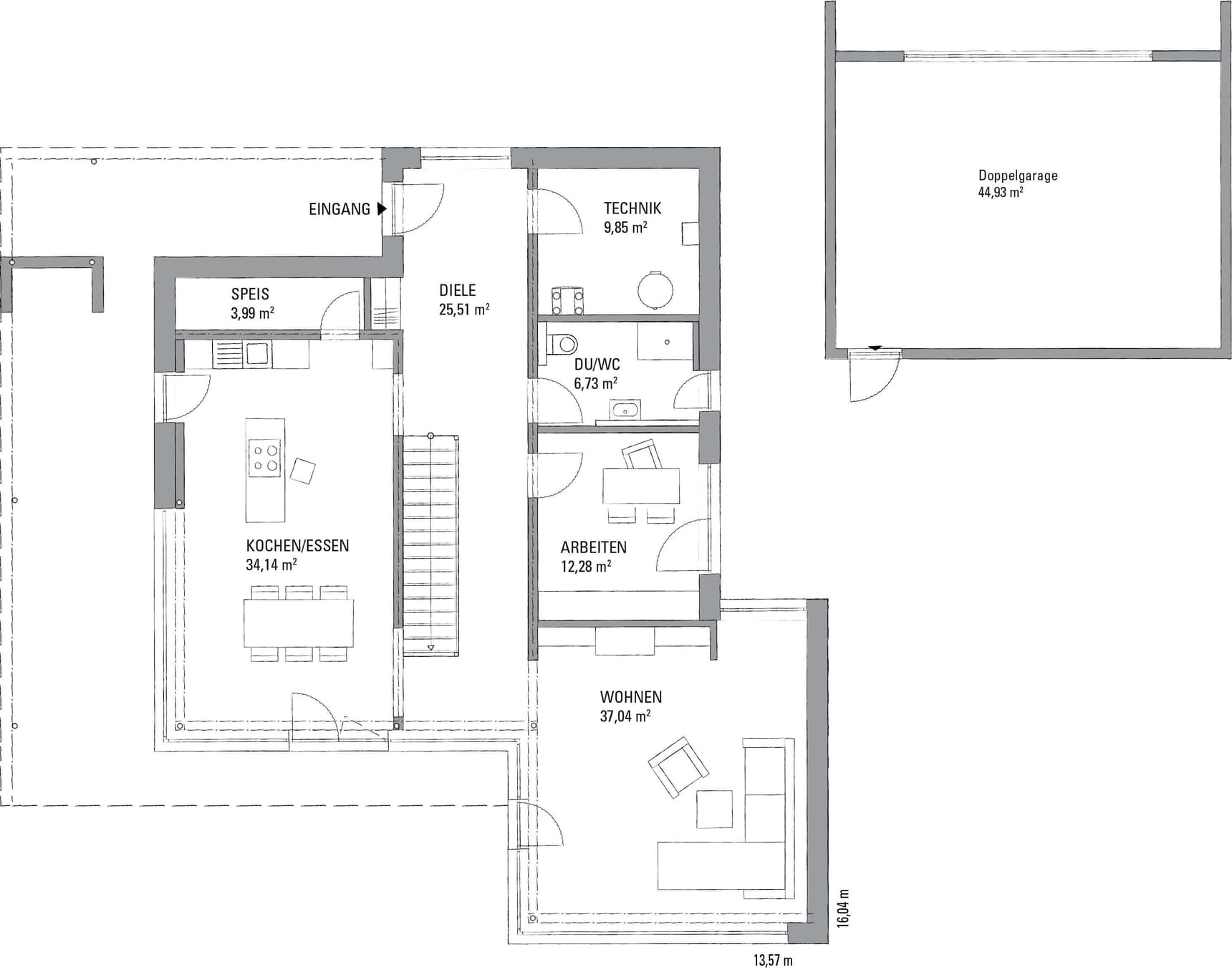
Ein Kubus der Extraklasse mit Licht und viel Freiraum auf allen Ebenen. Die Südseite mit seiner großzügigen Panoramaverglasung, verleiht dem Baukörper eine moderne, schnörkellose Eleganz. Der offene Koch-Essbereich im Erdgeschoss verbindet sich fließend mit der Terrasse und lässt die Grenzen zwischen Drinnen und Draußen verschwinden.
Das neue KAMPA Musterhaus lässt die Herzen höher schlagen – seien Sie gespannt.
Ein Lebenskonzept – natürlich vor den Toren Berlins
Mitten in der freien Natur entsteht mit dem Rousseau Park ein modernes Wohnprojekt für Stadtmenschen, die mit ihrer Familie idyllisch im Grünen wohnen und dennoch nicht auf die Vorzüge und das Lebensgefühl der Stadt verzichten möchten.





