Ein Haus für jede Lebenslage – für die Zukunft gebaut.
Bei dem Musterhaus in Aalen/Waldhausen handelt es sich um ein barrierefreies Mehrgenerationenhaus, das ein harmonisches Zusammenleben von drei Generationen unter einem Dach ermöglicht. Gebaut als Plus-Energie Haus mit dem Effizienzhaus 40 Standard, erzeugt es mehr Energie, als von den Bewohnern verbraucht wird.
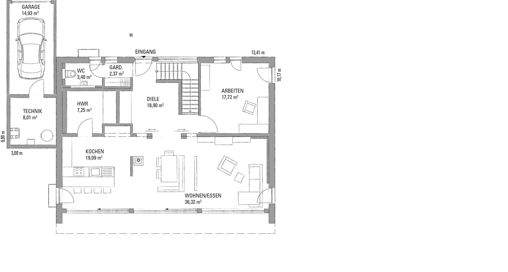
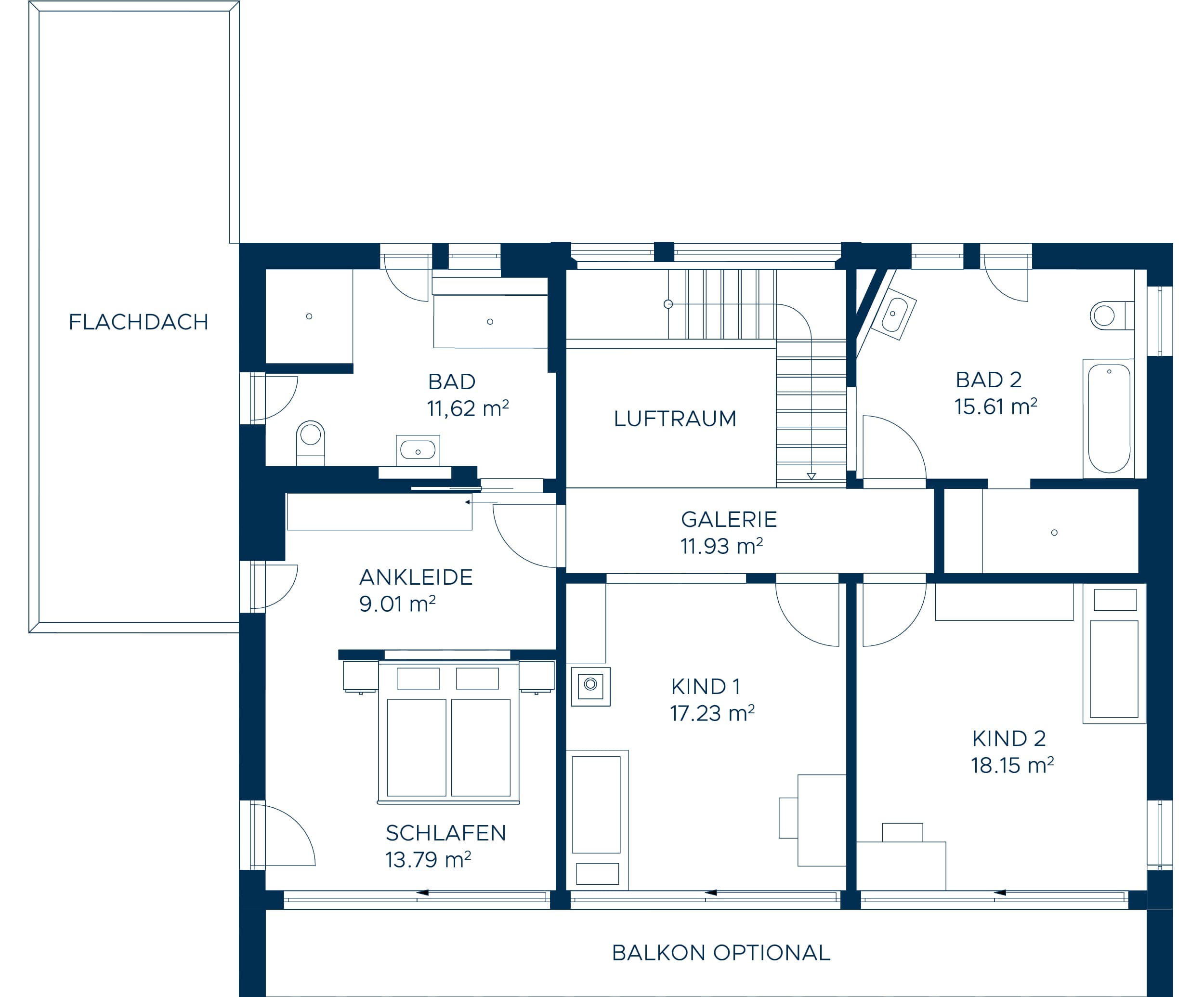
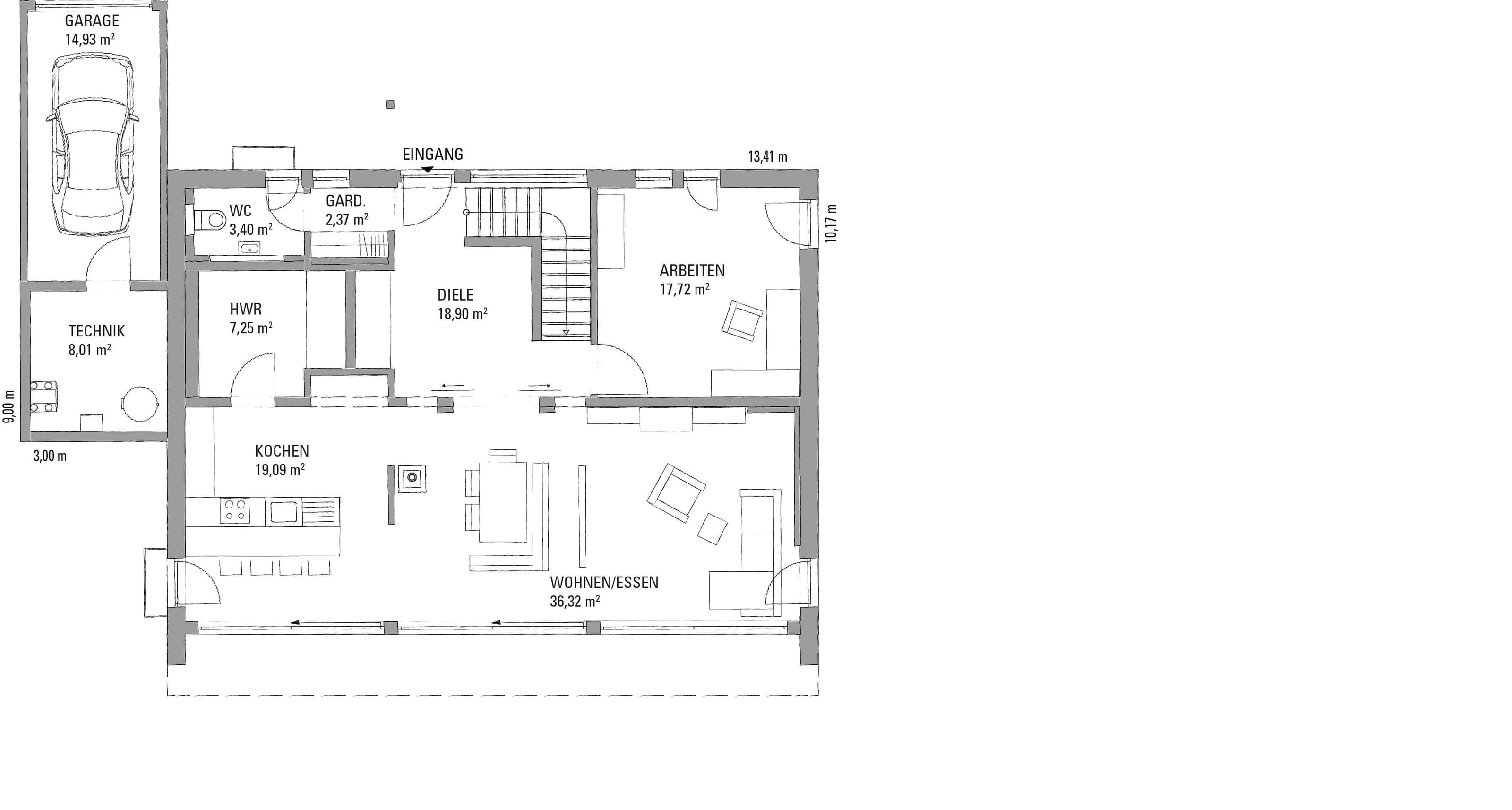
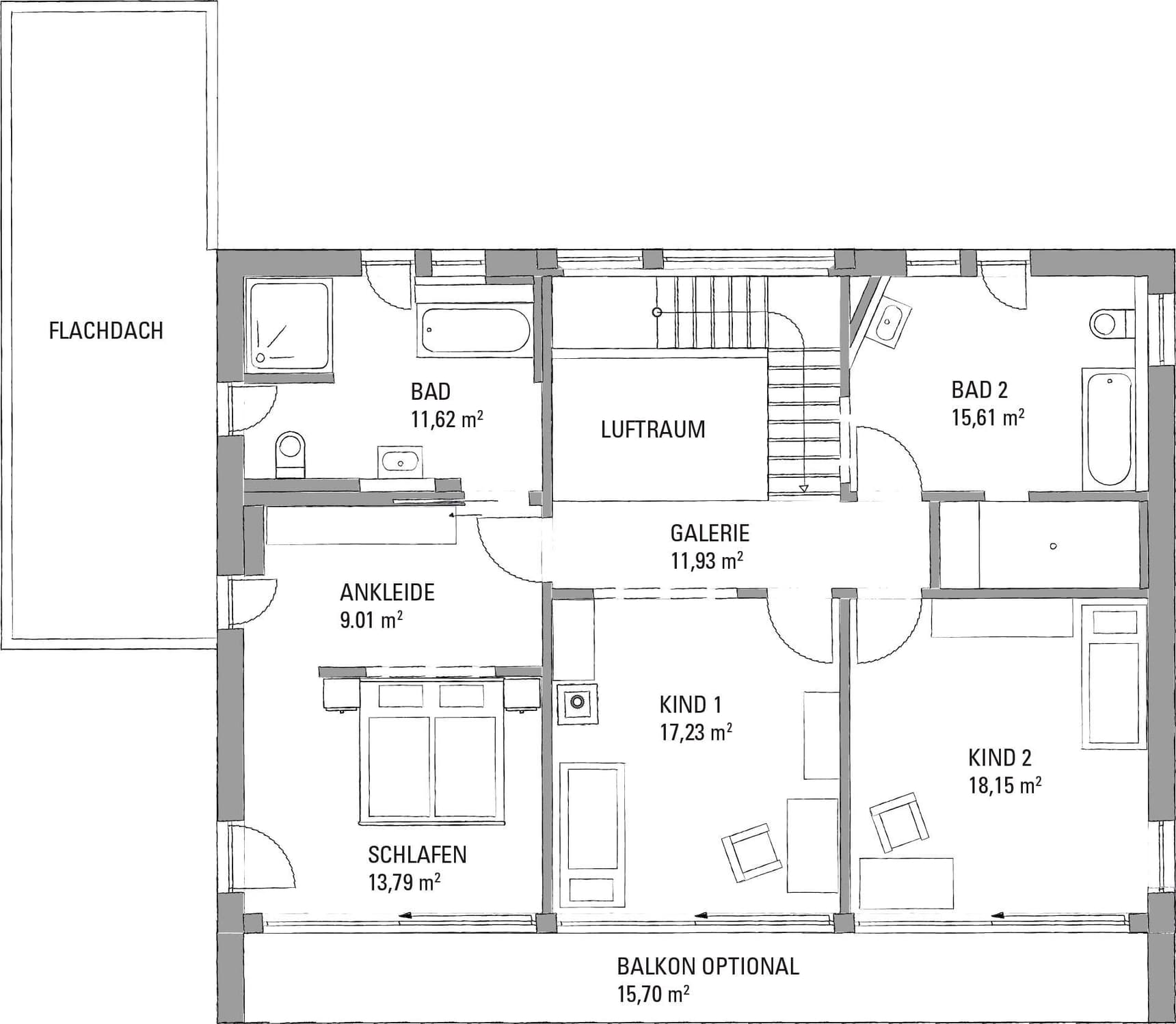
Das Flachdachhaus zeichnet sich durch moderne Architektur mit drei voll nutzbaren Wohnebenen und vielseitigen Nutzungsmöglichkeiten für jede Lebensphase und Familiensituation aus. Die integrierte Einliegerwohnung im Effizienzhaus 40-Wohnkeller bietet vollwertigen und behaglichen Wohnraum, der als Büro, Fitness- oder Hobbyraum, Wellnessoase oder Mietwohnung genutzt werden kann. Ein nachhaltiges und flexibles Hauskonzept, welches eindrucksvoll künftiges Wohnen in einer Generationengemeinschaft zeigt.
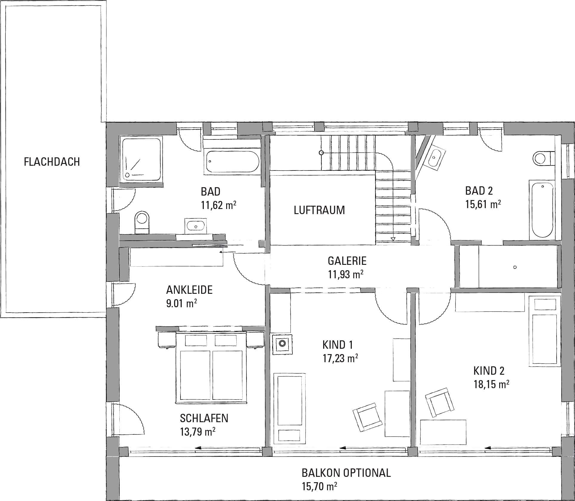
Das Musterhaus ist ein ganzheitliches Konzept für drei Generationen, das Räume für Gemeinsamkeit ebenso wie entsprechende Rückzugsmöglichkeiten für alle Bewohner bietet. Im Erd- und Obergeschoss wurde ein klassisches Raumprogramm für eine vierköpfige Familie umgesetzt, im Wohnkeller die Einliegerwohnung barrierefrei gestaltet. Verbunden sind Erd- und Untergeschoss durch einen Homelift, der das Haus barrierefrei macht. Hier wurden bei der Planung bereits vorgedacht und flexible Deckenelemente eingebaut, die bei Bedarf entfernt werden können und das Einsetzen bzw. den Umbau des Homelifts ermöglichen.
Locarno zeichnet sich durch eine klare Linienführung und den Einsatz natürlicher Materialien aus: Natursteinmauern, Sichtholzverschalung, großzügige Glaselemente und Edelputz wechseln sich harmonisch ab und setzen sich bis in den Terrassenbereich fort. Die Innengestaltung lebt von einer offenen Architektur, lichtdurchflutetes Wohnen setzt sich bis ins Untergeschoss fort. Zahlreiche Zugänge nach draußen, die Komfortbäder, eine Wellnessoase im Garten mit Außensauna, Freiluftdusche, Schwimmteich und überdachtem Launchbereich sind einige der vielen Highlights.

