1. AnbieterArrow Icon
  2. KAMPAArrow Icon
  3. Kundenhaus Wald-Hohenzollern
Slide 1
Slide 2
Slide 3
Slide 4
KAMPA_Logo.jpg
KAMPAKundenhaus Wald-Hohenzollern
homeBungalow
livingArea125 m²
energyStandardEffizienzhaus 40 Plus
Preis anfragen
Katalog bestellen

Kundenhaus Wald-Hohenzollern

Idyllischer Bungalow mit mediterranem Flair

SCHNELL – SCHNELLER – KAMPA @@Mit einem Fertighaus geht's einfach schneller ins neue Eigenheim

Ein Eigenheim hatte Familie Eul bereits. Weil das aber einfach nicht mehr zeitgemäß war, entschied sich das Ehepaar, das Haus zu verkaufen und noch einmal neu zu bauen: Ein moderner ebenerdiger Bungalow von KAMPA sollte es werden. Da die Eulen möglichst schnell in ihr neues Zuhause einziehen wollten, kam für sie nur ein Holzhaus in Fertigbauweise in Frage. „Dass es dann so schnell ging, hat uns wirklich überrascht“, so die Bauherrin Andrea Eul, die sich gemeinsam mit ihrem Mann für ein Plusenergiehaus mit Photovoltaikanlage auf dem Dach entschieden hat. „Das zukunftsweisende Energiekonzept war schließlich auch ausschlaggebend, warum unsere Wahl auf KAMPA fiel. Die Idee, dass wir künftig unseren eigenen Strom erzeugen und selbst nutzen können und zudem kaum Energie verbrauchen, hat uns sofort gefallen.“


Begeistert hat die Euls auch die reibungslose Umsetzung ihres Bungalows mit offener Raumgestaltung, bei dem alles – von der Planung bis zur Schlüsselübergabe – perfekt geklappt hat. „Wir hatten einfach immer das Gefühl, in allen Bauphasen kompetent beraten und betreut zu werden. Auch bei der Bemusterung“, berichtet die Bauherrin von ihren Erfahrungen in der Bemusterungswelt in Aalen- Waldhausen. „Das Tollste neben der großen Auswahl dort war, dass wir unsere Küche mithilfe einer 3-D-Animation selbst zusammenstellen und uns so ganz genau vorstellen konnten, wie später alles aussehen wird. Mit dem Ergebnis sind wir jeden Tag aufs Neue glücklich.“ Doch nicht nur die Optik sorgt dafür, dass sich Familie Eul in ihrem neuen Zuhause so richtig wohlfühlt, auch das Raumklima trägt entscheidend dazu bei. „Dank der Holzbauweise mit Wärmedämmung und Komfortlüftung ist es in unserem Haus immer angenehm warm. Das tut auch meinen Muskeln gut, denn seit wir hier wohnen sind meine Beschwerden deutlich zurückgegangen“, freut sich Andrea Eul, die seit Jahren an einer Muskelerkrankung leidet. 

Hausdaten

Hausart Icon
HausartEinfamilienhaus
Bauweise Icon
BauweiseHolz-Tafelbau
Baustil Icon
BaustilBungalow
Fassade Icon
FassadePutz
Außenmaße Icon
Außenmaße14.67 m x 13.01 m
Wohnfläche Icon
Wohnfläche125 m²
Dachform Icon
DachformWalm-/Zeltdach
Energiestandard Icon
EnergiestandardEffizienzhaus 40 Plus
Immobilientyp Icon
ImmobilientypKundenhaus
Hauseigenschaften Icon
HauseigenschaftenTerasse
Heizungsart Icon
HeizungsartWärmepumpe (Luft, Wasser, oder beides)
Pfeil nach unten linksWir schaffen Platz für Ihre Träume

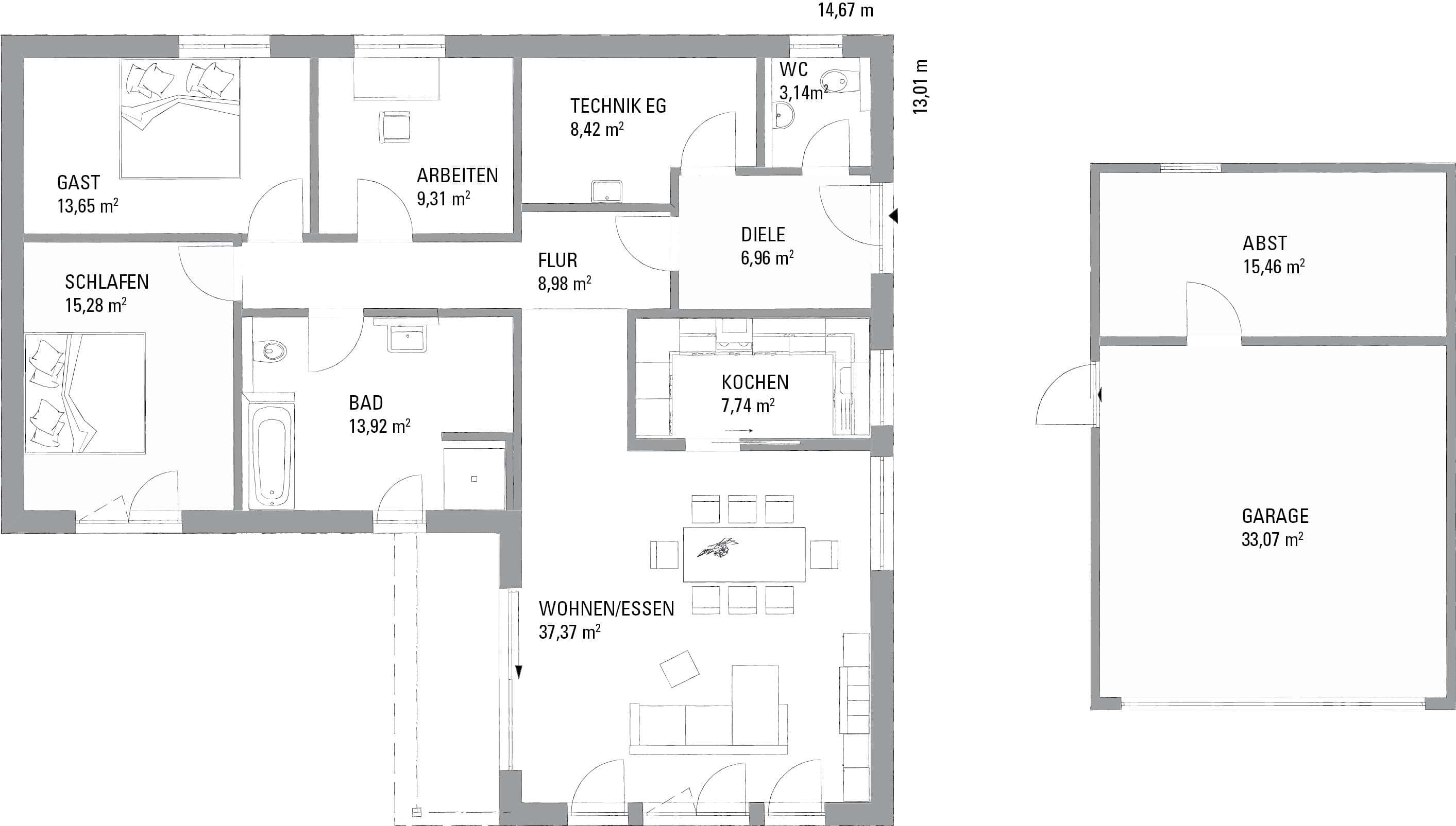
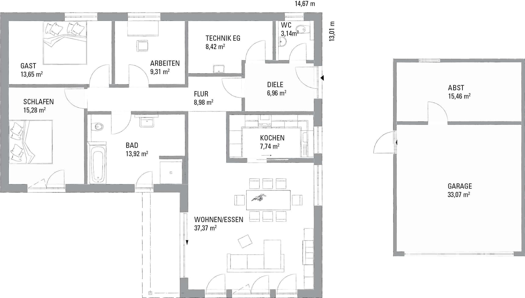
Grundriss

no description
Kundenhaus Wald-Hohenzollern Grundriss (EG)

Unser Team vor Ort

Jürgen LehnertFachberater*in bei KAMPA
7366_lehnert_juergen
Wir beraten Sie gerne!Arrow Icon

Kataloge

KAMPA: Hauskatalog
KAMPA

KAMPA: Hauskatalog


House and TreeParksHouse and PinMusterhausHouse on HandAnbieter