1. AnbieterArrow Icon
  2. KAMPAArrow Icon
  3. Kundenhaus in Schwäbisch Gmünd
Slide 1
Slide 2
Slide 3
Slide 4
Slide 5
Slide 6
Slide 7
KAMPA_Logo.jpg
KAMPAKundenhaus in Schwäbisch Gmünd
homeKubushäuser im Bauhausstil
livingArea185 m²
energyStandardEffizienzhaus 40 Plus
Preis anfragen
Katalog bestellen

Kundenhaus in Schwäbisch Gmünd

Frei geplant ist bei KAMPA alles möglich!

Unser KAMPA Bauherr aus Schwäbisch Gmünd unterhält jeden Samstag die Aalener bei ihren Einkäufen auf dem Markt. Er steht dort mit seiner Drehorgel und dem Stoffaffen Charly und sorgt bei Jung und Alt für ein Lächeln. Das eingenommene Geld spendet er seit Jahren zu 100% an den Verein Human Dreams e.V., welcher Projekte in Afrika unterstützt.

Wer so viel Energie für andere einsetzt braucht einen Ort zum Kraft tanken und relaxen. Diesen Ort hat sich der Bauherr zusammen mit seiner Frau und seiner Tochter geschaffen. Ein individuelles KAMPA Traumhaus welches allen Anforderungen an architektonischem Design, Nachhaltigkeit und Energieeffizienz gerecht wird.

Während des Studiums jobbte der Bauherr in der Baubranche und machte seine Erfahrungen mit dem Massivbau: „Schiefe Wände, keine rechtwinkligen Ecken – darüber ärgerte ich mich in dieser Zeit viel.“ Dann baute sein Bruder ein Fertighaus – und er war begeistert von der Präzision.

Gemeinsam mit dem KAMPA Berater und dem KAMPA Architekten wurde das Traumhaus der Baufamilie aufs Papier gebracht: Viel Platz im Erdgeschoss, eine Galerie im Oberschoss und ein eigenes Kinderbad für die Tochter waren nur einige Anforderungen an den Grundriss. Von außen sollte es ein versetzter Kubus werden, mit teilweise vorgezogenem Obergeschoss, damit die Terrasse vor Sonne und Regen geschützt bleibt. Optisch betont wird das Obergeschoss durch die abgesetzte Farbgebung. Die Doppelgarage fügt sich geschmeidig als ein weiterer Kubus an das Gesamtbauwerk an. Große Fensterflächen und Türen öffnen die Räume und bringen Tageslicht in jeden Winkel.

Das Ergebnis ist ein designorientiertes Architektenhaus von KAMPA, das sich sehen lassen kann! Und natürlich stolze und glückliche Bauherren.

Hausdaten

Hausart Icon
HausartEinfamilienhaus
Bauweise Icon
BauweiseHolz-Tafelbau
Baustil Icon
BaustilKubushäuser im Bauhausstil
Fassade Icon
FassadePutz
Außenmaße Icon
Außenmaße16.8 m x 15.1 m
Wohnfläche Icon
Wohnfläche185 m²
Dachform Icon
DachformFlachdach
Energiestandard Icon
EnergiestandardEffizienzhaus 40 Plus
Immobilientyp Icon
ImmobilientypKundenhaus
Hauseigenschaften Icon
HauseigenschaftenTerasse
Heizungsart Icon
HeizungsartWärmepumpe (Luft, Wasser, oder beides)
Pfeil nach unten linksWir schaffen Platz für Ihre Träume

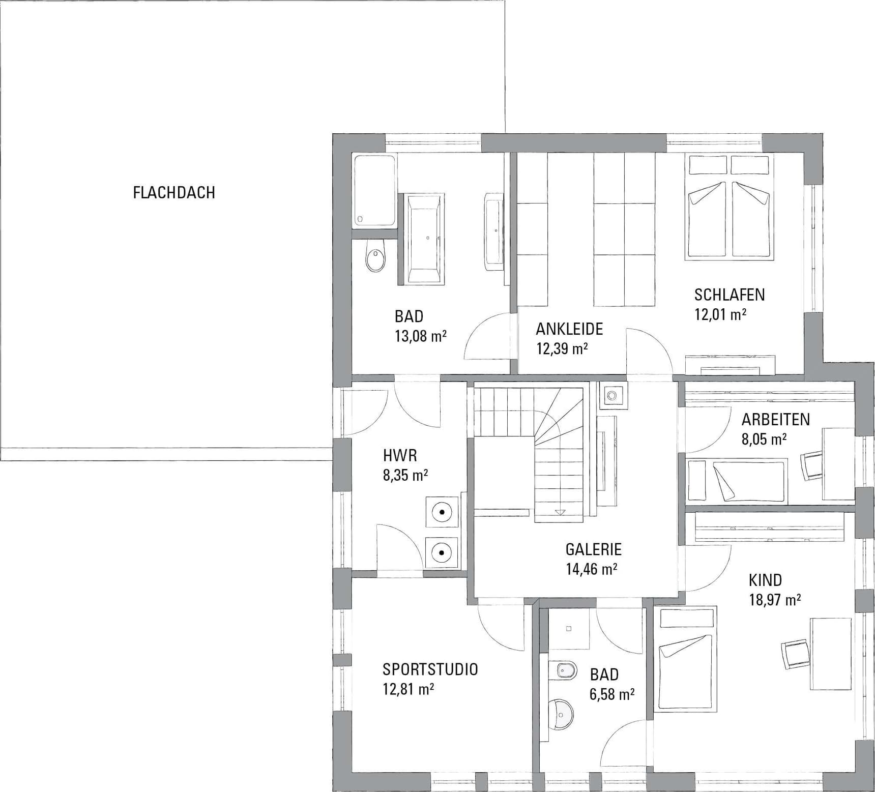
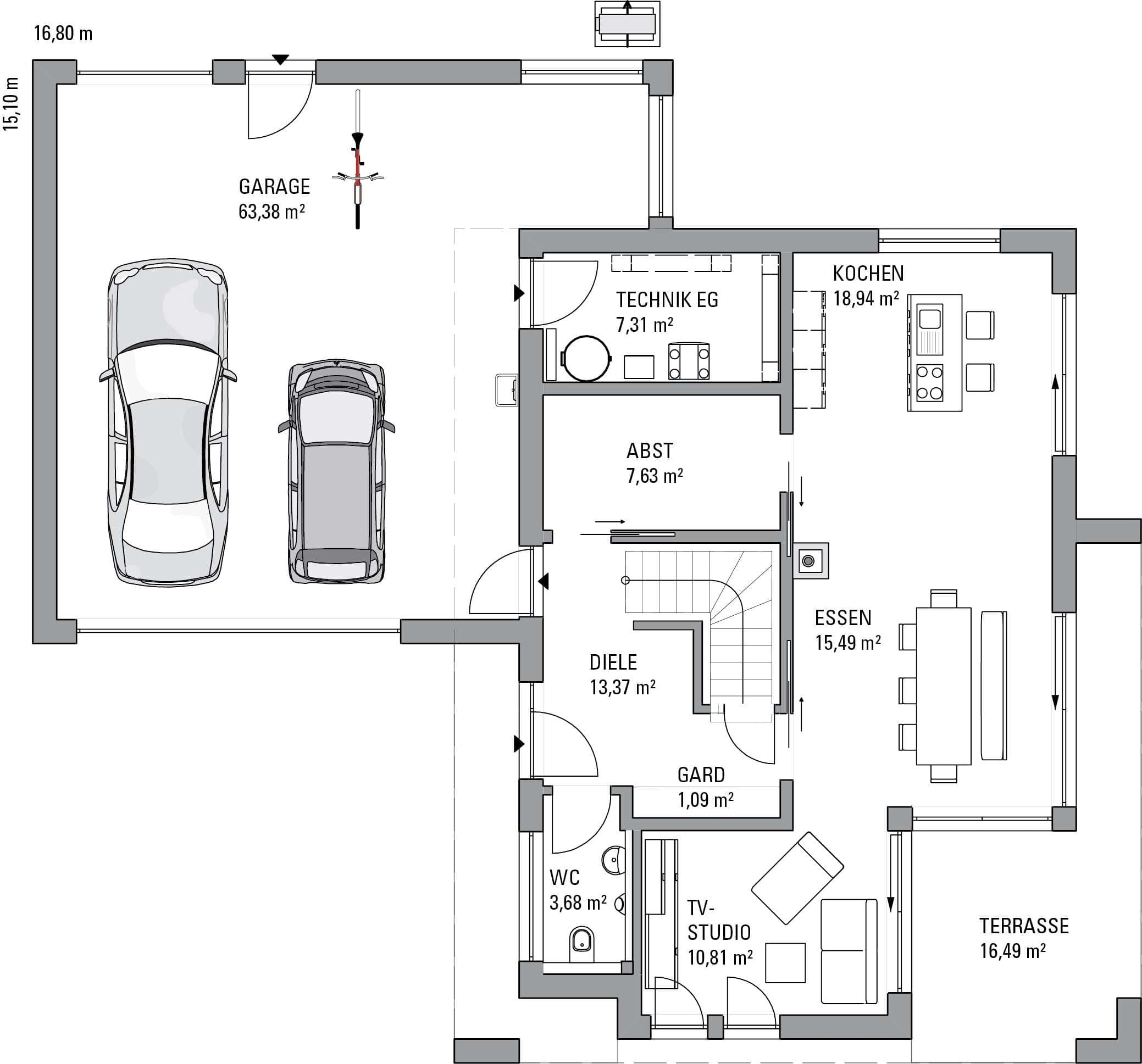
Grundriss

no description
Kundenhaus in Schwäbisch Gmünd Grundriss (EG)
no description
Kundenhaus in Schwäbisch Gmünd Grundriss (OG)

Unser Team vor Ort

Jürgen LehnertFachberater*in bei KAMPA
7366_lehnert_juergen
Wir beraten Sie gerne!Arrow Icon

Kataloge

KAMPA: Hauskatalog
KAMPA

KAMPA: Hauskatalog


House and TreeParksHouse and PinMusterhausHouse on HandAnbieter