1. AnbieterArrow Icon
  2. KAMPAArrow Icon
  3. Kundenhaus in Österreich
Slide 1
Slide 2
Slide 3
Slide 4
Slide 5
Slide 6
KAMPA_Logo.jpg
KAMPAKundenhaus in Österreich
homeStadtvillen
livingArea235 m²
energyStandardEffizienzhaus 40 Plus
Preis anfragen
Katalog bestellen

Kundenhaus in Österreich

Bauen als Familienprojekt 

Mit Holz bauen, Großzügigkeit spüren und Selbstversorger werden – das waren die drei wichtigsten Aspekte für die Bauherrenfamilie aus Eberschwang, als ihr Bauprojekt begann. „Und all das hat mit KAMPA super geklappt“. Die Familie zog es raus aufs Land, in die österreichische Bergidylle. Dort zwischen Kuhweiden, Obstbäumen und Gemüseäckern steht nun ein zukunftsweisendes Plusenergie Haus.

Dass sie mit dem schwäbischen Fertighaushersteller bauen wollten, war für die Bauherren keine Frage. „Wir kennen das KAMPA Team. Es ist überzeugt von dem, was es macht und bringt die nötige Kompetenz mit, das alles auch qualitativ hochwertig umzusetzen.“  Daher konnte nach erfolgreicher Grundstückssuche die Planung mit KAMPA Architektin losgehen. „Sie erfüllte uns wirklich jeden Wunsch und hat mit uns unser Traumhaus geplant.“

Natürliches Holz als Material sollte sich durchziehen. So ist das Fertighaus in der bewährten KAMPA Holzbauweise gebaut und sorgt durch die durchdachten MultiTec-Wände inklusive leistungsstarker Lüftungsanlage inkl. Wärmerückgewinnung für ein gesundes, angenehmes Raumklima und spürbar frische Luft. Neben modernen Möbeln rundet der breite, rustikale Dielenboden das gemütliche Wohnambiente ab. Große Fensterfronten tauchen den großzügigen Wohnbereich in ein helles, freundliches Licht. Auch die beiden Kinder genießen den geschaffenen Raum. Endlich hat jeder sein eigenes Kinderzimmer. Im großen Garten können sie sich nach Herzenslust austoben, Verstecken spielen oder bald die Früchte der eigenen Obstbäume naschen.

„Für uns war es wichtig, das Bauprojekt gemeinsam mit unseren Kindern zu erleben. Wir haben ihre Aufregung und Vorfreude gespürt. Als Familie sein Eigenheim zu schaffen, ist einfach großartig“, schwärmt die Bauherrin. Highlight der Bauphase war ganz klar die Hausstellung. Als der große Laster um die Kurve fuhr, bekamen alle Vier Herzklopfen. Vom nahegelegenen Hügel aus beobachteten sie ganz genau die Aufstellung: Die Abladung der Bauteile vom LKW, die Montage der Wände, das geschäftige Treiben auf der Baustelle. Anschließend erkundeten sie ihr KAMPA Haus. Der Bauherr erinnert sich: „Es war ein wahnsinniges Gefühl. Bis zu dem Zeitpunkt kennt man sein Haus nur auf Plänen und dann kann man plötzlich durchlaufen. Es wächst alles so schnell, dass man meinen könnte am nächsten Tag kann man bereits einziehen.“ Auch wenn der Einzugstermin tags darauf zu optimistisch war, stand bald danach schon der Umzug bevor.

Ihr Traum nun ein Selbstversorgerhaus zu bewohnen hat sich realisiert. Die Bauherren erzählen stolz: „Selbst wenn die Sonne noch nicht scheint oder sich hinter Wolken versteckt, können wir auf unserer App schon sehen, wie viel Energie die Photovoltaikanlage produziert und der Ionen-Lithium-Speicher sichert.“ Mit VIESSMANN als Systempartner garantiert KAMPA seinen Bauherren ein ganzheitliches Energiesystem, das intelligent miteinander vernetzt und perfekt aufeinander abgestimmt ist. Die gesamte Heizungs- und Lüftungskontrolle ist die Bauherren jederzeit auf ihrem Smartphone verfügbar. Auch die elektrischen Rollläden können über die Smartphones gesteuert werden. Das schafft zusätzlichen Komfort und Schutz.

Spricht man der Familie über ihr neues Zuhause, dann strahlen alle Augen: „Wir sind glücklich KAMPA Bauherren zu sein.“ Alles, was uns wichtig war, wurde erfüllt und nun nutzen wir als Selbstversorger, natürliche Energie, schonen Ressourcen und noch dazu unseren eigenen Geldbeutel. Das Konzept zahlt sich auch in jeder Hinsicht aus!“

Hausdaten

Hausart Icon
HausartEinfamilienhaus
Bauweise Icon
BauweiseHolz-Tafelbau
Baustil Icon
BaustilStadtvillen
Fassade Icon
FassadePutz
Außenmaße Icon
Außenmaße24.6 m x 11.3 m
Wohnfläche Icon
Wohnfläche235 m²
Dachform Icon
DachformWalm-/Zeltdach
Energiestandard Icon
EnergiestandardEffizienzhaus 40 Plus
Immobilientyp Icon
ImmobilientypKundenhaus
Hauseigenschaften Icon
HauseigenschaftenGästezimmer
Heizungsart Icon
HeizungsartWärmepumpe (Luft, Wasser, oder beides)
Pfeil nach unten linksWir schaffen Platz für Ihre Träume

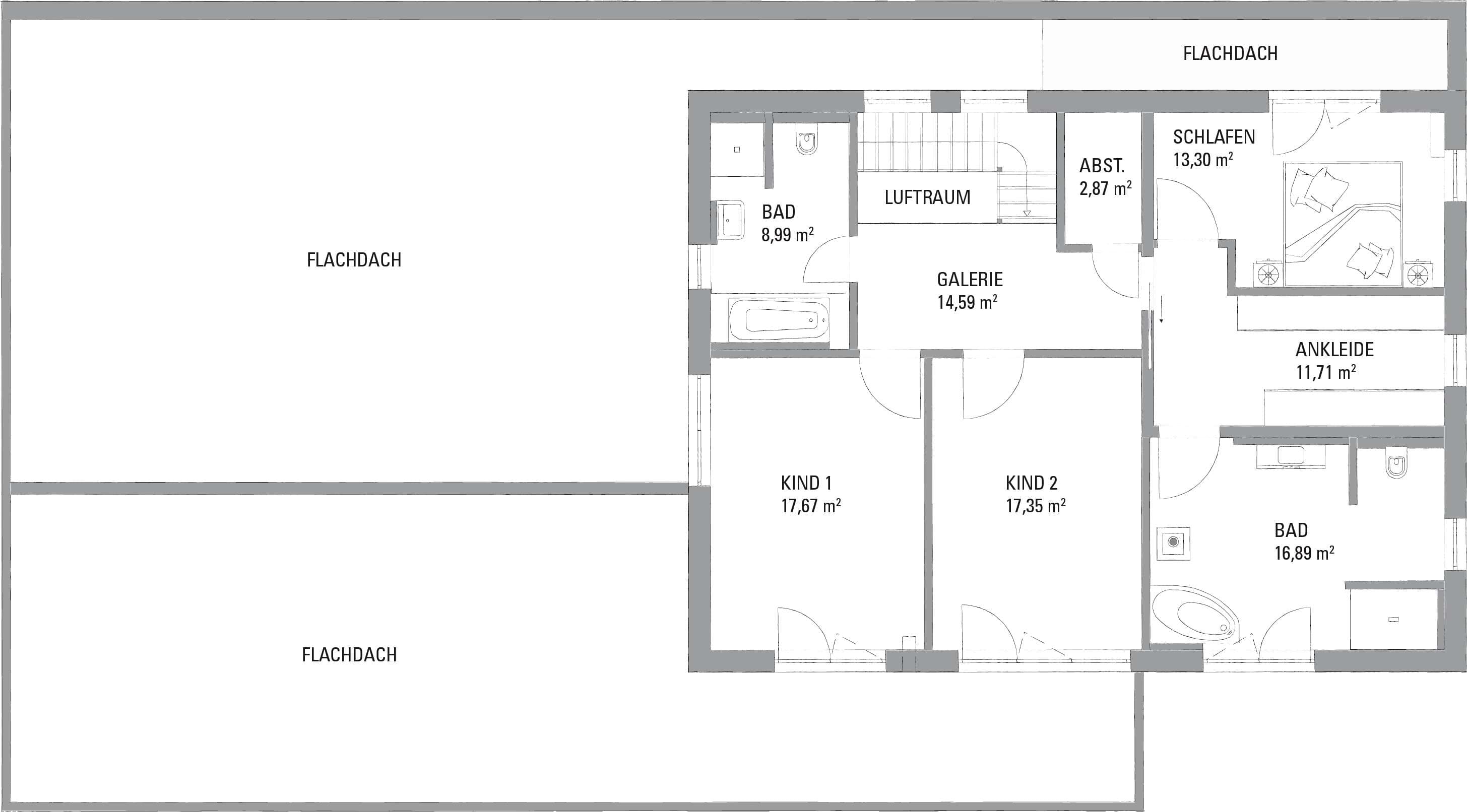
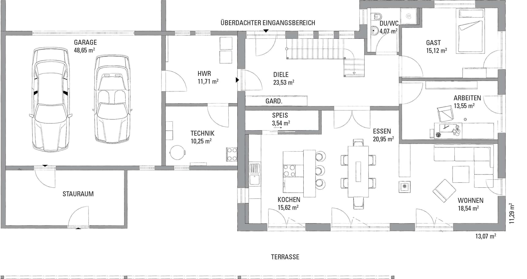
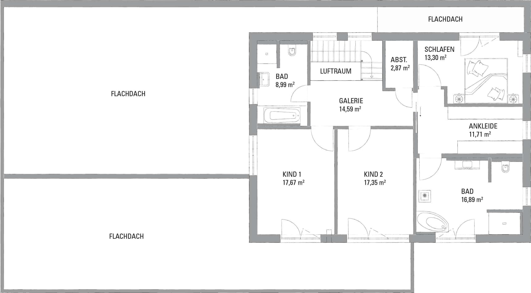
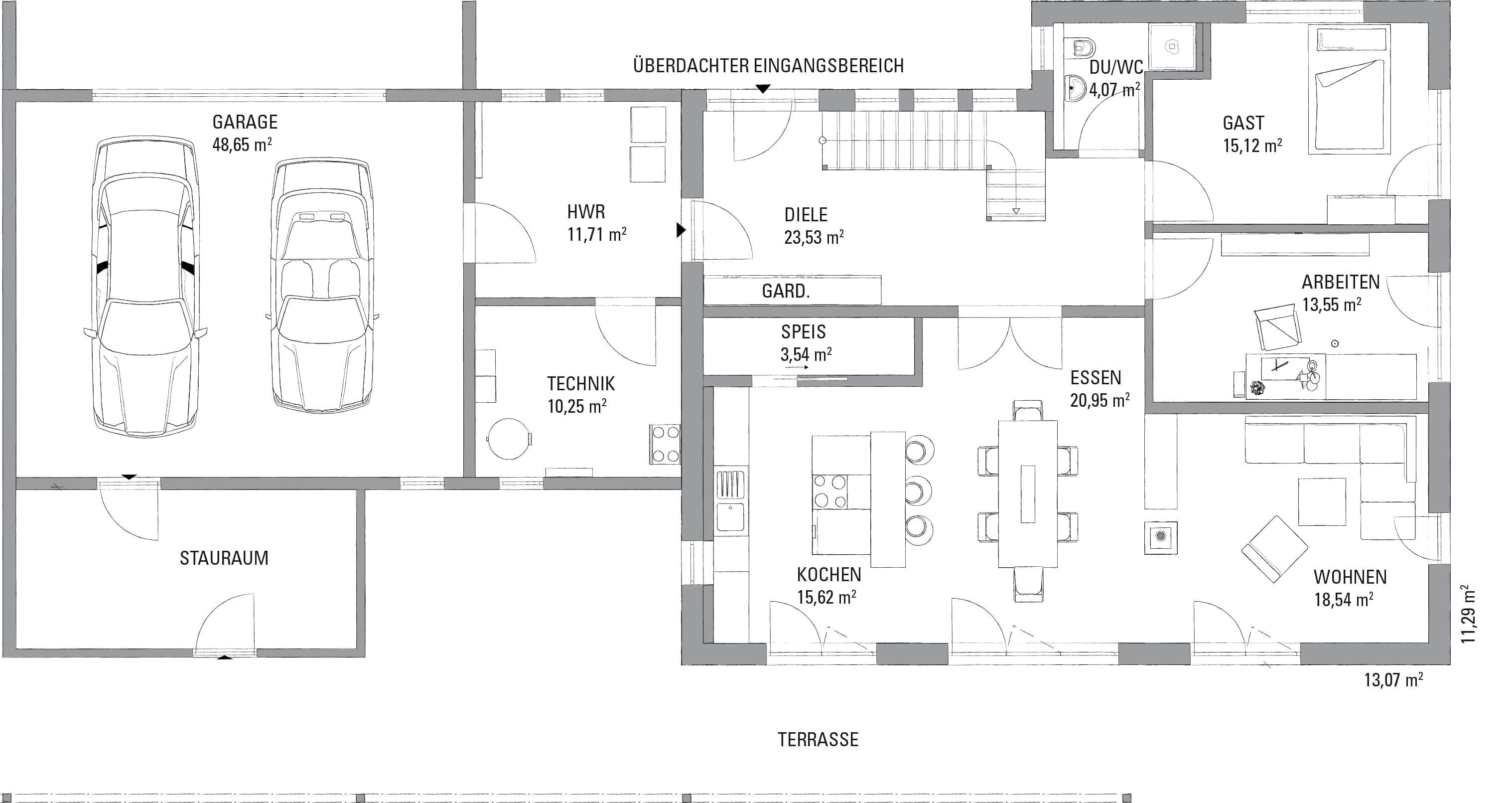
Grundriss

no description
Kundenhaus in Österreich Grundriss (EG)
no description
Kundenhaus in Österreich Grundriss (OG)

Unser Team vor Ort

Gerhard FenzlFachberater*in bei KAMPA
7511_fenzl_gerhard
Wir beraten Sie gerne!Arrow Icon

Kataloge

KAMPA: Hauskatalog
KAMPA

KAMPA: Hauskatalog


House and TreeParksHouse and PinMusterhausHouse on HandAnbieter